Äijänniementie 10
34870, Visuvesi, Ruovesi
7h, k, khh, 4xwc, kph, s, var.
329 000 €
174,8 m²

Tätä asuntoa myy Liisa Tuomaala, Asuntomyyjä
Muutos LKV | Pirkanmaan Laatuvälitys Oy

Sijainti
Asuntoesittely
Uniikki rantakohde Tarjannevedellä – koti tai vapaa-ajan paikka luonnon helmassa
Myytävänä ainutlaatuinen kokonaisuus Tarjanneveden rannalla, reilun tunnin ajomatkan päässä Tampereelta. Tämä vuonna 2011 valmistunut omakotitalo sijaitsee etelärinteessä omalla, puutarhamaisella tontilla. Rauhallinen ja suojaisa sijainti, oma ranta ja toimivat tilat tekevät tästä kohteesta erinomaisen valinnan niin vakituiseen asumiseen kuin vapaa-ajan kodiksi.
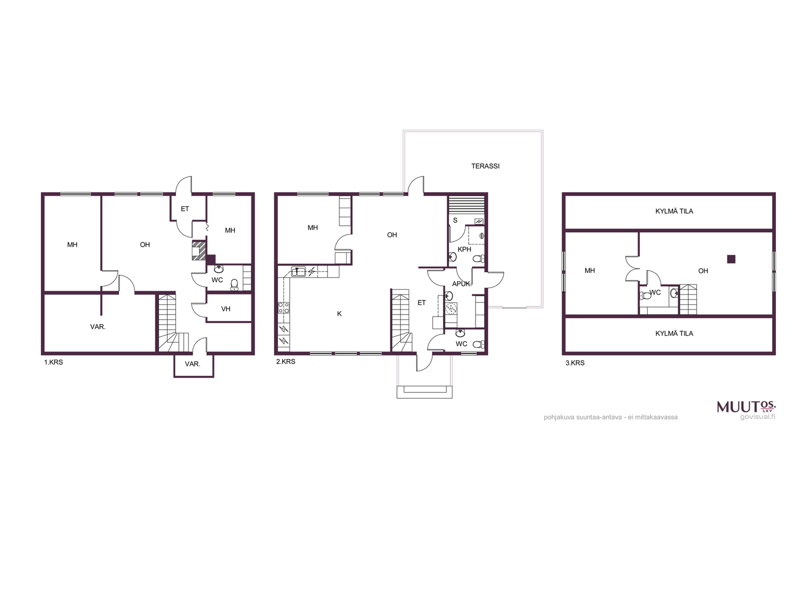
Päärakennus jakautuu kolmeen kerrokseen. Ylin kerros on otettu käyttöön vasta muutama vuosi sitten, ja koko talon kokonaisuus on pidetty ajan tasalla: sisätilojen pintoja on uudistettu tyylikkäästi, ja talotekniikkaa on päivitetty vastaamaan nykypäivää. Tilat ovat avarat ja muunneltavissa – talossa on neljä makuuhuonetta ja kolme erillistä oleskelutilaa, jotka soveltuvat joustavasti esimerkiksi etätyöhön, vierashuoneiksi tai harrastetiloiksi. Alimmasta kerroksesta löytyy 2018 muurattu varaava takka ja keski kerroksessa on suuri keittiö, joka avautuu olohuoneeseen. Olohuoneesta on kulku suoraan terassille, josta avautuu mahtavat maisemat läpi vuoden.
Etelään avautuva 2800 m² tontti on porrastettu helppohoitoiseksi ja sitä kehystää monivuotinen kasvillisuus sekä suojaava puusto. Rantaviivaa on noin 40 metriä, ja ranta on matala ja turvallinen – se syvenee loivasti, mikä tekee siitä ihanteellisen niin uimiseen kuin lasten vesileikkeihin.
Kiinteistön pihapiirissä on autotalli, jonka yhteydessä on autokatos ja viihtyisä kesähuone. Lisäksi rannassa sijaitsee perinteikäs rantasauna aivan veden äärellä. Saunassa on minikeittiö ja mahdollisuus yöpymiseen kesäisin – täydellinen paikka rentoutumiseen.
Koulu, päiväkoti ja lähikauppa ovat kävelyetäisyydellä, ja laajemmat palvelut löytyvät Ruovedeltä ja Virroilta noin 17 kilometrin päässä. Kiinteistö sijaitsee päättyvän tien varrella, mikä takaa rauhallisen ja turvallisen asuinympäristön.
Tämä kohde on poikkeuksellinen yhdistelmä laatua, sijaintia ja luonnonläheisyyttä – tervetuloa tutustumaan ja ihastumaan.
Liisa Tuomaala
Asuntomyyjä
050 019 1112
[email protected]
Pohjakuva

Perustiedot
- Sijainti
- Äijänniementie 10, 34870, Visuvesi, Ruovesi
- Huoneluku
- 6
- Asuinpinta-ala
- 174,8 m²
- Muu pinta-ala
- 15 m²
- Kokonaispinta-ala
- 189,8 m²
- Lisätiedot pinta-alasta
- Pinta-alat perustuvat myyjältä saatuihin tietoihin ja rakennuspiirustuksista laskettuihin arvioihin. Pinta-aloja ei ole tarkistusmitattu, mitattaessa pinta-alat saattavat olla ilmoitettua suurempia tai pienempiä. Kohteen kauppahinta ei ole osaksikaan pinta-alaperusteinen vaan perustuu kokonaisuuteen. Asuintilojen pinta-ala on laskettu rakennuspiirustuksista ja siihen on huomioitu kaikki asuinkäytössä olevat tilat, muihin tiloihin on laskettu varasto ja kellari.
- Kohteen tyyppi
- Omakotitalo
- Kerros
- 3
- Rakennusvuosi
- 2011
- Lisätietoja rakennusvuodesta
- Yläkerran muutos asuintiloiksi - Rakennuslupa ja myöntämisvuosi: 17.09.2020, + 40 m2 Loppukatselmus pidetty hyväksytysti: 8.09.2023 Kaikista kiinteistöllä sijaitsevista rakennuksista ei ole saatavilla alkuperäisiä rakennuslupa-asiakirjoja eikä tietoa loppukatselmuksista.
- Käyttöönottovuosi
- 2010
- Kohde myydään vuokrattuna
- Ei
- Vapautuminen
- 1-2 kuukautta kaupoista
Hinta ja kustannukset
- Myyntihinta
- 329 000 €
- Sähköliittymä siirtyy
- Kyllä
- Neliöhinta
- 1 882,15 € / m²
- Lisätietoja maksusta
- Lisätietoja vastikkeista: Sähkön kokonaiskulutus ollut nykyisillä omistajilla noin 15 000 kWh/v. Kiinteistövero: 921,48 €/2025 Vesi ja jätevesi kulutuksen mukaan. Jätehuolto Pirkanmaan jätehuoltolaitoksen taksoituksen mukaan. Hulevesimaksu kaupungin taksoituksen mukaan. Esitetyt asumiskustannukset perustuvat nykykäyttöön ja voivat siten olla pienempiä tai suurempia, riippuen asukasmäärästä, asumistottumuksista sekä palveluntarjoajasta
Tilat ja materiaalit
- Keittiön lattiat
- Laminaatti
- Keittiön seinät
- Tapetti
- Keittiön varusteet
- Liesi, astianpesukone, jääkaappi, erillinen pakastin, ja liesituuletin / hormi
- Liesi
- sähköliesi
- Kylpyhuoneen seinät
- Muovimatto
- Kylpyhuoneen lattiat
- Muovimatto
- Kylpyhuoneen varusteet
- WC-istuin, peilikaappi, suihkukaappi, ja lattialämmitys
- Makuuhuoneet
- Keskikerros: Makuuhuone 1: Lattiapinnat: laminaatti, Seinäpinnat: tapetti. Alin kerros: Makuuhuone 2 ja 3: Lattiapinnat: laminaatti, Seinäpinnat: paneeli. Ylin kerros: Makuuhuone 4: Lattiapinnat: laminaatti, Seinäpinnat: tapetti.
- Makuuhuoneiden lukumäärä
- 4
- Olohuone
- Keskikerros: Olohuone: Lattiapinnat: laminaatti, Seinäpinnat: tapetti. Alin kerros: Oleskelutila: Lattiapinnat: laminaatti, Seinäpinnat: paneeli. Ylin kerros: Oleskelutila: Lattiapinnat: laminaatti, Seinäpinnat: tapetti.
- Säilytystilojen kuvaus
- Vaatehuone, sisävarasto x2, erilliset vaatekaapit.
- Kohteen säilytystilat
- Vaatehuone, sisävarasto x2 erilliset vaatekaapit.
- Sauna
- Kyllä
- Kiuas
- Sähkökiuas
Lisätiedot
- Asunnon kunto
- Hyvä
- Ranta
- Oma ranta
- Omaa rantaa (m)
- 40
- Lisätietoja rannasta
- Etelään/lounaaseen avautuva loivasti syvenevä hiekkapitoinen lapsiystävällinen ranta.
- Vesistön nimi
- Näsivesistön Tarjannevesi
- Muut tilat
- Kodinhoitohuone - Lattiapinnat: muovi Seinäpinnat: tapetti. Kaupaan kuuluva varustus: pesukoneliitäntä, erillinen lavuaari, 2 korkeaa varastokaappia, kulku suoraan ulos. Eteinen - Lattiapinnat: laminaatti, Seinäpinnat: tapetti.
- Muuta kauppaan kuuluvaa
- Lisätietoja sisältyvistä varusteista: kaapistot, kiinteät valaisimet, verhotangot
- Kauppaan ei kuulu
- Irtain
Taloyhtiö ja kiinteistö
- Tontin pinta-ala
- 2 800 m²
- Tontin omistus
- Oma
- Tontin tyyppi
- Rantatontti
- Tontin myyntityyppi
- Koko tontti
- Tontin tiedot
- Rinnemaastoinen, puustoa, kivetyksiä ja istutuksia. Ostaja on tietoinen, että kiinteistön rantaan on muodostunut vesijättöä. Ostaja hyväksyy tämän ja ottaa mahdollisen lunastuksen vastattavakseen. Vesijätön lunastuksen hintaa ei voida määritellä etukäteen. Myytävä kohde on kaavan mukaan ohjeellisen tonttijaon aluetta. Joissakin tapauksissa tila-muotoinen tontti ei vastaa kaavan mukaisen tontin rajoja ja sen alueita. Kaavatontin pinta-ala ja tontin rajat voivat poiketa nykyisen tilan pinta-alasta ja rajoista. Mahdollisista tontin muodostamiskustannuksista vastaa ostaja.
- Käyttö/luovutusrajoitukset
- Johtorasite
- Rakennusmateriaali
- puurunko, lautavuori kellarikerros harkkoa
- Lämmitysjärjestelmä
- Sähkö Tyyppi: sähköinen lattialämmitys sähköinen lattialämmitys, vesikiertoinen patterilämmitys
- Vesijohto
- Kunnallisvesi
- Viemäröinti
- Kunnallinen viemäriverkosto
- Kattotyyppi
- Harjakatto
- Katemateriaali
- Pelti
- Rakennusoikeus
- 330
- Kohteesta on energiatodistus
- Ei lain edellyttämää energiatodistusta
- Tie perille
- Kyllä
- Kaavatilanne
- Asemakaava
- Kaavoitustiedot
- Ruoveden rakennusvalvonta
- Lisätietoa asbestikartoituksesta
- Saunarakennus on valmistunut ennen vuotta 1994, eikä asbestikartoitusta ole tehty kaikissa tiloissa. Huomioitava kaikessa remontoinnissa.
- Lisätietoa muista rakennuksista
- Rantasauna: löylyhuone, pukuhuone, kesäkeittiö/makuutila ja oleskelutila (oleskelutila ei ulko-ovea eli avoin ulos). Tehdyt muutos ja korjaustyöt: sähköt uusittu 2004, Lotta-jalkalaituri sekä terassi rakennettu 2017, ulkoverhous ja osa sisäverhouksesta uusittu 2017 – 2018, portaat rantaan 2018, löylyhuone sekä kiuas ja savupiippu uusittu 2022. Ulkorakennus: ulkovarasto/vierashuone (sisä wc), autotalli ja autokatos. Kokonaispinta-ala n. 38 m². Tehdyt muutos ja korjaustyöt: autokatoksen katto rakennettu sekä rakennus osittain maalattu 2024, kesähuoneen ja wc:n lattiat uusittu laattalattioiksi 2024.
