Aapramintie 14 B
01610, Kaivoksela, Vantaa
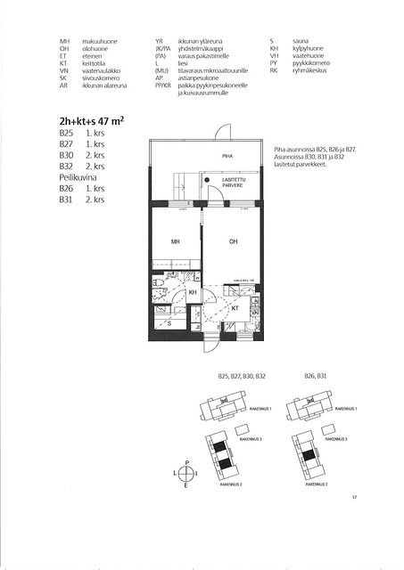
2h+kt+s
195 900 € (4 168,09 € / m²)
47 m²

Tätä asuntoa myy Jani Saartama, Asuntomyyjä
Huoneistokeskus Oy | Vantaa

Sijainti
Asuntoesittely
Tämä viihtyisä koti sijaitsee luhtitalon toisessa kerroksessa Kaivokselassa ja tarjoaa erinomaiset puitteet niin arkeen kuin rentoutumiseenkin. Asunnon suuri ja valoisa olohuone yhdistyy saumattomasti käytännölliseen keittiöön, luoden avaran ja kodikkaan tunnelman.
Tämän kodin erityinen helmi on sen oma sauna, jossa voit nauttia rauhallisista ja rentouttavista hetkistä. Lisäksi asunnossa on lasitettu parveke, joka tuo lisää tilaa ja mahdollistaa ulkona oleskelun vuodenajasta riippumatta.
Tässä kodissa yhdistyvät kätevyys, tilavuus ja mukavuus – täydellinen paikka asua!
Sovi oma esittelyaikasi jo tänään – tämä koti saattaa olla juuri se oikea!
Ota rohkeasti yhteyttä välittäjään, niin järjestämme samalla nopean yhteyden pankkiin.
Kysy lisää autopaikan ostomahdollisuudesta välittäjältäsi.
Pohjakuva

Perustiedot
- Sijainti
- Aapramintie 14 B, 01610, Kaivoksela, Vantaa
- Omistusmuoto
- Omistusasunto
- Huoneluku
- 2
- Asuinpinta-ala
- 47 m²
- Muu pinta-ala
- 0 m²
- Kokonaispinta-ala
- 47 m²
- Pinta-alan peruste
- Yhtiöjärjestyksen mukainen, Isännöitsijäntodistuksen mukainen
- Kohteen tyyppi
- Luhtitalo
- Kerros
- 2 / 2
- Rakennusvuosi
- 2016
- Käyttöönottovuosi
- 2016
- Kohde myydään vuokrattuna
- Ei
- Vapautuminen
- Sopimuksen mukaan
Hinta ja kustannukset
- Velaton hinta
- 195 900 €
- Myyntihinta
- 92 061,03 €
- Velkaosuus
- 103 838,97 €
- Yhtiövastike
- Hoitovastike 282 € / kk, Rahoitusvastike 452,75 € / kk, Yhtiövastike yhteensä 734,75 € / kk
- Vesimaksu
- 19 € / hlö
- Sähköliittymä siirtyy
- Kyllä
- Neliöhinta
- 4 168,09 € / m²
- Lisätietoja maksusta
- Lisätietoja vastikkeista: Vesimaksu on ennakko
Tilat ja materiaalit
- Keittiön seinät
- Maali ja laatta
- Keittiön varusteet
- Liesituuletin, jääkaappipakastin, astianpesukone, ja kiinteät valaisimet
- Liesi
- Keraaminen liesi
- Kylpyhuoneen seinät
- Kaakeli
- Kylpyhuoneen lattiat
- Laatta
- Kylpyhuoneen varusteet
- WC-istuin, lattialämmitys, peilikaappi, suihkuseinä, pesukoneliitäntä, ja suihku
- Makuuhuoneiden lukumäärä
- 1
- Makuuhuoneiden seinät
- Maali
- Olohuoneen seinät
- Maali
- Sauna
- Kyllä
- Kiuas
- Sähkökiuas
Lisätiedot
- Asunnon kunto
- Hyvä
- Parveke
- Lasitettu parveke
- Hissi
- Kyllä
- Muuta kauppaan kuuluvaa
- Lisätietoja sisältyvistä varusteista: kiinteät valaisimet, sälekaihtimet/rullaverhot
Taloyhtiö ja kiinteistö
- Taloyhtiön nimi
- As. Oy Vantaan Vuorikilta
- Isännöitsijätoimisto
- Retta Services Oy, Retta Isännöinti
- Isännöitsijän nimi
- Marjaana Vahviläinen
- Isännöitsijän sähköposti
- [email protected]@retta.fi
- Isännöitsijän puhelin
- 0102284000
- Tontin pinta-ala
- 5 986 m²
- Tontin omistus
- Oma
- Rakennusmateriaali
- betonielementti
- Lämmitysjärjestelmä
- Kaukolämpö
- Kattotyyppi
- harjakatto
- Katemateriaali
- pelti
- Lisätietoja kiinteistönhoidosta
- Huoltoyhtiö
- Kiinteistönhoidon lisätiedot
- Selco Oy, puh 09-413 002 00, [email protected]
- Taloyhtiössä on
- Urheiluvälinevarasto, väestönsuoja, ja lastenvaunuvarasto, huoneistokohtaiset varastot
- Kohteesta on energiatodistus
- Kyllä
- Energialuokka
- C2013
- Lisätietoja taloyhtiön autonsäilytyspaikoista
- Autopaikkoja yhteensä 35kpl, kaikki osakepaikkoja, autohalli ja autokatospaikkoja. Piha-alueella kaksi liikkumisesteisille varattua autopaikkaa.
- Kaavatilanne
- Asemakaava
- Lisätiedot kaavoituksesta
- Vantaan kaupunki puh 09-83922242
- Taloyhtiön kiinnitykset
- 7 150 000 €
Tehdyt remontit
Lämmitysjärjestelmä Lämpimän käyttöveden lämmönvaihtimen
uusinta 2020
Perustukset ja
alapohjat Alapohjan radonimurit 2 kpl uusinta 2020
Yläpohjarakenteet ja
vesikatto varusteineen Kiristettiin kattopeltien saumoja rakennuttajan
10-vuotisvastuuseen kuuluvana työnä 2020
Tulevat remontit
Ilmanvaihtojärjestelmä Kunnossapitokorjaus Ilmanvaihtokanavien nuohous ja
säätö Suositeltu 2024
Kiinteistön Tutkimus/tarkastus kuntoarvio Suositeltu 2024
Ikkunat, parvekeovet
i parvekkeet Parvekelasihuolto Suositeltu 2025