Aarholmankuja 4 B
00840, Yliskylä, Laajasalo, Helsinki
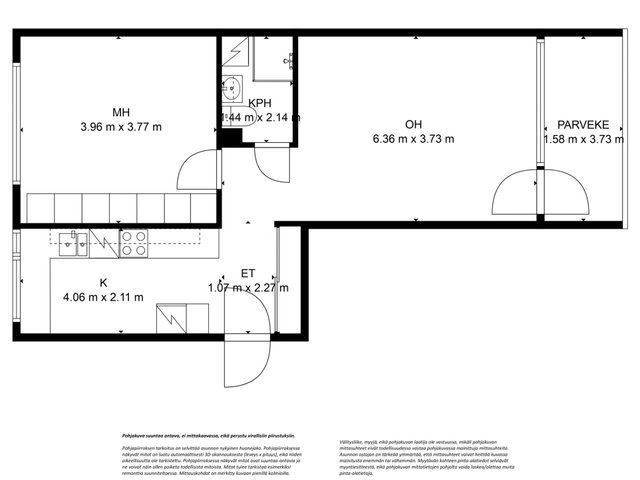
2h,keittiö,kph,parveke
199 000 € (3 940,59 € / m²)
50,5 m²

Tätä asuntoa myy Helin Ranne, Myyntipäällikkö, Kiinteistönvälittäjä, LKV, LVV, KiLAT
Hyvän välitystavan lähettiläs 2025
Roof Helsinki | ROOF Group Oy

Sijainti
Asuntoesittely
Valoisa läpitalon kaksio loistavalla sijainnilla omalla tontilla Laajasalossa.
Kylpyhuone on uusittu putkiremontin yhteydessä 2013, keittiö remontoitu 2007. Isot ikkunat tuovat valoa ja näkymät huoneistosta ja eteläparvekkeelta ovat lähikallioille ja puistoon.
Yhtiö sijoitettu kauniisti kukkulan päälle luonnon maisemaan. Sisäpihalta löytyy mm. turvallinen leikkipaikka, pieni lampi ja kaunista kalliota sekä puita. Yhtiössä asukkaiden käytössä mm. sauna, varastot, pesutupa ja askarteluhuone.
Sijainti on loistava: aivan lähistöltä löytyvät niin päiväkodit, koulut, liikuntapuistot, lenkkipolut merenrantaviivoineen kuin kauppakeskus Saaren palvelut ruokakauppoineen ja kirjastoineen. Tulevaisuudessa palvelut vain kehittyvät Kruunuvuorenrannan liittyessä osaksi kantakaupunkia Kruunusillat-hankkeen myötä vuonna 2027. Meri, luonto ja loistavat palvelut lähellä: mitä muuta naapurustolta voisi kaivata?
Tervetuloa tutustumaan!
Yhtiöjärjestyksessä : 2h+kk.
TIEDUSTELUT JA YKSITYISESITTELYVARAUKSET:
Helin Ranne
[email protected]
040 7765 893
OTATHAN YHTEYTTÄ JA VARAAT OMAN ESITTELYAJAN?
I can provide services also in English or in Estonian.Perustiedot
- Sijainti
- Aarholmankuja 4 B, 00840, Yliskylä, Laajasalo, Helsinki
- Omistusmuoto
- Omistusasunto
- Huoneluku
- 2
- Asuinpinta-ala
- 50,5 m²
- Kokonaispinta-ala
- 50,5 m²
- Pinta-alan peruste
- Yhtiöjärjestyksen mukainen, Isännöitsijäntodistuksen mukainen
- Lisätiedot pinta-alasta
- Pinta-alaa ei ole tarkistusmitattu.
- Kohteen tyyppi
- Kerrostalo
- Kerros
- 1 / 4
- Rakennusvuosi
- 1965
- Käyttöönottovuosi
- 1965
- Kohde myydään vuokrattuna
- Ei
- Vapautuminen
- Sopimuksen mukaan
Hinta ja kustannukset
- Velaton hinta
- 199 000 €
- Myyntihinta
- 199 000 €
- Yhtiövastike
- Hoitovastike 313,10 € / kk, Yhtiövastike yhteensä 313,10 € / kk
- Saunamaksu
- 15 € / kk
- Vesimaksu
- 25 € / hlö / kk
- Neliöhinta
- 3 940,59 € / m²
- Lisätietoja maksusta
- Saunamaksu 15 € / kk. Vuokra 150 € / kk Vuokra2 120 € / kk Varsinaisessa yhtiökokouksessa 21.5.2025 päätettiin julkisivujen- ja ikkunoiden saneeraushankkeen toteutuksesta. Kokonaisvaraus hankkeelle 1.200.000,00 €, josta muodostuu neliökohtainen maksimihinta 589,39 €/neliö. Huoneistokohtainen kustannusarvio huoneistolle on 29764,208 €. Mahdollisia asumishaittoja ovat rakennustelineet näkymiin, tilapäinen melu ja parvekkeen käyttörajoitus remontin aikana. Remontti alkaa tammikuussa 2026. Varsinaisessa yhtiökokouksessa 21.5.2025 päätettiin antaa hallitukselle valtuudet kerätä enintään kaksi ylimääräistä hoito- ja/tai pääomavastiketta tarvittaessa. Taloyhtiön hallitukselle on annettu valtuutus periä (tai olla perimättä) ylimääräistä vastiketta yhtiön taloudellisen aseman tai maksuvalmiuden sitä vaatiessa
Tilat ja materiaalit
- Keittiön kuvaus
- VARUSTUS: Liesituuletin Uuni Hana Kaapisto Allas Astianpesukone Jääkaappipakastin Sähköliesi SEINÄT: Maali LATTIA: Parketti
- Kylpyhuone
- VARUSTUS: Suihku Suihkuseinä Wc istuin Pesukoneliitäntä Hana Allas Peilikaappi Allaskaapisto Lattialämmitys SEINÄT: Laatta LATTIA: Laatta
- Makuuhuoneet
- VARUSTUS: Kaapisto SEINÄT: Maali LATTIA: Parketti
- Olohuone
- SEINÄT: Maali LATTIA: Parketti
- Sauna
- Ei
Lisätiedot
- Asunnon kunto
- Hyvä
- Parveke
- Sisäänvedetty parveke
- Parvekkeen ilmansuunta
- Pohjoinen ja etelä
- Hissi
- Kyllä
Taloyhtiö ja kiinteistö
- Taloyhtiön nimi
- Asunto Oy Aarholmankuja 4
- Isännöitsijätoimisto
- Kiinteistö-Tahkola Helsinki Oy
- Isännöitsijän nimi
- Pasi Vähä-Touru
- Isännöitsijän sähköposti
- [email protected]
- Isännöitsijän puhelin
- 0207481006
- Tontin pinta-ala
- 8 600 m²
- Tontin omistus
- Oma
- Rakennusmateriaali
- Betoni
- Lämmitysjärjestelmä
- Kaukolämpö
- Ilmanvaihto
- Koneellinen poisto-IV
- Kattotyyppi
- Pulpettikatto
- Katemateriaali
- Pelti
- Lisätietoja kiinteistönhoidosta
- Huoltoyhtiö
- Kiinteistönhoidon lisätiedot
- Kiinteistönhuolto T. Mykkänen Oy
- Taloyhtiössä on
- Kylmäkellari, urheiluvälinevarasto, kellarikomero, väestönsuoja, kuivaushuone, ja mankeli
- Lunastusoikeus yhtiöllä
- Ei
- Lunastusoikeus osakkaille
- Ei
- Kohteesta on energiatodistus
- Kyllä
- Energialuokka
- E2018
- Lisätietoja liikenneyhteyksistä
- Bussipysäkki 100m. Tuleva ratikapysäkki 200m. Herttoniemen metroasema 2km.
- Palvelut
- Saari kauppakeskus noin 500 m, jossa kattavat palvelut. Alepa Kruunuvuorenranta noin 850 m.
- Koulut
- Laajasalon peruskoulu noin 700 m.
- Taloyhtiön autopaikat
- Taloyhtiöllä on käytössään 36 autopaikkaa Yliskallion Huolto Oy:n omistamalla paikoitustontilla. Asunto Oy Aarholmankuja 4 on Yliskallion Huolto Oy:n osakas.
- Taloyhtiöllä sauna
- Kyllä
- Kaavatilanne
- Asemakaava
- Lisätiedot kaavoituksesta
- Helsingin kaupunki p. 09 310 1691. -- Laajasalontien ja Yliskylänlahden alueelle suunnitellaan kaupunkibulevardia ja täydennysrakentamista.
- Asbestikartoitus
- Ei
- Lisätietoa asbestikartoituksesta
- Kohde on valmistunut ennen vuotta 1994. Asunnossa ei ole tehty asbestikartoitusta. Lain mukaan purettavien materiaalien asbesti pitää kartoittaa ennen purkutyötä, jos rakennus on rakennettu ennen vuotta 1994. Jos osakas aikoo remontoida tällaisessa talossa olevaa huoneistoaan, hänen tulee tietyissä tapauksissa teettää asbestikartoitus purettaviin materiaaleihin. Asbestikartoitusvelvollisuus ei koske huoneistossa tehtäviä vähäisiä töitä, kuten reikien poraamista seiniin tai kattoon.
- Taloyhtiön kiinnitykset
- 1 898 600 €
- Taloyhtiön kiinnitysten päivämäärä
- Isännöitsijäntodistuksen päivämäärän mukainen
Tehdyt remontit
2023: Rättipattereiden tiivisteiden uusinnat
2019: Maalämpöselvitys.
2018: Pihasaneeraus.
2013-2014: LVIS-saneeraus.
2012: LVIS-saneerauksen toteutussuunnittelu. Hissien peruskorjaus.
2010-2011: LVIS-saneerauksen hankesuunnittelu.
2009: Mankeli ja pyykinkuivauslaite hankittu, ilmoitus- ja nimitaulu uusitu, kellaritilojen muutokset ja niihin liittyvät sähkö- ja putkityöt, kylmälaitteet uusittu.
2008: Vesikaton pinnoitustyöt, viemärien painehuuhtelu. Patteriverkoston tasapainotus ja säätö.
2007: Kaukolämpölaitteiston uusiminen. Putkistokartoitus.
2006: Autokatos korjaus / Yliskylän Huolto Oy.
2005: Ulko-ovet uusittu, antenniverkon kunnostus. Kuntoarvio.
2003: Pohjoispäädyn julkisivukorjaus.
2002: Lukitus ja postiluukut uusittu.
2000: Parvekkeiden pintakorjaus.
1996-1997: Lämmitysverkoston ja lämpimän käyttövesiverkoston kunnostaminen.
1997: Porraskäytävät maalattu, vesikatto maalattu.
1995: Peltikatto uusittu.
Tulevat remontit
2025-2030:
Erillisen jätekatoksen rakentaminen, Julkisivusaneerauksen toteutua + ikkunat ja ulko-ovet yhteistyö naapuriyhtiöiden kanssa, vaihtoehtoisten energiamuotojen kartoittaminen, kattopinnoituksen korjaus, paikoitusalueen peruskorjaus, huoneistokohtaisten palovaroittimien asentaminen ja huolto 2025 loppuun mennessä.
Pienimuotoiset kunnostukset sekä kiireelliset korjaukset sisällytetään normaaliin talousarvioon. Suuremmat toimenpiteet rahoitetaan pääsääntöisesti lainalla, jonka osakas voi maksaa myös kertamaksu suorituksena. Jokaiseen lainaa vaativaan toimenpiteeseen ryhtymisestä ja rahoituksesta tehdään aina erillispäätökset yhtiökokouksessa.
Lukijan on huomattava, että kunnossapitotarveselvitys on hallituksen näkemys kunnossapitotarpeista
viiden vuoden aikana. Päätökset mahdollisesti käynnistettävien kunnossapitotöiden ja muutostöiden
suunnittelusta, toteutuksesta sekä rahoituksesta tehdään yhtiökokouksessa erikseen. Kunnossapitotarveselvityksessä mainitut toimenpiteet saattavat aikaistua tai myöhentyä. Myyjä ei vastaa taloyhtiön myöhemmin päättämistä kunnossapitotoimenpiteistä ja niistä aiheutuvista huoneistolle tulevista kustannuksista.
