Ahotie 18
33800, Viinikka, Tampere
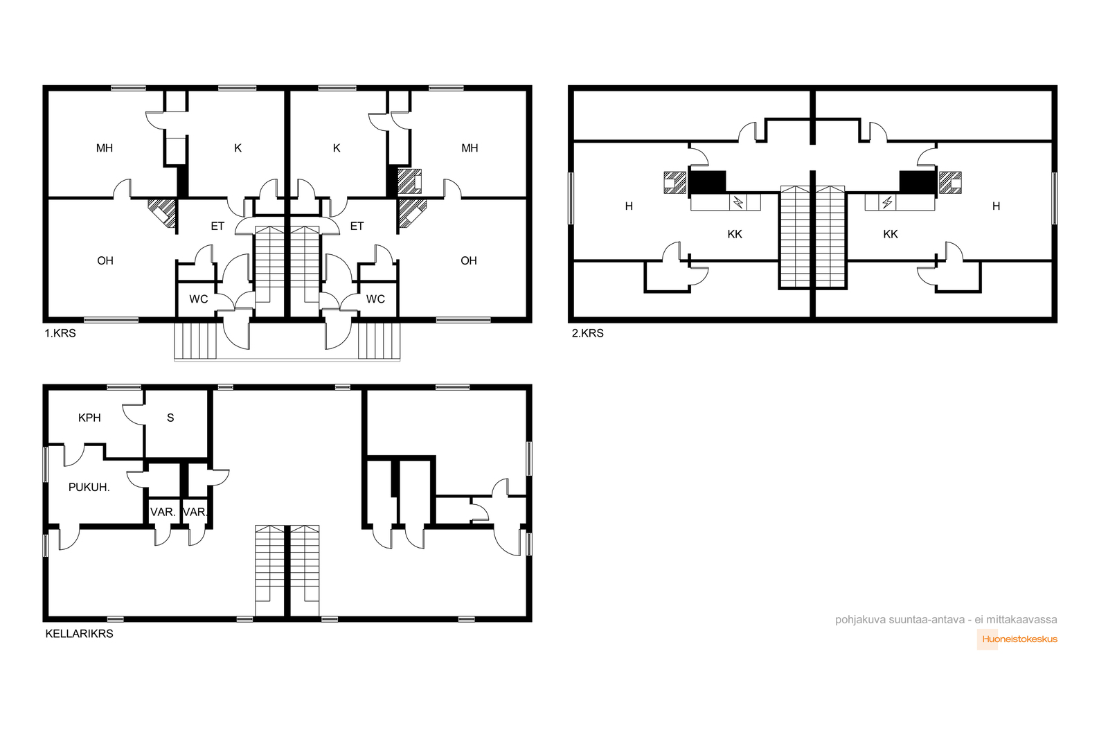
6h, 2 k, 2 wc, kellari
128 000 €
140 m²

Tätä asuntoa myy Kimmo Saarinen, Kiinteistönvälittäjä, LKV
Huoneistokeskus Oy | Tampere

Sijainti
Asuntoesittely
Monien mahdollisuuksien talo huippusijainnilla Viinikassa!
Tervetuloa tutustumaan tähän uniikkiin kohteeseen, joka tarjoaa runsaasti potentiaalia, niin perheasumiseen, kuin sijoittamiseenkin!
Tämä tilava rakennus sijaitsee rauhallisella ja vehreällä alueella aivan Lampipuiston laidalla. Alkuperäisessä pohjaratkaisussa talossa on ollut neljä erillistä asuntoa, myöhemmin se on toiminut paritalona. Rakennuksen muunneltava pohjaratkaisu mahdollistaa muuntamisen joko moderniksi omakotitaloksi tai kahdeksi erilliseksi asunnoksi, valinta on sinun!
Talo vaatii laajaa peruskorjausta, joten kohde on täydellinen remontoijalle sekä rakentajalle.
Etsitkö projektikohdetta, jossa voit toteuttaa omat visiosi ja luoda juuri sinun näköisesi kodin?
Tässä on tilaisuutesi!
Ota yhteyttä ja sovi esittely!
Pohjakuva

Perustiedot
- Sijainti
- Ahotie 18, 33800, Viinikka, Tampere
- Asuinpinta-ala
- 140 m²
- Muu pinta-ala
- 20 m²
- Kokonaispinta-ala
- 160 m²
- Kohteen tyyppi
- Paritalo
- Kerros
- 2
- Rakennusvuosi
- 1937
- Käyttöönottovuosi
- 1937
- Kohde myydään vuokrattuna
- Ei
- Vapautuminen
- Kaupanteon yhteydessä. Kauppa vaatii DVV:n hyväksynnän.
Tilat ja materiaalit
- Keittiön lattiat
- Muovimatto
- Keittiön seinät
- Maali ja puolipaneeli
- Keittiön varusteet
- Jääkaappi ja liesi
- Liesi
- sähköliesi
- Kylpyhuoneen lattiat
- Betoni
- Kylpyhuoneen varusteet
- WC-istuin
- WC Lukumäärä
- 2
- WC:n lattiat
- Muovimatto
- WC:n seinät
- Maali
- Makuuhuoneiden seinät
- Tapetti
- Makuuhuoneiden lattiat
- Muovimatto
- Olohuoneen seinät
- Tapetti
- Olohuoneen lattiat
- Muovimatto
- Kohteen säilytystilat
- Ullakko ja kellarikomero
- Sauna
- Kyllä
- Kiuas
- Puukiuas
Lisätiedot
- Lisätietoja kunnosta
- Rakennus vaatii perusteellisen remontin. Omistaja ei ole asunut kaupan kohteena olevassa talossa, eikä sen vuoksi ole tietoinen talon tai tarpeiston kunnosta.
- Ranta
- Ei rantaa
Taloyhtiö ja kiinteistö
- Tontin pinta-ala
- 810 m²
- Tontin omistus
- Vuokra
- Tontin tyyppi
- Tasamaatontti
- Tontin myyntityyppi
- Määräosa
- Maanvuokraaja
- Tampereen kaupunki
- Tontin vuosivuokra
- 3 965,80 €
- Vuokra-aika päättyy
- 30.04.2071
- Rakennusmateriaali
- Puu
- Lämmitysjärjestelmä
- Sähkö Tyyppi: sähköpatterilämmitys sähköpatterilämmitys
- Kattotyyppi
- Harjakatto
- Katemateriaali
- Pelti
- Rakennusoikeus e-luku
- 0.3
- Kohteesta on energiatodistus
- Ei lain edellyttämää energiatodistusta
- Tie perille
- Kyllä
- Kaavatilanne
- Asemakaava
- Kaavoitustiedot
- Tampereen kaupunki
- Asbestikartoitus
- Ei
