
Tätä asuntoa myy Mira Järvinen, Myyntipäälikkö, LKV, LVV
Roof Helsinki | ROOF Group Oy

Sijainti
Asuntoesittely
Remontoitava valoisasta kaksiosta Nurmijärven Kirkonkylän palveluiden kupeessa!
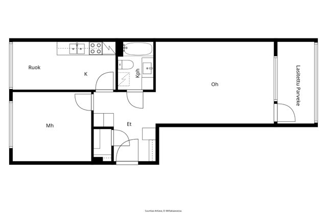
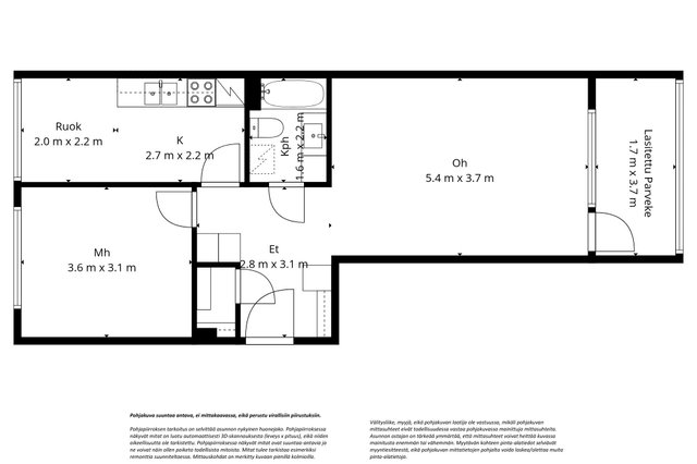
Tämä ensimmäisen kerroksen (ei katutasossa) koti sijaitsee kauimpana tiestä olevassa rapussa. Tilava ja valoisa olohuone, erillinen makuuhuone sekä lasitettu parveke tarjoavat hyvän pohjan kodille, joka kaipaa päivittämistä, asunto on alkuperäiskuntoinen ja remontoitava. Tässä on erinomainen mahdollisuus luoda juuri omannäköinen koti viihtyisällä alueella.
Asunto Oy Kylä-Kirkkari on vuonna 1973 rakennettu, hyvin hoidettu taloyhtiö, jossa on tehty isoja remontteja kuten parveke- ja julkisivusaneeraus, kattoremontti ja ikkunoiden uusiminen. Linjasaneerauksen suunnittelu on käynnissä. Yhtiöllä on yhteiskäytössä sauna, urheiluvälinevarasto ja kellaritiloja. Autopaikat ja -tallit ovat vuokrattavissa jonotusperiaatteella.
Parkkimäen alue Nurmijärven kirkonkylässä tarjoaa rauhallisen asuinympäristön kävelyetäisyydellä keskustan palveluista. Lähellä ovat kaupat, kirjasto, terveyspalvelut ja hyvät liikenneyhteydet.
TIEDUSTELUT JA YKSITYISESITTELYVARAUKSET:
Mira Järvinen LKV, LVV, 040 835 0271 tai [email protected]
OTATHAN YHTEYTTÄ JA VARAAT OMAN ESITTELYAJAN?
I can provide services also in English
Jag betjänar också på svenska.
GET A ROOF!
www.mirajärvinenlkv.fi
www.roof.fi
Perustiedot
- Sijainti
- Aleksis Kiven tie 15 A, 01900, Parkkimäki, Nurmijärvi
- Omistusmuoto
- Omistusasunto
- Huoneluku
- 2
- Asuinpinta-ala
- 56 m²
- Muu pinta-ala
- 0 m²
- Kokonaispinta-ala
- 56 m²
- Pinta-alan peruste
- Yhtiöjärjestyksen mukainen, Isännöitsijäntodistuksen mukainen, (Pinta-ala ei ole tarkistusmitattu ja todellinen pinta-ala voi olla suurempi tai pienempi, kuin ilmoitettu)
- Lisätiedot pinta-alasta
- Mainittu pinta-ala saattaa tämän ikäisessä kohteessa poiketa olennaisesti nykyisten standardien mukaan laskettavasta asuinpinta-alasta. Todellinen asuinpinta-ala voi olla yhtiöjärjestyksessä, isännöitsijäntodistuksessa ja esitteessä mainittua pienempi tai suurempi.
- Kohteen tyyppi
- Kerrostalo
- Kerros
- 1 / 3
- Rakennusvuosi
- 1973
- Käyttöönottovuosi
- 1973
- Kohde myydään vuokrattuna
- Ei
- Vapautuminen
- Heti
Hinta ja kustannukset
- Velaton hinta
- 30 000 €
- Myyntihinta
- 8 465,77 €
- Velkaosuus
- 21 534,23 €
- Yhtiövastike
- Hoitovastike 257,60 € / kk (4,60 € / m²), Rahoitusvastike 218,40 € / kk (3,90 € / m²), Yhtiövastike yhteensä 476 € / kk
- Saunamaksu
- 12 € / kk
- Vesimaksu
- 30 € / hlö / kk
- Neliöhinta
- 535,71 € / m²
- Lisätietoja maksusta
- Autopaikat; kylmä 5 €/kk, tolppa 15 €/kk, autotalli (iso) 50 €/kk, autotalli (pieni) 35 €/kk. Hallitukselle myönnetty valtuus tarvittaessa periä tai olla perimättä 1-2 kuukauden hoitovastike ja muuttaa pääomavastiketta korkotason oleellisesti muuttuessa, mikäli taloyhtiön taloudellinen tilanne niin vaatii. Valtuus on voimassa seuraavaan varsinaiseen yhtiökokoukseen asti. Taloyhtiön hallitukselle on annettu valtuutus periä (tai olla perimättä) ylimääräistä vastiketta yhtiön taloudellisen aseman tai maksuvalmiuden sitä vaatiessa
Tilat ja materiaalit
- Keittiön kuvaus
- Kodin koneet ovat iäkkää, eikä niiden taata toimivan.
- Keittiön lattiat
- Muovimatto
- Keittiön seinät
- Maali ja kaakeli
- Keittiön varusteet
- Jääkaappi
- Liesi
- Sähköhella
- Kylpyhuone
- Alkuperäinen kylpyhuone
- Kylpyhuoneen seinät
- Kaakeli ja maali
- Kylpyhuoneen lattiat
- Muovimatto
- Kylpyhuoneen varusteet
- WC-istuin, suihku, kylpyamme, peilikaappi, ja pesuallas
- Makuuhuoneiden seinät
- Maali
- Makuuhuoneiden lattiat
- Parketti
- Olohuoneen seinät
- Maali
- Olohuoneen lattiat
- Parketti
- Kohteen säilytystilat
- Vaatehuone ja häkkivarasto
- Sauna
- Ei
Lisätiedot
- Asunnon kunto
- Välttävä
- Näkymät
- Taloyhtiön piha-alueille.
- Parveke
- Lasitettu parveke
- Hissi
- Ei
Taloyhtiö ja kiinteistö
- Taloyhtiön nimi
- Asunto-Oy Kylä-Kirkkari
- Isännöitsijätoimisto
- Kiinteistö-Tahkola Helsinki Oy / Nurmijärven toimipiste
- Isännöitsijän nimi
- Pertti Louhi
- Isännöitsijän sähköposti
- [email protected]
- Isännöitsijän puhelin
- 0207481099
- Tontin pinta-ala
- 2 595 m²
- Tontin omistus
- Oma
- Rakennusmateriaali
- Betoni
- Lämmitysjärjestelmä
- Kaukolämpö
- Ilmanvaihto
- Huippuimuri
- Vesijohto
- Kunnallisvesi
- Viemäröinti
- Kunnallinen viemäriverkosto
- Kattotyyppi
- Loiva pulpetti
- Katemateriaali
- Huopa
- Lisätietoja kiinteistönhoidosta
- Huoltoyhtiö
- Kiinteistönhoidon lisätiedot
- Kiinteistöpalvelut Kiila Oy
- Taloyhtiössä on
- Kellarikomero, urheiluvälinevarasto, lastenvaunuvarasto, ja jäähdytetty kellari
- Lunastusoikeus yhtiöllä
- Ei
- Kohteesta on energiatodistus
- Kyllä
- Energialuokka
- E2018
- Energiatodistuksen voimassaolo
- 20.10.2033
- Taloyhtiön autopaikat
- Autopaikkojen jako jonotusperusteisesti. Yhtiökokouksessa 2025 tehty päätös vuokrata autotalleja myös yhtiön ulkopuolisille hintaan 100 €/kk iso ja 80 €/kk pieni, mikäli talleja on käyttämättömänä.
- Autotallit
- 10
- Sähköpistokepaikkoja
- 6 kpl
- Piha-autopaikkoja
- 12 kpl
- Taloyhtiöllä sauna
- Kyllä
- Kaavatilanne
- Asemakaava
- Lisätiedot kaavoituksesta
- Nurmijärven kunta asiakaspalvelusihteeri / kaavoitus Pirkko Veijanen [email protected] 040 317 2394 Lähialueella vireillä asemakaavamuutoksia: 2-245 Pratikankuja 11 Asemakaavamuutoksen laatiminen käynnistetään Kirkonkylän keskustan alueella, Pratikankujan länsipuolella. Asemakaavamuutoksessa mahdollistetaan kunnan omistuksessa olevan asuinliikerakennusten korttelialueen muuttaminen keskustaluonteiseen asuinrakentamiseen. Asemakaavaehdotusta valmistellaan Kirkonkylän kehittämissuunnitelman periaatteiden mukaisesti. 2-247 korttelin 2021 tontti 2 (NYK) Suunnittelualue sijaitsee Pratikankujan, Keskustien ja Vilho Askolan raitin välisellä alueella. Asemakaavamuutoksen tavoitteena on mahdollistaa lukion sijoittuminen alueelle ja samalla muodostaa omat kiinteistöt nykyisen tontin alueella oleville rakennuksille, joille ei ole tarvetta kunnan palvelutuotannon kannalta. Asemakaavamuutoksessa päivitetään myös olemassa olevien rakennusten suojelutilanne. Lisäksi tarkastellaan alueen pysäköintitarvetta sekä huomioidaan olemassa oleva ja tarvittava yhdyskuntatekninen huolto. Lukion ja yläasteen sijoittumisen vaihtoehtoja on tutkittu uudelleen syksyllä 2024, ja asemakaavatyötä jatketaan, kun kunnanvaltuusto on tehnyt sijoittumisesta päätöksen. Mikäli koulutoiminnot päätetään sijoittaa kokonaisuudessaan Krannilan liikuntapuiston alueelle, tutkitaan korttelin 2021 maankäyttöä uudelleen.
- Asbestikartoitus
- Ei
- Lisätietoa asbestikartoituksesta
- Ennen vuotta 1994 valmistuneiden rakennusten korjaustöiden osalta otettava huomioon Laki eräistä asbestipurkutyötä koskevista vaatimuksista 684/2015 sekä Valtioneuvoston asetus asbestityön turvallisuudesta 798/2015. Mikäli huoneistossa aikoo tehdä tai teettää remontin, osakkaan tulee tietyissä tapauksissa teettää asbestikartoitus purettaviin materiaaleihin. Asbestikartoitusvelvollisuus ei koske rakennuksessa tehtäviä vähäisiä töitä, kuten reikien poraamista seiniin tai kattoon.
- Taloyhtiön kiinnitykset
- 1 056 300 €
- Taloyhtiön kiinnitysten päivämäärä
- Isännöitsijäntodistuksen päivämäärän mukainen
Tehdyt remontit
2023: Kurtturuusujen poisto.
2022: Linjasaneerauksen ja märkätilakorjausten hankesuunnittelu/suunnittelu (TeknoPlan).
2021: Aluevarusteiden kunnostus. Ilmanvaihdon nuohous ja säätö.
2020: Hulevesiviemäröinti.
2019: Lukituksen uusiminen.
2017–2018: Ikkunoiden uusiminen. Julkisivu- ja parvekesaneeraus. Vesikatteen uusiminen.
2016: Julkisivu- ja parvekesaneerauksen suunnittelu.
2014: Julkisivu- ja parvekekuntotutkimus.
2012: LVV-kuntotutkimus.
2009: Ilmanvaihdon nuohous. Roskakatoksen uusiminen.
2008: Lämmönvaihtimien uusiminen.
Tulevat remontit
2025: Suunniteltu vakiopaineventtiilin asentaminen. Suunniteltu roskakatokseen lukollisten ovien rakentaminen.
2025–2029: Suunniteltu huoneistojen märkätilojen vesieristykset (yhtiö kustantaa materiaalit).
2026–2027: Suunniteltu patteriventtiilien ja linjaventtiilien uusiminen sekä verkoston perussäätö (linjasaneerauksen yhteydessä). Suunniteltu takapihan portaiden pinnoituskorjaus putkiremontin jälkeen (nyt laitettu suojamatot).
2027–2029: Suunniteltu käyttövesi- ja viemäriverkoston saneerausvaraus. Suunniteltu rappukäytävien kunnostus (linjasaneerauksen yhteydessä).
Lukijan on huomattava, että hallituksen kunnossapitotarveselvitys 2025-2029 on hallituksen näkemys kunnossapitotarpeista viiden vuoden aikana. Päätökset mahdollisesti käynnistettävien kunnossapitotöiden ja muutostöiden suunnittelusta, toteutuksesta sekä rahoituksesta tehdään yhtiökokouksessa erikseen. Selvityksellä mainitut toimenpiteet saattavat aikaistua tai myöhentyä. Myyjä ei vastaa taloyhtiön myöhemmin päättämistä kunnossapitotoimenpiteistä ja niistä aiheutuvista huoneistolle tulevista kustannuksista.