Arimaantie 240
03850, Pusula, Lohja
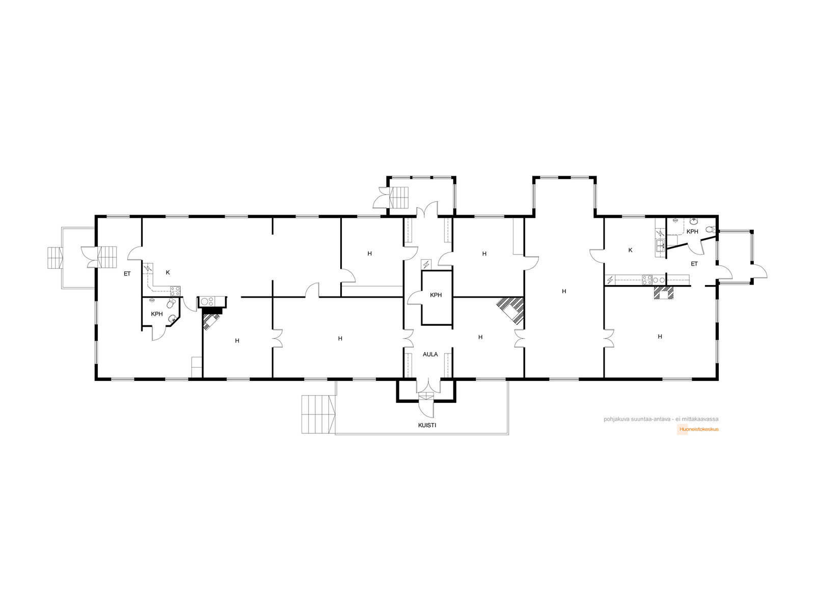
8h, 2k, s, 3wc, varastotiloja
440 000 €
349 m²

Tätä asuntoa myy Ida Wiik, Asuntomyyjä
Huoneistokeskus Oy | Karkkila

Sijainti
Asuntoesittely
Arimajärven rannalle 1800-luvulla perustetun Arimaan lasitehtaan entinen päärakennus etsii nyt uutta omistajaa. Ihastuttava vanha kartano kohoaa upeiden ulkoilumaastojen lomassa ja onkin vain mielikuvituksesta kiinni mitä kaikkea täällä voit rakentaa! Hulppeaan n. 10,85 hehtaarin kokonaisuuteen sisältyy vuonna 1864 rakennettu suuri kartano, pyöröhirsinen 2000-luvulla rakennettu rantamökki ja mökin vieressä sijaitseva kaavoitettu rantatontti, jolla rakennusoikeutta 150m2. Tilakeskuksella on lisäksi 7 ulkorakennusta, muun muassa iso konehalli ja verstas. Alueella on paljon metsää ja kohteen länsipuolella n. 0,73 hehtaaria peltoa. Omaa rantaviivaa Arimajärvelle on yhteensä noin 350m!. Kohteeseen sisältyy myös alueen itälaidan n. 0,6 hehtaarin kokoinen lohkottu kaavoittamaton asuinrakennuspaikka, jota on toistaiseksi käytetty metsätalouden harjoittamiseen.
Vastaavaa kohdetta ei ole usein tarjolla. Ota yhteyttä niin mennään ihastumaan, kun sinulle sopii!
Vain yksityisnäytöt.
Pohjakuva

Perustiedot
- Sijainti
- Arimaantie 240, 03850, Pusula, Lohja
- Huoneluku
- 6
- Asuinpinta-ala
- 349 m²
- Muu pinta-ala
- 150 m²
- Kokonaispinta-ala
- 499 m²
- Lisätiedot pinta-alasta
- Rakennuksen pinta-alaa ei ole tarkistusmitattu ja ilmoitettu pinta-ala voi poiketa nykyisestä laskentatavasta.
- Kohteen tyyppi
- Omakotitalo
- Kerros
- 1
- Rakennusvuosi
- 1864
- Lisätietoja rakennusvuodesta
- 23.9.1986 on tehty asuinrakennuksen peruskorjauskatselmuspöytäkirja. 6.4.2001 on tehty saunamökin loppukatselmus. 1975 Kesämökin rakennuspäätös 1979 Kalustosuoja
- Käyttöönottovuosi
- 1864
- Kohde myydään vuokrattuna
- Ei
- Vapautuminen
- Sopimuksen mukaan
Hinta ja kustannukset
- Myyntihinta
- 440 000 €
- Sähköliittymä siirtyy
- Kyllä
- Neliöhinta
- 1 260,74 € / m²
- Lisätietoja maksusta
- Tietoja tiemaksuista: Arimaantie on yleinen tie, muihin täytyy mahdolliset tiekunnat perustaa ja maksut määräytyvät siten. Lisätietoja vastikkeista: Vesi ja jätevesi määräytyy kulutuksen mukaan, Roskn roll on ollut n. 315€/vuosi. Hyrkkölän vesiosuuskunnan perusmaksu 74,40€/vuosi, vesimaksu 2,17€/m3. Likakaivojen tyhjennys n.100€/vuosi. Hinnat Envorilla viime tyhjennyksessä 2021: Kaivojen imua 120, 49€/h ja sakokaivoliete 18,76€/m3. Auraukset, ruohonleikkuut yms. noin 500 €/ vuosi. Mainitut kustannukset koskevat yhden henkilön taloutta. Kustannukset riippuvat suuresti mm. perhekoosta, käyttötottumuksista, säistä, sähkösopimuksesta, tilalla harjoitettavasta toiminnasta jne. Suojeltujen rakennusten korjauksiin voi hakea rakennusperinnön hoitoavustusta. Esimerkiksi 2020 avustus huoltomaalaukseen 50%.
Tilat ja materiaalit
- Keittiön kuvaus
- Jääkaappi ( vain länsipäädyssä) , pakastekaappi ( vain länsipäädyssä) , sähköliesi ( länsipäädyn keittiössä tavallinen sähköliesi), itäpäädyssä keraaminen liesi, liesituuletin ( länsipäädyssä vanha) astianpesukone molempien päätyjen keittiöissä, kiinteät valaisimet ja kaapistot. Molemmissa päädyissä puuhella.
- Kylpyhuone
- Kartanossa on 3kpl suihku-, kylpyhuoneita. Länsipäässä on peilikaappi, keskimmäisessä peili, ja itäpäässä allaskaapisto. Itä-, ja länsipäässä märkätiloissa myös lattialämmitys sekä kiinteät valaisimet.
- WC Lukumäärä
- 3
- Erillinen WC
- Itä-, ja länsipäässä laatoitetut lattiat ja kaakeloidut seinät. Keskellä lattiat laattaa ja seinät muovia.
- Makuuhuoneiden lukumäärä
- 4
- Säilytystilojen kuvaus
- Talossa on suuri kellari/ kuin autotalli, lisäksi koko talon mittainen korkea avovintti sekä ulkovarastoja
- Kohteen säilytystilat
- Talossa on suuri kellari/ kuin autotalli lisäksi koko talon mittainen korkea avovintti sekä ulkovarastoja
- Sauna
- Kyllä
- Saunan kuvaus
- Itäpäässä sijaitsee infrapunasauna, joka vaatii huoltoa.
Lisätiedot
- Asunnon kunto
- Tyydyttävä
- Ranta
- Oma ranta
- Omaa rantaa (m)
- 350
- Lisätietoja rannasta
- Ranta-alue hiekka-, / sorapohjainen ja osittain pehmeäpohjaista, matalaa ranta-aluetta.
- Vesistön nimi
- Arimaa
- Lisätietoa seinien pintamateriaaleista
- Itäpäässä seinät on maalattu. Keskellä pinkopahvia ja vanhaa tapettia sekä maalia. Länsipäässä tapettia ja maalia.
- Lisätietoa lattioiden pintamateriaaleista
- Itäpäässä lattia on laatoitettu ja laminaattia. Keskiosassa, sekä länsipäädyssä puuta, muovimattoa ja vanhaa parkettia. Länsipäädyn kosteat tilat on laatoitettu.
Taloyhtiö ja kiinteistö
- Tontin pinta-ala
- 10,85 ha
- Tontin omistus
- Oma
- Tontin tyyppi
- Rinnetontti
- Tontin myyntityyppi
- Koko tontti
- Tontin tiedot
- Upea ja vehreä tontti, mikä käsittää useita rakennuksia ja järvenrantaa. Talouskeskus avaralla mäellä, päärakennukselta upeat näkymät Arimaa-järvelle. Jos innostut kohteesta, on mahdollisuus erikseen ostaa Arimaan rannasta kaksi rakennettua vapaa-ajankiinteistöä sekä kaksi rakentamatonta tonttia ja vielä Kyläntakanen-lammen alueelta neljä vapaa-ajanrakennuksen rakennuspaikkaa. Kysy lisätiedot välittäjältä.
- Rakennusmateriaali
- Hirsi, betoni ja puu
- Lämmitysjärjestelmä
- Maalämpö sähköinen lattialämmitys, vesikiertoinen patterilämmitys
- Lisätietoja viemäristä
- Jätevesijärjestelmä tulee uusia seuraavan peruskorjauksen yhteydessä.
- Kattotyyppi
- harja
- Katon kunto
- hyvä, maalattu 2020
- Katemateriaali
- pelti
- Tie perille
- Kyllä
- Kaavatilanne
- Ranta-asemakaava, kaavoittamaton ja rantakaava
- Kaavoitustiedot
- Lohja kaupunki. Alueella Arimaan rantakaava ja yleiskaava.
- Kuntotutkimus tehty
- 01.01.2021
- Asbestikartoitus
- Ei
- Lisätietoa asbestikartoituksesta
- Rakennus on valmistunut ennen vuotta 1994 eikä asbestikartoitusta ole tehty.
- Muut rakennukset
- muita rakennuksia, asuinrakennus, varasto, kuivuri, talousrakennus sikala
- Lisätietoa muista rakennuksista
- Kauppaan kuuluvat määräalat ja tilat, yhteensä n. 11,5ha: Tilasta 444-515-4-2 ARIMAAN KARTANO (Kantatila 96,3ha) myydään määräala n. 10,04ha Tilasta 444-515-4-1 VIINIMÄKI (Kantatila 2,3ha) määräala n. 0,87ha Tila 444-515-4-4 KAISANIEMI (asuinrakennuspaikka) kokonaan n. 0,59ha Lisähintaan mahdollisuus ostaa: Niemen mökki (n. 50m2) n. 0,75ha kantatilasta Arimaan Kartano 444-515-4-2 100 000€. Rakennusoikeus rantakaavan mukaan Niemessä 70m2. Viinimäen mökki (n. 70m2) n. 0,8ha kantatilasta Arimaan Kartano 100 000€. Rakennusoikeus rantakaavan mukaan Viinimäellä 150m2. Hirvenkallion lomarakennuspaikat 2 kpl, yhteensä 1,25ha kantatilasta Arimaan Kartano 75 000€/kpl. Rakennusoikeus Hirvenkalliolla 150m2 per rantatontti. Kyläntakasen lammelta 4 lomarakennuspaikkaa yhteensä n. 4,75ha yhteishintaan 100 000€. Kyläntakasen ranta-asemakaavan alueella RA-1 loma-asuntojen rakennuspaikoilla rakennusoikeus 120 k-m2 per tontti. Yksi tonteista on lohkomaton. Muut kolme tonttia ovat 444-515-3-45 LEHTORANTA (RA-1 tontti) kokonaan 0,4050 ha, 444-515-3-46 MÄKILAAKSO (RA-1 tontti) kokonaan 0,4130 ha, 444-515-3-48 MÄKIRANTA (RA-1 tontti) kokonaan 0,4770 ha. Lisäksi tonttien ympäriltä määräala tilasta Kolli 444-515-3-55 n. 3,455 ha karttaluonnoksen mukaan.
