Asemapäällikkö 2 A 13
60100, Keskusta, Seinäjoki
2h, kt, s
236 600 € (4 422,43 € / m²)
53,5 m²

Tätä asuntoa myy Justus Kareno, Kiinteistönvälittäjä, LVK, YKV, kaupanvahvistaja
Huoneistokeskus Oy | Seinäjoki

Sijainti
Asuntoesittely
Veturikortteli on Seinäjoen vilkkaan ja näyttävän matkakeskuksen yhteydessä. Paraatipaikalla sijaitsevasta uudesta A-energialuokan Asemapäällikkö-asuintalosta on kävelymatka kauppaan, torikahville, elokuviin tai kulttuurin äärelle Aalto-keskukseen. Ideaparkiin shoppailemaan on vain pari kilometriä. Sijainti matkakeskuksen kyljessä takaa parhaat mahdolliset yhteydet kaikkiin ilmansuuntiin junalla, bussilla ja omalla autolla.
Modernissa keskustakodissa sinua odottavat valoisat huoneet, laadukkaat materiaalit ja tehokkaat neliöt. Lattialämmityksen ansiosta pattereita ei tarvita, joten vähintään yksi ikkuna kodissa ulottuu lattiaan saakka! Kodissa on joko lasitettu parveke, jonka voi sisustaa viihtyisäksi kesäkeitaaksi, tai ranskalainen parveke tuomassa kotiin lisää tilan tuntua. Monessa kodissa rentoudutaan oman saunan leppoisissa löylyissä. Kodin ensimmäisenä asukkaana pääset nauttimaan juuri paketista otetuista keittiön kodinkoneista, ihka uudesta kylpyhuoneesta ja uuden kodin puhtaista pinnoista.
Asemapäällikön asukkaille on osoitettu merkitsemättömät autopaikat viereen rakennettavasta Seiparkin hallinnoimasta pysäköintitalosta. Lämmittämättömästä pysäköintitalosta autopaikan vuokraus käy näppärästi, kun paikkaa ei tarvitse omistaa. Kulku pysäköintitaloon tapahtuu uudelta kotikadulta portaita tai hissillä.
Talojen keskelle tulee vehreä sisäpiha, jossa istutusten ja leikkipuiston lisäksi kohoaa myös yksi korttelin viidestä taideteoksesta. Talossa on harrastetila, pesupaikka koirien tassuille ja kumppareille sekä lämmin pyörävarasto.
Valitse mieleisin omaksi kodiksesi tai sijoitusasunnoksi. Huomioithan, että Airbnb-toiminta ei ole näissä asunnoissa sallittua.
Seinäjoen Asemapäällikön asukkaana voit hankkia elämääsi helpottavia palveluita ja apua arjen rutiineihin YIT Plussan palvelutorilta. Helppokäyttöisen digitaalisen YIT Plus -palvelun avulla pysyt ajan tasalla kotisi ja taloyhtiösi asioista. Palvelun tunnukset saat heti kaupanteon yhteydessä. https://www.yit.fi/asunnot/asumisen-palvelut/yit-plus
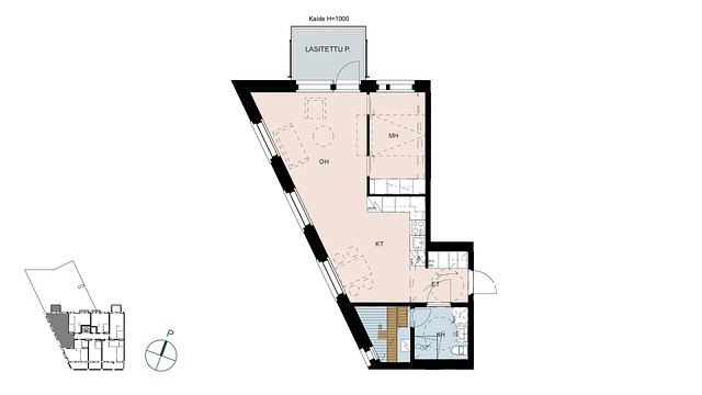
Pohjakuva

Perustiedot
- Sijainti
- Asemapäällikkö 2 A 13, 60100, Keskusta, Seinäjoki
- Omistusmuoto
- Omistusasunto
- Huoneluku
- 2
- Asuinpinta-ala
- 53,5 m²
- Muu pinta-ala
- 0 m²
- Kokonaispinta-ala
- 53,5 m²
- Pinta-alan peruste
- Isännöitsijäntodistuksen mukainen, Yhtiöjärjestyksen mukainen
- Kohteen tyyppi
- Kerrostalo
- Kerros
- 3 / 6
- Rakennusvuosi
- 2024
- Käyttöönottovuosi
- 2024
- Kohde myydään vuokrattuna
- Ei
- Vapautuminen
- Heti
Hinta ja kustannukset
- Velaton hinta
- 236 600 €
- Myyntihinta
- 94 640 €
- Velkaosuus
- 141 960 €
- Yhtiövastike
- Hoitovastike 315,65 € / kk, Rahoitusvastike 404,59 € / kk, Yhtiövastike yhteensä 720,24 € / kk
- Sähköliittymä siirtyy
- Kyllä
- Neliöhinta
- 4 422,43 € / m²
- Lisätietoja maksusta
- Lisätietoja vastikkeista: Normaalit asunto-osakkeen kustannukset mm. varainsiirtovero, vakuutukset, sähkö oman sopimuksen mukaan
Tilat ja materiaalit
- Keittiön seinät
- Maali
- Keittiön varusteet
- Jääkaappipakastin, erillisuuni, astianpesukone, liesi, mikroaaltouuni, ja liesituuletin
- Liesi
- Induktioliesi ja integroitu erillisuuni
- Kylpyhuoneen seinät
- Kaakeli
- Kylpyhuoneen lattiat
- Laatta
- Kylpyhuoneen varusteet
- Pesukoneliitäntä, wc-istuin, suihku, allaskaappi, ja lattialämmitys
- Makuuhuoneiden lukumäärä
- 1
- Makuuhuoneiden seinät
- Maali
- Olohuoneen seinät
- Maali
- Sauna
- Kyllä
- Kiuas
- Sähkökiuas
Lisätiedot
- Asunnon kunto
- Uusi
- Parveke
- Lasitettu parveke
- Parvekkeen ilmansuunta
- Pohjoinen
- Hissi
- Kyllä
- Muuta kauppaan kuuluvaa
- Lisätietoja sisältyvistä varusteista: huoneistokohtainen ilmanvaihtokone, sälekaihtimet/rullaverhot
- Muut kaupan kannalta merkittävät tiedot
- Yhteisvastuullisen taloyhtiölainan maksamisen turvaamiseksi, jokaista asuntoa koskien, jolla on alkuperäistä yhtiölainaosuutta jäljellä 50 % tai enemmän, taloyhtiö kerää 3 kuukauden pääomavastikkeen suuruisen pääomavastikevakuuden. Ostajan tulee hakea omistusoikeuden rekisteröintiä Maanmittauslaitokselta kaupanteon jälkeen. Tämän kustannuksista vastaa ostaja. Huoneistoja ei ole sallittua käyttää tai vuokrata huoneistohotellitarkoitukseen taikka majoitusliiketoimintaan, eikä vuokrata tai muutoin luovuttaa useisiin peräkkäisiin lyhytaikaisiin vuokrasuhteisiin taikka käyttöön, joka rinnastuu lyhytaikaiseen majoitustoimintaan.
Taloyhtiö ja kiinteistö
- Taloyhtiön nimi
- Asunto Oy Seinäjoen Asemapäällikkö
- Isännöitsijätoimisto
- Oiva Isännöinti
- Tontin pinta-ala
- 2 684 m²
- Tontin omistus
- Vuokra
- Maanvuokraaja
- Seinäjoen kaupunki
- Tontin vuosivuokra
- 42 717,02 €
- Vuokra-aika päättyy
- 02.06.2072
- Rakennusmateriaali
- Betoni
- Lämmitysjärjestelmä
- Kaukolämpö
- Kattotyyppi
- harja
- Katemateriaali
- pelti
- Lisätietoja kiinteistönhoidosta
- Huoltoyhtiö
- Taloyhtiössä on
- Urheiluvälinevarasto, kaapeli-tv, väestönsuoja, ja huoneistokohtaiset varastot
- Kohteesta on energiatodistus
- Kyllä
- Energialuokka
- A2018
- Palvelut
- S-Market Megakeskus n. 500 m.
- Koulut
- Marttila n. 500 m.
- Lisätietoja huoneiston autopaikasta
- Autohallipaikat parkkitalosta vuokrattavissa Seiparkilta kuukausihintaan 79 € / kk.
- Lisätietoja taloyhtiön autonsäilytyspaikoista
- Parkkihallipaikat vuokrattavissa Seiparkilta.
- Kaavatilanne
- Asemakaava
- Lisätiedot kaavoituksesta
- Seinäjoen kaupunki, kaavoitus.
- Rakennusvaihe
- Valmis
- Taloyhtiön kiinnitykset
- 4 890 000 €