Asemapolku 1
80400, Lahdensuo, Liperi
155 000 €
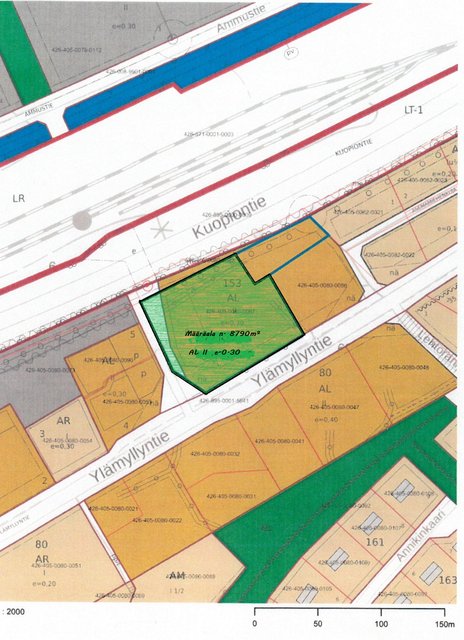
8 790 m²

Tätä asuntoa myy Petri Nieminen
LKV OGZ | Jokaisen Huoneistokauppa Oy *

Sijainti
Asuntoesittely
Ylämylyllä rakennuspaikka asuin/liiketiloille rakennusoikeutta n.2637m² kaavamääräysten mukaisesti
Ylämyllyn ydinkeskustan välittömässä läheisyydessä, myytävänä n. 8790m² määräala puustoineen Huoltokangas nimisestä tilasta.
Asemakaavamerkintä korttelissa 153 AL II e-0.30 rakennusoikeutta n.2 637m² kaavamerkinnän mukaisesti.
Tässä mainio rakennuspaikka olipa kyseessä asuminen, liiketilat tai näiden yhdistelmä.
Otahan yhteyttä asian tiimoilta
Petri Nieminen 040 837 5508Perustiedot
- Sijainti
- Asemapolku 1, 80400, Lahdensuo, Liperi
- Kohteen tyyppi
- Muu tontti
- Kohde myydään vuokrattuna
- Ei
- Vapautuminen
- Heti
Hinta ja kustannukset
- Velaton hinta
- 155 000 €
- Myyntihinta
- 155 000 €
Tilat ja materiaalit
Lisätiedot
- Muuta kauppaan kuuluvaa
- Määräalalla oleva puusto.
Taloyhtiö ja kiinteistö
- Tontin pinta-ala
- 8 790 m²
- Tontin omistus
- Oma
- Tontin tyyppi
- Tasamaatontti
- Tontin myyntityyppi
- Koko tontti
- Tontin tiedot
- loivasti polveilevaa maapohjaa, vesi sekä viemärilinjat kulkevat määräalalla. Pääosin männikköä, jonkin verran sekapuustoa.
- Lisätietoja vesiputkesta
- Määräalan poikki kulkee vesilinja ( ei liittymää valmiina)
- Lisätietoja viemäristä
- Määräalan poikki kulkee viemärilinja ( ei viemäri liittymää)
- Rakennusoikeus
- 2637
- Lisätietoa rakennusoikeudesta
- Rakennusoikeus kohdistuu myytävään määräalaan.
- Rakennusoikeus e-luku
- 0.3
- Kohteesta on energiatodistus
- Kohteella ei energiatodistuslain nojalla tarvitse olla energiatodistusta
- Kiinteistöön kuuluu
- Määräalana Huoltokangas nimisestä tilasta n.8790m² tilalla oleva vuokraoikeus ei kuulu kaupan piiriin.
- Tie perille
- Kyllä
- Paikallistiedot
- Ylämyllyn palvelut
- Kaavatilanne
- Asemakaava ja yleiskaava
- Kaavoitustiedot
- Voimassa olevan asemakaavanmerkintä 153 AL II e-0.30
