Asikkalantie 250
16800, Hämeenkoski, Hollola
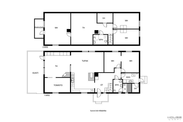
11h, tupakx2, kphx3, sx2, vh, kellari, varasto, autotalli
189 000 €
330 m²

Tätä asuntoa myy Timo Friman, Kiinteistönvälittäjä LKV
House Asunnot Lahti Oy

Sijainti
Asuntoesittely
Tämä tilava omakotitalo sijaitsee rauhallisella alueella maaseutumaisemissa Hollolan Hämeenkoskella, tarjoten ainutlaatuisen mahdollisuuden yhdistää asuminen ja luonnonläheisyys. Talo on rakennettu kahdessa vaiheessa, pääosin vuonna 1990 ja toinen osa vuonna 2000, ja se tarjoaa yhteensä 330 neliömetriä asuintilaa. Suuri 4828 neliömetrin tontti tarjoaa runsaasti tilaa ulkoiluun ja puutarhanhoitoon.
Talo tarjoaa monipuoliset tilat isommallekin perheelle tai vaikka kahdelle sukupolvelle. Seitsemän makuuhuonetta, kaksi tupakeittiötä ja kolme kylpyhuonetta takaavat, että tilaa riittää kaikille. Lisäksi talossa on kaksi saunaa, joista toinen kaipaa vielä viimeistelyä, mutta tarjoaa mahdollisuuden luoda juuri oman näköinen saunaelämys. Kolme uutta ilmalämpöpumppua takaavat energiatehokkaan asumisen.
Viime vuosina talossa on tehty useita remontteja, kuten yläkerran huoneiden yhdistäminen ja keittiön uusiminen. Päärakennuksen katto on saanut uuden pinnoitteen, ja lähes kaikki seinät sekä sisäkatot on maalattu. Vaikka osa remonteista on vielä kesken, tarjoaa tämä talo mahdollisuuden viimeistellä se omien toiveiden mukaisesti.
Täällä on toiminut aikaisemmin perhekoti ja Minnesota hoitola, joten myös mahdollisuuksia yrityksen pitämiseen löytyy!
Pihapiiristä löytyy myös tilava autotalli ja varastotilat, jotka tarjoavat runsaasti säilytystilaa. Lisäksi pihalla on palju, joka kutsuu rentoutumaan tähtitaivaan alla.
Tartu tilaisuuteen ja tule tutustumaan tähän ainutlaatuiseen kotiin, joka tarjoaa mahdollisuuden nauttia maaseudun rauhasta ja tilasta vain lyhyen matkan päässä Hollolan palveluista.
Tiedustelut ja myynti
Timo Friman LKV
050 5541974
[email protected]
Perustiedot
- Sijainti
- Asikkalantie 250, 16800, Hämeenkoski, Hollola
- Huoneluku
- 11
- Asuinpinta-ala
- 330 m²
- Muu pinta-ala
- 62 m²
- Kokonaispinta-ala
- 392 m²
- Pinta-alan peruste
- Pinta-ala ei ole tarkistusmitattu ja todellinen pinta-ala voi olla suurempi tai pienempi, kuin ilmoitettu
- Lisätiedot pinta-alasta
- Ei tarkistusmitattu. Pinta-ala voi siis olla edellä mainittua pienempi tai suurempi.
- Kohteen tyyppi
- Omakotitalo
- Kerros
- 2
- Rakennusvuosi
- 2000
- Lisätietoja rakennusvuodesta
- Päärakennus valmistunut 1990 pinta-ala 266/190m2. Talo 2 valmistunut 2000 pinta-ala 140m2. Autotalli 62m2.
- Käyttöönottovuosi
- 2000
- Kohde myydään vuokrattuna
- Ei
- Vapautuminen
- Heti
Tilat ja materiaalit
- Keittiön lattiat
- Laminaatti
- Keittiön seinät
- Maali
- Keittiön varusteet
- Jääkaappi, uuni, liesi, liesituuletin, ja astianpesukone
- Liesi
- Keraaminen liesi
- Kylpyhuoneen seinät
- Kaakeli
- Kylpyhuoneen lattiat
- Laatta
- Kylpyhuoneen varusteet
- WC-istuin ja suihku
- Makuuhuoneiden lukumäärä
- 7
- Makuuhuoneiden lattiat
- Laminaatti, lauta ja muovimatto
- Olohuoneen seinät
- Maali ja paneeli
- Olohuoneen lattiat
- Laminaatti ja lauta
- Kodinhoitohuoneen seinät
- Maali
- Kodinhoitohuoneen lattiat
- Laatta
- Kohteen säilytystilat
- Vaatehuone, kylmä ulkovarasto ja kaapistot
- Sauna
- Kyllä
- Saunan kuvaus
- Saunasta puuttuu paneelit ja lauteet
- Takka
- Varaava takka
Lisätiedot
- Asunnon kunto
- Tyydyttävä
- Lisätietoja kunnosta
- Osa remonteista keskeneräisiä
- Parveke
- On parveke
- Terassi
- Kyllä
- Hissi
- Ei
- Muuta kauppaan kuuluvaa
- Palju Polttopuut kuuluvat kauppaan
- Kauppaan ei kuulu
- Irtaimisto
Taloyhtiö ja kiinteistö
- Tontin pinta-ala
- 4 828 m²
- Tontin omistus
- Oma
- Tontin tyyppi
- Tasamaatontti
- Tontin myyntityyppi
- Koko tontti
- Tontin tiedot
- Samalla myydään tila 283-407-1-208 638m2
- Rakennusmateriaali
- Betoni ja puu
- Lämmitysjärjestelmä
- Sähkö Kustannukset: 25000 kWh / vuosi Ilmalämpöpumppu Lattialämmitys
- Ilmanvaihto
- Painovoimainen ilmanvaihto
- Vesijohto
- Porakaivo
- Viemäröinti
- Pienpuhdistamo
- Lisätietoja viemäristä
- Pienpuhdistamo WehoPuts 20
- Kattotyyppi
- Harjakatto
- Katemateriaali
- Pelti
- Rakennusoikeus
- 483
- Kohteesta on energiatodistus
- Ei lain edellyttämää energiatodistusta
- Tie perille
- Kyllä
- Kaavatilanne
- Yleiskaava ja osayleiskaava
- Rakennusvaihe
- Valmis
- Asbestikartoitus
- Ei
- Muut rakennukset
- Autotalli ja leikkimökki
Tehdyt remontit
2023-2025 Kph, khh, (osittain kesken) päätalon yläkerran 2huoneen yhdistäminen, päätalon pelti katon pinnoitus, päätalon melkein kaikki seinät/sisä katot maalattu, toisen talon uusi lämminvesivaraaja, 3 uutta ilmalämpöpumppua, veden puhdistus hiekat vaihdettu, päätalon keittiö uusittu 2010
