Askolantie 9
00600, Koskela, Helsinki
5h, k, kph(2), s, eril.wc, kellari, p, terassi, ulkovaja
639 000 €
136 m²

Tätä asuntoa myy Santeri Carlsson, Kiinteistönvälittäjä, LKV, LVV, KiAT
Roof Helsinki | ROOF Group Oy

Sijainti
Asuntoesittely
Ihastuttava omakotitalo Koskelassa!
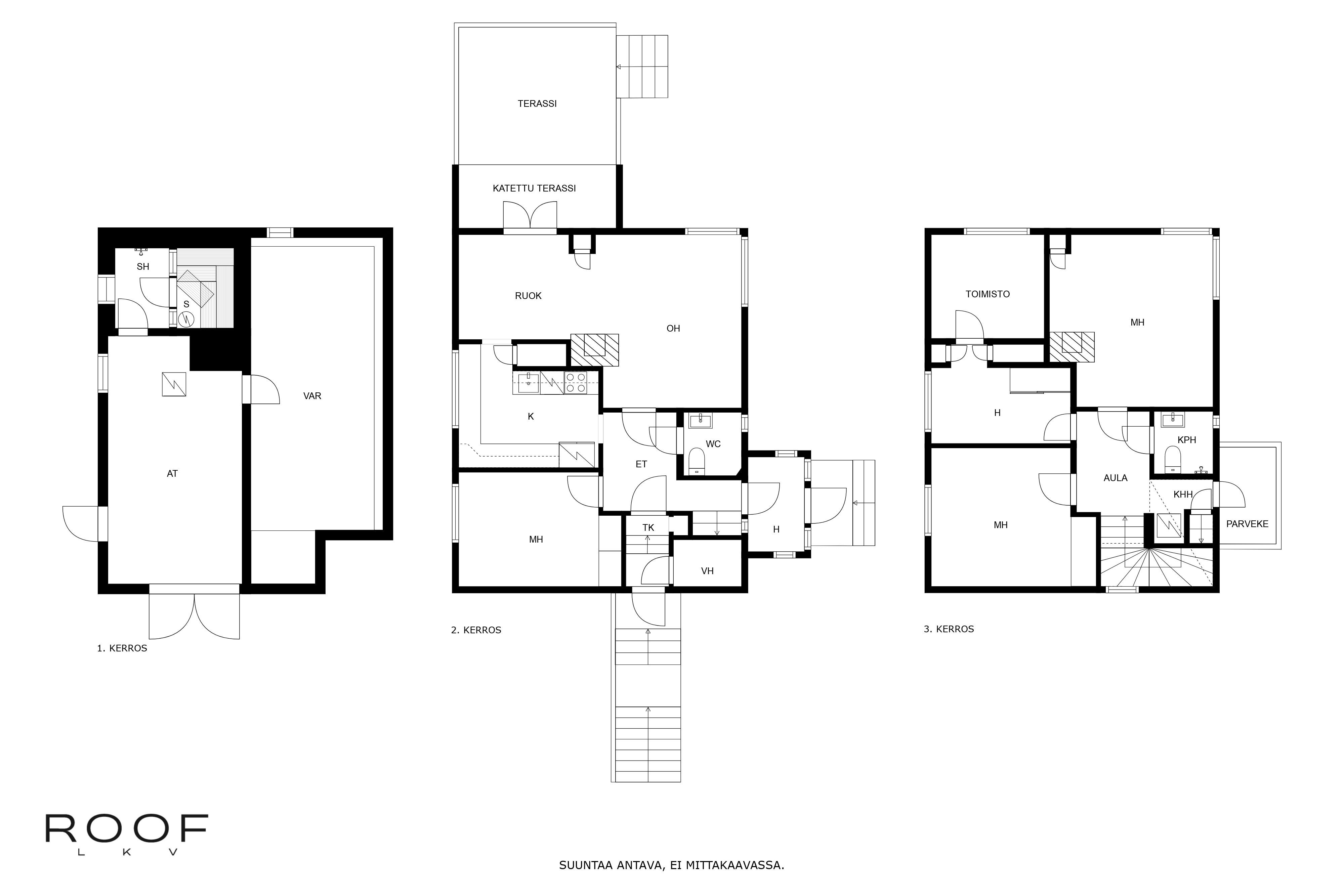
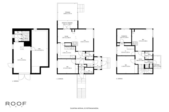
Vuonna 1940 rakennetussa talossa on kodikas tunnelma sekä monipuolinen pohjaratkaisu. Talo on vehreällä ja suojaisalla tontilla. Taloa on remontoitu viimevuosina ahkerasti ja pidetty hyvässä kunnossa.
Keskikerroksessa löytyy olohuone, makuuhuone, wc, keittiö, ruokailutila, josta tila jatkuu terassille. Yläkerrassa on kolme makuuhuonetta, joista yksi voi toimia työ- tai vierashuoneena, sekä kylpyhuone. Kellaritiloissa löytyy kylpyhuone saunalla sekä isot säilytystilat moneen eri käyttöön. Lämmitysmuotona kaukolämpö.
Pientaloidylli keskellä Helsinkiä, jossa luonto-ja ulkoilureitit alkavat talon kulmalta. Vantaanjoki, Pikkukosken uimaranta, Annala sekä Vanhankaupunginlahti ovat nopeasti saavutettavissa kävellen tai pyöräillen. Läheltä kulkee loistavat liikenneyhteydet. Bussiyhteydet kulkevat vierestä ja lyhyen matkan päästä löytyy Oulunkylän juna-asema sekä Raide-Jokeri. Koskela, Käpylä ja Oulunkylä tarjoavat monipuoliset palvelut.
VIERAILE ASUNNOSSA ETUKÄTEEN ILMOITUKSESSA OLEVAN 3D-VIRTUAALIESITTELYN AVULLA!
Suora linkki: https://my.matterport.com/show/?m=FzYUNegLfnj
// Lisätiedot ja esittelyt:
SANTERI CARLSSON
Kiinteistönvälittäjä, LKV, LVV
Puh: 050-2106 (lyhyt numero)
[email protected]
Roof LKV "Get a Roof"Pohjakuva

Perustiedot
- Sijainti
- Askolantie 9, 00600, Koskela, Helsinki
- Huoneluku
- 5
- Asuinpinta-ala
- 136 m²
- Muu pinta-ala
- 62 m²
- Kokonaispinta-ala
- 198 m²
- Pinta-alan peruste
- Pinta-ala ei ole tarkistusmitattu ja todellinen pinta-ala voi olla suurempi tai pienempi, kuin ilmoitettu
- Lisätiedot pinta-alasta
- Kellari 62 m² (lattia pinta-ala) Pihavaja 10 m²
- Kohteen tyyppi
- Omakotitalo
- Kerros
- 3
- Rakennusvuosi
- 1940
- Käyttöönottovuosi
- 1940
- Kohde myydään vuokrattuna
- Ei
- Vapautuminen
- Sopimuksen mukaan
Hinta ja kustannukset
- Myyntihinta
- 639 000 €
- Sähköliittymä siirtyy
- Kyllä
- Neliöhinta
- 4 698,53 € / m²
- Lisätietoja maksusta
- - Vesi- ja jätevesi kulutuksen mukaan, oma mittari. - Kaukolämmitys: 3576,17 €/vuosi (2024) - Tontinvuokra: 2458,11 €/vuosi (2025) - Kiinteistövero: 105,25 €/vuosi (2024) - Jätehuolto: n.250 €/vuosi (2024) - Vakuutus: 700 €/vuosi (2025) - Sähkö kulutus : n. 8 500 kWh / 110€/kk.
Tilat ja materiaalit
- Keittiön kuvaus
- VARUSTUS: Keraaminen liesi, Erillisuuni, Astianpesukone, Jääkaappipakastin. Liesituuletin (hormi), Hana, Kaapisto, Allas, TYÖTASO: Puu. SEINÄT: Välitila laatta, maalattu. LATTIA: Lauta.
- Kylpyhuone
- KELLARI VARUSTUS: Suihku SEINÄT: Kaakeli. LATTIA: Betoni. _________ 2.KERROS VARUSTUS: WC-istuin, Suihku, Peili, Pesuallaskaapi, Pyyhekuivain. Lattialämmitys. SEINÄT: Kaakeli. LATTIA: Laatta.
- Erillinen WC
- 1.KERROS VARUSTUS: WC-istuin, Peili Pesuallaskaapi, Bidee-suihku. Lattialämmitys (sähkö) Suihku valmius. SEINÄT: Kaakeli. LATTIA: Laatta.
- Makuuhuoneet
- 1.KERROS SEINÄT: Maali. LATTIA: Laminaatti. 2.KERROS SEINÄT: Maali/Lasikuitutapetti. LATTIA: Lauta.
- Makuuhuoneiden lukumäärä
- 4
- Olohuone
- SEINÄT: Tapetti / Maali. LATTIA: Parketti.
- Kodinhoitohuone
- KELLARI: Pesukoneliitäntä. LATTIA: Betoni. __________ 2.KERROS VARUSTUS: Kaapisto. SEINÄT: Maali/Lasikuitutapetti. LATTIA: Lauta.
- Kohteen säilytystilat
- Kylmä ulkovarasto, kaapistot ja kellarikomero
- Sauna
- Kyllä
- Saunan kuvaus
- VARUSTUS: Sähkökiuas SEINÄT:Puu. LATTIA: Laatta.
Lisätiedot
- Asunnon kunto
- Tyydyttävä
- Parveke
- Ulostyönnetty parveke
- Terassi
- Kyllä
Taloyhtiö ja kiinteistö
- Tontin pinta-ala
- 622 m²
- Tontin omistus
- Vuokra
- Tontin myyntityyppi
- Koko tontti
- Maanvuokraaja
- Helsingin kaupunki
- Tontin tiedot
- Maanvuokrasopimus uusittu 02.01.2023.
- Tontin vuosivuokra
- 2 458,11 €
- Vuokra-aika päättyy
- 31.12.2080
- Rakennusmateriaali
- Puu
- Lämmitysjärjestelmä
- Kaukolämpö
- Ilmanvaihto
- Painovoimainen ilmanvaihto
- Vesijohto
- Kunnallisvesi
- Viemäröinti
- Kunnallinen viemäriverkosto
- Kattotyyppi
- Harjakatto
- Katemateriaali
- Pelti
- Kohteesta on energiatodistus
- Ei lain edellyttämää energiatodistusta
- Tie perille
- Kyllä
- Kaavatilanne
- Asemakaava
- Kosteusmittaus tehty
- 09.07.2025
- Kuntotarkastus tehty
- 09.07.2025
- Asbestikartoitus
- Ei
Tehdyt remontit
2023: Tonttiviemärin sukitus ja kaivojen korjaus.
2022: Ikkunaremontti.
2016: Sauna remontti.
2015: Sähköremontti.
2013: takkojen hormien massaukset.
2012: Rakennettu pihavarasto.
2010: Kaukolämpösiirtimen uusiminen.
2010: Vesikatto uusittu kokonaan. Yläpohjan lämmöneristettä lisätty.
2009: Kylpyhuoneremontti (2.kerros)
2008: Lattia ja seinä remontti (2.kerros).
2007: Lämpöpattereita uusittu 2.kerroksessa.
2006: Käyttövesi ja viemärit uusittu (kellarista toiseen kerrokseen asti)
2005: Keittiö remontti. Keittiön sähköt uusittu
