Böstaksentie 24
00740, Suutarila, Helsinki
5h+k+rt+khh+wc+2xkph+vh+aula+ saunarakennus+autokatos+varasto
499 000 €
160 m²

Tätä asuntoa myy Frans Boksha, Asunnon myynti
Neliöt Liikkuu LKV Oy Ab

Sijainti
Asuntoesittely
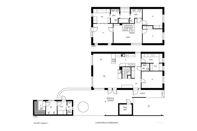
Upea neljän makuuhuoneen kivitalo Suutarilasta
Tämä valoisa ja hyvin suunniteltu omakotitalo sijaitsee suositulla Suutarilan alueella Helsingissä. Vuonna 2015 valmistunut kaksikerroksinen kivitalo tarjoaa modernia asumismukavuutta ja tilaa isommallekin perheelle. Talossa on erinomainen pohjaratkaisu ja sen huoneistoala on 160 m². Suuresta koosta huolimatta asumiskustannukset pysyvät fiksuna, sillä talon lämmitysmuotona toimii kaukolämpö.
Alakerrassa on avara olohuone, jossa on tunnelmallinen takka, sekä hyvin varusteltu keittiö, joka kutsuu kokkaamaan ja nauttimaan yhdessäolosta. Alakerrasta löytyy tämän lisäksi myös kodinhoitohuone sekä makuuhuone / työhuone ja wc.
Yläkerrassa löytyy aula, tilava vaatehuone ja kolme hyvin sijoiteltua makuuhuonetta sekä erilliset kylpyhuoneet ja extrana vielä kylpyamme erillisessä kylpyhuoneen osassa. Yläkerta on kokonaisuutena hyvin suunniteltu ja ratkaistu. Yhdestä makuuhuoneista löytyy kulku suoraan isoon vaatehuoneeseen ja siitä suoraan toiseen yläkerran kylpyhuoneista. Kylpyhuoneita talosta löytyy isomminkin perheen tarpeisiin. Pihalta löytyvä erillinen suojaisa pihasauna on todellinen luksus kaupunkiasumisessa ja helposti käytettävissä ympäri vuoden. Saunassa on täysin oma tunnelmansa ja sieltä löytyy myös pukuhuone ja wc.
Pihapiiri on aidattu, mikä tuo turvallisuutta ja yksityisyyttä. Autokatos ja lämmin varasto tuovat käytännöllisyyttä arkeen. Lapsiperheelle tämä koti on ihanteellinen, sillä lähistöltä löytyy koulu ja alueella on hyvät kulkuyhteydet. Autolla pääset Kehä 3 vain parissa minuutissa.
Tartu tilaisuuteen ja tule tutustumaan tähän upeaan kotiin, joka tarjoaa puitteet viihtyisään ja helppoon arkeen Helsingissä.Perustiedot
- Sijainti
- Böstaksentie 24, 00740, Suutarila, Helsinki
- Huoneluku
- 5
- Asuinpinta-ala
- 160 m²
- Pinta-alan peruste
- Pinta-ala ei ole tarkistusmitattu ja todellinen pinta-ala voi olla suurempi tai pienempi, kuin ilmoitettu
- Lisätiedot pinta-alasta
- Helsingin kaupungin rakennus- ja huoneistorekisteriotteen mukaan huoneistoala on 160 m2. Rakennuslupapiirustusten mukaan kerrosala on 195 m2.
- Kohteen tyyppi
- Omakotitalo
- Kerros
- 2
- Rakennusvuosi
- 2015
- Käyttöönottovuosi
- 2015
- Kohde myydään vuokrattuna
- Ei
- Vapautuminen
- Sopimuksen mukaan
Tilat ja materiaalit
- Keittiön kuvaus
- Varustus: jääkaappi ja pakastin (Festivo kylmäkaappi), integroitu astianpesukone, mikroaaltouuni, induktioliesitaso ja erillisuuni, liesituuletin.
- Keittiön lattiat
- Laatta
- Keittiön seinät
- Maali
- Kylpyhuone
- Yläkerrassa kaksi kylpyhuonetta, varustus: suihku, peili, allas ja allaslaatikosto, wc-istuin, bidee-suihku. Kylpyhuoneiden välissä erillinen kylpyammeella varustettu tila. Saunan yhteydessä oleva kylpyhuone, varustus: kaksi suihkua.
- Kylpyhuoneen seinät
- Kaakeli
- Kylpyhuoneen lattiat
- Laatta
- WC Lukumäärä
- 4
- Erillinen WC
- Varustus: peili, allas ja allaslaatikosto, wc-istuin, bidee-suihku. Lisäksi wc-istuimet kylpyhuoneiden yhteydessä sekä erillinen wc saunarakennuksessa.
- WC:n lattiat
- Laatta
- WC:n seinät
- Kaakeli
- Makuuhuoneiden seinät
- Maali
- Makuuhuoneiden lattiat
- Laminaatti
- Olohuoneen seinät
- Maali
- Olohuoneen lattiat
- Laminaatti
- Kodinhoitohuoneen seinät
- Maali
- Kodinhoitohuoneen lattiat
- Laatta
- Kodinhoitohuone
- Varustus: kaapistot, työtaso, pesukoneliitäntä.
- Sauna
- Kyllä
- Kiuas
- Sähkökiuas
- Saunan kuvaus
- Saunaosasto on erillisessä rakennuksessa.
- Takka
- Takka
Lisätiedot
- Asunnon kunto
- Hyvä
- Terassi
- Kyllä
- Muuta kauppaan kuuluvaa
- sälekaihtimet, verhotangot
Taloyhtiö ja kiinteistö
- Tontin pinta-ala
- 540 m²
- Tontin omistus
- Vuokra
- Tontin tyyppi
- Tasamaatontti
- Tontin myyntityyppi
- Koko tontti
- Maanvuokraaja
- Helsingin kaupunki, 0201256-6
- Tontin vuosivuokra
- 4 664 €
- Vuokra-aika päättyy
- 31.12.2075
- Rakennusmateriaali
- Kivi
- Lämmitysjärjestelmä
- Kaukolämpö
- Ilmanvaihto
- Koneellinen tulo- ja poistoilmanvaihto lämmön talteenotolla
- Vesijohto
- Kunnallisvesi
- Viemäröinti
- Kunnallinen viemäriverkosto
- Kattotyyppi
- Harjakatto
- Katemateriaali
- Pelti
- Lisätietoa rakennusoikeudesta
- Kaavan mukainen rakennusoikeus 200 m2. Rakennusoikeus on käytetty.
- Kohteesta on energiatodistus
- Ei lain edellyttämää energiatodistusta
- Tie perille
- Kyllä
- Kaavatilanne
- Asemakaava
- Kaavoitustiedot
- Erillinen sitova tonttijako Lisätietoa: Helsingin kaupunki, p. 09 310 1691.
- Kuntotarkastus tehty
- 16.09.2025
- Lisätietoa muista rakennuksista
- Saunarakennus (sauna, pesuhuone, pukuhuone, wc) Rakennuslupapiirustusten mukaan saunarakennuksen kerrosala on 20 m2. Pinta-ala ei ole tarkistusmitattu. Autokatos+varasto
Tehdyt remontit
IV-kanavien puhdistus 9/2025
Piha aidattu
