Bjarnenkuja 11 A
04410, Pajala, Järvenpää
2H+KT+S
199 900 € (4 038,38 € / m²)
49,5 m²

Tätä asuntoa myy Kirsi Sjöberg, Kiinteistönvälittäjä, LKV
Huoneistokeskus Oy | Vantaa

Sijainti
Asuntoesittely
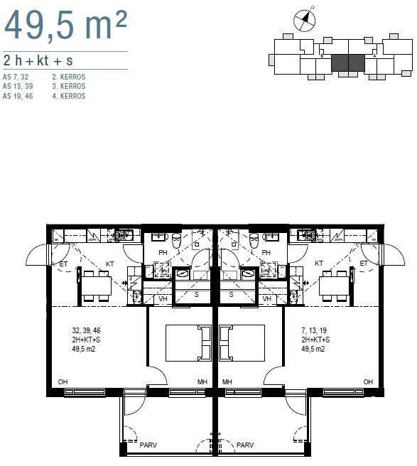
Kolmannen kerroksen valoisa kaksio. Asunnon keittiö yhdistyy olohuoneeseen ja myös ruokailuryhmälle löytyy oma paikkansa. Olohuoneesta avautuu käynti isolle lasitetulle parvekkeelle, jossa voit nauttia olostasi keväästä myöhäiseen syksyyn. Asunnossa erillinen viihtyisä makuuhuone.
Huoneisto sijaitsee aivan Westermarckin puiston vieressä, joten vehreät näkymät ja ulkoilumahdollisuudet ovat kirjaimellisesti nurkan takana. Järvenpään rantapuisto ja sen upeat kävelyreitit Tuusulanjärven rannassa täydentävät viihtyisää ympäristöä.
Lisäksi Järvenpää tarjoaa asukkailleen kattavat palvelut, monipuoliset harrastusmahdollisuudet ja sujuvat yhteydet Helsinkiin – junalla tai autolla olet perillä nopeasti.
Sovi esittely ja tule tutustumaan tähän viihtyisään kotiin.
Pohjakuva

Perustiedot
- Sijainti
- Bjarnenkuja 11 A, 04410, Pajala, Järvenpää
- Omistusmuoto
- Omistusasunto
- Huoneluku
- 2
- Asuinpinta-ala
- 49,5 m²
- Muu pinta-ala
- 0 m²
- Kokonaispinta-ala
- 49,5 m²
- Pinta-alan peruste
- Isännöitsijäntodistuksen mukainen, Yhtiöjärjestyksen mukainen
- Kohteen tyyppi
- Kerrostalo
- Kerros
- 3 / 5
- Rakennusvuosi
- 2016
- Käyttöönottovuosi
- 2016
- Kohde myydään vuokrattuna
- Ei
- Vapautuminen
- Heti
Hinta ja kustannukset
- Velaton hinta
- 199 900 €
- Myyntihinta
- 102 989,96 €
- Velkaosuus
- 96 910,04 €
- Yhtiövastike
- Hoitovastike 207,90 € / kk, Rahoitusvastike 887,52 € / kk, Yhtiövastike yhteensä 1 095,42 € / kk
- Autopaikkamaksu
- 20,50 € / kk
- Vesimaksu
- 18 € / hlö
- Sähköliittymä siirtyy
- Kyllä
- Neliöhinta
- 4 038,38 € / m²
- Lisätietoja maksusta
- Lisätietoja vastikkeista: Tätä huoneistoa koskeva valinnaisen vuokratontin määräosan osuus on jo kokonaan maksettu. Vesimaksu on ennakkomaksu. Tasauslasku tulee huoneistokohtaisen mittarilukeman mukaisesti. Kylmä vesi 4,60 e/kpl/kulutus, lämmin vesi 9,48 e/kpl/kulutus
Tilat ja materiaalit
- Keittiön kuvaus
- Myyjä ei vastaa huoneiston kodinkoneiden toimintakunnosta.
- Keittiön lattiat
- Parketti
- Keittiön seinät
- Maali
- Keittiön varusteet
- Jääkaappipakastin, astianpesukone, erillisuuni, ja liesitaso, kiinteät valaisimet, liesituuletin / hormi
- Liesi
- erillisuuni liesitaso
- Kylpyhuoneen seinät
- Kaakeli
- Kylpyhuoneen lattiat
- Laatta
- Kylpyhuoneen varusteet
- Suihkuseinä, pesukoneliitäntä, wc-istuin, peilikaappi, suihku, allaskaappi, lattialämmitys, ja kiinteät valaisimet
- Makuuhuoneiden lukumäärä
- 2
- Makuuhuoneiden seinät
- Maali
- Makuuhuoneiden lattiat
- Parketti
- Olohuoneen seinät
- Maali
- Olohuoneen lattiat
- Parketti
- Sauna
- Kyllä
- Kiuas
- Sähkökiuas
Lisätiedot
- Asunnon kunto
- Hyvä
- Parveke
- Lasitettu parveke
- Hissi
- Kyllä
- Muuta kauppaan kuuluvaa
- Lisätietoja sisältyvistä varusteista: kiinteät valaisimet, sälekaihtimet/rullaverhot
Taloyhtiö ja kiinteistö
- Taloyhtiön nimi
- Asunto Oy Järvenpään Hiillos
- Isännöitsijätoimisto
- Kiinteistö-Tahkola Helsinki Oy/Nurmijärven toimipiste
- Isännöitsijän nimi
- Toni Kemppainen
- Isännöitsijän sähköposti
- [email protected]
- Isännöitsijän puhelin
- 020 7488 378
- Tontin pinta-ala
- 2 862 m²
- Tontin omistus
- Valinnainen vuokratontti
- Maanvuokraaja
- Suomen Osatontti Ky
- Tontin vuosivuokra
- 13 211,28 €
- Vuokra-aika päättyy
- 26.06.2063
- Käyttö/luovutusrajoitukset
- Yhtiöjärjestys 18 §: Jos autotalli-, autokatos- tai autopihapaikan hallintaan oikeuttava osake siirtyy millä tahansa saannolla muulta kuin yhtiön perustajaosakkaalta yhtiön ulkopuoliselle uudelle omistajalle eikä samassa yhteydessä siirretä tämän yhtiön osakkeita, jotka oikeuttavat yhtiön jonkin huoneiston hallintaan, on siirronsaajan ilmoitettava siirrosta hallitukselle viipymättä, ja on yhtiön osakkeenomistajilla oikeus lunastaa siirron kohteena oleva osake. Lunastusmenettelyssä noudatetaan edellä olevan lisäksi kaikilta muilta osin asunto-osakeyhtiölain (1599/2009) säännöksiä.
- Rakennusmateriaali
- Betoni
- Lämmitysjärjestelmä
- Kaukolämpö
- Kattotyyppi
- tasakatto
- Katemateriaali
- pelti
- Lisätietoja kiinteistönhoidosta
- Huoltoyhtiö
- Kiinteistönhoidon lisätiedot
- Laten KH-palvelut Oy
- Taloyhtiössä on
- Kaapeli-tv, urheiluvälinevarasto, kuivaushuone, väestönsuoja, ja huoneistokohtaiset varastot
- Kohteesta on energiatodistus
- Kyllä
- Energialuokka
- C2013
- Lisätietoja energiatodistuksesta
- Energiatodistus on voimassa 12.10.2026 saakka.
- Taloyhtiöön kuuluu
- Taloyhtiölaajakaista 50M (Elisa). Koneellinen tulo- ja poistoilmanvaihto Yhtiökokouksen päätöksellä on yhtiön parvekkeille haettu kaupungin asettama parveketupakointikielto 12.12.2017. Hallitus valtuutetaan perimään enintään 2 kk:n ylimääräinen hoito-, rahoitus- ja/tai tontinvuokravastike tai jättää perimättä vastaava määrä yhtiön taloudellisen tilanteen niin salliessa tai vaatiessa. Toimintakertomus 2023: Yhtiön hissien hälytyslinjojen käyttämän 3G-verkon tuki päättyi vuoden 2023 lopussa ja tästä johtuen yhtiön hallitus päätti yhtiön hissien hälytyslinjojen päivittämisestä 4G-verkkoa tukeviksi. Muutos tehtiin syksyllä 2023. Loppuvuodesta yhtiössä havaittiin, että kaksi A-rapun patterilinjaa ei lämpene normaalisti. Hallitus selvitti asiaa ja tutkimuksissa selvisi, että lämmitysverkoston tasapainotus ei vastaa suunnitelmia. Hallitus tulee reklamoimaan asiasta rakennuttajalle virhevastuun piilevän vian puitteissa. Yhtiöjärjestys 6 §: Niin kauan kuin muulla kuin perustajaosakkaalla on huoneistoon kohdistuvaa yhtiölainaosuutta jäljellä enemmän kuin 50% huoneiston alkuperäisestä yhtiölainaosuudesta, tulee yhtiön hallussa olla ao. huoneiston osalta aina vähintään kolmen (3) kuukauden pääomavastikkeiden suuruinen pääomavastike-ennakko yhtiön pääomavastikesaatavan vakuudeksi. Taloyhtiön osakeluettelo on siirretty huoneistotietojärjestelmään. Ostajan tulee hakea omistusoikeuden rekisteröintiä Maanmittauslaitokselta. Ostaja vastaa tällöin omistusoikeuden rekisteröintikustannuksista, mahdollisista osakekirjan mitätöinnistä aiheutuvista kustannuksista sekä mahdollisesta hakemusmaksun korotuksesta. Ostajan pankin ostajalta mahdollisesti veloittamista kaupantekoon, omistusoikeuden rekisteröintiin tai panttausmerkinnän hakemiseen liittyvistä kustannuksista ostaja saa tiedon pankiltaan
- Lisätietoja huoneiston autopaikasta
- Yhtiön omistuksessa olevien autopaikkojen jako jonotusperusteisesti. Osa autopaikoista omina osakkeinaan.
- Lisätietoja taloyhtiön autonsäilytyspaikoista
- Toteutuneet autopaikat 36 kpl. Yhtiön hallinnassa 12 kpl, osakkeina 24 kpl.
- Autotallit
- 4
- Autokatokset
- 8
- Piha-autopaikkoja
- 24 kpl
- Kaavatilanne
- Asemakaava
- Lisätiedot kaavoituksesta
- Järvenpään kaupunki puh. 09 271928
- Taloyhtiön kiinnitykset
- 9 764 110 €
Tehdyt remontit
2022 Parvekelasien huolto
Tulevat remontit
5-vuoden kunnossapitotarveselvitys:
2024 Ilmanvaihdon puhdistus ja säätö
2025-2026 Salaojien huuhtelu ja kuvaus
2026 Palovaroittimien uusinta
2026 10-vuotistarkastus ja kuntoarvio