Boxintie 414
04130, Gesterby, Sipoo
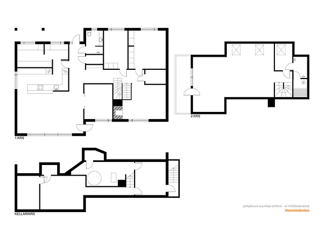
6 h, k, s, 2xkph, khh, 2xvh + kellari
375 000 €
211 m²

Tätä asuntoa myy Jan Klenberg, Kiinteistönvälittäjä, LKV
Huoneistokeskus Oy | Porvoo

Sijainti
Asuntoesittely
Sipoon Gesterbyn kylässä hienolla tontilla sijaitseva tilava kokonaisalaltaan 270 m² suuruinen omakotitalo.
Talon lämmitysjärjestelmä on juuri uusittu moderniin ja taloudelliseen ilma-vesilämpöpumppuun, joka on huomattavasti huolettomampi käyttää kuin edellinen puu-/sähkö hybridi.
Tästä moneen tilanteeseen ja tarpeeseen taipuvasta kodista löytyy käytöstä ja tarpeesta riippuen 2-4 makuuhuonetta. Viihtyisän talon sisään tulokerroksessa sijaitsee avara ja valoisa olohuone, hiljattain uusittu keittiö, takkahuone, juuri remontoitu kodinhoitohuone ja pienempi kylpyhuone sekä kolme makuuhuonetta. Yksi tämän kerroksen makuuhuoneista on olohuoneen välittömässä yhteydessä, joten se voisi olla myös vaikkapa erillinen tv-huone? Keittiö on siis hiljattain uusittu vastaamaan niin toiminnallisesti kuin ulkonäöllisestikin tätä päivää, paljon kaappi- ja tasotilaa, koneet laadukkaita ja kvartsitasot helpottavat arkea. Kodinhoitohuone, joka on juuri remontoitu on poikkeuksellisen tilava ja siinä on reilusti kaappitilaa, joten pyykinkäsittely ja kodinhoito sujuu kuin tanssi.
Toisesta kerroksesta löytyy kodin saunaosasto, jossa löylyhuoneen ohella kylpyhuone kahdella suihkulla sekä wc / pukuhuone. Tässä kerroksessa on myös ehkä talon monikäyttöisin ja samalla suurin yhtenäinen tila. Huonetta voi käyttää vaikka todella suurena master bedroomina? Toisena olohuoneena? Mahtuupa siihen vaikka biljardipöytäkin? Vai haluatko jakaa tilaa väliseinin? Anna mielikuvituksen laukata! Tämän huoneen yhteydessä on viihtyisä äskettäin remontoitu parveke.
Asuinkerrosten lisäksi talossa on kellarikerros, jossa tekniikan lisäksi varasto ja erikäyttöön soveltuvia huoneita ja pieni viinikellarimainen tila.
Upea tontti! Oleskelupiha on todella monipuolinen sekä valoisa ja siinä on myös täysikokoinen tenniskenttä. Mikäli tennis ei ole lähellä sydäntäsi, niin tuo kentän aluehan on tasaisuuden ansiosta mitä mainioin alusta monenlaiselle toiminnalle. Pihakeittiössä ja sen vieressä on mukava nauttia elämästä maaseudun rauhassa. Kiinteistöllä on näiden lisäksi myös erillinen 55 neliön suuruinen autotalli- /varastorakennus sekä 30 neliön suuruinen puuliiteri- /talousrakennus. Asfaltoitu sisäänajotie lisää mukavuutta. Komeat, laajat ja yhtenäiset metsäalueet alkavat pihalta. Hyvää virkistysmetsää, marja- ja sienimaastoa lähes rajattomasti tarjolla.
Gesterby on pidetty kylä Sipoossa ja palvelut löytyvät kätevästi niin Söderkullasta kuin Nikkilästä, molempiin on lähes samanlainen matka. Gesterby on myös yksi Sipoon vanhimmista kylistä ja maaseutumaiset maisemat ja fiilis ovat lähes kansallisromanttiset. Gesterbyn kylällä on myös oma saari; Träskören, johon myös tällä kiinteistöllä on oikeus.
Tervetuloa tutustumaan tähän viehättävään kotiin! Ota rohkeasti yhteyttä ja sovitaan sinulle sopiva yksityisesittely tähän kokonaisuuteen. 0400840879 / [email protected]
Pohjakuva

Perustiedot
- Sijainti
- Boxintie 414, 04130, Gesterby, Sipoo
- Huoneluku
- 6
- Asuinpinta-ala
- 211 m²
- Muu pinta-ala
- 59 m²
- Kokonaispinta-ala
- 270 m²
- Pinta-alan peruste
- Pinta-ala on tarkistusmitattu Suomen Rakennusasiantuntijat Oy:n toimesta 31.3.2023
- Lisätiedot pinta-alasta
- Tarkistusmitattu 2023, kerrosala 316 m2, lämmin kokonaisala 270 m2, huoneistoala 211 m2
- Kohteen tyyppi
- Omakotitalo
- Rakennusvuosi
- 1983
- Käyttöönottovuosi
- 1983
- Kohde myydään vuokrattuna
- Ei
- Vapautuminen
- 2-3 kk kaupasta/ sopimuksen mukaan
Hinta ja kustannukset
- Myyntihinta
- 375 000 €
- Puhtaanapito (€/kk)
- 23,92 €
- Sähköliittymä siirtyy
- Kyllä
- Neliöhinta
- 1 777,25 € / m²
- Lisätietoja maksusta
- Tietoja kiinteistöverosta: 789,38. Lisätietoja vastikkeista: Vesi- ja jätevesi kulutuksen mukaan Sipoon veden hinnaston mukaisesti. Uuden lämmitysjärjestelmän toteutuvia kulutustietoja ei ole vielä tiedossa.
Tilat ja materiaalit
- Keittiön lattiat
- Laatta
- Keittiön seinät
- Maali
- Keittiön varusteet
- Erillisuuni, mikroaaltouuni, liesituuletin, erillinen pakastin, astianpesukone, liesi, ja kiinteät valaisimet, kylmiö
- Liesi
- Induktioliesi ja erillisuuni
- Kylpyhuoneen seinät
- Kaakeli
- Kylpyhuoneen lattiat
- Laatta
- Kylpyhuoneen varusteet
- Lattialämmitys, suihku, wc-istuin, peili, allaskaappi, ja kiinteät valaisimet
- WC Lukumäärä
- 1
- WC:n lattiat
- Laatta
- WC:n seinät
- Kaakeli
- Makuuhuoneiden lukumäärä
- 4
- Makuuhuoneiden seinät
- Maali ja tapetti
- Makuuhuoneiden lattiat
- Muovimatto
- Olohuoneen seinät
- Tapetti
- Olohuoneen lattiat
- Parketti
- Kodinhoitohuoneen varusteet
- Pyykkikaapit, pesukoneliitäntä, lattiakaivo, ja pöytätaso
- Kodinhoitohuoneen seinät
- Maali
- Kohteen säilytystilat
- Kellarikomero, vaatehuone, ulkovarasto ja muu erillinen varasto
- Sauna
- Kyllä
- Kiuas
- Sähkökiuas
- Takka
- Takkavaraus ja takka
Lisätiedot
- Asunnon kunto
- Tyydyttävä
- Ranta
- Oikeus vesialueisiin
- Muuta kauppaan kuuluvaa
- Lisätietoja sisältyvistä varusteista: istutukset, kaapistot, kiinteät valaisimet, kuivauskaappi/-rumpu, lämminvesivaraaja, markiisi, pyykinkuivausteline, pyykinpesukone, sälekaihtimet/rullaverhot, verhotangot
Taloyhtiö ja kiinteistö
- Tontin pinta-ala
- 5 364 m²
- Tontin omistus
- Oma
- Tontin tyyppi
- Rinnetontti
- Tontin myyntityyppi
- Koko tontti
- Rakennusmateriaali
- Puu ja tiili
- Lämmitysjärjestelmä
- Sähkö Tyyppi: sähköinen lattialämmitys vesikiertoinen patterilämmitys, sähköinen lattialämmitys
- Kattotyyppi
- Aumakatto
- Katon kunto
- Hyvä
- Katemateriaali
- Tiili
- Kohteesta on energiatodistus
- Kyllä
- Energialuokka
- D2018
- Lisätietoja liikenneyhteyksistä
- Boxintiellä linja-auto 993 arkipäivisin, Nikkilästä Boxista ja Söderkullasta hyvät linja-auto yhteydet kts. www.hsl.fi
- Tie perille
- Kyllä
- Palvelut
- Nikkilän palvelut noin 7 km, Söderkullan palvelut noin 8,5 km, Porvoon keskusta noin 24 km, Itäkeskus noin 29 km, Helsingin keskusta noin 38 km
- Koulut
- Nikkilän koulut noin 7 km
- Kaavatilanne
- Yleiskaava
- Kaavoitustiedot
- Sipoon kunta 09-23531
- Kuntotutkimus tehty
- 01.01.2023
- Asbestikartoitus
- Ei
- Muut rakennukset
- Autotalli, leikkimökki, liiteri ja muita rakennuksia
- Lisätietoa muista rakennuksista
- Vuonna 1994 rakennettu autotalli-/ varastorakennus 55 m2, vuonna 2015 rakennettu 30 m2 puuliiteri, kesäkeittiö.
