Boxintie 852-44
01190, Box, Sipoo
3-4h, k, psh/khh, s, wc
398 000 €
96 m²

Tätä asuntoa myy Peter Forss, Myyntipäällikkö, LKV
Kaupanvahvistaja
Huoneistokeskus Oy | Porvoo

Sijainti
Asuntoesittely
Tunnelmallinen hirsitalo rauhallisella ja suojaisalla tontilla
Vuonna 2001 valmistunut lämminhenkinen hirsitalo tarjoaa viihtyisää asumista upealla, suojaisalla tontilla luonnon rauhassa. Kodin tilaratkaisut ovat muunneltavissa elämäntilanteen mukaan – tällä hetkellä talossa on yksi varsinainen makuuhuone ja tilavasta kirjastohuoneesta saa tarpeen vaatiessa helposti väliseinän ja väliovet rakentamalla kaksi lisämakuuhuonetta.
Pihapiirissä sijaitsee lämmin kahden auton autotallirakennus, joka tarjoaa runsaasti säilytys- ja harrastetilaa.
Tämä koti on erinomainen valinta sille joka arvostaa tilaa, suojaisaa puutarhaa, luonnonläheisyyttä ja hirsitalon kodikasta tunnelmaa.
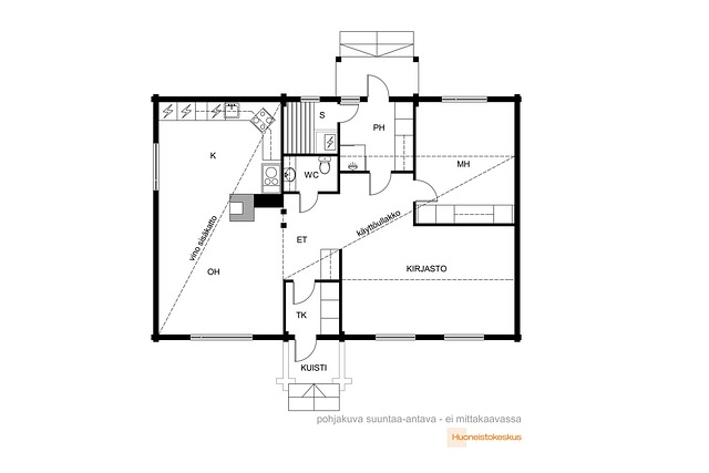
Pohjakuva

Perustiedot
- Sijainti
- Boxintie 852-44, 01190, Box, Sipoo
- Huoneluku
- 4
- Asuinpinta-ala
- 96 m²
- Muu pinta-ala
- 15 m²
- Kokonaispinta-ala
- 111 m²
- Lisätiedot pinta-alasta
- Rakennuslupa-asiakirjoista saatu kokonais-/rakennusala 111 m2, kerrosala 105 m2 ja huoneistoala 96 m2
- Kohteen tyyppi
- Omakotitalo
- Rakennusvuosi
- 2001
- Käyttöönottovuosi
- 2001
- Kohde myydään vuokrattuna
- Ei
- Vapautuminen
- 1 kuukausi kaupanteosta
Hinta ja kustannukset
- Myyntihinta
- 398 000 €
- Sähköliittymä siirtyy
- Kyllä
- Neliöhinta
- 4 145,83 € / m²
- Lisätietoja maksusta
- Tietoja kiinteistöverosta: 590,78. Lisätietoja vastikkeista: Vuonna 2024 kokonaissähkönkulutus on ollut 13885 kWh, lisäksi poltettu vuosittain noin 3 pino-m3 polttopuita, tiehoitomaksu noin 350 euroa vuodessa, jäteastian (roskis) tyhjennys noin 25 euroa kuussa (tyhjennys joka toinen viikko), jätevesisäiliön tyhjennys noin 200 euroa kerta. Ilmoitettu kiinteistövero on vuodelta 2025.
Tilat ja materiaalit
- Keittiön varusteet
- Erillisuuni, jääkaappipakastin, liesituuletin, liesi, astianpesukone, uuni, ja kiinteät valaisimet
- Liesi
- Keraaminen liesi ja leivinuuni, erillisuuni puuliesi
- Kylpyhuoneen varusteet
- Pesukoneliitäntä, suihkuseinä, suihku, ja kiinteät valaisimet
- WC Lukumäärä
- 1
- Sauna
- Kyllä
- Kiuas
- Sähkökiuas
- Saunan kuvaus
- Saunan kiuas uusittu 2022
Lisätiedot
- Asunnon kunto
- Tyydyttävä
- Lisätietoa seinien pintamateriaaleista
- Hirsi ja osittain kipsilevy
- Lisätietoa lattioiden pintamateriaaleista
- Koko talossa on laattalattiat
- Lisätietoa katon pintamateriaaleista
- Puupaneeli
- Muuta kauppaan kuuluvaa
- Lisätietoja sisältyvistä varusteista: ilmalämpöpumppu, istutukset, jätesäiliö, kiinteät valaisimet, lämminvesivaraaja, verhotangot
Taloyhtiö ja kiinteistö
- Tontin pinta-ala
- 6 500 m²
- Tontin omistus
- Oma
- Tontin myyntityyppi
- Koko tontti
- Tontin tiedot
- Sipoon kunnalla on kaupassa etuosto-oikeus kun kiinteistön pinta-ala on vähintään 5000 m2.
- Rakennusmateriaali
- Hirsi
- Lämmitysjärjestelmä
- Sähkö Tyyppi: sähköinen lattialämmitys Ilmalämpöpumppu Puu uuni/takka, sähköinen lattialämmitys
- Lisätietoja vesiputkesta
- Kunnallistekniikan (vesi-ja viemäri) liityntäkohta sijaitsee vesilaitokselta saadun tiedon mukaan kiinteistön luoteisrajalla noin 5 m etäisyydellä kiinteistön rajasta.
- Lisätietoja viemäristä
- pesuvedet kaksiosainen saostuskaivo + maasuodatin/imeytyskenttä ja wc-vedet 5 m3 umpisäiliö
- Kattotyyppi
- Harja
- Katemateriaali
- Tiili
- Lisätietoja liikenneyhteyksistä
- Uudella Porvoontiellä on tiuhat linja-autoyhteydet sekä Helsinkiin että Porvooseen, myös Boxintiellä kulkee säännöllisiä linja-autovuoroja.
- Tie perille
- Kyllä
- Palvelut
- Söderkullan kattavat palvelut noin 5 km, Porvoon keskusta noin 20 km, Itäkeskus noin 25 km, Helsingin keskusta noin 34 km.
- Koulut
- Box skola noin 2,0 km, Sipoonlahden koulu Söderkullassa (suomenkielinen ala-aste ja suomenkielinen yläaste noin 4,5 km, ruotsinkielinen yläaste sekä suomen- ja ruotsinkieliset lukiot Nikkilässä.
- Kaavatilanne
- Osayleiskaava
- Kaavoitustiedot
- Boxin osayleiskaava, AT-1 (kyläalue), Sipoon kunta 0923531/kaavoitus
- Muut rakennukset
- Autotalli
- Lisätietoa muista rakennuksista
- Pihalla erillinen vuonna 2001 valmistunut 54 m2 kokoinen lämmin autotalli, lisäksi pihalla on kaksi vanhaa heikkokuntoista varastoa.