Eeronpolku 3B
90440, Paituri, Kempele
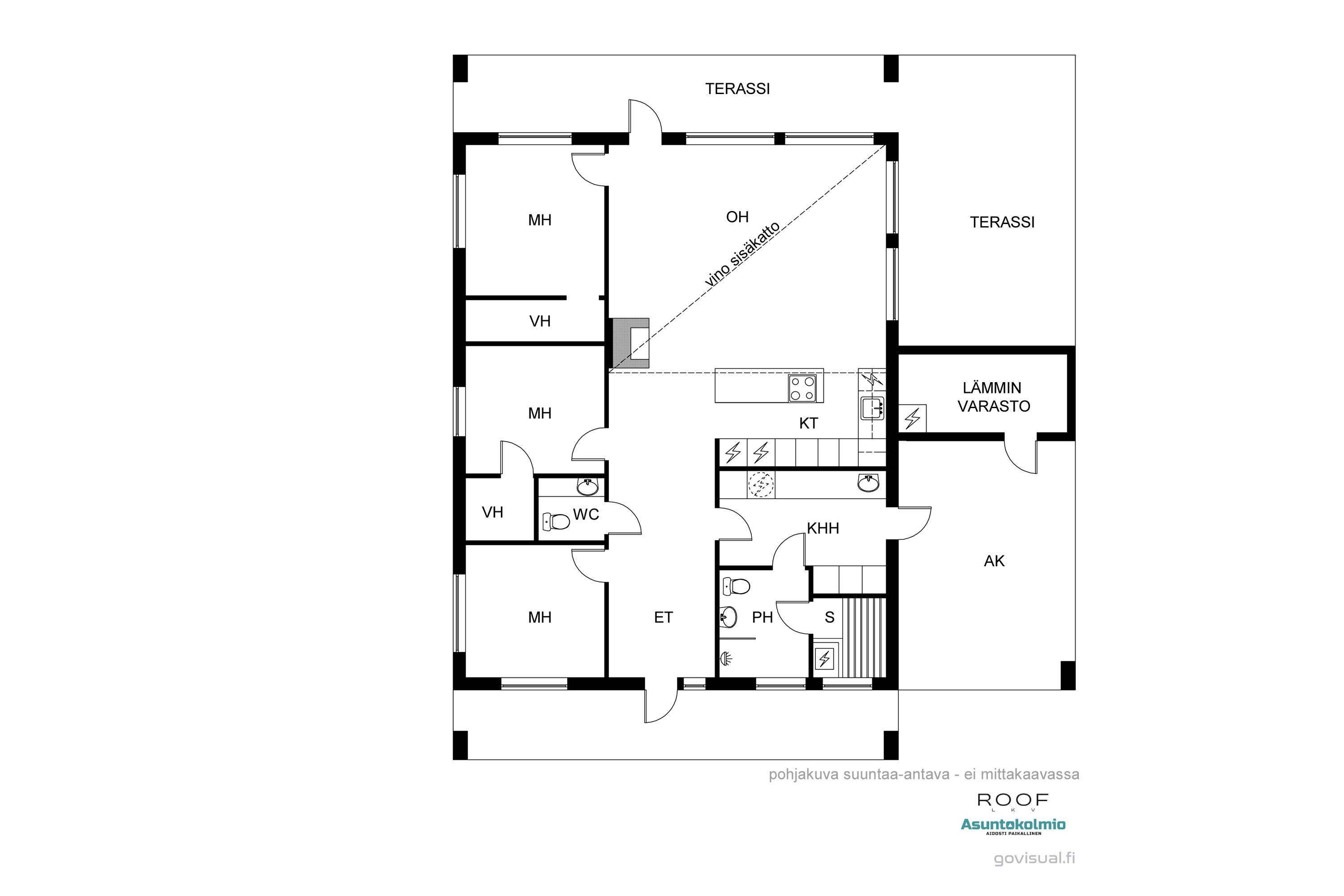
4h,k,kph,s,khh,wc,2vh,ak,var
349 000 €
111 m²

Tätä asuntoa myy Karri Rytilahti, Myyntijohtaja LKV, BBA
Roof Oulu | Asuntokolmio Oy

Sijainti
Asuntoesittely
Upea, yksitasoinen vuonna 2017 valmistunut omakotitalo Kempeleen Paiturista loistavalta sijainnilta.
Tervetuloa Eeronpolulle! Oma 900 m2 tontti, kolme hyvän kokoista makuuhuonetta, kaksi vaatehuonetta, poikkeuksellisen upea musta keittiö aamiaiskaappeineen sekä erillinen kodinhoitotila omalla sisäänkäynnillä.
Koko tila eteisestä keittiön kautta olohuoneeseen on poikkeuksellisen avara ja valoisa. Eteisessä tilaa on jopa yli 11 m2, ja seinälle on myös varaus asentaa halutessaan kaapistot. Sisäkatoltaan korotettu olohuone/keittiö on noin 45 m2, jossa valoa tuovia suuria ikkunoita on sijoitettu jokaiselle ulkoseinälle.
Lämmitysmuotona on energiatehokas poistoilmalämpöpumppu vesikiertoisella lattialämmityksellä, ja ilmanvaihto hoituu luonnollisesti koneellisesti. Talvipakkasilla tunnelmaa tuo olohuoneessa sijaitseva upea musta kiertoilmatakka. Asuinrakennuksen yhteydessä on katos autolle, ja pihalle sopii toki useampikin auto. Katoksessa on myös valmiina sähköauton latausasema sekä käynti lämpimään varastoon. Kiinteistölle on kytketty myös valokuituliittymä, joten etätyötkin sujuvat vaivattomasti.
Sijainniltaan Eeronpolku on loistava. Etenkin autolla kulkuyhteydet joka suuntaan ovat näppärät, ja bussipysäkkikin sijaitsee parin sadan metrin päässä, josta pääsee esimerkiksi Oulun keskustaan noin 20 minuutissa. Turvallisen, alle 2 km matkan päästä löytyy Kirkonkylän koulu (luokat 1–9) sekä Kempeleen lukio.
Tätä kotia esitellään ensimmäisen kerran yksityisesittelyin maanantaina 12.1. Ota rohkeasti yhteyttä, ja varaa oma esittelyaikasi!
Esittelyt ja lisätiedot:
Karri Rytilahti, Myyntijohtaja LKV
040 138 8311
[email protected]
Pohjakuva

Perustiedot
- Sijainti
- Eeronpolku 3B, 90440, Paituri, Kempele
- Huoneluku
- 4
- Asuinpinta-ala
- 111 m²
- Kokonaispinta-ala
- 111 m²
- Lisätiedot pinta-alasta
- Rakennusten pinta-alat rakennuspiirustusten mukaan: Huoneistoalat: Asuinrakennus: 111m2. Varasto 6,4m2. Kerrosalat (us250mm): Koko rakennus yht. 131m2.
- Kohteen tyyppi
- Omakotitalo
- Kerros
- 1
- Rakennusvuosi
- 2017
- Käyttöönottovuosi
- 2017
- Kohde myydään vuokrattuna
- Ei
- Vapautuminen
- Sopimuksen mukaan
Hinta ja kustannukset
- Myyntihinta
- 349 000 €
- Kiinteistövero (€/vuosi)
- 544,66 €
- Sähköliittymä siirtyy
- Kyllä
- Neliöhinta
- 3 144,14 € / m²
- Lisätietoja maksusta
- Kokonaissähkönkulutus noin 15 000kWh/vuosi (5hlö), sis käyttösähkö ja lämmitys. Edellisen 12kk pörssisähkön keskiarvolla + siirto kustannus noin ka 150e/kk. Vesi. Hulevesi. Jätehuolto. Tietoliikenneyhteys.
Tilat ja materiaalit
- Keittiön kuvaus
- Omega-keittiöt.
- Keittiön lattiat
- Laminaatti
- Keittiön seinät
- Maali
- Keittiön varusteet
- Erillinen pakastin (integroitu), jääkaappi (integroitu), erillisuuni (integroitu), astianpesukone (integroitu), liesituuletin (aktiivihiilisuodatin), liesi, ja aamiaskaappi
- Liesi
- Induktioliesi
- Kylpyhuoneen seinät
- Kaakeli
- Kylpyhuoneen lattiat
- Dekofloor
- Kylpyhuoneen varusteet
- WC-istuin, bidee-suihku, peili, pesuallas, suihkuseinä, ja suihku (sadesuihku)
- WC Lukumäärä
- 1
- WC:n lattiat
- Laatta
- WC:n seinät
- Maali ja sisustuslaasti
- Makuuhuoneiden lukumäärä
- 3
- Makuuhuoneiden seinät
- Maali
- Makuuhuoneiden lattiat
- Laminaatti
- Olohuoneen seinät
- Maali
- Olohuoneen lattiat
- Laminaatti
- Kodinhoitohuoneen varusteet
- Pesuallas, lattiakaivo, kuivauskaappi, pesukoneliitäntä, ja tila pesutornille
- Kodinhoitohuoneen seinät
- Maali
- Kodinhoitohuoneen lattiat
- Dekofloor
- Säilytystilojen kuvaus
- Lämmin varasto (vesikiertoinen lattialämmitys, kiinteät säilytysjärjestelmät kuuluvat kauppaan). Kaksi vaatehuonetta (kiinteät säilytysjärjestelmät kuuluvat kauppaan). Kiinteät kaapistot.
- Sauna
- Kyllä
- Kiuas
- Sähkökiuas
- Takka
- Kiertoilmatakka olohuoneessa
Lisätiedot
- Asunnon kunto
- Hyvä
- Terassi
- Kyllä
- Muut tilat
- Eteisessä laattalattia ja varaus kaapistoille
- Muuta kauppaan kuuluvaa
- Niissä ikkunoissa, missä ne ovat: sälekaihtimet, rullaverhot. Sähköauton latausasema. Tavanomainen tarpeisto
- Kauppaan ei kuulu
- Irtaimisto
Taloyhtiö ja kiinteistö
- Tontin pinta-ala
- 0,09 ha
- Tontin omistus
- Oma
- Tontin myyntityyppi
- Koko tontti
- Rakennusmateriaali
- Puu
- Lämmitysjärjestelmä
- Poistoilmalämpöpumppu vesikiertoinen lattialämmitys
- Ilmanvaihto
- Koneellinen tulo/poisto lämmön talteenotolla (pilp)
- Vesijohto
- Kunnallisvesi
- Viemäröinti
- Kunnallinen viemäriverkosto
- Kattotyyppi
- Pulpettikatto
- Katemateriaali
- Huopa
- Rakennusoikeus e-luku
- 0.15
- Kohteesta on energiatodistus
- Kyllä
- Energialuokka
- C2013
- Energiatodistuksen voimassaolo
- 23.11.2026
- Lisätietoja liikenneyhteyksistä
- Erinomaiset! Bussipysäkki noin 200m päässä, josta bussilla esimerkiksi Oulun keskustaan noin 20 minuutissa.
- Palvelut
- Kempeleen kirkonkylän palvelut pyörätietä noin 2km
- Koulut
- Kirkonkylän koulu (luokat 1-9) ja Kempeleen lukio alle 2km
- Kaavatilanne
- Asemakaava
- Kaavoitustiedot
- [email protected]
