Eskolantie 14
86400, Vihanti, Raahe
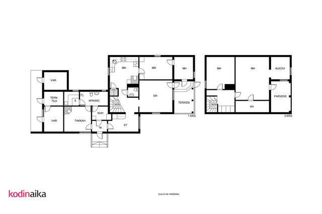
Alak: 3h, k, khh, takkah, kph/wc, s, wc, terassi, kellari, 2var. Yläk: 2h, alkovi, vh, parveke.
85 000 €
160 m²

Tätä asuntoa myy Pasi Siuvatti, Kiinteistönvälittäjä, LKV, LVV / yrittäjä
Kodinaika Oy LKV

Sijainti
Asuntoesittely
Omakotitalo, Alak: 3h, k, khh, takkah, kph/wc, s, wc, terassi, kellari, 2var. Yläk: 2h, alkovi, vh, parveke. 160/240 m2, Eskolantie 14, 86400 Vihanti
Nyt olisi tarjolla kodikas ja tilava omakotitalo Vihannista, rauhalliselta omakotitaloalueelta. Lämmitys tapahtuu huolettomalla maalämmöllä.
Täällä on tilaa isommallekin perheelle; Yläkerrassa on kaksi huonetta, alkovi, vaatehuone ja parveke. Alakerrasta löytyy olohuone, keittiö, jossa leivinuuni, erillinen wc, kylpyhuone/wc, sauna, takkahuone, kaksi makuuhuonetta, joista toiseen huoneeseen on oma sisäänkäynti terassin kautta. Tämä kävisi vaikka työhuoneena, toimistohuoneena jne. Taloon on tehty paljon remonttia vuosien varrella, kuten uusittu ikkunat, peltikate, kylpyhuone/wc, sauna ja keittiö. Molemmissa kerroksissa on ilmalämpöpumput. Taloon on tehty kuntotarkastus 22.10.2025, raportti saatavilla.
Kiinteistö muodostuu kahdesta omasta tilasta, joiden yhteenlaskettu pinta-ala on 1233 m2. Pihapiirissä vielä myös ulkovarasto sekä vuonna 2007 rakennettu autotalli kahdelle autolle. Tallin katolla on aurinkopaneelit.
Tähän kannattaa käydä tutustumassa paikan päällä. Kohde on heti vapaa. Myyntiä hoitaa Pasi Siuvatti p. 050 555 5134 [email protected]Perustiedot
- Sijainti
- Eskolantie 14, 86400, Vihanti, Raahe
- Huoneluku
- 5
- Asuinpinta-ala
- 160 m²
- Kokonaispinta-ala
- 240 m²
- Pinta-alan peruste
- Pinta-ala ei ole tarkistusmitattu ja todellinen pinta-ala voi olla suurempi tai pienempi, kuin ilmoitettu
- Lisätiedot pinta-alasta
- 160/240 m2 (huoneistoala/kerrosala). Pinta-alat perustuvat pohjakuvatietoihin. Hinta ei ole pinta-alaperusteinen.
- Kohteen tyyppi
- Omakotitalo
- Kerros
- 2
- Rakennusvuosi
- 1954
- Lisätietoja rakennusvuodesta
- Alkuperäinen rakennusvuosi noin 1954, taloa laajennettu noin 1962 ja noin 1992.
- Käyttöönottovuosi
- 1954
- Kohde myydään vuokrattuna
- Ei
- Vapautuminen
- Heti
Tilat ja materiaalit
- Keittiön kuvaus
- Kaapistot, liesi, liesituuletin, astianpesukone, jääpakastinkaappi, leivinuuni. Keittiö remontoitu 2000-luvulla.
- Kylpyhuone
- Kylpyhuone/wc: wc-istuin, bidesuihku, allas, peilikaappi, suihku, ikkuna. Kylpyhuone/wc remontoitu 2000-luvulla.
- Erillinen WC
- Wc-istuin, bidesuihku, allas, kaapisto.
- Kodinhoitohuone
- Kaappi, pesukoneliitäntä.
- Säilytystilojen kuvaus
- Kaapistot, vaatehuone, varastot.
- Sauna
- Kyllä
- Saunan kuvaus
- Puukiuas, lauteet, ikkuna. Sauna remontoitu 2000-luvulla.
- Takka
- Takka
Lisätiedot
- Asunnon kunto
- Hyvä
- Parveke
- On parveke
- Terassi
- Kyllä
- Lisätietoja terassista
- Katettu terassi.
- Lisätietoa seinien pintamateriaaleista
- Tapettia ja maalattua pintaa. Kylpyhuone/wc laattaa. Sauna puupanelia.
- Lisätietoa lattioiden pintamateriaaleista
- Puulattiat, yksi huone muovimattoa. Kylpyhuone/wc ja sauna akryyliä. Eteinen, erillinen wc ja takkahuone laattaa.
- Lisätietoa katon pintamateriaaleista
- Puupanelia.
Taloyhtiö ja kiinteistö
- Tontin pinta-ala
- 0,1233 ha
- Tontin omistus
- Oma
- Tontin myyntityyppi
- Koko tontti
- Tontin tiedot
- Nyt myytävä kohde koostuu kahdesta tilasta (yht. 0,1233 ha): - Koivula -niminen tila (678-420-4-48) 0,0571 ha - Jatkola -niminen tila (678-420-4-36) 0,0662 ha
- Rakennusmateriaali
- Puu
- Lämmitysjärjestelmä
- Maalämpö Ilmalämpöpumppu
- Ilmanvaihto
- Painovoimainen ilmanvaihto
- Vesijohto
- Kunnallisvesi
- Lisätietoja viemäristä
- Omat sakokaivot.
- Kattotyyppi
- Harjakatto
- Katemateriaali
- Pelti
- Lisätietoa rakennusoikeudesta
- Asemakaavamerkintöjen mukaan tilan kokonaisrakennusoikeus on 246 k-m2. Lisätietoja Raahen kaupunki p. 08 439 3111.
- Rakennusoikeus e-luku
- 0.2
- Kohteesta on energiatodistus
- Ei lain edellyttämää energiatodistusta
- Palvelut
- Vihannin keskustan palvelut noin 800 m. Raahen keskustaan noin 35 km.
- Koulut
- Vihannin yhtenäiskoulu (ala- ja yläaste) noin 2,2 km.
- Kaavoitustiedot
- Asemakaava (ohjeellinen tonttijako), yleiskaava. Lisätietoja Raahen kaupunki p. 08 439 3111.
- Asbestikartoitus
- Ei
- Lisätietoa muista rakennuksista
- Autotalli ja varasto.
Tehdyt remontit
- Maalämpö asennettu.
- Aurinkopaneelit.
- Ikkunat uusittu.
- Peltikate.
- Kylpyhuone/wc ja sauna remontoitu.
- Keittiö remontoitu.
- Kaksi kappaletta ilmalämpöpumppuja.
- Pintaremontteja vuosien varrella.
- Talon laajennus 1992.
- Autotalli rakennettu 2007.
Korjauksista/remonteista ei ole tiedossa tarkkoja vuosia (tehty kuitenkin 2000-luvun puolella).
