Golftie 1
55800, Vuoksenniska, Imatra
5h,k,s
69 000 €
165,5 m²

Tätä asuntoa myy Riitta Niskanen, Kiinteistönvälittäjä, LKV
Huoneistokeskus Oy | Imatra

Sijainti
Asuntoesittely
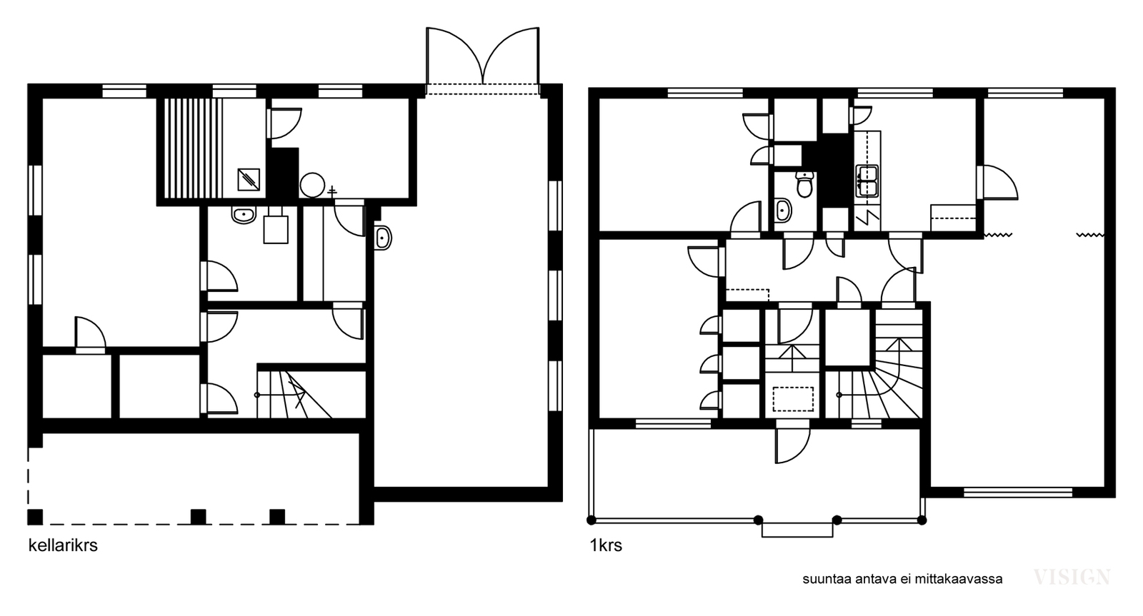
Kookas 60-luvulla valmistunut ja 1978 laajennettu omakotitalo hyvien liikenneyhteyksien ja palveluiden tuntumassa. Avara ja valoisa sisääntulo jatkuu tilavaan yhtenäiseen keittiöön, olohuoneeseen ja ruokailutilaan. Kodista löytyy hyvänkokoiset 4 makuuhuonetta ja kellarissa takkahuone, saunatilat, autotalli ja varastot. Vuosien varrella asuintiloja on remontoitu ja tiloja muokattu useampaan otteeseen. Huolella pidetty rehevä ja suojaisa pihapiiri. Immalanjärven uimaranta sekä Golfkenttä aivan äärellä.
Pohjakuva

Perustiedot
- Sijainti
- Golftie 1, 55800, Vuoksenniska, Imatra
- Omistusmuoto
- Omistusasunto
- Huoneluku
- 5
- Asuinpinta-ala
- 165,5 m²
- Muu pinta-ala
- 44,5 m²
- Kokonaispinta-ala
- 210 m²
- Kohteen tyyppi
- Omakotitalo
- Kerros
- 2
- Lisätietoja rakennusvuodesta
- Alakerta ja kellarikerros valmistunut 1960 ja yläkerta 1978
- Käyttöönottovuosi
- 1960
- Kohde myydään vuokrattuna
- Ei
- Vapautuminen
- Sopimuksen mukaan
Tilat ja materiaalit
- Keittiön lattiat
- Laminaatti
- Keittiön seinät
- Maali
- Keittiön varusteet
- Erillisuuni, jääkaappi, mikroaaltouuni, astianpesukone, ja liesitaso, liesituuletin / hormi
- Liesi
- erillisuuni liesitaso
- Kylpyhuoneen seinät
- Kaakeli
- Kylpyhuoneen lattiat
- Laatta
- Kylpyhuoneen varusteet
- Suihku, peili, lattialämmitys, ja pesukoneliitäntä
- WC Lukumäärä
- 2
- WC:n lattiat
- Muovimatto
- WC:n seinät
- Osalaatoitus
- Makuuhuoneiden lukumäärä
- 4
- Makuuhuoneiden seinät
- Tapetti
- Makuuhuoneiden lattiat
- Muovimatto
- Olohuoneen seinät
- Tapetti
- Olohuoneen lattiat
- Laminaatti
- Kohteen säilytystilat
- Vaatehuone ja ullakko
- Sauna
- Kyllä
- Kiuas
- Sähkökiuas
- Saunan kuvaus
- remontoitu 2017
- Takka
- Takka
Lisätiedot
- Asunnon kunto
- Hyvä
- Lisätietoa seinien pintamateriaaleista
- maalatut, tapetoidut/kangastapettia
- Lisätietoa katon pintamateriaaleista
- paneelia tai styroxlevyä
- Muuta kauppaan kuuluvaa
- Lisätietoja sisältyvistä varusteista: irralliset kaapit, istutukset, jätesäiliö, kiinteät valaisimet, naulakko, pyykinkuivausteline, pyykinpesukone, sälekaihtimet/rullaverhot, verhotangot
Taloyhtiö ja kiinteistö
- Tontin pinta-ala
- 1 248 m²
- Tontin omistus
- Oma
- Tontin tyyppi
- Rinnetontti
- Tontin myyntityyppi
- Koko tontti
- Tontin tiedot
- Hyvin hoidettu vehreä rinnetontti runsain istutuksin
- Käyttö/luovutusrajoitukset
- Asuinkäyttö
- Lämmitysjärjestelmä
- Öljy Puu Sähkö vesikiertoinen lattialämmitys, uuni/takka, vesikiertoinen patterilämmitys
- Kattotyyppi
- harja
- Katemateriaali
- pelti, uusittu 2000-luvulla
- Lisätietoa rakennusoikeudesta
- Imatran kaupunki 020 617 2210
- Lisätietoja liikenneyhteyksistä
- Paikallisliikenteen bussipysäkki Vuoksenniskantiellä
- Tie perille
- Kyllä
- Palvelut
- Vuoksenniskalla kaupat, kirjasto, Honkaharjun sairaala
- Koulut
- Vuoksenniskalla
- Kaavatilanne
- Asemakaava
- Lisätietoa muista rakennuksista
- varastorakennuksia 2 kpl