Haijaistentie 342
21100, Haijainen, Naantali
Oppilaitos
432 000 €

Tätä asuntoa myy Jukka Laine, Kiinteistönvälittäjä, LKV
Solid House | Turku

Sijainti
Asuntoesittely
Monien mahdollisuuksien merenrantakohde Naantalissa
Luonnonmaalla Naantalissa historiallinen Kekkosen vihkimä Metsä-Jukola on alkuperäisesti suunniteltu metsäkouluksi. Kalliolle rakennetusta Jukolasta on huikeat näkymät merelle.
Kyseessä on määräala jolle on mahdollista lohkoa 4kpl rakennuspaikkoja ja niihin on jo haettu rakennusoikeutta.
Käyttämätöntä rakennusoikeutta 334 kem2
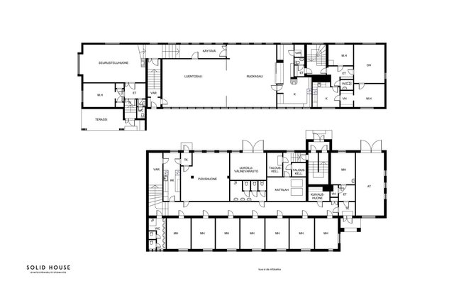
Rakennus on valmistunut 1956 ja siihen on tehty peruskorjaus 1980 luvun loppupuolella. Rakennus käsittää opetustilat, asuntolatilat, keittiötilat wc / pesutilat. Lisäksi pohjoispäädyssä on erillinen asunto ja tekniset tilat. Huoltotoimenpiteet ovat tällä hetkellä tyydyttävällä tasolla. Alapohjarakenteena on kantava teräsbetonilaatta, betonirunko, yläpohja betoni sekä välipohja betoni. Lämmitys on toteutettu öljyllä vesikiertoisilla lämmityspattereilla. Öljysäiliö sijaitsee rakennuksen ulkopuolella maassa. Kohde on liitetty kaupungin vesijohtoverkostoon, jätevedet on johdettu hajoituskaivoon ja sieltä imeytyskenttänä maastoon. Jätevesijärjestelmä tulee uusia. Ilmanvaihto on painovoimainen ja koneellinen poisto. Sähköjä on uusittu 1980 luvun saneerauksenyhteydessä.
Kohde on mielenkiintoinen ja tutustumisen arvoinen. Ole rohkeasti yhteydessä ja käydään paikanpäällä toteamassa olisiko täällä mahdollista toteuttaa juuri sinun unelmat.
Myyntiä hoitaa
Jukka Laine
Kiinteistönvälittäjä LKV, LVV
050 514 6077
[email protected]Perustiedot
- Sijainti
- Haijaistentie 342, 21100, Haijainen, Naantali
- Kokonaispinta-ala
- 666 m²
- Pinta-alan peruste
- Pinta-ala ei ole tarkistusmitattu ja todellinen pinta-ala voi olla suurempi tai pienempi, kuin ilmoitettu
- Lisätiedot pinta-alasta
- Kerrosala 666m2 rakennustietoraportin saadun tiedon mukaan ja asuinpinta-ala 51m2
- Kohteen tyyppi
- Lomahuoneisto
- Rakennusvuosi
- 1956
- Lisätietoja rakennusvuodesta
- Rakennuksen iän takia rakennuslupa- ja loppukatselmusasiakirjoja ei ole saatavilla
- Käyttöönottovuosi
- 1956
- Kohde myydään vuokrattuna
- Ei
- Vapautuminen
- Heti
Hinta ja kustannukset
- Velaton hinta
- 432 000 €
- Myyntihinta
- 432 000 €
- Sähköliittymä siirtyy
- Kyllä
- Lisätietoja maksusta
- Öljyn kulutus myyjän kertoman mukaan peruslämmöllä n.7000 L / V
Tilat ja materiaalit
Lisätiedot
- Lisätietoja kunnosta
- Välittömät korjausehdotukset. Salaojien mikäli löytyy tarkastus, Rännivesien puhdistus ja kallistuksen tarkastus, pensaiden karsiminen itäsivun rakennuksen vierustalta, LVIA- korjausten suunnittelu, kattilahuoneen rikkinäisten asbestieristeiden suojaus, savupiipun kuntotutkimus, lämmitysverkoston ja käyttöveden varoventtiilien uusiminen, Pohjakerroksessa on yhden WC-linjan tukos. Talonmiehen mukaan sitä on kuvattu, mutta kamera ei pääse eteenpäin. Viemäriputkistolle tulee suorittaa kuntotutkimus
- Ranta
- Oma ranta
- Kohde on saaressa
- Ei
- Muut tilat
- Rakennus on valmistunut 1956 ja siihen on tehty peruskorjaus 1980 luvun loppupuolella. Rakennus käsittää opetustilat, asuntolatilat, keittiötilat wc / pesutilat. Lisäksi pohjoispäädyssä on erillinen asunto ja tekniset tilat. Huoltotoimenpiteet ovat tällä hetkellä tyydyttävällä tasolla. Alapohjarakenteena on kantava teräsbetonilaatta, betonirunko, yläpohja betoni sekä välipohja betoni. Lämmitys on toteutettu öljyllä vesikiertoisilla lämmityspattereilla. Öljysäiliö sijaitsee rakennuksen ulkopuolella maassa. Kohde on liitetty kaupungin vesijohtoverkostoon, jätevedet on johdettu hajoituskaivoon ja sieltä imeytyskenttänä maastoon. Jätevesijärjestelmä tulee uusia. Ilmanvaihto on painovoimainen ja koneellinen poisto. Sähköjä on uusittu 1980 luvun saneerauksen yhteydessä.
Taloyhtiö ja kiinteistö
- Tontin pinta-ala
- 6,74 ha
- Tontin omistus
- Oma
- Tontin tyyppi
- Tasamaatontti
- Tontin myyntityyppi
- Määräala
- Käyttö/luovutusrajoitukset
- Käyttötarkoitus tällä hetkellä Ammatillinen oppilaitos ( 521 ) tyhjillään ( 05 ). Vaatii käyttötarkoituksen muutoksen
- Rakennusmateriaali
- Betoni ja tiili
- Lämmitysjärjestelmä
- Öljy
- Vesijohto
- Kunnallisvesi
- Viemäröinti
- Saostussäiliö ja imeytyskenttä
- Lisätietoja viemäristä
- Raksystems kuntoraportin 28.06.2019 korjausehdotuksen mukaan välittömät toimenpiteet jäteveden käsittelyjärjestelmän rakentaminen. Kiinteistöllä ei ole jätevesiasetuksen ( 157 / 2017 ) edellyttämää selvitystä, suunnitelmaa sekä käyttö-ja huolto-ohjetta. Alueella ei ole viemäriverkkojärjestelmää.
- Kattotyyppi
- Harjakatto
- Katemateriaali
- Tiili
- Lisätietoa rakennusoikeudesta
- Loma-asuntojen rakennusoikeus RA alueella 4x50kem2, yht.200 RM-alueelle sovitaan kauppakirjassa 1000kem2 rakennusoikeus, josta on nyt käytetty 666kem2(myytävä rakennus), eli myytävällä RM alueella käyttämätöntä rakennusoikeutta 334kem2
- Kohteesta on energiatodistus
- Ei lain edellyttämää energiatodistusta
- Tie perille
- Kyllä
- Kaavatilanne
- Ranta-asemakaava ja yleiskaava
- Kaavoitustiedot
- Ranta-asemakaava (529-R-2), 13.04.1995 Yleiskaava (529-Y-9), 05.10.2009
- Asbestikartoitus
- Ei
- Lisätietoa asbestikartoituksesta
- Rakennus on rakennettu aikana jolloin asbestia saatettiin käyttää rakennusmateriaaleissa. Asbestin käyttö kiellettiin vuonna 1994. Asbestikartoituksen tekeminen ja siitä aiheutuvat kustannukset ovat remontin teetättäjän vastuulla.
Tehdyt remontit
Kiinteistön ( 521 )sähköjärjestelmät on pääosin uusittu 1980-luvun lopulla. Sähkökeskukset ovat pääosin uusittu 1980 luvun lopulla, mutta vanhempiakin keskuksia havaittiin. Vesijohtoputkia on uusittu ilmeisesti 1980 luvulla, vesijohtoputket ovat kuparia ja osin galvanoitua teräsputkea. Miltä osin vesijohtoputkia on uusittu ei tarkastuskierroksella päässyt selvittämään. Vesihanoja on uusittu -80-90 ja 2000 luvulla, vanhempien vesihanojen ulkoinen kunto on välttävä. Wc- istuimet asennettu -80 luvulla. Lämmitysöljykattiloita on 2kpl ja niiden valmistusvuosi on 1988, paisunta-astia 1999.
