Hakkalantie 10 B
16900, Lammi, Hämeenlinna
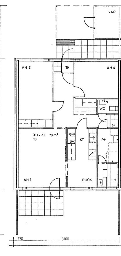
3 h, k, s, ph, wc,
67 000 € (848,10 € / m²)
79 m²

Tätä asuntoa myy Timo Sipponen, Kiinteistönvälittäjä LKV, kaupanvahvistaja
Sp-Koti Hämeenlinna | WM Crew Oy

Sijainti
Asuntoesittely
Hyvän, rauhallisen taloyhtiön päädyssä sijaitseva melko alkuperäsikuntoinen saunallinen 3 h asunto.
Taossa on kaukolämpö. Talon kunnossapito on ollut hyvää, viimeksi uusittu ulko-ovet ja osittain ikkunat 2021 ja vesikatto huippuimureineen 2024. Asunto vapautuu nopeasti.
Pohjakuva

Perustiedot
- Sijainti
- Hakkalantie 10 B, 16900, Lammi, Hämeenlinna
- Omistusmuoto
- Omistusasunto
- Huoneluku
- 3
- Asuinpinta-ala
- 79 m²
- Kokonaispinta-ala
- 79 m²
- Pinta-alan peruste
- Yhtiöjärjestyksen mukainen, Isännöitsijäntodistuksen mukainen, (Pinta-ala ei ole tarkistusmitattu ja todellinen pinta-ala voi olla suurempi tai pienempi, kuin ilmoitettu)
- Lisätiedot pinta-alasta
- Ei tarkistusmitattu. Pinta-alat saattavat tämän ikäisissä kohteissa (yhtiö rekisteröity ennen 01.01.1992) poiketa olennaisestikin asuinrakennusten nykyisten mittaustapojen ja standardien (SFS 5139) mukaan laskettavasta asuintilojen pinta-alasta. Pinta-ala voi siis olla edellä mainittua pienempi tai suurempi.
- Kohteen tyyppi
- Rivitalo
- Kerros
- 1 / 1
- Rakennusvuosi
- 1981
- Käyttöönottovuosi
- 1981
- Kohde myydään vuokrattuna
- Ei
- Vapautuminen
- Sopimuksen mukaan
- Lisätietoja vapautumisesta
- n 1 kk kaupasta
Tilat ja materiaalit
- Keittiön kuvaus
- Alkuperäiset keittiökaapistot
- Keittiön lattiat
- Muovimatto
- Keittiön seinät
- Maali
- Keittiön varusteet
- Jääkaappipakastin ja liesi
- Liesi
- Keraaminen liesi
- Kylpyhuone
- Alkuperäiset laatoitukset ym
- Kylpyhuoneen seinät
- Kaakeli ja 1 seinä muovitapetti
- Kylpyhuoneen lattiat
- Laatta
- Kylpyhuoneen varusteet
- Suihku, pesukoneliitäntä, peili, ja pesuallas
- WC Lukumäärä
- 1
- WC:n lattiat
- Muovimatto
- Makuuhuoneiden lukumäärä
- 2
- Makuuhuoneiden seinät
- Tapetti
- Makuuhuoneiden lattiat
- Muovimatto
- Olohuoneen seinät
- Tapetti ja puolipaneeli
- Olohuoneen lattiat
- Muovimatto
- Kohteen säilytystilat
- Ulkovarasto asunnon yhteydessä
- Sauna
- Kyllä
- Kiuas
- Sähkökiuas
- Saunan kuvaus
- Alkuperäinen sauna, kiuas uusittu
Lisätiedot
- Asunnon kunto
- Tyydyttävä
- Lisätietoa katon pintamateriaaleista
- Katot pääosin tasoitetepinnalla
Taloyhtiö ja kiinteistö
- Taloyhtiön nimi
- Asunto Oy Mylly
- Isännöitsijätoimisto
- Lammin Kiinteistökeskus Oy
- Isännöitsijän nimi
- Henri Vilén
- Isännöitsijän sähköposti
- [email protected]
- Isännöitsijän puhelin
- 0405307584
- Tuotot
- 0,0
- Tontin pinta-ala
- 5 409 m²
- Tontin omistus
- Oma
- Rakennusmateriaali
- Puu
- Lämmitysjärjestelmä
- Kaukolämpö
- Ilmanvaihto
- Koneellinen ilmanvaihto
- Vesijohto
- Kunnallisvesi
- Viemäröinti
- Kunnallinen viemäriverkosto
- Kattotyyppi
- Harjakatto
- Katemateriaali
- Pelti
- Lisätietoja kiinteistönhoidosta
- Huoltoyhtiö
- Taloyhtiössä on
- kuivaushuone ja kaapeli-tv
- Lunastusoikeus yhtiöllä
- Ei
- Lunastusoikeus osakkaille
- Ei
- Kohteesta on energiatodistus
- Ei lain edellyttämää energiatodistusta
- Liikenneyhteydet
- Bussipysäkki lähellä ja sujuvat yhteydet omalla autolla
- Palvelut
- Lammin keskustassa n 500 m päässä S-ja K-Market, rautakauppa, kirjasto, uimahalli. Terveyskeskus n 1 km
- Koulut
- Yläaste n 300 m, ala-aste n 1,5 km
- Taloyhtiön autopaikat
- Autopaikat yhtiön hallinnassa
- Sähköpistokepaikkoja
- 13 kpl
- Piha-autopaikkoja
- 13 kpl
- Taloyhtiöllä sauna
- Ei
- Kaavatilanne
- Asemakaava
- Lisätiedot kaavoituksesta
- AR 1
- Asbestikartoitus
- Ei
- Taloyhtiön kiinnitykset
- 175 228 €
- Taloyhtiön kiinnitysten päivämäärä
- Isännöitsijäntodistuksen päivämäärän mukainen
Tehdyt remontit
Palovaroittimien uusiminen kaikkiin asuntoihin v. 2025
Vesikaton ja huippuimureiden uusiminen v. 2024
Näkösuoja-aidan asennus parkkipaikan ja tien väliin v. 2023
Kurtturuusut poistettu tien ja parkkipaikan välistä v. 2022
Etupihanpuolen ikkunoiden ja ulko-ovien sekä terassien ovien uusiminen v. 2021
Postilaatikoiden uusiminen v. 2020
Väliaitojen kunnostaminen v. 2020
Oleskelupihan kunnostaminen (keinu kunnostettu, leikkimökki ja pihalaatoitus uusittu sekä korjattu A-talon lämmönjakohuoneen seinustan pihan kaato) v. 2019
Ilmanvaihtoventtiilien lisääminen ulkovarastoihin v. 2019
Sammaleen poisto katoilta v. 2018
Iv-kanavien ja venttiilien puhdistus ja säätö v. 2015
Talojen päätyihin tuuletusritilöiden asennus v. 2015
Katon läpivientien maalaus v. 2015
Lämmönjakohuoneen alajakokeskuksen ja patteriventtiilien uusiminen v. 2014
Jätekatoksen ja keinun maalaus v. 2014
Vesikaton piippujen ja tarkistusluukkujen korjaus v. 2013
Tulevat remontit
Jätekatoksen kunnostus ja maalaus sekä väliaitojen paikkakorjaus v. 2025
Rakennusten puuosien maalaus / uusiminen v. 2025
Kuivaushuoneen ja polkupyörävaraston lattian maalaaminen v. 2027
