Haukantie 7
81100, Keskusta, Kontiolahti
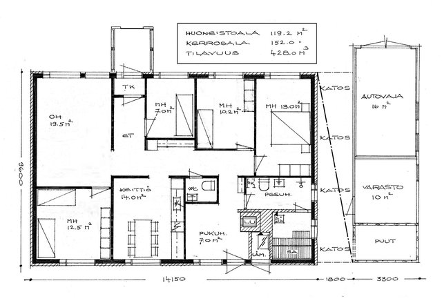
Oh+4mh+k+pukuh+ph+s+wc
35 000 €
119,5 m²

Tätä asuntoa myy Jarmo Ryhänen, Kiinteistönvälittäjä
LKV OGZ | Jokaisen Huoneistokauppa Oy *

Sijainti
Asuntoesittely
Ryhdikäs, tilava koti etsii uutta korjaus- ja remonttitaitoista omistajaa!
Kontiolahden keskustan tuntumassa tilava 4 makuuhuoneen omakotitalo jossa muutkin huonetilat ovat mukavan väljät.
Tässä kohteessa on mahdollisuus toteuttaa omia remontti ja korjausrakentamisen haaveita.
Rakennus on asuinkunnossa jos vain pinnat sopii omaan makuun.
Pesuhuoneen täysremontti olisi kyllä tarpeen ettei satu vahinkoa rakenteille.
Tee tästä itsellesi ja perheellesi mieleinen tilava koti.
Talon vesikate, vesikourut ja syöksyt ovat suhteellisen uudet.
Kohde myydään saneerattavaksi asuinkäyttöön.
Sovi esittely kohteeseen ja totea itse korjauksen/remontoinnin tarve.
Esittelyt ja lisätiedot: Ryhänen 050 4955 139Perustiedot
- Sijainti
- Haukantie 7, 81100, Keskusta, Kontiolahti
- Huoneluku
- 5
- Asuinpinta-ala
- 119,5 m²
- Muu pinta-ala
- 33 m²
- Kokonaispinta-ala
- 152,5 m²
- Pinta-alan peruste
- Pinta-ala ei ole tarkistusmitattu ja todellinen pinta-ala voi olla suurempi tai pienempi, kuin ilmoitettu
- Kohteen tyyppi
- Omakotitalo
- Kerros
- 1
- Rakennusvuosi
- 1979
- Käyttöönottovuosi
- 1979
- Kohde myydään vuokrattuna
- Ei
- Vapautuminen
- Sopimuksen mukaan
Tilat ja materiaalit
- Keittiön lattiat
- Muovimatto
- Keittiön seinät
- Maali
- Keittiön varusteet
- Liesi, astianpesukone, jääkaappi, ja liesituuletin
- Liesi
- Valurautaliesi
- Kylpyhuoneen seinät
- Muovimatto
- Kylpyhuoneen lattiat
- Muovimatto
- Kylpyhuoneen varusteet
- WC-istuin, suihku, pesukoneliitäntä, ja pesuallas
- WC Lukumäärä
- 1
- WC:n lattiat
- Muovimatto
- WC:n seinät
- Muovimatto
- Makuuhuoneiden lukumäärä
- 4
- Makuuhuoneiden seinät
- Maali ja tapetti
- Makuuhuoneiden lattiat
- Muovimatto
- Olohuoneen seinät
- Paneeli ja tapetti
- Olohuoneen lattiat
- Muovimatto
- Kohteen säilytystilat
- Kylmä ulkovarasto, kaapistot ja seinäkaapit
- Sauna
- Kyllä
- Kiuas
- Puukiuas
- Takka
- Tiilimuurattu leivinuuni
Lisätiedot
- Asunnon kunto
- Tyydyttävä
- Lisätietoja kunnosta
- Ryhdikäs rakennus. Huonetilojen pinnat ja kalustus pääasiassa rakennuksen valmistumisen ajoilta. Uusi omistaja ottaa vastatakseen kaikista mahdollisista rakennusten korjaamiseen, saneeraamiseen ja mahdollisen purkamisen toimenpiteistä ja niistä kustannuksista huolimatta siitä, oliko niitä huomioitu kauppahinnassa, tai olivatko ne kaupantekohetkellä piileviä, tai onko niillä haitallista vaikutusta tai ei.
- Muut tilat
- Kotitalous-/pukuhuone tila jossa on leivinuuni ja kulku takapihalle. Samasta tilasta käynti pesuhuoneeseen ja saunaan.
- Lisätietoa seinien pintamateriaaleista
- Huonetilojen seinät pääasiassa maalattua lastulevyä ja tapetoitua levyseinää.
- Lisätietoa lattioiden pintamateriaaleista
- Kaikissa tiloissa muovimatto.
- Lisätietoa katon pintamateriaaleista
- Puupaneelia.
Taloyhtiö ja kiinteistö
- Tontin omistus
- Vuokra
- Tontin tyyppi
- Tasamaatontti
- Tontin myyntityyppi
- Määräala
- Maanvuokraaja
- Kontiolahden kunta
- Tontin tiedot
- Tontti on vuokraoikeuden määräala. Vuokrasopimuksen loppuessa on mahdollista uusia vuokrasopimus. Tällöin maanvuokraaja Kontiolahti asettaa maksettavan vuokran / vuosi uuteen vuokrasopimukseen. Alkuperäisessä vuokrasopimuksessa on ilmoitettu tontin koko 930 m². Tämä saattaa muuttua uudessa vuokrasopimuksessa joka on sitten uuden vuokran määrän / vuosi peruste.
- Tontin vuosivuokra
- 130 €
- Vuokra-aika päättyy
- 01.08.2027
- Rakennusmateriaali
- Puu, tiili ja tiiliverhoilu
- Lämmitysjärjestelmä
- Puu Öljy Vesikiertopatterit
- Ilmanvaihto
- Painovoimainen ilmanvaihto
- Vesijohto
- Kunnallisvesi
- Viemäröinti
- Kunnallinen viemäriverkosto
- Kattotyyppi
- Harjakatto
- Katemateriaali
- Pelti
- Rakennusoikeus
- 232.5
- Lisätietoa rakennusoikeudesta
- Rakennusoikeus on laskettu määräalan 930 m² pinta-alan mukaan.
- Rakennusoikeus e-luku
- 0.25
- Kohteesta on energiatodistus
- Kohteella ei energiatodistuslain nojalla tarvitse olla energiatodistusta
- Paikallistiedot
- Rivi- ja omakotialojen asuinalue.
- Palvelut
- Kontiolahden ydinkeskustaan matkaa n. 1,3 km.
- Koulut
- Kontiolahden koulukeskus n. 1,7 km.
- Kaavatilanne
- Asemakaava
- Asbestikartoitus
- Ei
- Muut rakennukset
- Talousrakennusosa jossa on autotalli varasto ja polttopuukatos. Yhdistetty katoskäytävällä päärakennukseen. Talousrakennus heikossa kunnossa.
Tehdyt remontit
Vesikate uusittu 2000-luvulla.