Haukjärventie 464
46230, Pihlajasaari, Kouvola
4mh,k,oh,psh,s
65 000 €
100 m²

Tätä asuntoa myy Päivi Ahlstedt, Kiinteistönvälittäjä, LKV, KiAT
Huoneistokeskus Oy | Kouvola

Sijainti
Asuntoesittely
Valkealan Pihlajasaaressa maalaismaisemissa yli 5 hehtaarin tila.
Maatilan pihapiirissä 1960 luvulla valmistunut kolmikerroksinen tiilitalo, jossa 4 makuuhuonetta. Talo lämpenee puulla, öljyllä tai vaihtoehtoisesti sähköllä. Pihassa myös iso navetta , puuvaja sekä aitta/ riihi. Lopputila on metsää.
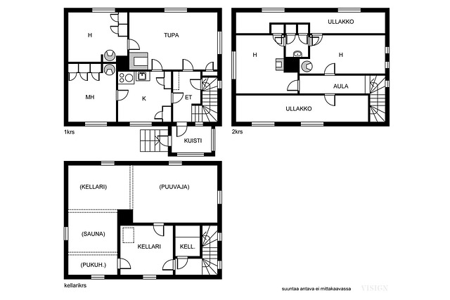
Pohjakuva

Perustiedot
- Sijainti
- Haukjärventie 464, 46230, Pihlajasaari, Kouvola
- Huoneluku
- 5
- Asuinpinta-ala
- 100 m²
- Muu pinta-ala
- 0 m²
- Kokonaispinta-ala
- 100 m²
- Lisätiedot pinta-alasta
- pinta-ala on arvio eikä sitä ole tarkistusmitattu joten se saattaa poiketa olennaisestikin nykystandardein mitattavasta pinta-alasta
- Kohteen tyyppi
- Omakotitalo
- Rakennusvuosi
- 1959
- Lisätietoja rakennusvuodesta
- lupahakemukset 1950 ja 1959
- Kohde myydään vuokrattuna
- Ei
- Vapautuminen
- Sopimuksen mukaan
Tilat ja materiaalit
- Keittiön kuvaus
- keittiön kylmäkoneiden toimivuudesta ei ole tietoa puuliettä on käytetty
- Keittiön lattiat
- Laminaatti
- Keittiön varusteet
- Liesi, jääkaappi, ja erillinen pakastin
- Liesi
- sähköliesi puuliesi
- Kylpyhuoneen seinät
- Kaakeli
- Kylpyhuoneen lattiat
- Laatta
- Kylpyhuoneen varusteet
- Suihku
- WC Lukumäärä
- 1
- WC:n lattiat
- Laatta
- WC:n seinät
- Kaakeli
- Makuuhuoneet
- kaksi makuuhuonetta pääkerroksessa, kaksi yläkerrassa jotka hieman keskeneräiset
- Makuuhuoneiden lukumäärä
- 4
- Makuuhuoneiden seinät
- Maali ja tapetti
- Makuuhuoneiden lattiat
- Laminaatti ja muovimatto
- Olohuoneen seinät
- Maali ja tapetti
- Olohuoneen lattiat
- Laminaatti
- Kodinhoitohuoneen varusteet
- Lattiakaivo ja pesukoneliitäntä
- Kodinhoitohuoneen seinät
- Kaakeli
- Kodinhoitohuoneen lattiat
- Laatta
- Kohteen säilytystilat
- Vinttikomero
- Sauna
- Kyllä
- Kiuas
- Puukiuas
Lisätiedot
- Asunnon kunto
- Tyydyttävä
- Ranta
- Ei rantaa
Taloyhtiö ja kiinteistö
- Tontin pinta-ala
- 5,73 ha
- Tontin omistus
- Oma
- Tontin tyyppi
- Tasamaatontti
- Tontin myyntityyppi
- Koko tontti
- Tontin tiedot
- maatilan pihapiiri ja metsää
- Rakennusmateriaali
- Tiili ja puu
- Lämmitysjärjestelmä
- Sähkö Puu Öljy vesikiertoinen patterilämmitys, uuni/takka
- Lisätietoja vesiputkesta
- Keski-Valkealan vesihuolto-osuuskunta
- Kattotyyppi
- harja
- Katon kunto
- tyydyttävä
- Katemateriaali
- pelti
- Tie perille
- Kyllä
- Palvelut
- Valkeala 20km, Kouvola 30km
- Kaavatilanne
- Kaavoittamaton
- Kaavoitustiedot
- Kouvolan Kaupunki 020 61511
- Asbestikartoitus
- Ei
- Muut rakennukset
- aitta, navetta varasto