Havutie 2
31600, Puistometsä, Jokioinen
5h+k+khh+ph+s+3xwc+kph+aula+vh+et+tk+
169 000 €
262 m²

Tätä asuntoa myy Kimmo Länsikylä, Kiinteistönvälittäjä LKV, LVV, KED, KiLAT
Huoneistokeskus Oy | Forssa

Sijainti
Asuntoesittely
Ihastuttava koti perheelle Jokioisten Puistometsässä
Tämä reilun kokoinen koti tarjoaa reilusti tilaa, edulliset käyttökustannukset ja kaikki mukavuudet, joita perheesi tarvitsee. Rauhallisella ja suojaisalla tontilla sijaitseva 262 m² koti on rakennettu vuonna 1978 ja laajennettu vuonna 2000, jolloin yläkerta lisättiin. Taloa on huollettu säännöllisesti ja se on juuri tehdyn kuntotarkastuksen mukaan erinomaisessa kunnossa.
Energiatehokas ja ympäristöystävällinen maalämpö huolehtii talon lämmityksestä. Tämän ansiosta käyttökustannukset pysyvät vähintäänkin kohtuullisina vaikka kyseessä on suuri talo. Hyvin hoidettu piha-alue tarjoaa rauhoittavan tunnelman jossa viettää vapaa-aikaa. Tilaa leikeille ja pihapeleille löytyy. Tonttia ympäröivän kuusiaidan ansiosta olet täydessä rauhassa poissa ohikulkijoiden silmistä. Lasitettu terassi mahdollistaa ulkoilmasta nauttimisen ympäri vuoden.
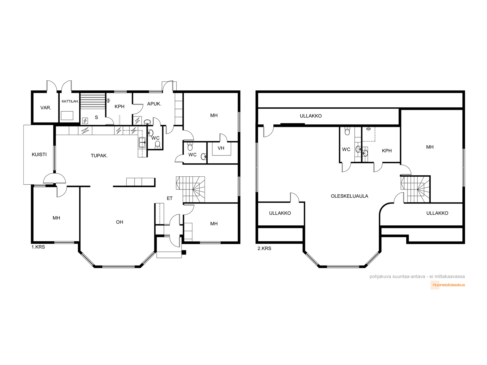
Sisätilat ovat avarat ja valoisat. Suuri pyöreä erkkeri jatkuu alakerrasta yläkertaan ja tuo tiloihin reilusti luonnonvaloa. Yläkerran avara aula sopeutuu moneen käyttötarkoitukseen, osa on tällä hetkellä biljardisalina ja osa toisena olohuoneena. Keittiö on remontoitu 2016 ja sinne mahtuu niin suuri ruokailupöytä kuin vain haluat. Takka luo tunnelmaa talvi-iltoina. Kolme wc:tä tuovat käytännöllisyyttä arkeen, sekä ala- että yläkerrassa on suihku. Huone- ja säilytystilaa on yllin kyllin. Autotalli nosto-ovella suojaa auton niin pakkaselta kuin auringonpaisteelta.
Tämä koti suorastaan odottaa perhettä. Ota yhteyttä ja varaa esittelyaikasi nyt.
Pohjakuva

Perustiedot
- Sijainti
- Havutie 2, 31600, Puistometsä, Jokioinen
- Huoneluku
- 5
- Asuinpinta-ala
- 262 m²
- Muu pinta-ala
- 54 m²
- Kokonaispinta-ala
- 316 m²
- Lisätiedot pinta-alasta
- Pinta-ala perustuu rakennusvalvonnasta saatuun tietoon. Ei tarkistusmitattu. Pinta-ala voi poiketa olennaisestikin nykymääräysten mukaan mitattavista pinta-aloista.
- Kohteen tyyppi
- Omakotitalo
- Kerros
- 2
- Rakennusvuosi
- 1978
- Lisätietoja rakennusvuodesta
- Yläkerta rakennettu 2000. Loppukatselmus yläkertaan 2002
- Käyttöönottovuosi
- 1978
- Kohde myydään vuokrattuna
- Ei
- Vapautuminen
- Sopimuksen mukaan
Hinta ja kustannukset
- Myyntihinta
- 169 000 €
- Sähköliittymä siirtyy
- Kyllä
- Neliöhinta
- 645,04 € / m²
- Lisätietoja maksusta
- Tietoja kiinteistöverosta: 584,75 (2024). Lisätietoja vastikkeista: Sähkön kulutus 2024 10100 kwh/v sisältäen käyttö- ja lämmityssähkön. Esitetyt asumiskustannukset perustuvat nykykäyttöön ja voivat siten olla pienempiä tai suurempia, riippuen asukasmäärästä, asumistottumuksista sekä palveluntarjoajasta. Varainsiirtovero 3 % kauppahinnasta.
Tilat ja materiaalit
- Keittiön lattiat
- Parketti
- Keittiön seinät
- Maali ja osalaatoitus
- Keittiön varusteet
- Erillisuuni, erillinen pakastin, astianpesukone, jääkaappi, liesi, ja liesituuletin / hormi
- Liesi
- Induktioliesi ja erillisuuni
- Kylpyhuoneen seinät
- Kaakeli
- Kylpyhuoneen lattiat
- Laatta
- Kylpyhuoneen varusteet
- Lattialämmitys ja suihku
- WC Lukumäärä
- 3
- WC:n lattiat
- Laatta
- WC:n seinät
- Kaakeli
- Makuuhuoneiden lukumäärä
- 4
- Makuuhuoneiden seinät
- Puolipaneeli, maali ja tapetti
- Makuuhuoneiden lattiat
- Laminaatti
- Olohuoneen seinät
- Tapetti
- Olohuoneen lattiat
- Parketti
- Kodinhoitohuoneen varusteet
- Lattialämmitys, pöytätaso, pesukoneliitäntä, lattiakaivo, ja pesuallas
- Kodinhoitohuoneen seinät
- Maali ja muovi
- Kodinhoitohuoneen lattiat
- Laatta
- Sauna
- Kyllä
- Kiuas
- Puukiuas
- Takka
- Takka
Lisätiedot
- Asunnon kunto
- Hyvä
- Terassi
- Kyllä
- Lisätietoja terassista
- Lasitettu terassi
- Muuta kauppaan kuuluvaa
- Lisätietoja sisältyvistä varusteista: lämminvesivaraaja, sälekaihtimet/rullaverhot, verhotangot
Taloyhtiö ja kiinteistö
- Tontin pinta-ala
- 1 200 m²
- Tontin omistus
- Oma
- Tontin tyyppi
- Tasamaatontti
- Tontin myyntityyppi
- Koko tontti
- Rakennusmateriaali
- Puu ja tiili
- Lämmitysjärjestelmä
- Puu Maalämpö uuni/takka, vesikiertoinen patterilämmitys, vesikiertoinen lattialämmitys, ilmalämmitys
- Vesijohto
- Kunnallisvesi ja käyttövesiputkisto uusittu
- Viemäröinti
- Kunnallinen viemäriverkosto
- Kattotyyppi
- harja
- Katemateriaali
- pelti
- Rakennusoikeus e-luku
- 0.35
- Kohteesta on energiatodistus
- Kyllä
- Energialuokka
- B2018
- Kaavatilanne
- Asemakaava
- Kaavoitustiedot
- (ohjeellinen tonttijako) Jokioisten kunta
- Kuntotutkimus tehty
- 01.01.2025
- Asbestikartoitus
- Ei
- Lisätietoa asbestikartoituksesta
- Rakennus on valmistunut ennen vuotta 1994, eikä asbestikartoitusta ole suoritettu.
- Muut rakennukset
- Autotalli
- Lisätietoa muista rakennuksista
- Grillikatos, hirsimökki, varasto
