Heinlammintie 58A A
15210, Kivimaa, Lahti
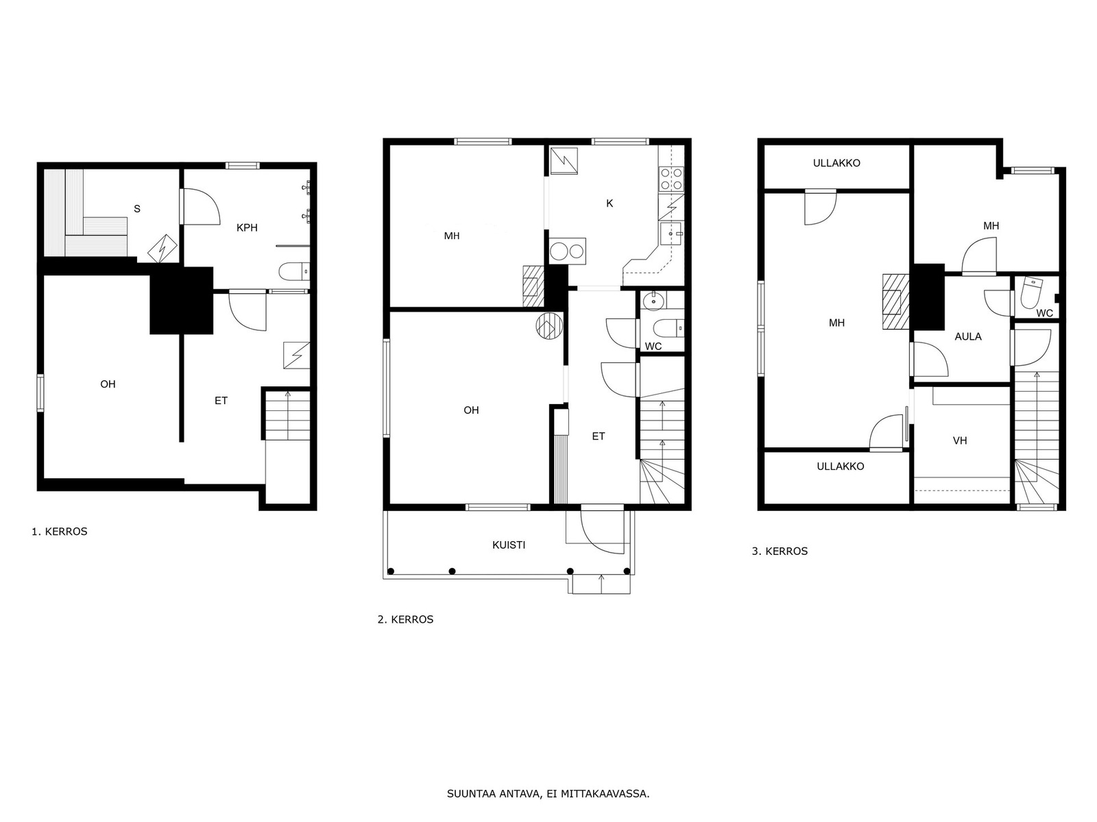
3-4h,k,kph/wc,s,2wc,varastoh,et,kuisti,ulkov
77 000 € (962,50 € / m²)
80 m²

Tätä asuntoa myy Antti Lavonen, Kiinteistönvälittäjä, LKV, kaupanvahvistaja
Huoneistokeskus Oy | Lahti

Sijainti
Asuntoesittely
Idyllistä paritaloasumista 1940-luvulla sodan jälkeen valmistuneella puutaloalueella rauhallisella ja luonnonläheisellä sijainnilla, mutta lähellä palveluita ja keskustaa. Alueen paritalot muodostavat yhdessä Asunto Oy Metsäpelto -nimisen puutaloyhtiön, jossa kullakin asunnolla on käytössään oma suuri ja vehreä puutarhapiha! Tätä asuntoa on remontoitu runsaasti ja hyvällä maulla pitkin 2000-lukua, viimeisimpinä remontteina 2023 julkisivun maalaus ja 2024 keskikerroksen wc:n uudistaminen. Lämmitysmuotoina tunnelmallinen puulämmitys sekä sähköpatterit. Asunto on tyylikäs ja muuttovalmis. Asunto on melkoinen tilaihme, tiloja on kolmessa tasossa eikä kaikkia tiloja ole laskettu asuinneliöihin eli tämä asunto jos joku on "neliöitään suurempi". Varaa oma esittelyaikasi kohteen välittäjältä.
Pohjakuva

Perustiedot
- Sijainti
- Heinlammintie 58A A, 15210, Kivimaa, Lahti
- Omistusmuoto
- Omistusasunto
- Huoneluku
- 3
- Asuinpinta-ala
- 80 m²
- Muu pinta-ala
- 0 m²
- Kokonaispinta-ala
- 80 m²
- Pinta-alan peruste
- Yhtiöjärjestyksen mukainen, Isännöitsijäntodistuksen mukainen
- Kohteen tyyppi
- Paritalo
- Kerros
- 2 / 2
- Rakennusvuosi
- 1946
- Käyttöönottovuosi
- 1946
- Kohde myydään vuokrattuna
- Ei
- Vapautuminen
- 1-2 kk / sopimuksen mukaan
Hinta ja kustannukset
- Velaton hinta
- 77 000 €
- Myyntihinta
- 72 205,85 €
- Velkaosuus
- 4 794,15 €
- Yhtiövastike
- Hoitovastike 280 € / kk, Rahoitusvastike 75 € / kk, Muu vastike 250 € / kk, Yhtiövastike yhteensä 605 € / kk
- Sähköliittymä siirtyy
- Kyllä
- Neliöhinta
- 962,50 € / m²
- Lisätietoja maksusta
- Lisätietoja vastikkeista: Vesimaksu kulutuksen mukaan. Taloyhtiön osakeluettelo on siirretty huoneistotietojärjestelmään. Ostajan tulee hakea omistusoikeuden rekisteröintiä Maanmittauslaitokselta. Ostaja vastaa tällöin omistusoikeuden rekisteröintikustannuksista, mahdollisista osakekirjan mitätöinnistä aiheutuvista kustannuksista sekä mahdollisesta hakemusmaksun korotuksesta. Ostajan pankin ostajalta mahdollisesti veloittamista kaupantekoon, omistusoikeuden rekisteröintiin tai panttausmerkinnän hakemiseen liittyvistä kustannuksista ostaja saa tiedon pankiltaan. Osakekirja toimitetaan siirtomerkinnällä varustettuna Maanmittauslaitokselle maksujen jälkeen allekirjoitusprosessissa annettujen valtuutusten mukaisesti. Siirtomerkitty osakekirja toimii myyjän suostumuksena omistuksen rekisteröinnille ostajan nimiin Maanmittauslaitoksen huoneistotietojärjestelmään. Ostaja on tietoinen siitä, että hänen tulee hakea omistusoikeutensa rekisteröintiä huoneistotietojärjestelmään Maanmittauslaitokselta kahden kuukauden kuluessa kauppakirjan allekirjoituksesta. Samalla paperinen osakekirja mitätöidään Maanmittauslaitoksen toimesta. DIAS-kaupassa ostajan asiamiehenä omistusoikeuden rekisteröinnissä toimii ostajan pankki
Tilat ja materiaalit
- Keittiön lattiat
- Lauta
- Keittiön seinät
- Tapetti ja puolipaneeli
- Keittiön varusteet
- Astianpesukone, liesi, jääkaappipakastin, ja liesituuletin
- Liesi
- sähköliesi
- Kylpyhuoneen seinät
- Kaakeli
- Kylpyhuoneen lattiat
- Laatta
- Kylpyhuoneen varusteet
- WC-istuin, lattialämmitys, ja suihku
- WC Lukumäärä
- 2
- WC:n lattiat
- Muovimatto
- WC:n seinät
- Puu ja maali
- Makuuhuoneiden lukumäärä
- 2
- Makuuhuoneiden seinät
- Tapetti
- Makuuhuoneiden lattiat
- Lauta
- Olohuoneen seinät
- Tapetti
- Olohuoneen lattiat
- Lauta
- Sauna
- Kyllä
- Kiuas
- Puukiuas
Lisätiedot
- Asunnon kunto
- Hyvä
- Muuta kauppaan kuuluvaa
- Lisätietoja sisältyvistä varusteista: hälytys- /valvontajärjestelmä, lämminvesivaraaja, sälekaihtimet/rullaverhot, verhotangot
Taloyhtiö ja kiinteistö
- Taloyhtiön nimi
- Asunto-osakeyhtiö Metsäpelto
- Isännöitsijätoimisto
- Isännöinti-Duo
- Isännöitsijän nimi
- Tero Sundman
- Taloyhtiön lisätiedot
- Tietoja lainojen pituuksista: 15.1.2033 asti. Lisäksi taloyhtiön luottoihin hoitolaina 57 000 € ja tililimiitti 10 000 €
- Tontin pinta-ala
- 38 071 m²
- Tontin omistus
- Vuokra
- Maanvuokraaja
- Lahden kaupunki
- Tontin vuosivuokra
- 26 284,34 €
- Vuokra-aika päättyy
- 31.12.2045
- Rakennusmateriaali
- Puu
- Lämmitysjärjestelmä
- Puu Sähkö
- Kattotyyppi
- Harjakatto
- Katemateriaali
- pelti
- Lisätietoja kiinteistönhoidosta
- Asukkaat
- Lisätietoja energiatodistuksesta
- Tässä kohteessa energiatodistusta ei tarvita, koska kyseessä suojelukohde
- Kaavatilanne
- Asemakaava
- Lisätiedot kaavoituksesta
- Lahden kaupunki, p. 03 814 2355
- Asbestikartoitus
- Ei
- Lisätietoa asbestikartoituksesta
- rakennus on valmistunut ennen vuotta 1995 eikä asbestikartoitusta ole tehty
- Taloyhtiön kiinnitykset
- 1 700 000 €
Tehdyt remontit
Yhtiössä tehdyt remontit:
2012 Hulevesijärjestelmän pesu/puhdistus
2012 Rännien kunnostus
2012-2014 Sähkökeskukset uusittu
2014 Talon 48 salaojat
2016 Vanhan betonilinjan korjaus ja uusiminen
2016-2017 Talojen 16 ja 18 salaojat
2017-2018 Talojen 24 ja 32 salaojat
2019 Talon 14 salaojat
2020 Talojen 18-24 vanhan betonilinjan uusiminen
2021 Talon 16 kattosillat ja lapetikkaat
2022 Talon 20 salaojat ja yläpohja
2022 Talon 36 salaojat
2023 Talon 56 salaojat
2023 Talojen 12-60 tuuletusritilät
2024 Talon 34 salaojat
Tulevat remontit
Taloyhtiön korjaustarvesuunnitelma seuraaville viidelle vuodelle:
-neljän talon salaojaremontti (28, 50, 58, 60), NÄISTÄ EI TULE LISÄKULUJA OSTAJALLE, VAAN NÄMÄ KATETAAN ENNAKKOON KERÄTYILLÄ KORJAUSVASTIKKEILLA
-salaojaremontin yhteydessä tarkastetaan/korjataan perustuksia ja runkoa, NÄISTÄ EI TULE LISÄKULUJA OSTAJALLE, VAAN NÄMÄ KATETAAN ENNAKKOON KERÄTYILLÄ KORJAUSVASTIKKEILLA
-viemärijärjestelmän pesu ja kuvaus
-tarpeen mukaan talojen maalausta ja vesijärjestelmän tarkastusta
-rikkinäisten ikkunoiden korjausta, ylälyhtyjen maalausta