Helsingintie 17-19 C
03600, Karkkila
3h, k, kph
59 000 € (967,21 € / m²)
61 m²

Tätä asuntoa myy Ida Wiik, Asuntomyyjä
Huoneistokeskus Oy | Karkkila

Sijainti
Asuntoesittely
Tervetuloa kodikkaaseen kerrostalo kolmioon Karkkilan palveluiden välittömässä läheisyydessä.
Yhtiössä on maalämpö, joten voit nauttia lämmöstä talvellakin ilman huolia lämmityslaskuista. Taloyhtiössä on kaksi rakennusta, silti asut kuin pienkerrostalossa, omalla suojaisalla ja erittäin hyvin pidetyllä pihalla. Tule tutustumaan tähän kokonaisuuteen, kun sinulle sopii.
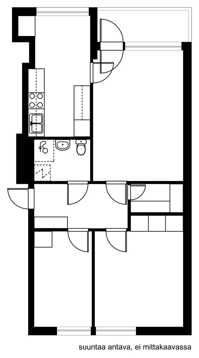
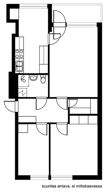
Pohjakuva

Perustiedot
- Sijainti
- Helsingintie 17-19 C, 03600, Karkkila
- Omistusmuoto
- Omistusasunto
- Huoneluku
- 3
- Asuinpinta-ala
- 61 m²
- Kokonaispinta-ala
- 61 m²
- Pinta-alan peruste
- Isännöitsijäntodistuksen mukainen
- Kohteen tyyppi
- Kerrostalo
- Kerros
- 1 / 2
- Rakennusvuosi
- 1963
- Käyttöönottovuosi
- 1963
- Kohde myydään vuokrattuna
- Ei
- Vapautuminen
- Sopimuksen mukaan
Hinta ja kustannukset
- Velaton hinta
- 59 000 €
- Myyntihinta
- 56 787,20 €
- Velkaosuus
- 2 212,80 €
- Yhtiövastike
- Hoitovastike 276 € / kk, Rahoitusvastike 69,92 € / kk, Yhtiövastike yhteensä 345,92 € / kk
- Autopaikkamaksu
- 8 € / kk
- Saunamaksu
- 8 € / kk
- Vesimaksu
- 27 € / hlö
- Neliöhinta
- 967,21 € / m²
- Lisätietoja maksusta
- Lisätietoja vastikkeista: autotali 37,00€/kk
Tilat ja materiaalit
- Keittiön lattiat
- Laminaatti
- Keittiön seinät
- Maali
- Keittiön varusteet
- Liesituuletin, jääkaappi, ja astianpesukone
- Liesi
- Keraaminen liesi
- Kylpyhuone
- pesu-allas, allaskaappi
- Kylpyhuoneen seinät
- Kaakeli
- Kylpyhuoneen lattiat
- Laatta
- Kylpyhuoneen varusteet
- WC-istuin, peilikaappi, pesukoneliitäntä, suihkukaappi, ja suihku
- Makuuhuoneiden lukumäärä
- 2
- Makuuhuoneiden seinät
- Tapetti
- Makuuhuoneiden lattiat
- Laminaatti
- Olohuoneen seinät
- Tapetti
- Olohuoneen lattiat
- Laminaatti
Lisätiedot
- Asunnon kunto
- Hyvä
- Näkymät
- Taloyhtiön pihalle ja kaupungin liikenteeseen.
- Parveke
- Lasitettu parveke
- Parvekkeen ilmansuunta
- Etelä
Taloyhtiö ja kiinteistö
- Taloyhtiön nimi
- Asunto-osakeyhtiö Helsingintie 17-19
- Isännöitsijän nimi
- Vesa Ryyppö
- Tontin pinta-ala
- 2 745 m²
- Tontin omistus
- Vuokra
- Maanvuokraaja
- Karkkilan Kaupunki
- Tontin vuosivuokra
- 7 411 €
- Vuokra-aika päättyy
- 15.12.2072
- Rakennusmateriaali
- Betoni
- Lämmitysjärjestelmä
- Maalämpö
- Kattotyyppi
- harjakatto
- Katemateriaali
- pelti
- Lisätietoja kiinteistönhoidosta
- Huoltoyhtiö
- Kiinteistönhoidon lisätiedot
- Kiinteistökolmio H&N
- Taloyhtiössä on
- Pesutupa, askarteluhuone, urheiluvälinevarasto, kellarikomero, ja sauna
- Kohteesta on energiatodistus
- Kyllä
- Energialuokka
- E2013
- Lisätietoja huoneiston autopaikasta
- Autopaikat isännöitsijän kautta.
- Autotallit
- 10
- Sähköpistokepaikkoja
- 6 kpl
- Taloyhtiöllä sauna
- Kyllä
- Kaavatilanne
- Asemakaava
- Lisätiedot kaavoituksesta
- Karkkilan Kaupunki 09-42583600
- Asbestikartoitus
- Ei
- Lisätietoa asbestikartoituksesta
- Taloyhtiö valmistunut ennen vuotta 1994 eikä asbestikartoitusta ole tehty
- Taloyhtiön kiinnitykset
- 100 000 €
Tehdyt remontit
Käyttövesiputket -96, katon maalaus -02, julkisivu ja ikkunat -06, lämmönsäätö automatiikka -08, ulko-ovien korjaus -10, maalämpö -12, viemäripinnoitus osin -15, pohjaviemärien uusinta ja lämmityskattilan uusinta ja öljysäiliön 10m3 puhdistus -17, rännit -23, julkisivulevyt kiinnitetty -24
Tulevat remontit
Märkätilojan uusitaan tarvittaessa yksitellen, tutkittu Raksystems toimesta. Katon huoltomaalaus 2026-2027, Kuivaushuoneen kunnostus.
