Helsingintie 6 A
02700, Kauniainen
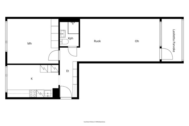
2h, k, kph, parveke
279 000 € (4 689,08 € / m²)
59,5 m²

Tätä asuntoa myy Jukka Norta, Kiinteistönvälittäjä, LKV, LVV
Roof Espoo | ROOF LKV Espoo Oy

Sijainti
Asuntoesittely
Kaunis ja toimiva koti halutussa, hyvin hoidetussa taloyhtiössä, jossa mm. maalämpö ja uima-allas!
Tervetuloa tutustumaan tähän avaraan ja selkeäpohjaiseen kotiin, jossa viihtyisyys ja toimivuus kohtaavat.
Kodikkaasta olohuoneesta avautuu iso, valoa tulviva ikkuna, ja sieltä on käynti tilavalle lasitetulle parvekkeelle – täydellinen paikka rentoutua.
Keittiö sijaitsee käytännöllisesti omassa rauhassaan lähellä sisäänkäyntiä. Se on moderni ja tyylikäs: integroidut kodinkoneet, runsaasti kaappi- ja laskutilaa sekä paikka ruokapöydälle tai työpisteelle. Maisemaikkuna tuo runsaasti luonnonvaloa tilaan.
Valoisa makuuhuone tarjoaa erinomaiset säilytystilat kiinteine kaapistoineen, ja tyylikäs kylpyhuone on remontoitu syksyllä 2025 – raikas ja moderni ilme on valmiina uudelle asukkaalle.
Asunto sijaitsee erinomaisella paikalla, Kauniaisten keskustan tuntumassa, aivan monipuolisten palveluiden ja harrastusmahdollisuuksien läheisyydessä.
Tämä hyvin hoidettu taloyhtiö tarjoaa ekologista asumista maalämmön ansiosta, ja suurimmat remontit ovat tehty. Harvinaisena etuna taloyhtiössä on myös uima-allasosasto – arjen luksusta parhaimmillaan.
Tervetuloa tutustumaan tähän kauniiseen ja toimivaan huoneistoon!
Yksityisesittelyt ja lisätiedot:
Jukka Norta
Kiinteistönvälittäjä, LKV, LVV
0400 461 415Perustiedot
- Sijainti
- Helsingintie 6 A, 02700, Kauniainen
- Omistusmuoto
- Omistusasunto
- Huoneluku
- 2
- Asuinpinta-ala
- 59,5 m²
- Kokonaispinta-ala
- 59,5 m²
- Pinta-alan peruste
- Yhtiöjärjestyksen mukainen, Isännöitsijäntodistuksen mukainen, (Pinta-ala ei ole tarkistusmitattu ja todellinen pinta-ala voi olla suurempi tai pienempi, kuin ilmoitettu)
- Lisätiedot pinta-alasta
- Pinta-alaa ei ole tarkistusmitattu. Pinta-ala voi olla ilmoitettua suurempi tai pienempi.
- Kohteen tyyppi
- Kerrostalo
- Kerros
- 1 / 3
- Rakennusvuosi
- 1975
- Kohde myydään vuokrattuna
- Ei
- Vapautuminen
- Sopimuksen mukaan
Hinta ja kustannukset
- Velaton hinta
- 279 000 €
- Myyntihinta
- 273 219,19 €
- Velkaosuus
- 5 780,81 €
- Yhtiövastike
- Hoitovastike 285,60 € / kk (4,80 € / m²), Korjausvastike 76,16 € / kk (1,28 € / m²), Yhtiövastike yhteensä 361,76 € / kk
- Autopaikkamaksu
- 12 € / kk
- Saunamaksu
- 25 € / kk
- Vesimaksu
- 15 € / hlö / kk
- Neliöhinta
- 4 689,08 € / m²
- Lisätietoja maksusta
- Autopaikka kylmä 8,00 €/kk, autopaikka sähköautolle 20,00 €/kk. Autotalli iso, 72,00 €/kk, autotalli iso, leveä, 84,00 €/kk, autotalli pieni 48,00 €/kk, autotalli pieni, leveä 60,00 €/kk. Varsinainen yhtiökokous 5.5.2025
Tilat ja materiaalit
- Keittiön kuvaus
- Tyylikäs, vuonna 2020 saneerattu keittiö. Keittiössä maisemaikkuna. induktioliesi, liesituuletin, uuni, hana, kaapistot, allas, astianpesukone, jääkaappipakastin. Lattia laminaattia, seinät ovat maalattu.
- Kylpyhuone
- Kylpyhuoneen saneeraus on valmistunut 09/25. Raikas kylpyhuone, jossa suihku, lasinen suihkuseinä, wc-istuin, pesukoneliitäntä, alla, allas hana, peilikaappi, allaskaappi sekä lattialämmitys. Lattia sekä seinät ovat laatoitettu.
- Makuuhuoneet
- Rauhallinen makuuhuone sisäpihan puolelle. Kaapistot vaatteiden- sekä tavaroiden säilyttämiseen. Laminaatti lattia, seinät ovat maalattu.
- Makuuhuoneiden lukumäärä
- 1
- Olohuone
- Tilava ja valoisa olohuone. Laminaatti lattia, seinät ovat maalattu. Olohuoneesta uloskäynti lasitetulle parvekkeelle.
- Sauna
- Ei
Lisätiedot
- Asunnon kunto
- Hyvä
- Näkymät
- Etupihalle sekä takapihan puistoon
- Parveke
- Lasitettu parveke
- Parvekkeen ilmansuunta
- Etelä
- Hissi
- Kyllä
- Muut tilat
- Sisäänkäynnin aulatilassa kaapistot vaatteiden säilyttämiseen.
- Lisätietoa seinien pintamateriaaleista
- Seinät ovat pääosin maalattu
- Lisätietoa lattioiden pintamateriaaleista
- Laminaattilattia
Taloyhtiö ja kiinteistö
- Taloyhtiön nimi
- Asunto Oy Maisterinkulma
- Isännöitsijätoimisto
- Fluxio isännöinti Oy
- Isännöitsijän nimi
- Jari Pellas
- Isännöitsijän puhelin
- 0103390533
- Taloyhtiön lisätiedot
- Taloyhtiössä on huoneistokohtaiset vesimittarin etälukijat. Vesimittarin etälukija on osakkaan vastuulla. Jos lukija häviää/vahingoittuu, taloyhtiö ei sitä korvaa.
- Tontin pinta-ala
- 6 363 m²
- Tontin omistus
- Oma
- Rakennusmateriaali
- betoni
- Lämmitysjärjestelmä
- Maalämpö
- Ilmanvaihto
- LTO / Koneellinen poisto
- Vesijohto
- Kunnallisvesi
- Viemäröinti
- Kunnallinen viemäriverkosto
- Kattotyyppi
- Tasakatto
- Katemateriaali
- Kumibitumi
- Lisätietoja kiinteistönhoidosta
- Huoltoyhtiö
- Kiinteistönhoidon lisätiedot
- Selco Oy
- Taloyhtiössä on
- Ullakko, askarteluhuone, kuivaushuone, urheiluvälinevarasto, uima-allas, jäähdytetty kellari, väestönsuoja, pesutupa, mankeli, ja kellarikomero
- Lunastusoikeus yhtiöllä
- Ei
- Lunastusoikeus osakkaille
- Ei
- Kohteesta on energiatodistus
- Kyllä
- Energialuokka
- B2018
- Energiatodistuksen voimassaolo
- 16.3.2023
- Lisätietoja liikenneyhteyksistä
- Erinomaiset liikenneyhteydet linja-autolla tai Junalla.
- Palvelut
- Kaikki peruspalvelut, kuten terveyskeskus, kirjasto ja ravintolat kävelyetäisyyden päässä. Ruokakaupat, Sale Grani (etäisyys n. 0.5 km), Kauppakeskus Grani (K-Supermarket, S-Market) (etäisyys n. 0.8 km)
- Koulut
- Suomen- sekä Ruotsin kieliset koulut Kauniaisissa
- Lisätietoja huoneiston autopaikasta
- Autopaikkoja 45 kpl, joista 13 kpl autotalleja ja 19 kpl sähköistettyä autopaikkaa joista 6 kpl sähköautojen latauspistettä. Lisäksi 5 "kylmää" autopaikkaa.
- Taloyhtiön autopaikat
- Autopaikkoja 45 kpl, joista 13 kpl autotalleja ja 19 kpl sähköistettyä autopaikkaa joista 6 kpl sähköautojen latauspistettä. Lisäksi 5 "kylmää" autopaikkaa.
- Autotallit
- 13
- Sähköpistokepaikkoja
- 19 kpl
- Piha-autopaikkoja
- 45 kpl
- Taloyhtiöllä sauna
- Kyllä
- Kaavatilanne
- Asemakaava
- Lisätiedot kaavoituksesta
- Lisätietoja kaavoituksesta Kauniaisten kaupungilta. Puh: 09 50561
- Asbestikartoitus
- Ei
- Taloyhtiön kiinnitykset
- 2 705 200 €
- Taloyhtiön kiinnitysten päivämäärä
- Isännöitsijäntodistuksen päivämäärän mukainen
Tehdyt remontit
Vesikaton korjaus
1995
Käyttövesisiirrin ja lukot uusittiin
1997
Parvekkeet
1999
Lämpöikkunat
2000
Kylpyhuonekorjauksia
2001
Ilmanvaihtokanavien puhdistus ja säätö
2002
Sokkeleiden vesieristys, pihatyöt ja asfaltointi
2004
Ikkunoiden maalaus
2004
Kaapelitelevisioon liittyminen
2004
Uima-allastilan saneeraus
2005
Autosähkötolppien lisääminen
2005
Pihavalaistusta lisättiin
2005
Ulko-oviin koodilukot
2008
Käyttöveden lämmönsiirrin
2009
Jäteaitauksien lautaverhoilun uusiminen
2009
Pohjoissivujen elementtien saumaus
2010
Kunnossapitotarveselvitys Inspecta Oy
2010
Pesulaan pesukone
2011
VTT putkiston kuntotutkimus
2011
Viemäriputkien kuvaus ja huuhtelu
2012
Uima-altaan pohjalaattojen kunnostus
2012
6 talon edustan asfalttipaikkaus
2012
Bauer vedenkäsittelylaite lämmitysverkkoon
2013
Putkiremontin hankesuunnitelma Raksystems Oy
2013
Putkiurakan projektijohtajan nimeämisen selvitys
2014
Uudishissiurakan toteutussuunnittelut aloitettiin, Suomen Hissikonsultti Oy
2014
Uudishissiurakka, Helsingin Laatusaneeraus Oy
2015-2016
Maalämpöön siirtyminen, Tom Allen Senera
2017
Linjasaneerauksen toteutussuunnittelu, Pen&Hammer
2017
Linjasaneeraus, viemäreiden sukitus, käyttöveden, sähköjen ja tietoliikenneverkon uusiminen, Saneerauskolmio Oy
2018-2019
Sähköautojen latauspaikat (6 kpl), Saneerauskolmio Oy
2019
IV-kanavien nuohous
2019
Kunnossapitotarveselvitys, Tapiolan Lämpö Oy
2019
Bauer vedenkäsittelylaite käyttövesiverkkoon, Saneerauskolmio Oy
2019
Katon korjauksen suunnittelu, Kattohoiva Oy
2020
Vesikaton peruskorjaus
2021
Talosaunan kunnostaminen
2021
Julkisivun ja parvekkeiden kuntotutkimus, Kiwa Inspecta Oy
2021
Aurinkosähköjärjestelmä
2022
Julkisivujen ja ikkunoiden korjaussuunnittelu
2023
Leikkitelineen uusiminen
2024
Julkisivun kunnostus ja ikkunoiden uusiminen
2024
Parvekkeiden pintojen kunnostus
2024
Puisten ulko-ovien ja puupaneelipintojen korjaus ja huoltomaalaus
Tulevat remontit
Lukituksen uusiminen
2028
Viemäreiden huuhtelu ja kuvaus
2026
IV-kanavien nuohous ja säätö
2025
Huoneistojen viilennysjärjestelmien kartoittaminen
2027