Herastuomarintie 3
82220, Niittylahti, Joensuu
5h+k+khh+s
197 000 €
152 m²

Tätä asuntoa myy Asunto- ja Kiinteistöpalvelu Varis LKV
Sijainti
Asuntoesittely
Etsitkö tilavaa kotia perheellesi rauhalliselta alueelta? Tämä vuonna 2008 valmistunut omakotitalo Joensuun Niittylahdessa tarjoaa loistavat puitteet viihtyisään asumiseen. Tontti on poikkeuksellisen suuri, noin 1 974 neliömetriä, joten tilaa on esim. lasten leikkeihin tai puutarhanhoitoon.
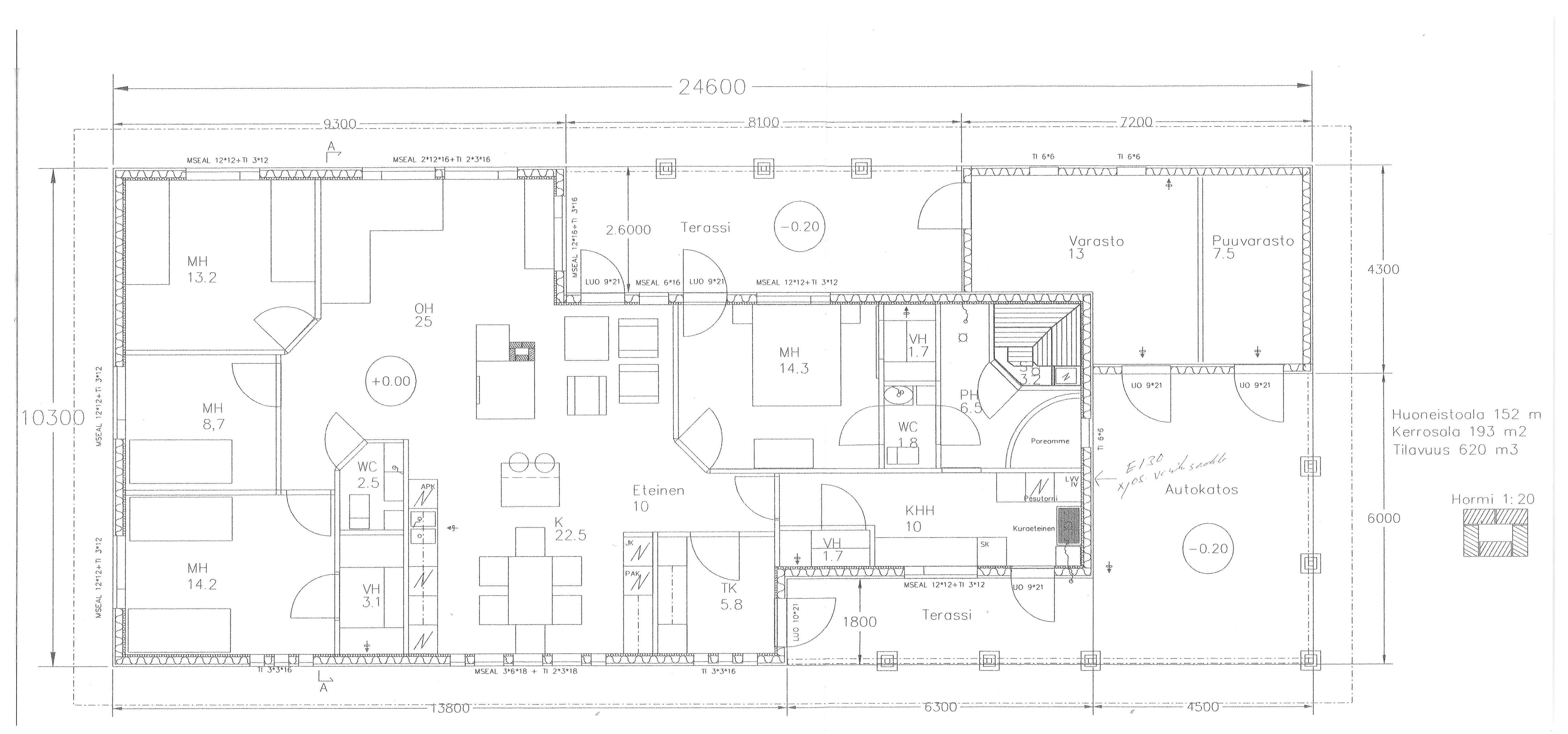
Kodissa on tilavat neljä makuuhuonetta, jotka tarjoavat runsaasti tilaa perheen jokaiselle jäsenelle. Olohuoneen laminaattilattia ja tapetoidut seinät luovat lämpimän tunnelman, ja keittiöstä löytyy kaikki tarvittavat varusteet. Kylpyhuoneen poreamme ja sauna tarjoavat rentouttavia hetkiä arjen keskellä.
Talossa on monipuoliset lämmitysjärjestelmät, sähkölämmityksen tukena toimivat, ilmalämpöpumppu ja leivinuuni. Lisäksi koneellinen ilmanvaihto lämmöntalteenotolla, takaa raikkaan sisäilman vuoden ympäri.
Sijainti on ihanteellinen perheille: lähellä on päiväkoti ja monipuoliset ulkoilumahdollisuudet, ja hyvät liikenneyhteydet helpottavat arjen kulkemista. Niittylahden alueelle on päätetty myös uuden koulun rakentamisesta, joka tulee noin neljän kilometrin päähän talolta.
Tartu tilaisuuteen ja tee tästä talosta unelmiesi koti!
Pohjakuva

Perustiedot
- Sijainti
- Herastuomarintie 3, 82220, Niittylahti, Joensuu
- Huoneluku
- 5
- Asuinpinta-ala
- 152 m²
- Muu pinta-ala
- 20,5 m²
- Kokonaispinta-ala
- 172,5 m²
- Pinta-alan peruste
- Pinta-ala ei ole tarkistusmitattu ja todellinen pinta-ala voi olla suurempi tai pienempi, kuin ilmoitettu
- Lisätiedot pinta-alasta
- Muut tilat: irtainvarasto 13 kem ja puuvarasto 7,5 kem
- Kohteen tyyppi
- Omakotitalo
- Kerros
- 1
- Rakennusvuosi
- 2008
- Käyttöönottovuosi
- 2008
- Kohde myydään vuokrattuna
- Ei
- Vapautuminen
- Sopimuksen mukaan
Tilat ja materiaalit
- Keittiön lattiat
- Vinyyli
- Keittiön seinät
- Tapetti
- Keittiön varusteet
- Jääkaappi, erillinen pakastin, liesituuletin, erillisuuni, astianpesukone, ja leivinuuni
- Liesi
- Induktioliesi
- Kylpyhuoneen seinät
- Kaakeli
- Kylpyhuoneen lattiat
- Laatta
- Kylpyhuoneen varusteet
- Suihku, lattialämmitys, ja poreamme
- WC Lukumäärä
- 2
- WC:n lattiat
- Laatta
- WC:n seinät
- Kaakeli
- Makuuhuoneiden lukumäärä
- 4
- Makuuhuoneiden seinät
- Tapetti
- Makuuhuoneiden lattiat
- Laminaatti
- Olohuoneen seinät
- Tapetti
- Olohuoneen lattiat
- Laminaatti
- Kodinhoitohuoneen varusteet
- Lattialämmitys, pesukoneliitäntä, pöytätaso, kurapiste, pyykkikaapit, ja pesuallas
- Kodinhoitohuoneen seinät
- Lasikuitutapetti
- Kodinhoitohuoneen lattiat
- Laatta
- Kohteen säilytystilat
- Vaatehuone
- Sauna
- Kyllä
- Kiuas
- Sähkökiuas
Lisätiedot
- Asunnon kunto
- Hyvä
- Terassi
- Kyllä
- Muuta kauppaan kuuluvaa
- Polttopuut kuuluvat kauppaan
Taloyhtiö ja kiinteistö
- Tontin pinta-ala
- 1 974 m²
- Tontin omistus
- Vuokra
- Tontin tyyppi
- Tasamaatontti
- Tontin myyntityyppi
- Koko tontti
- Maanvuokraaja
- Joensuun kaupunki
- Tontin vuosivuokra
- 963,36 €
- Vuokra-aika päättyy
- 27.04.2058
- Rakennusmateriaali
- Puu
- Lämmitysjärjestelmä
- Sähkö Tyyppi: Suorasähkö, puu, ilmalämpöpumppu Kustannukset: 25000 kWh / vuosi Ilmalämpöpumppu Puu Lattialämmitys Uuni
- Ilmanvaihto
- Koneellinen ilmanvaihto ja ilmanvaihtokone
- Vesijohto
- Kunnallisvesi
- Viemäröinti
- Kunnallinen viemäriverkosto
- Kattotyyppi
- Harjakatto
- Katemateriaali
- Pelti
- Rakennusoikeus
- 493.5
- Rakennusoikeus e-luku
- 0.25
- Kohteesta on energiatodistus
- Ei lain edellyttämää energiatodistusta
- Lisätietoja energiatodistuksesta
- Energiatodistus laaditaan
- Liikenneyhteydet
- Bussipysäkki lähellä ja hyvät pyöräilytiet
- Tie perille
- Kyllä
- Kaavatilanne
- Asemakaava
- Rakennusvaihe
- Valmis
- Muut rakennukset
- Huvimaja
