Hirvitie 2
15880, Tiilikangas, Hollola
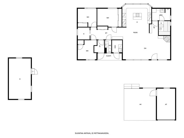
4h,k,kph,s,wc,vh,et,at/ak,lämm.var.
132 000 €
121 m²

Tätä asuntoa myy Antti Lavonen, Kiinteistönvälittäjä, LKV, kaupanvahvistaja
Huoneistokeskus Oy | Lahti

Sijainti
Asuntoesittely
Luonnonrauhaisalla Tiilikankaan asuinalueella, omalla 789 m2 vehreällä kulmatontilla sijaitseva, 1979 valmistunut yksitasoinen perhetalo + autotalli/autokatos sekä lämmin talousrakennus esim. oman yrityksen käyttöön tai etätyötilaksi. Sijainti on mainio: bussi kulkee melkein vierestä, hiihtoladut ja uimaranta kävelymatkan päässä, koulut ja päiväkodit sekä Hollolan kuntakeskuksen palvelutkaan eivät ole kaukana. Talossa on koneellinen ilmanvaihto lämmöntalteenotolla ja talo lämpiää sähköisellä lattialämmityksellä, leivinuunilla sekä ilmalämpöpumpulla. Taloa on kattavasti remontoitu ja on sisätiloiltaan hyväkuntoinen mm. moderneine keittiöineen ja pesutiloineen. Kuntotarkastus tehty 2024 - sen perusteella huomiota vaatii erityisesti talossa oleva valesokkelirakenne, johon täytyy tehdä korjauksia (raportti saatavilla välittäjältä) - vaadittavat korjaustarpeet huomioitu hintapyynnössä. Kohde on heti vapaa. Varaa oma esittelyaikasi kohteen välittäjältä.
Perustiedot
- Sijainti
- Hirvitie 2, 15880, Tiilikangas, Hollola
- Huoneluku
- 4
- Asuinpinta-ala
- 121 m²
- Muu pinta-ala
- 20 m²
- Kokonaispinta-ala
- 152 m²
- Lisätiedot pinta-alasta
- ilmoitetut asuin- ja kokonaispinta-ala perustuvat rakennuspiirustuksiin ja muutoslupapöytäkirjoihin ja muiden tilojen pinta-ala perustuu arvioon. Pinta-aloja ei ole tarkistusmitattu. Tämän ikäisissä taloissa ilmoitetut pinta-alat saattavat poiketa olennaisestikin todellisista pinta-aloista.
- Kohteen tyyppi
- Omakotitalo
- Kerros
- 1
- Rakennusvuosi
- 1979
- Käyttöönottovuosi
- 1979
- Kohde myydään vuokrattuna
- Ei
- Vapautuminen
- Heti
Hinta ja kustannukset
- Myyntihinta
- 132 000 €
- Sähkölämmityskulut keskimäärin
- 150 € / kk
- Vesi ja jätevesi (€/kk)
- 50 €
- Puhtaanapito (€/kk)
- 30 €
- Sähköliittymä siirtyy
- Kyllä
- Neliöhinta
- 1 090,91 € / m²
- Lisätietoja maksusta
- Tietoja kiinteistöverosta: 438,25. Lisätietoja vastikkeista: Nykyisellä omistajalla sähkönkulutus on ollut noin 24 000 kWh vuodessa, josta sähköauton latauksen osuus noin 6 000 kWh. Nuohous kerran vuodessa (myyjä teettää vuoden 2025 nuohouksen ennen kauppoja).
Tilat ja materiaalit
- Keittiön lattiat
- Laatta
- Keittiön seinät
- Maali
- Keittiön varusteet
- Liesi, jääkaappi, astianpesukone, erillinen pakastin, ja liesituuletin / hormi
- Liesi
- Induktioliesi
- Kylpyhuoneen seinät
- Kaakeli
- Kylpyhuoneen lattiat
- Laatta
- Kylpyhuoneen varusteet
- Pesukoneliitäntä, kuivauskaappi, lattialämmitys, peilikaappi, ja suihku
- WC:n lattiat
- Laatta
- WC:n seinät
- Maali
- Makuuhuoneiden lukumäärä
- 3
- Makuuhuoneiden seinät
- Tapetti ja maali
- Makuuhuoneiden lattiat
- Laminaatti
- Olohuoneen seinät
- Tapetti ja maali
- Olohuoneen lattiat
- Laatta
- Kohteen säilytystilat
- Vaatehuone ja muu erillinen varasto
- Sauna
- Kyllä
- Kiuas
- Heti valmis -sähkökiuas
- Saunan kuvaus
- saunassa puukiuasvaraus (hormi, aukon päälle laatoitettu)
- Takka
- Takka
Lisätiedot
- Asunnon kunto
- Tyydyttävä
- Lisätietoja kunnosta
- Talo on muilta osin hyväkuntoinen, mutta valesokkeliin liittyvä korjaustyö tehtävä (tarkempi selostus siitä sekä talon kunnosta laajemminkin löytyy kuntotarkastusraportista, joka saatavilla välittäjältä)
- Muuta kauppaan kuuluvaa
- Lisätietoja sisältyvistä varusteista: hälytys- /valvontajärjestelmä, ilmalämpöpumppu, keskuspölynimuri, kiinteät valaisimet, kuivauskaappi/-rumpu, lämminvesivaraaja, sälekaihtimet/rullaverhot
Taloyhtiö ja kiinteistö
- Tontin pinta-ala
- 789 m²
- Tontin omistus
- Oma
- Tontin tyyppi
- Tasamaatontti
- Tontin myyntityyppi
- Koko tontti
- Rakennusmateriaali
- Tiili ja puu
- Lämmitysjärjestelmä
- Puu Sähkö Tyyppi: sähköinen lattialämmitys, sähköpatterilämmitys Ilmalämpöpumppu uuni/takka, sähköpatterilämmitys, sähköinen lattialämmitys
- Kattotyyppi
- aumakatto
- Katon kunto
- melko hyvä, pinnoitettu
- Katemateriaali
- tiili
- Rakennusoikeus
- 250
- Lisätietoa rakennusoikeudesta
- Hollolan kunta, p. 03 880 111
- Kohteesta on energiatodistus
- Kyllä
- Energialuokka
- D2018
- Tie perille
- Kyllä
- Kaavatilanne
- Asemakaava
- Kaavoitustiedot
- Hollolan kunta, p. 03 880 111
- Kuntotutkimus tehty
- 01.01.2024
- Asbestikartoitus
- Ei
- Lisätietoa asbestikartoituksesta
- rakennus on valmistunut ennen 1995 eikä asbestikartoitusta ole tehty
- Muut rakennukset
- Autotalli ja talousrakennus
- Lisätietoa muista rakennuksista
- autotalli n. 20 m2 + autokatos samassa yhteydessä sekä lämmin talousrakennus n. 21 m2