Holkkitie 34
40530, Sääksvuori, Jyväskylä
4-5mh, oh, k, rt, aula, khh, kph, s, 2xwc, vh, terassi, autokatos
348 000 €
150,7 m²

Tätä asuntoa myy Mikko Savolainen, LKV, KED
Kiinteistönvälitys LKV Savolin Oy

Sijainti
Asuntoesittely
Avaruutta, valoa ja ihanaa arjen sujuvuutta – tervetuloa kotiin Sääksvuoreen
Tämä tilava ja valoisa omakotitalo Jyväskylän halutulla Sääksvuoren alueella tarjoaa ihanteelliset puitteet sujuvaan ja viihtyisään perhearkeen. Vuonna 2011 valmistunut koti laajennettiin yläkerran osalta vuonna 2020, ja kokonaisuus on suunniteltu huolella vastaamaan nykyaikaisen asumisen tarpeita.
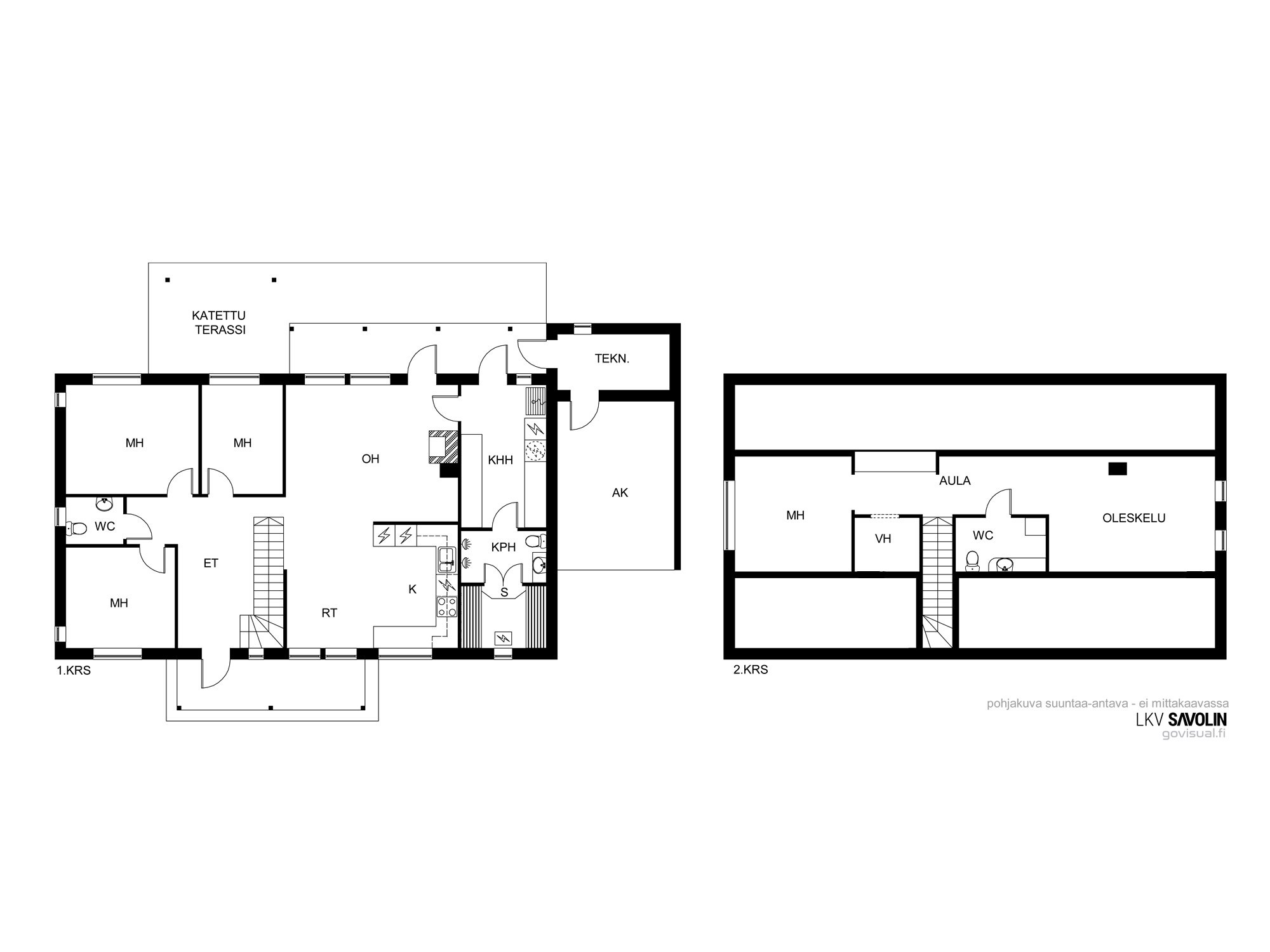
Kahteen kerrokseen jakautuva pohjaratkaisu on käytännöllinen ja toimiva. Alakerrassa avara olohuone ja keittiö muodostavat yhtenäisen, valoisan tilan, jossa on helppo viettää aikaa yhdessä. Suuret ikkunat tulvivat sisään luonnonvaloa, ja varaava takka luo lämpöä ja tunnelmaa. Keittiössä on runsaasti säilytystilaa ja hyvät puitteet ruoanlaitolle.
Makuuhuoneita on yhteensä neljä, ja yläkerrassa on mahdollisuus myös viidennen huoneen toteuttamiseen. Kaksi erillistä wc:tä sekä tilava kodinhoitohuone kurapisteineen tekevät arjesta sujuvaa. Kylpyhuoneessa on kaksi suihkua ja saunassa lauteet molemmin puolin, jotka tuovat ripauksen luksusta arkeen.
Tontti on oma, jonka hyvin hoidettu piha sekä katettu terassi tarjoavat viihtyisät puitteet ulkoiluun ja rentoutumiseen. Autokatos ja käytännölliset varastotilat tuovat lisää toimivuutta. Sähkölämmityksen rinnalla ilmalämpöpumput tuovat energiatehokkuutta.
Sijainti on rauhallinen ja perheystävällinen – päiväkoti ja koulu löytyvät läheltä, ja kulkuyhteydet keskustaan ovat erinomaiset. Ulkoilureitit sekä Keljon ja keskustan monipuoliset palvelut ovat helposti saavutettavissa.
Tämä viehättävä koti odottaa uusia asukkaitaan – tule ihastumaan paikan päälle!
Myynti ja esittelyt:
Mikko Savolainen
050 371 0699
[email protected]
Pohjakuva

Perustiedot
- Sijainti
- Holkkitie 34, 40530, Sääksvuori, Jyväskylä
- Huoneluku
- 6
- Asuinpinta-ala
- 150,7 m²
- Muu pinta-ala
- 5 m²
- Kokonaispinta-ala
- 155,7 m²
- Pinta-alan peruste
- Pinta-ala ei ole tarkistusmitattu ja todellinen pinta-ala voi olla suurempi tai pienempi, kuin ilmoitettu
- Lisätiedot pinta-alasta
- Pinta-alatiedot saatu rakennuslupapiirustuksesta. Asuintilojen pinta-alana ilmoitettu piirustuksen huoneistoala (1. krs 102,9m2 ja 2. krs 47,8m2). Muihin tiloihin kirjattu tekninen tila/varasto noin 5m2. Kerrosala 201,8m2 (1. krs 147,6m2 ja 2. krs 54,2m2).
- Kohteen tyyppi
- Omakotitalo
- Kerros
- 2
- Rakennusvuosi
- 2011
- Lisätietoja rakennusvuodesta
- Omakotitalon laajennus yläkertaan ja valokatettu terassi: rakennuslupa 2020 ja loppukatselmus 2020.
- Kohde myydään vuokrattuna
- Ei
- Vapautuminen
- Sopimuksen mukaan
Hinta ja kustannukset
- Myyntihinta
- 348 000 €
- Kiinteistövero (€/vuosi)
- 677,75 €
- Sähköliittymä siirtyy
- Kyllä
- Neliöhinta
- 2 309,22 € / m²
- Lisätietoja maksusta
- Kokonaissähkönkulutus vuonna 2024 ollut noin 21 600 kWh/v ja ajalla 01-11/2025 noin 19 100 kWh. Asukkailla käytössä täyssähköauto ja lataushybridi. Kiinteistöveron määrä on vuodelta 2025. Polttopuuta käytetty noin 1,5-2m3 vuodessa. Huonelämpö ollut noin 19-20 astetta.
Tilat ja materiaalit
- Keittiön lattiat
- Laatta
- Keittiön seinät
- Kaakeli ja maali
- Keittiön varusteet
- Jääkaappi, erillinen pakastin, erillisuuni, liesi, liesituuletin, mikroaaltouuni (integroitu), ja astianpesukone
- Kylpyhuoneen seinät
- Kaakeli
- Kylpyhuoneen lattiat
- Laatta
- Kylpyhuoneen varusteet
- WC-istuin (x3), suihku (x2), pesuallas, ja allaskaappi
- WC Lukumäärä
- 2
- WC:n lattiat
- Laatta
- WC:n seinät
- Maali ja kaakeli
- Makuuhuoneet
- Kaikkiin makuuhuoneisiin asennettu vinyylilankku 2020.
- Makuuhuoneiden lukumäärä
- 4
- Makuuhuoneiden seinät
- Maali
- Makuuhuoneiden lattiat
- Vinyyli
- Olohuoneen seinät
- Maali
- Olohuoneen lattiat
- Laatta
- Kodinhoitohuoneen varusteet
- Pesukoneliitäntä, tila pesutornille, kuivauskaappi, pyykkikaapit, kurapiste, pöytätaso, ja keskuspölynimuri (Letku uusittu 2025)
- Kodinhoitohuoneen seinät
- Maali ja kaakeli
- Kodinhoitohuoneen lattiat
- Laatta
- Kohteen säilytystilat
- Vaatehuone, kaapistot ja varasto
- Sauna
- Kyllä
- Kiuas
- Sähkökiuas
- Takka
- Varaava takka
Lisätiedot
- Asunnon kunto
- Hyvä
- Lisätietoja kunnosta
- Yläkerran ilmalämpöpumppu vain viilentävä.
- Parveke
- Ei parveketta
- Terassi
- Kyllä
Taloyhtiö ja kiinteistö
- Tontin pinta-ala
- 809 m²
- Tontin omistus
- Oma
- Tontin tyyppi
- Tasamaatontti
- Tontin myyntityyppi
- Koko tontti
- Rakennusmateriaali
- Puu
- Lämmitysjärjestelmä
- Ilmalämpöpumppu Sähkö Alakerrassa sähköinen lattialämmitys, yläkerrassa sähköpatterit
- Ilmanvaihto
- Koneellinen ilmanvaihto ja lto
- Vesijohto
- Kunnallisvesi
- Viemäröinti
- Kunnallinen viemäriverkosto
- Kattotyyppi
- Harjakatto
- Katemateriaali
- Pelti
- Rakennusoikeus
- 202.25
- Rakennusoikeus e-luku
- 0.25
- Kohteesta on energiatodistus
- Kyllä
- Energialuokka
- B2018
- Lisätietoja energiatodistuksesta
- Energiaselvitys vain yläkerran osalta.
- Liikenneyhteydet
- Bussipysäkki lähellä, sujuvat yhteydet omalla autolla ja hyvät pyöräilytiet
- Tie perille
- Kyllä
- Kaavatilanne
- Asemakaava
- Kaavoitustiedot
- kartta.jkl.fi / Jyväskylän kaupunki
