Hovitie 12 F
02940, Järvenperä, Espoo
3 huonetta, keittiö, sauna, takkahuone
289 000 € (3 612,50 € / m²)
80 m²

Tätä asuntoa myy Niko Kujala, Myyntijohtaja, LKV
Huoneistokeskus Oy | Vihti-Nummela

Sijainti
Asuntoesittely
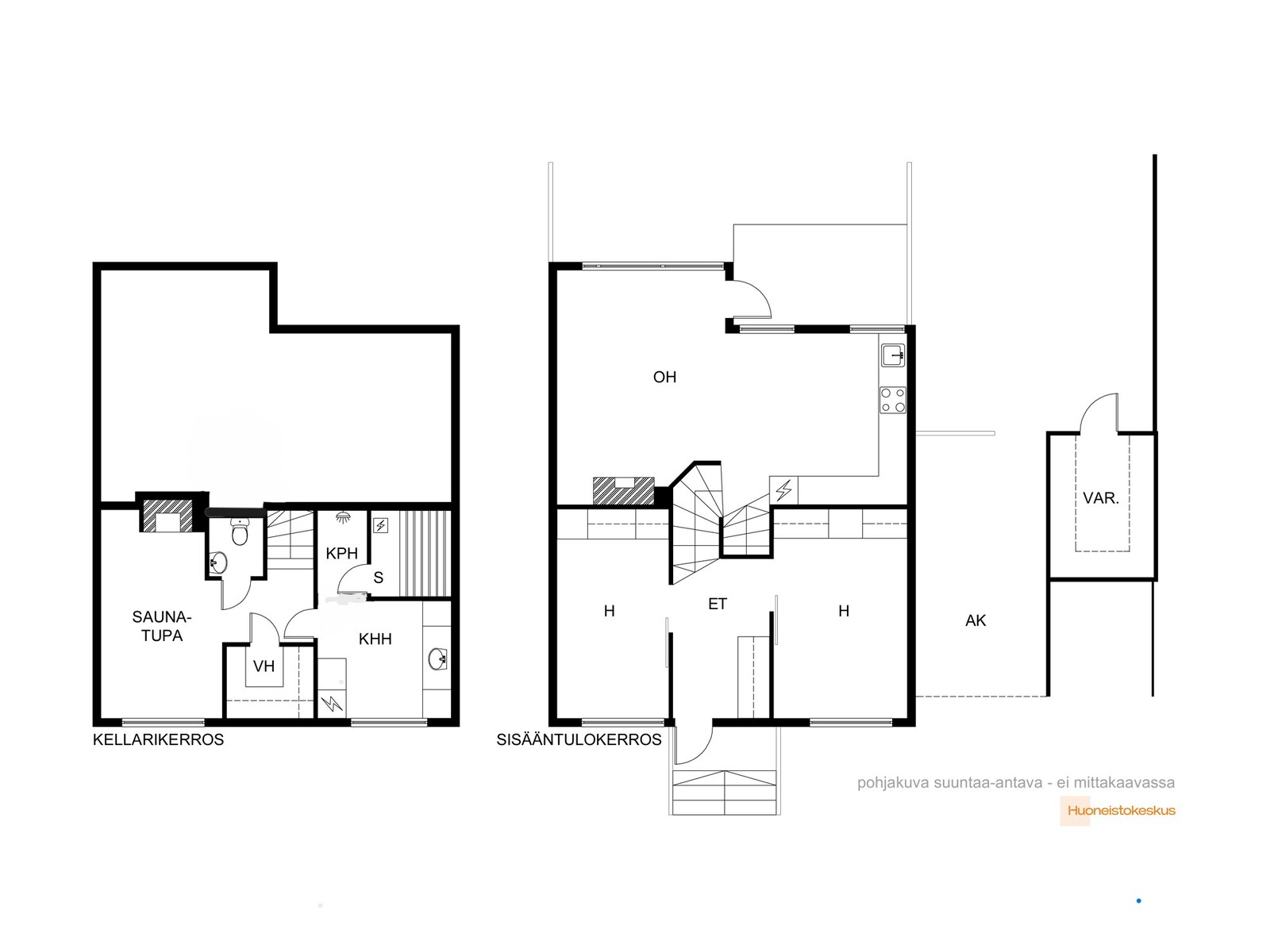
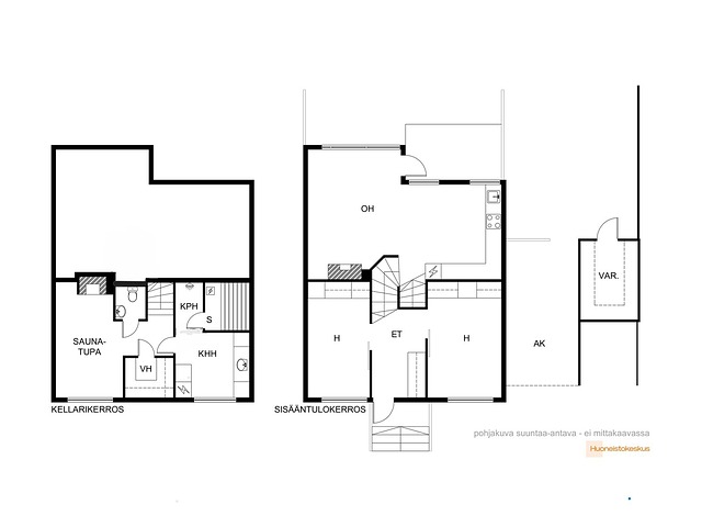
Sopivasti erilainen koti Järvenperässä. Tilat kolmessa tasossa, mikä tuo olohuoneeseen ja keittiöön korkeutta ja avaruutta. Keittiö uusittu 2016 ja saunaosasto 2013. Oma suojaisa aidattu piha, mistä löytyy myös upea lasitettu terassi. Kaksipuoleinen takka, toinen luukku olohuoneessa ja toinen takkahuoneessa. Ilmalämpöpumppu ja autokatos. Päiväkodit ja koulut ja lähikauppa 400-600 m päässä eli ihan vieressä. Tässä on koti sinulle, joka haluat hiukan massasta poikkeavan.
Pohjakuva

Perustiedot
- Sijainti
- Hovitie 12 F, 02940, Järvenperä, Espoo
- Omistusmuoto
- Omistusasunto
- Huoneluku
- 3
- Asuinpinta-ala
- 80 m²
- Muu pinta-ala
- 0 m²
- Kokonaispinta-ala
- 80 m²
- Pinta-alan peruste
- Isännöitsijäntodistuksen mukainen
- Lisätiedot pinta-alasta
- Mainittu pinta-ala saattaa tämän ikäisessä kohteessa poiketa olennaisesti nykyisten standardien mukaan laskettavasta asuinpinta-alasta. Todellinen asuinpinta-ala voi olla yhtiöjärjestyksessä, isännöitsijäntodistuksessa ja esitteessä mainittua pienempi tai suurempi.
- Kohteen tyyppi
- Paritalo
- Kerros
- 1-2 / 2
- Rakennusvuosi
- 1990
- Käyttöönottovuosi
- 1990
- Kohde myydään vuokrattuna
- Kyllä
- Vapautuminen
- 2-3 kk kaupoista
Hinta ja kustannukset
- Velaton hinta
- 289 000 €
- Myyntihinta
- 289 000 €
- Yhtiövastike
- Hoitovastike 100 € / kk, Yhtiövastike yhteensä 100 € / kk
- Sähköliittymä siirtyy
- Kyllä
- Neliöhinta
- 3 612,50 € / m²
- Lisätietoja maksusta
- Lisätietoja vastikkeista: Autopaikoista ei peritä erillistä korvausta, auton sähköpistokkeen kulutus tulee omaan mittariin
Tilat ja materiaalit
- Keittiön lattiat
- Vinyyli
- Keittiön seinät
- Maali
- Keittiön varusteet
- Liesi, jääkaappipakastin, erillisuuni, ja liesituuletin / hormi
- Liesi
- Induktioliesi ja erillisuuni
- Kylpyhuoneen seinät
- Kaakeli
- Kylpyhuoneen lattiat
- Laatta
- Kylpyhuoneen varusteet
- Suihkuseinä, pesukoneliitäntä, allaskaappi, peili, ja lattialämmitys
- WC:n lattiat
- Laatta
- WC:n seinät
- Kaakeli
- Makuuhuoneiden lukumäärä
- 2
- Makuuhuoneiden seinät
- Maali
- Makuuhuoneiden lattiat
- Vinyyli
- Olohuoneen seinät
- Maali
- Olohuoneen lattiat
- Vinyyli
- Sauna
- Kyllä
- Kiuas
- Sähkökiuas
Lisätiedot
- Asunnon kunto
- Hyvä
- Muut tilat
- Lattia: vinyyli, seinät: maalattu
- Muuta kauppaan kuuluvaa
- Lisätietoja sisältyvistä varusteista: ilmalämpöpumppu, lämminvesivaraaja, sälekaihtimet/rullaverhot
Taloyhtiö ja kiinteistö
- Taloyhtiön nimi
- Asunto Oy Espoon Hovitie 12
- Isännöitsijän nimi
- Olli Ahtosaari
- Taloyhtiön lisätiedot
- Tietoja sopimuksista: Siitä poiketen, mitä asunto-osakeyhtiölaissa säädetään yhtiön ja osakkaan välisestä kunnossapitovastuusta, kuuluu osakkeenomistajan vastata kaikista niistä korjaus- ja kunnossapitotöistä ja kustannuksista, jotka kohdistuvat siihen rakennukseen, jossa hänen hallitsemansa huoneisto sijaitsee. Sama koskee osakkeenomistajan hallitsemia muita tiloja. -Tarkemmin yhtiöjärjestyksessä
- Tontin pinta-ala
- 2 242 m²
- Tontin omistus
- Oma
- Rakennusmateriaali
- puu/betoni
- Lämmitysjärjestelmä
- Ilmalämpöpumppu
- Kattotyyppi
- harjakatto
- Katemateriaali
- tiili
- Kiinteistönhoidon lisätiedot
- Omatoiminen huolto.
- Huoneistoon kuuluu yhtiöjärjestyksen mukaan autopaikka
- Katospaikka
- Autokatokset
- 6
- Piha-autopaikkoja
- 9 kpl
- Kaavatilanne
- Asemakaava
- Lisätiedot kaavoituksesta
- Espoon Kaupunki p. 8162 4030
- Asbestikartoitus
- Ei
- Lisätietoa asbestikartoituksesta
- Rakennus on valmistunut ennen vuotta 1994 eikä huoneistoon ole tehty asbestikartoitusta.
Tehdyt remontit
Salaojien puhdistus ja ilmanvaihtokanavien nuohous 2001, roskakatoksen kunnostus ja maalaus 2007, julkisivujen maalaus ja lämminvesivaraajan vaihto 2008, ulko-ovien uusinta 2010, Uusi roskakatos 2023. Julkisivujen huoltomaalaus 2023-2024, Huippuimuri ja lämmityspatterit vaihdettu 2024.