Hyttitie 6 D
80170, Utra, Joensuu
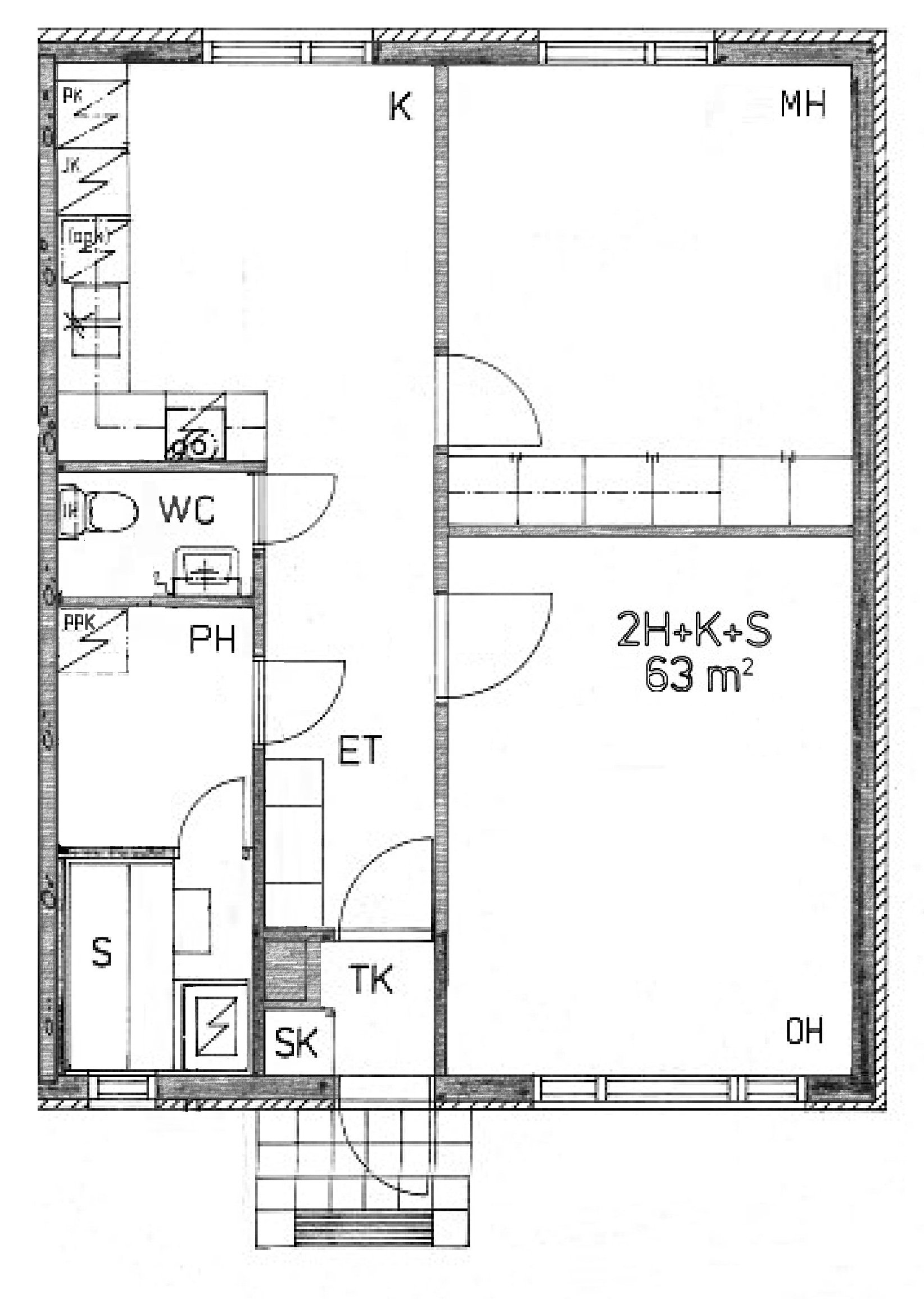
2h+k+ph+s+wc
75 000 € (1 190,48 € / m²)
63 m²

Tätä asuntoa myy Jarmo Ryhänen, Kiinteistönvälittäjä
LKV OGZ | Jokaisen Huoneistokauppa Oy *

Sijainti
Asuntoesittely
Omalla tontilla olevan taloyhtiön 2h+k+s rivitalon päätyhuoneisto 63 m² !
Tässäpä tarjolla omalla tontilla olevan rivitaloyhtiön (rv. 1990) PÄÄTYHUONEISTO ja HETI KAUPASTA KÄYTTÖÖSI VAPAUTUVA mukava koti esim. ensikodiksi tai sijoittajalle.
Sijainniltaan ja kulkuyhteyksiltään vaivattomalla paikalla esim. lähin ruokakauppa Utran S-Market n. 550 m. Paikallisliikenteen pysäkille matkaa vain n. 200 m. Mukavat virkistysalueet aivan lähettyvillä esim. Utran saarille matkaan n. 1 km.
Asunnon lattiat saaneet uuden vinyylipinnan hetki sitten, pesuhuone ja sauna remontoitu 2012. Taloyhtiön putkiremonttikin tehty 2021.
Asunnon seinäpinnat kaivannee uutta pintaa maalaten / tapetoiden.
Keittiökin kohtuullisen mukavassa kunnossa jossa on täyskorkeat jää- ja pakastinkaapit.
Todella tilava makuuhuone jossa ei tarvitse kulkea sivuttain ja seinällinen vaatekaappeja.
Taloyhtiön yhteinen sisäpihan alue on kunnostettu viihtyisäksi jossa niin vanhemmat kuin myös leikki-ikäisetkin viihtyvät.
Otappa yhteyttä: J Ryhänen 050 4955 139Pohjakuva

Perustiedot
- Sijainti
- Hyttitie 6 D, 80170, Utra, Joensuu
- Omistusmuoto
- Omistusasunto
- Huoneluku
- 2
- Asuinpinta-ala
- 63 m²
- Kokonaispinta-ala
- 63 m²
- Pinta-alan peruste
- Yhtiöjärjestyksen mukainen, Isännöitsijäntodistuksen mukainen, (Pinta-ala ei ole tarkistusmitattu ja todellinen pinta-ala voi olla suurempi tai pienempi, kuin ilmoitettu)
- Kohteen tyyppi
- Rivitalo
- Kerros
- 1 / 1
- Rakennusvuosi
- 1990
- Käyttöönottovuosi
- 1990
- Kohde myydään vuokrattuna
- Ei
- Vapautuminen
- Heti
Tilat ja materiaalit
- Keittiön lattiat
- Vinyyli
- Keittiön seinät
- Maali ja tapetti
- Keittiön varusteet
- Jääkaappi, erillinen pakastin, ja liesi
- Liesi
- Keraaminen liesi
- Kylpyhuone
- • 2012 Remontoitu ja vaihdettu lattiakaivo • Kääntyvät, kaarevat suihkuovet • Seinäkaapisto
- Kylpyhuoneen seinät
- Kaakeli
- Kylpyhuoneen lattiat
- Laatta
- Kylpyhuoneen varusteet
- Suihku, pesukoneliitäntä, ja suihkuseinä ovet
- WC Lukumäärä
- 1
- WC:n lattiat
- Muovimatto
- WC:n seinät
- Tapetti
- Makuuhuoneet
- Yhden seinän leveydeltä kaapistorivi.
- Makuuhuoneiden lukumäärä
- 1
- Makuuhuoneiden seinät
- Maali ja tapetti
- Makuuhuoneiden lattiat
- Vinyyli
- Olohuoneen seinät
- Maali ja tapetti
- Olohuoneen lattiat
- Vinyyli
- Kohteen säilytystilat
- Seinäkaapit ja erillinen lämmin varastokomero
- Sauna
- Kyllä
- Kiuas
- Sähkökiuas
- Saunan kuvaus
- • 2012 remontoitu • Ikkuna.
Lisätiedot
- Asunnon kunto
- Tyydyttävä
- Terassi
- Kyllä
- Lisätietoja terassista
- Ulko-oven vieressä valokatteella katettu terassi.
- Lisätietoa seinien pintamateriaaleista
- Seinissä pääasiassa tapettia. Osa seinistä maalattua levyä. Seinäpinnat kaipaa uusimista oman tarpeen mukaan.
- Lisätietoa lattioiden pintamateriaaleista
- Huonetilojen lattiapinnat uusittu vinyylipintaiseksi 2025.
- Lisätietoa katon pintamateriaaleista
- Kuivien huonetilojen katot ruiskupinnoitettuja, kosteissa tiloissa MDF-paneeli ja saunassa puupaneeli.
- Muut kaupan kannalta merkittävät tiedot
- Hyvät ulkoilumahdollisuudet. Ulkoilureiteille pääsee vaivattomasti ja Utran saaren virkistysalue n. 1 km:n päässä.
Taloyhtiö ja kiinteistö
- Taloyhtiön nimi
- Asunto Oy Joensuun Utranhovi
- Isännöitsijätoimisto
- Joensuun Isännöinti-Ykköset Oy
- Isännöitsijän nimi
- Juha Rossi
- Isännöitsijän sähköposti
- [email protected]
- Isännöitsijän puhelin
- 010 406 4983
- Tontin pinta-ala
- 7 311 m²
- Tontin omistus
- Oma
- Rakennusmateriaali
- Puu, tiili ja tiiliverhoilu
- Lämmitysjärjestelmä
- Kaukolämpö
- Ilmanvaihto
- Koneellinen ilmanvaihto
- Vesijohto
- Kunnallisvesi
- Viemäröinti
- Kunnallinen viemäriverkosto
- Kattotyyppi
- Harjakatto
- Katemateriaali
- Pelti
- Lisätietoja kiinteistönhoidosta
- Huoltoyhtiö
- Taloyhtiössä on
- Kaapeli-tv, ulkoiluvälinevarasto, varastokomero (Lämpimiä tiloja), pesutupa, ja kuivaushuone
- Lunastusoikeus yhtiöllä
- Ei
- Lunastusoikeus osakkaille
- Ei
- Kohteesta on energiatodistus
- Ei lain edellyttämää energiatodistusta
- Liikenneyhteydet
- Bussipysäkki lähellä ja hyvät pyöräilytiet
- Lisätietoja liikenneyhteyksistä
- Bussipysäkit n. 200 m.
- Palvelut
- Lähin kauppa Utran S-market n. 550 m.
- Sähköpistokepaikkoja
- 30 kpl
- Taloyhtiöllä sauna
- Ei
- Kaavatilanne
- Asemakaava
- Asbestikartoitus
- Ei
Tehdyt remontit
• 2004 Ulkomaalaus • 2010-2011 Ulkopuolisten puuosien osittainen maalaus, jätekatkoksen uusiminen ja lämmitystolppien pistorasioiden uusiminen • 2012 Kuntoarvion laatiminen • 2013 Tonttipuiden kaato • 2015 Vesikaton kuntokartoitus, naapurin puoleisen raja-aidan uusiminen • 2015-2016 Vesikaton kunnostus, varaston ovien kunnostus, lukituksen muutos (sento) • 2016-2017 Ikkunoiden kunnostus, katon pesu ja huoltomaalaus • 2021-2022 Käyttövesiputkiremontti • 2023 Rännien korjauksia • 2025 IV-kanavien nuohous ja säätö
Tulevat remontit
Kunnossapitotarveselvityksessä ehdotettu vuosille 2025-2029 seuraavat kunnostustarpeet:
• Leikkipaikan kiikkujen kiinnitys, parkkipaikan paikkakorjaukset, mattotelineen korjaus.
• Rakennusten puuosien huoltomaalausta
• Loppujen kourujen/rännien uusiminen/korjaus
• Palovaroittimien asennus 2025 aikana