Iirislammentie 67
03810, Ikkala, Lohja
k+oh+2mh+sauna- ja pesutilat, tilava terassi
227 000 €
105 m²

Tätä asuntoa myy Ida Wiik, Asuntomyyjä
Huoneistokeskus Oy | Karkkila

Sijainti
Asuntoesittely
Omakotitalo järven rannalla! Myydään kiinteistöosakeyhtiönä oleva asuinrakennus, vankka tilava halli ja Hiirlammen rantaan rajoittuva tontti. Talossa k+oh+2mh+eteinen ja saunatilat sekä tilava terassi järven puolella. Lämmitysmuotona vesikiertoinen lattialämmitys ilmavesilämpöpumpulla (Vilp). 1964 valmistuneessa talossa tehty täysremontti 2004 - 05. Oma kaivo, viemäri panospuhdistamo. Pihapiirissä todella hyväkuntoinen ja lämmin halli n 150 m2. Omaa rantaa n.25m. Tule tutustu, olisiko tässä teidän uusi koti?
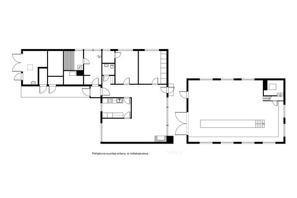
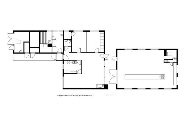
Pohjakuva

Perustiedot
- Sijainti
- Iirislammentie 67, 03810, Ikkala, Lohja
- Omistusmuoto
- Omistusasunto
- Huoneluku
- 3
- Asuinpinta-ala
- 105 m²
- Muu pinta-ala
- 55 m²
- Kokonaispinta-ala
- 160 m²
- Lisätiedot pinta-alasta
- Tämän ikäisissä rakennuksissa pinta-alat saattavat olla eritavalla laskettuja kuin nykyään. Pinta-alat on arvioitu
- Kohteen tyyppi
- Omakotitalo
- Kerros
- 1
- Rakennusvuosi
- 1964
- Käyttöönottovuosi
- 1964
- Kohde myydään vuokrattuna
- Ei
- Vapautuminen
- Sopimuksen mukaan
Tilat ja materiaalit
- Keittiön lattiat
- Laatta
- Keittiön varusteet
- Astianpesukone, jääkaappipakastin, liesi, ja kiinteät valaisimet, liesituuletin / hormi
- Liesi
- sähköliesi
- Kylpyhuoneen seinät
- Kaakeli
- Kylpyhuoneen lattiat
- Laatta
- Kylpyhuoneen varusteet
- Pesukoneliitäntä, lattialämmitys, suihku, ja kiinteät valaisimet
- Erillinen WC
- Vessassa on ikkuna
- WC:n lattiat
- Laatta
- WC:n seinät
- Kaakeli
- Makuuhuoneiden lukumäärä
- 2
- Makuuhuoneiden seinät
- Maali
- Makuuhuoneiden lattiat
- Parketti
- Olohuoneen seinät
- Maali
- Olohuoneen lattiat
- Parketti
- Sauna
- Kyllä
- Kiuas
- Heti valmis -sähkökiuas
- Takka
- Takka
Lisätiedot
- Asunnon kunto
- Hyvä
- Lisätietoja kunnosta
- hyvässä käyttökunnossa
- Terassi
- Kyllä
- Ranta
- Omaa rantaviivaa, Oma ranta
- Omaa rantaa (m)
- 25
- Muuta kauppaan kuuluvaa
- Lisätietoja sisältyvistä varusteista: ilmalämpöpumppu, kaapistot, kiinteät valaisimet, sälekaihtimet/rullaverhot
Taloyhtiö ja kiinteistö
- Tontin pinta-ala
- 2 350 m²
- Tontin omistus
- Oma
- Tontin tyyppi
- Tasamaatontti
- Tontin myyntityyppi
- Koko tontti
- Tontin tiedot
- tontti rajoittuu Hiirlampi-nimisen pienen järven (n 400 m x 900 m) rantaan. Rannassa laituri.
- Rakennusmateriaali
- Puu
- Lämmitysjärjestelmä
- Ilmalämpöpumppu vesikiertoinen lattialämmitys
- Lisätietoja viemäristä
- Uponor panospuhdistamo 2005 (eerola huoltaa)
- Kattotyyppi
- harja
- Katon kunto
- kunnossa
- Katemateriaali
- pelti
- Lisätietoa rakennusoikeudesta
- poikkeamisluvalla
- Tie perille
- Kyllä
- Palvelut
- Karkkila 6 km
- Koulut
- Karkkila 6 km
- Kaavatilanne
- Yleiskaava
- Kaavoitustiedot
- Lohjan kaupunki
- Kuntotutkimus tehty
- 01.01.2024
- Asbestikartoitus
- Ei
- Lisätietoa asbestikartoituksesta
- Kiinteistö valmistunut ennen vuotta 1994, eikä asbestitarkastusta ole tehty.
- Muut rakennukset
- talousrakennus
- Lisätietoa muista rakennuksista
- pihapiirissä hallirakennus n 150 m2, hyvässä käyttökunnossa. Lämmityksenä ilmalämpöpumppu v. 2019/ öljylämmitysmahdollisuus.
