Isolahdentie 25
65230, Isolahti, Vaasa
5h+k+khh+kph+s+at
115 000 €
164 m²

Tätä asuntoa myy Mikko Muhonen, Kiinteistönvälittäjä, LKV, AFM, kaupanvahvistaja
LKV Muhonen AFM Oy

Sijainti
Asuntoesittely
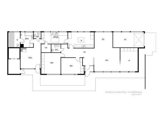
Tämä tilava ja valoisa omakotitalo sijaitsee rauhallisella ja halutulla Isolahden asuinalueella Vaasassa, lähellä merta ja metsää. Talossa on kolme makuuhuonetta, mutta takkahuonetta voi tarvittaessa käyttää makuuhuoneena, huoneesta kulku ulos. Keittiö on remontoitu vuonna 2002.
Kodissa on kaksi erillistä wc:tä ja kylpyhuone. Sauna tarjoaa rentouttavat löylyt sähkökiukaan lämmössä. Säilytystilaa on runsaasti, sillä talossa on lämmin ulkovarasto, kaapistot ja vaatehuone.
Vuonna 1969 valmistunut talo on hyvässä kunnossa ja lämpiää kaukolämmöllä. Luonnollinen ilmanvaihto pitää sisäilman raikkaana.
Sijainti on erinomainen, sillä alueelta on hyvät kulkuyhteydet ja kaupungin palvelut ovat lähellä. Tämä koti on täydellinen valinta perheelle, joka arvostaa rauhallista ympäristöä ja tilavaa asumista. Tartu tilaisuuteen ja tee tästä talosta unelmiesi koti!
Detta rymliga och ljusa egnahemshus är beläget i det lugna och eftertraktade bostadsområdet Isolahti i Vasa, nära havet och skogen. Huset har tre sovrum, men det går vid behov att använda eldstadsrummet som sovrum, och från rummet finns utgång till gården. Köket renoverades år 2002.
I hemmet finns två separata toaletter och ett badrum. Bastun bjuder på avkopplande stunder med en elektrisk bastuugn. Det finns gott om förvaringsutrymmen tack vare ett uppvärmt uteförråd, flera skåp och en klädkammare.
Huset, som är byggt år 1969, är i gott skick och värms upp med fjärrvärme. Den naturliga ventilationen håller inomhusluften fräsch.
Läget är utmärkt med goda transportförbindelser och närhet till stadens service. Detta hem är ett perfekt val för en familj som uppskattar en lugn miljö och ett rymligt boende. Ta chansen och gör detta hus till ditt drömhem!
Perustiedot
- Sijainti
- Isolahdentie 25, 65230, Isolahti, Vaasa
- Huoneluku
- 5
- Asuinpinta-ala
- 164 m²
- Kokonaispinta-ala
- 184 m²
- Pinta-alan peruste
- Pinta-ala ei ole tarkistusmitattu ja todellinen pinta-ala voi olla suurempi tai pienempi, kuin ilmoitettu
- Kohteen tyyppi
- Omakotitalo
- Kerros
- 1
- Rakennusvuosi
- 1969
- Käyttöönottovuosi
- 1970
- Kohde myydään vuokrattuna
- Ei
- Vapautuminen
- Sopimuksen mukaan
Tilat ja materiaalit
- Keittiön kuvaus
- Keittiö remontoitu 2002
- Keittiön lattiat
- Muovimatto
- Keittiön seinät
- Maali ja kaakeli
- Keittiön varusteet
- Festivo kylmiö/tupla jääkaappi, erillinen pakastin, liesituuletin, ja astianpesukone
- Liesi
- Keraaminen liesi
- Kylpyhuoneen varusteet
- Suihku
- WC Lukumäärä
- 2
- Makuuhuoneiden lukumäärä
- 3
- Kohteen säilytystilat
- Lämmin ulkovarasto, kaapistot ja vaatehuone
- Sauna
- Kyllä
- Kiuas
- Sähkökiuas
Lisätiedot
- Asunnon kunto
- Hyvä
- Hissi
- Ei
- Muut tilat
- 3-4 makuuhuonetta/yksi näistä takkahuoneena, josta myös kulku ulos.
Taloyhtiö ja kiinteistö
- Tontin pinta-ala
- 1 108 m²
- Tontin omistus
- Vuokra
- Tontin tyyppi
- Tasamaatontti
- Tontin myyntityyppi
- Koko tontti
- Maanvuokraaja
- Vaasan kaupunki
- Vuokra-aika päättyy
- 31.12.2028
- Rakennusmateriaali
- Tiiliverhoilu ja puu
- Lämmitysjärjestelmä
- Kaukolämpö
- Ilmanvaihto
- Painovoimainen ilmanvaihto
- Vesijohto
- Kunnallisvesi
- Viemäröinti
- Kunnallinen viemäriverkosto
- Kattotyyppi
- Loiva harjakatto
- Katon kunto
- Hyvä
- Katemateriaali
- Huopa
- Rakennusoikeus
- 200
- Kohteesta on energiatodistus
- Ei lain edellyttämää energiatodistusta
- Lisätietoja energiatodistuksesta
- Energiatodistus teetetään.
- Tie perille
- Kyllä
- Kaavatilanne
- Asemakaava
- Kaavoitustiedot
- Vaasan kaupunki
- Rakennusvaihe
- Valmis
- Asbestikartoitus
- Ei
