Istosperäntie 29
37800, Toijala / Uusikylä, Akaa
3+k+th+saunaosasto+varastotiloja
95 000 €
85 m²

Tätä asuntoa myy Kimmo Laaksonen, Kiinteistönvälittäjä, LKV, kaupanvahvistaja
Huoneistokeskus Oy | Tampere

Sijainti
Asuntoesittely
Tervetuloa tutustumaan tähän viihtyisään rintamamiestaloon, joka sijaitsee erinomaisella paikalla Istoperäntiellä. Tilava 1 471 m² tontti tarjoaa runsaasti tilaa niin arkeen kuin harrastuksiinkin.
Asuinrakennuksen lisäksi pihapiiristä löytyy autotalli/varasto, joka tuo käytännöllisyyttä ja säilytystilaa. Olohuoneessa tunnelmaa ja lämpöä luo varaava takka – täydellinen paikka rentoutua kylminä iltoina.
Tämä kohde on koettava paikan päällä – tervetuloa ihastumaan!
Soita ja sovi oma esittelyaikasi.
Esittely ja myynti: Kimmo Laaksonen 044 757 7899
[email protected]
Perustiedot
- Sijainti
- Istosperäntie 29, 37800, Toijala / Uusikylä, Akaa
- Huoneluku
- 4
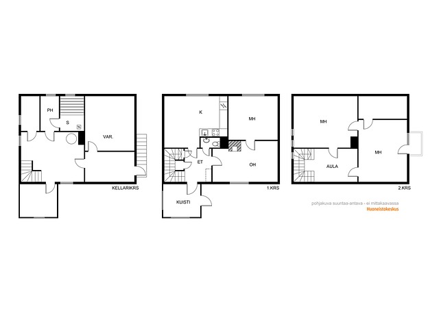
- Asuinpinta-ala
- 85 m²
- Muu pinta-ala
- 50 m²
- Kokonaispinta-ala
- 135 m²
- Lisätiedot pinta-alasta
- Pinta-alatiedot on saatu rakennuspiirustuksista ja myyjältä eikä niitä ole tarkistusmitattu, näin ollen ne saattavat poiketa olennaisestikin nykymääräysten mukaan mitattavista pinta-aloista.
- Kohteen tyyppi
- Omakotitalo
- Kerros
- 2
- Rakennusvuosi
- 1956
- Käyttöönottovuosi
- 1956
- Kohde myydään vuokrattuna
- Ei
- Vapautuminen
- Sopimuksen mukaan
Tilat ja materiaalit
- Keittiön lattiat
- Laminaatti
- Keittiön seinät
- Maali
- Keittiön varusteet
- Astianpesukone, jääkaappipakastin, ja liesituuletin / hormi
- Liesi
- Keraaminen liesi
- Kylpyhuoneen seinät
- Kaakeli
- Kylpyhuoneen lattiat
- Laatta
- WC Lukumäärä
- 1
- WC:n lattiat
- Laatta
- WC:n seinät
- Kaakeli ja puolipaneeli
- Makuuhuoneiden lukumäärä
- 2
- Makuuhuoneiden seinät
- Maali
- Makuuhuoneiden lattiat
- Laminaatti
- Olohuoneen seinät
- Maali
- Olohuoneen lattiat
- Laminaatti
- Kohteen säilytystilat
- Vinttikomero ja kellarikomero
- Sauna
- Kyllä
- Takka
- Takka
Lisätiedot
- Asunnon kunto
- Tyydyttävä
Taloyhtiö ja kiinteistö
- Tontin pinta-ala
- 1 471 m²
- Tontin omistus
- Oma
- Tontin myyntityyppi
- Koko tontti
- Rakennusmateriaali
- Puu
- Lämmitysjärjestelmä
- Öljy vesikiertoinen patterilämmitys
- Kattotyyppi
- Harjakatto
- Katon kunto
- Hyvä
- Katemateriaali
- Pelti
- Rakennusoikeus
- 294.2
- Rakennusoikeus e-luku
- 0.2
- Kohteesta on energiatodistus
- Ei lain edellyttämää energiatodistusta
- Tie perille
- Kyllä
- Kaavatilanne
- Asemakaava
- Kaavoitustiedot
- Akaan kaupunki Puh. (03) 569 1120
- Asbestikartoitus
- Ei
- Lisätietoa asbestikartoituksesta
- Ennen vuotta 1994 rakennetuissa rakennuksissa ja asunnoissa on saatettu käyttää asbestia sisältävia materiaaleja, rakenteita ja laitteita. Ennen rakenteiden purkamista vaativien korjausten käynnistämistä on asbestin esiintyminen ja sen vaikutukset korjaushankkeisiin selvitettävä asbestikartoituksella.
- Muut rakennukset
- Autotalli
- Lisätietoa muista rakennuksista
- Autotalli/varasto 36m2