Juolavehnätie 1 C
90580, Rajakylä, Oulu
3h,k,kph,s,parveke,AK
49 000 € (616,35 € / m²)
79,5 m²

Tätä asuntoa myy Joel Vehkalahti, Myyntipäällikkö, LKV, BBA
Roof Oulu | Asuntokolmio Oy

Sijainti
Asuntoesittely
HETI VAPAA rivitalon päätyasunto remonttitaitoiselle hyvin hoidetusta taloyhtiöstä!
Asunto Oy Koisopuiston Rivitalot on vuonna 1973 rakennettu taloyhtiö, jossa lämmitysmuotona on kaukolämpö. Hoitovastiketaso yhtiössä on todella edullinen, vain 2,8€/m2! Vuosien varrella remontteja on tehty paljon - merkittävimpinä mainittakoon 2002 käyttövesiputkien saneeraus ja 2010 toteutettu kattoremontti. Lisäksi 2009 on pihan kuivatusjärjestelmä rakennettu ja lukostot uusittu v. 2006. Taloyhtiö on taloudellisesti myös hyvinvoiva, ja hoitovastikeylijäämää on kertynyt runsaasti vuosien varrella.
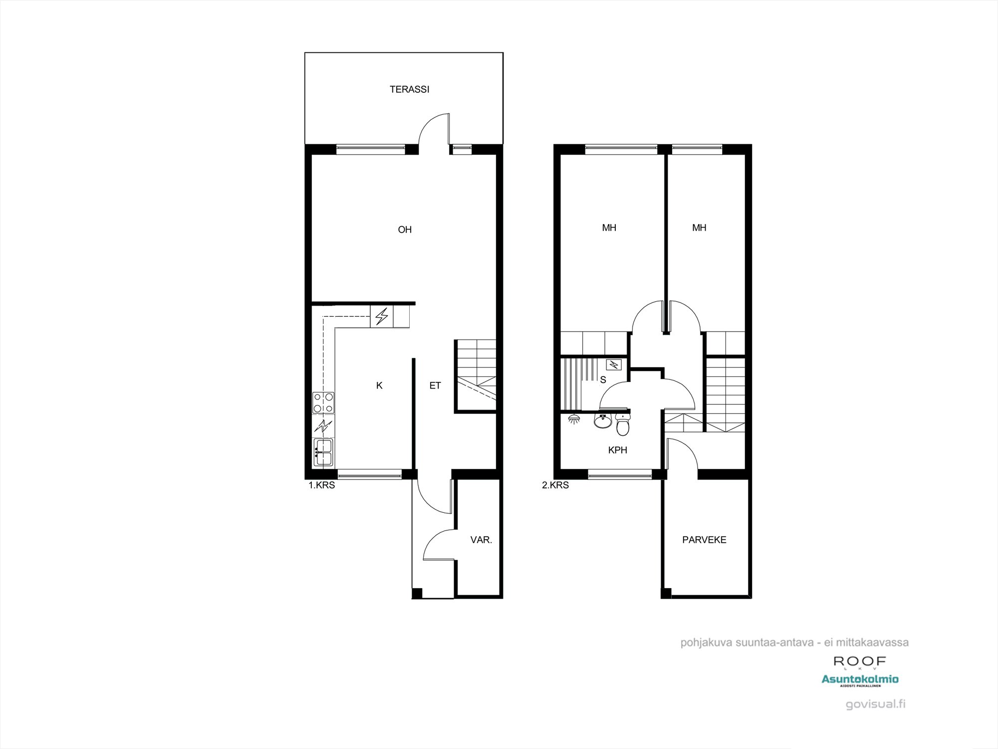
Kyseessä on päätyasunto, jonka pohjaratkaisu on loistava. Alakerrassa on avarat oleskelutilat, ja kaksi makuuhuonetta kylpyhuoneineen on sijoitettu yläkertaan. Asumismukavuutta lisää yläkerran parveke sekä katettu terassi takapihan puolella ja lisäksi suojaisa piha-alue. Asunnon keittiötä on remontoitu v. 2010 paikkeilla, mutta muuten pinnat ovat pitkälti alkuperäiset. Remonttitaitoisena saat tästä edullisesti hankittua loistavan kodin jossa perusasiat ovat kunnossa, ja remontilla saat tehtyä siitä juuri mieleisen. Asunnon käytössä on yksi autokatospaikka joka siirtyy sinulle kauppojen myötä.
Sijainti on myös loistava. Kauppaan on muutaman minuutin kävelymatka, ja julkisen liikenteen yhteydet Haukiputaan, Linnanmaan ja Keskustan suuntaankin ovat monipuoliset ja toimivat. Pyörätieverkostot ovat myös hyvät, ja puistoja sekä virkistysmahdollisuuksia läheltä löytyy useita. Perheen pienimmille kulkumatkat kouluihin ja päiväkoteihin tapahtuvat turvallisesti pyöräteitse ja kaikki tarvitsemasi päivittäispalvelut muutenkin ovat parin kilometrin säteellä.
Esittelyt ja lisätiedot:
Joel Vehkalahti
Myyntipäällikkö LKV, BBA
040 1565 451
[email protected]
Pohjakuva

Perustiedot
- Sijainti
- Juolavehnätie 1 C, 90580, Rajakylä, Oulu
- Omistusmuoto
- Omistusasunto
- Huoneluku
- 3
- Asuinpinta-ala
- 79,5 m²
- Kokonaispinta-ala
- 79,5 m²
- Pinta-alan peruste
- Yhtiöjärjestyksen mukainen, Isännöitsijäntodistuksen mukainen, (Pinta-ala ei ole tarkistusmitattu ja todellinen pinta-ala voi olla suurempi tai pienempi, kuin ilmoitettu)
- Lisätiedot pinta-alasta
- Ei tarkistusmitattu. Pinta-alat saattavat tämän ikäisissä kohteissa (yhtiö rekisteröity ennen 01.01.1992) poiketa olennaisestikin asuinrakennusten nykyisten mittaustapojen ja standardien (SFS 5139) mukaan laskettavasta asuintilojen pinta-alasta. Pinta-ala voi siis olla edellä mainittua pienempi tai suurempi.
- Kohteen tyyppi
- Rivitalo
- Kerros
- 1-2 / 2
- Rakennusvuosi
- 1973
- Käyttöönottovuosi
- 1973
- Kohde myydään vuokrattuna
- Ei
- Vapautuminen
- Heti
Hinta ja kustannukset
- Velaton hinta
- 49 000 €
- Myyntihinta
- 49 000 €
- Velkaosuus
- 0 €
- Yhtiövastike
- Hoitovastike 222,98 € / kk (2,80 € / m²), Yhtiövastike yhteensä 222,98 € / kk
- Lisätietoja vastikkeista
- Mediavastike 3€/kk. Autokatospaikat 8€/kk. Sähkönmaksuennakko 35€/kk. Taloyhtiöllä oma sähköliittymä ja käyttösähköstä maksetaan omaa sähköennakkoa. Sähkön kulutus tasataan kulutuksen mukaan.
- Vesimaksu
- 15 € / hlö / kk
- Neliöhinta
- 616,35 € / m²
- Lisätietoja maksusta
- Taloyhtiön hallitukselle on annettu valtuutus periä (tai olla perimättä) ylimääräistä vastiketta yhtiön taloudellisen aseman tai maksuvalmiuden sitä vaatiessa
Tilat ja materiaalit
- Keittiön kuvaus
- Varustus: Jääkaappi/pakastin, sähköliesi, liesituuletin, astianpesukone. Työtasot laminaattia. Keittiö remontoitu n. 10 v sitten.
- Keittiön lattiat
- Muovimatto
- Keittiön seinät
- MDF-Paneeli
- Kylpyhuone
- Varustus: Suihku, pyykinpesukoneliitäntä, peilikaappi, wc-istuin.
- Kylpyhuoneen seinät
- Tapetti
- Kylpyhuoneen lattiat
- Muovimatto
- Makuuhuoneet
- Makuuhuoneet yläkerrassa.
- Makuuhuoneiden lukumäärä
- 2
- Makuuhuoneiden seinät
- Puolipaneeli
- Makuuhuoneiden lattiat
- Muovimatto
- Olohuone
- Olohuoneessa takka ja kulku katetulle terassille ja piha-alueelle.
- Olohuoneen seinät
- Tapetti
- Olohuoneen lattiat
- Muovimatto
- Säilytystilojen kuvaus
- Kylmä varastotila sisäänkäynnin vieressä. Portaiden alla komero.
- Sauna
- Kyllä
Lisätiedot
- Asunnon kunto
- Tyydyttävä
- Parveke
- Ulostyönnetty parveke
- Terassi
- Ei
- Hissi
- Ei
- Muuta kauppaan kuuluvaa
- Kiinteät kaapistot, sälekaihtimet, takka, kiinteät valaisimet.
Taloyhtiö ja kiinteistö
- Taloyhtiön nimi
- Asunto Osakeyhtiö Koisopuiston Rivitalot
- Isännöitsijätoimisto
- Oiva Isännöinti Oy
- Isännöitsijän nimi
- janne Väyrynen
- Isännöitsijän sähköposti
- [email protected]
- Isännöitsijän puhelin
- 0107556310
- Tontin pinta-ala
- 15 917 m²
- Tontin omistus
- Vuokra
- Maanvuokraaja
- Oulun kaupunki
- Tontin tiedot
- Tontin vuokra sisältyy hoitovastikkeeseen.
- Tontin vuosivuokra
- 9 505,60 €
- Vuokra-aika päättyy
- 01.01.2035
- Rakennusmateriaali
- Puu ja tiili
- Lämmitysjärjestelmä
- Kaukolämpö
- Ilmanvaihto
- Painovoimainen ilmanvaihto
- Vesijohto
- Kunnallisvesi
- Viemäröinti
- Kunnallinen viemäriverkosto
- Kattotyyppi
- Harjakatto
- Katemateriaali
- Pelti
- Lisätietoja kiinteistönhoidosta
- Huoltoyhtiö
- Kiinteistönhoidon lisätiedot
- Oulun Tähtihuolto Oy
- Lunastusoikeus yhtiöllä
- Ei
- Lunastusoikeus osakkaille
- Ei
- Kohteesta on energiatodistus
- Kyllä
- Energialuokka
- D2018
- Energiatodistuksen voimassaolo
- 22.11.2034
- Taloyhtiöön kuuluu
- 2013 yhtiökokouksessa ei päätetty tilata yhteistä parvekelasituslupaa piirrustuksineen. Mikäli lasituksen haluaa tulee suunnitelmat teetättää itse ja hakea omakustanteisesti yhtiön kautta lupaa kaupungilta. Muut osakkeenomistajien käytössä olevat tilat: Pesutupa, pyörävarastot, vanhat kylmiötilat varastotiloina. Kylmiöiden varastotilat purettu 11/2025. Taloyhtiössä käytössä kaapeli-TV ja DNA Taloyhtiölaajakaista (10Mbit).
- Lisätietoja liikenneyhteyksistä
- Hyvät pyörätieyhteydet ja julkisen liikenteen yhteydet keskustaan, Linnanmaalle ja Haukiputaan suuntaan. Linja-autopysäkki 180m. Moottoritielle muutaman min. ajomatka
- Palvelut
- S-Market Rajakylä 700m
- Koulut
- Rajakylän koulu 400m (1-9. lk), Normaalikoulu, Yliopisto ym. lähellä
- Lisätietoja huoneiston autopaikasta
- Huoneistolle kuuluu yksi autokatospaikka.
- Taloyhtiön autopaikat
- Autokatospaikkoja 51 kpl, avopaikkoja pistokkeella 14 kpl.
- Taloyhtiöllä sauna
- Ei
- Kaavatilanne
- Asemakaava
- Lisätiedot kaavoituksesta
- Oulun Kaupunki / [email protected]
- Asbestikartoitus
- Ei
Tehdyt remontit
1998: Takapihan ja parvekkeenovet uusittu. 2002: Kv-putkistojen saneeraus ja lämmitysjärjestelmän tasapainotus. 2006: Lukkojen uusiminen ja huoneistokohtaisten sähkömittareiden uusiminen. 2009-2010: Pihan kuivatusjärjestelmän rakentaminen, kattoremontti 2011: A- ja H-talon aita, leikkipaikkojen uusiminen ja kph:den kuntokartoitus. 2012-2013: viiden asunnon kylpyhuonesaneeraukset, väliaitojen pellitykset. 2013-2016: Päätyhuoneistojen ulkoseinien vastaiset kylmävuodot korjattu. 2016: Leikkialueiden pihavalaistus uusittu, G-ja H-talojen antennikaapelit korjattu, jätekatokset rakennettu ABC ja DEF -taloille. 2017: Autopaikkojen / huoltorakennusten päätyjen valaistus, 2 asunnon kph remontit. 2019: Yhden asunnon kylpyhuoneremontti. 2020: Kylpyhuoneiden kuntokartoitukset. 2021: Sähköautojen latausselvitys / kartoitus. 2024: palovaroittimet asennettu joka huoneistoon, yhden huoneiston vesivahingon korjaustyöt keittiössä.
Tulevat remontit
Kunnossapitotarveselvitys 2025-2029: Piha-alueen asfalttipaikkaukset (talkoilla), autokatokset / huoltorakennukset (suunnitelmatarjoukset 2025), toteutus 2025-2029.
