Juustenintie 2 B
00410, Malminkartano, Helsinki
2h, avok, kph, s, las. p
216 900 € (4 054,21 € / m²)
53,5 m²

Tätä asuntoa myy Risto Savolainen, Kiinteistönvälittäjä, LKV, LVV
Huoneistokeskus Oy | Helsinki, Runeberginkatu

Sijainti
Asuntoesittely
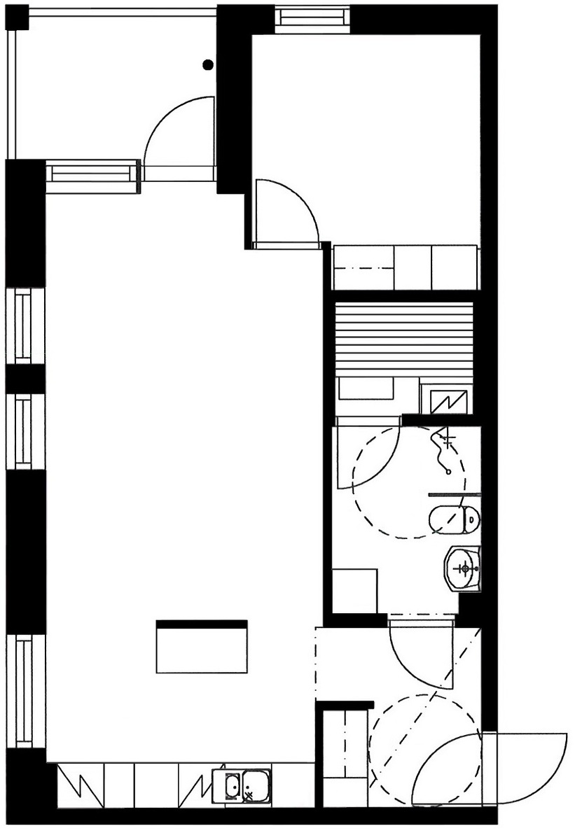
Hyväpohjainen kulmakaksio omalla tontilla olevan yhtiön toisessa kerroksessa.
Olohuone on mukavan tilava ja sen jatkeena on eteisen päässä saarekkeellinen avokeittiö ja makuuhuoneen päässä lasitettu parveke. Makuuhuoneessa ja eteisessä on hyvin säilytyskaappeja valmiina ja saunallisessa kylpyhuoneessa on tilaa pyykinpesukoneelle. Asunnon olohuoneesta on puistomaiset näkymät Juustenintielle.
Yhtiössä ei tarvitse suuremmista remonteista murehtia vielä pitkään aikaan, rakennukset ovat valmistuneet loppuvuodesta 2015, eikä mitään suurempia korjauksia ole vielä suunnitteilla. Yhtiön hallinnassa on 19 piha-autopaikkaa, joista kuuteen tehdään syksyn aikana sähköautojen latauspisteet.
Taloyhtiön sijainti on mukavan rauhallinen, Juustenintie on päättyvä tie, eikä läpiajoliikennettä ole. Lisäksi Kartanonkaaren toiselta puolelta alkaa useita ulkoilupolkuja ja lumisena talvena jopa hiihtoladut. Mätäjoen yli pääsee junaradan vierustaa kävelemään aina Kannelmäen asemalle ja kauppakeskus Kaareen, vaikka peruspalvelut ja kaupat löytyvät toki lähempääkin Malminkartanosta.
Asunto sijaitsee hissillisen talon toisessa kerroksessa ja sopii hyvin myös liikuntarajoitteisille, sillä hissille ei ole yhtään rappusta.
Kiinnostuitko? Ota yhteyttä, tulen mielelläni esittelemään tätä kotia!
Pohjakuva

Perustiedot
- Sijainti
- Juustenintie 2 B, 00410, Malminkartano, Helsinki
- Omistusmuoto
- Omistusasunto
- Huoneluku
- 2
- Asuinpinta-ala
- 53,5 m²
- Kokonaispinta-ala
- 53,5 m²
- Pinta-alan peruste
- Isännöitsijäntodistuksen mukainen, Yhtiöjärjestyksen mukainen
- Kohteen tyyppi
- Kerrostalo
- Kerros
- 2 / 4
- Rakennusvuosi
- 2015
- Käyttöönottovuosi
- 2015
- Kohde myydään vuokrattuna
- Ei
- Vapautuminen
- Heti
Hinta ja kustannukset
- Velaton hinta
- 216 900 €
- Myyntihinta
- 133 190,90 €
- Velkaosuus
- 83 709,10 €
- Yhtiövastike
- Hoitovastike 288,90 € / kk, Rahoitusvastike 749 € / kk, Yhtiövastike yhteensä 1 037,90 € / kk
- Autopaikkamaksu
- 25 € / kk
- Saunamaksu
- 30 € / kk
- Vesimaksu
- 25 Kulutuksen mukaan
- Neliöhinta
- 4 054,21 € / m²
- Lisätietoja maksusta
- Lisätietoja vastikkeista: Vesimaksun tasaus todellisen kulutuksen mukaan. Pesutuvan käyttökorvaus 15,00 €/kk. Hallituksella on valtuudet periä enintään kaksi ylimääräistä hoito- ja pääomavastiketta
Tilat ja materiaalit
- Keittiön lattiat
- Parketti
- Keittiön seinät
- Maali
- Keittiön varusteet
- Jääkaappipakastin, erillisuuni, liesituuletin, astianpesukone, ja kiinteät valaisimet
- Liesi
- Keraaminen liesi ja erillisuuni
- Kylpyhuoneen seinät
- Kaakeli
- Kylpyhuoneen lattiat
- Laatta
- Kylpyhuoneen varusteet
- Lattialämmitys, peilikaappi, suihkuseinä, suihku, wc-istuin, allaskaappi, pesukoneliitäntä, ja kiinteät valaisimet
- Makuuhuoneiden seinät
- Maali
- Makuuhuoneiden lattiat
- Parketti
- Olohuoneen seinät
- Maali
- Olohuoneen lattiat
- Parketti
- Sauna
- Kyllä
- Kiuas
- Sähkökiuas
Lisätiedot
- Asunnon kunto
- Hyvä
- Näkymät
- Näkymät olohuoneesta noin itään Juustenintielle, makuuhuoneesta noin etelään sisäpihalle
- Parveke
- Lasitettu parveke
- Parvekkeen ilmansuunta
- Itä ja etelä
- Hissi
- Kyllä
- Muuta kauppaan kuuluvaa
- Lisätietoja sisältyvistä varusteista: kaapistot, kiinteät valaisimet, sälekaihtimet/rullaverhot
- Muut kaupan kannalta merkittävät tiedot
- Osakkeenomistajat ovat velvollisia huolehtimaan kustannuksellaan asuinhuoneistoihin kuuluvien parvekkeiden, terassien tai ns. ranskalaisten parvekkeiden asianmukaisesta huollosta ja kunnossapidosta mm. huolehtimalla mahdollisen lumen, jään, puiden lehtien yms. poistosta ko. alueilta asianmukaisesti siten, että ne eivät aiheuta vaurioita rakenteille
Taloyhtiö ja kiinteistö
- Taloyhtiön nimi
- Asunto Oy Helsingin Juusteni
- Isännöitsijätoimisto
- SKH-Isännöinti Oy
- Isännöitsijän nimi
- Markku Kulomäki
- Isännöitsijän sähköposti
- [email protected]
- Isännöitsijän puhelin
- (09) 530 8860
- Taloyhtiön lisätiedot
- Tietoja lainojen pituuksista: Lisäksi hoitolainaa 123 000,00 € per 31.8.2024
- Tontin pinta-ala
- 4 478 m²
- Tontin omistus
- Oma
- Rakennusmateriaali
- Betoni ja elementti
- Lämmitysjärjestelmä
- Kaukolämpö
- Kattotyyppi
- tasakatto.
- Katemateriaali
- bitumikermi
- Lisätietoja kiinteistönhoidosta
- Huoltoyhtiö
- Kiinteistönhoidon lisätiedot
- Unce-Kiinteistöpalvelut, Nuijalantie 13, 02630 Espoo
- Taloyhtiössä on
- Kellarikomero, kaapeli-tv, pesutupa, urheiluvälinevarasto, väestönsuoja, ja sauna
- Kohteesta on energiatodistus
- Kyllä
- Energialuokka
- C2013
- Taloyhtiöön kuuluu
- Kerhohuone,
- Lisätietoja liikenneyhteyksistä
- Linja-autopysäkki Parivaljakontiellä (37) noin 200 m, Urkupillintiellä (36) noin 300 m ja Pasuunatiellä (42, 56) noin 600 m, Malminkartanon juna-asema noin 700 m (I ja P)
- Palvelut
- Peruspalvelut Malminkartanon juna-aseman luona noin 500 m, kauppakeskus Kaaressa paljon palveluita noin 2 km.
- Koulut
- Lähimmät Malminkartanossa, lisää lähialueilla.
- Lisätietoja taloyhtiön autonsäilytyspaikoista
- Autokatospaikat ovat osakkeina
- Autokatokset
- 15
- Sähköpistokepaikkoja
- 19 kpl
- Taloyhtiöllä sauna
- Kyllä
- Kaavatilanne
- Asemakaava
- Lisätiedot kaavoituksesta
- Helsingin kaupunki
- Taloyhtiön kiinnitykset
- 8 030 000 €
Tehdyt remontit
Parvekelasien huolto, lämmitysverkoston perussäätö 2023
Tulevat remontit
Ilmanvaihdon nuohous ja säätö, käsisammuttimien uusinta, energiatodistuksen uusiminen sekä VSS tilan tarkastus ja tiiveyskoe 2025
