Kaarikatu 22
86300, Keskusta, Oulainen
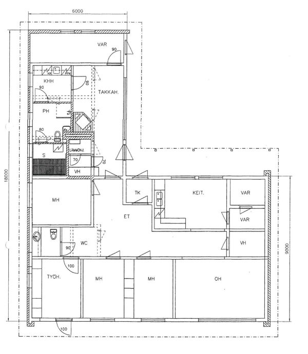
3mh+oh+k+khh+takkah+askarteluh+ph+s
48 000 €
179 m²

Tätä asuntoa myy Mikael Saartoala, Kiinteistönvälittäjä, LKV, LVV, KiLAT
Kiinteistönvälitys Keidas Lkv Oy

Sijainti
Asuntoesittely
Tilava omakotitalo Oulaisten keskustassa aivan palveluiden vieressä.
Kaukolämpö ja vesikiertoinen lattialämmitys. Lisäksi varaava takka. Edulliset asumiskulut.
Tilaa on hulppeasti, 179 m2:n asuin-pinta ala käsittää 3 makuuhuoneen lisäksi työ/askarteluhuoneen, takkahuoneen ja käytännöllisen kodinhoitohuoneen. Talon takapiha on mukavan suojainen.
Talo kuntotarkastettu 2025 lokakuussa! Raportti välittäjältä.
Kysy lisää ja pyydä esittely! Mikael Saartoala p. 044-3398125.
Pohjakuva

Perustiedot
- Sijainti
- Kaarikatu 22, 86300, Keskusta, Oulainen
- Huoneluku
- 4
- Asuinpinta-ala
- 179 m²
- Muu pinta-ala
- 10 m²
- Kokonaispinta-ala
- 189 m²
- Kohteen tyyppi
- Omakotitalo
- Kerros
- 1
- Rakennusvuosi
- 1968
- Käyttöönottovuosi
- 1968
- Kohde myydään vuokrattuna
- Ei
- Vapautuminen
- Sopimuksen mukaan
Tilat ja materiaalit
- Keittiön lattiat
- Laminaatti
- Keittiön seinät
- Tapetti
- Keittiön varusteet
- Jääkaappi, liesi, astianpesukone, ja liesituuletin
- Kylpyhuoneen seinät
- Kaakeli
- Kylpyhuoneen lattiat
- Laatta
- Kylpyhuoneen varusteet
- Lattialämmitys, wc-istuin, ja suihku
- WC Lukumäärä
- 1
- WC:n lattiat
- Laatta
- WC:n seinät
- Kaakeli ja lasikuitutapetti
- Makuuhuoneiden lukumäärä
- 3
- Makuuhuoneiden seinät
- Tapetti
- Olohuoneen seinät
- Tapetti
- Olohuoneen lattiat
- Laminaatti
- Kodinhoitohuoneen varusteet
- Pesukoneliitäntä, pesuallas, lattiakaivo, lattialämmitys, ja pöytätaso
- Kodinhoitohuoneen seinät
- Lasikuitutapetti
- Kodinhoitohuoneen lattiat
- Laatta
- Kohteen säilytystilat
- Ulkovarasto
- Sauna
- Kyllä
- Kiuas
- Sähkökiuas
- Takka
- Takka
Lisätiedot
- Asunnon kunto
- Hyvä
Taloyhtiö ja kiinteistö
- Tontin pinta-ala
- 921 m²
- Tontin omistus
- Oma
- Tontin tyyppi
- Tasamaatontti
- Tontin myyntityyppi
- Koko tontti
- Rakennusmateriaali
- Tiili ja puu
- Lämmitysjärjestelmä
- Kaukolämpö
- Ilmanvaihto
- Koneellinen poisto
- Vesijohto
- Kunnallisvesi
- Viemäröinti
- Kunnallinen viemäriverkosto
- Kattotyyppi
- Harjakatto
- Katemateriaali
- Pelti
- Kohteesta on energiatodistus
- Ei lain edellyttämää energiatodistusta
- Kaavatilanne
- Asemakaava
- Kuntotarkastus tehty
- 28.10.2025
- Asbestikartoitus
- Ei
Tehdyt remontit
Huomattavia peruskorjauksia on suoritettu, mm v. 1983;
- Vesikattorakenteen muutos ”tasakatosta” loivaksi harjakatoksi.
Peruskorjaus 1993;
-Vesikattorakenteen korotus alkuperäisten kattokannattajien päälle
sekä yläpohjan lisäeristys, puhalluseristettä n. 20 cm.
Vesivahingosta aiheutunut peruskorjaus v. 2007, jolloin mm;
- Ulkoseinien osittainen sisäpuolinen lisäeristys uretaanilevyillä. - Seinien alareunojen korjaus. - Lattioiden uusimien lähes kauttaaltaan. - Lämmitysjärjestelmä muutettu varaavasta vesikiertoisesta sähkölämmityksestä vesikiertoiseksi lattialämmitykseksi kaukolämmöllä.
-Salaojat uusittu v. 2007.
Lisäksi autotalli muutettu asuinkäyttöön.
