Kaislatie 26
31400, Kaislaranta, Somero
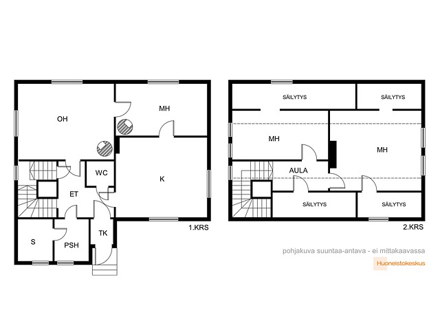
4h+k+wc+ph+s+et+tk+3x vh
109 000 €
82 m²

Tätä asuntoa myy Kimmo Länsikylä, Kiinteistönvälittäjä LKV, LVV, KED, KiLAT
Huoneistokeskus Oy | Forssa

Sijainti
Asuntoesittely
Tämä viehättävä rintamamiestalo sijaitsee Someron Kaislarinteen alueella, rauhallisessa ympäristössä Someronjoen läheisyydessä – ja kuitenkin vain lyhyen matkan päässä keskustan palveluista.
Vuonna 2024-2025 taloon on tehty peruskorjaus, jossa talon tekniikka uusittu ja energiatehokkuutta parannettu. Samalla myös tehty kattava pintaremontti, sekä maalattu julkisivu. Myös piharakennus on remontoitu, mm. vesikate uusittu ja julkisivut kunnostettu ja maalattu. Kuntotarkastettu kokonaisuus tarjoaa huolettoman ja viihtyisän kodin vuosiksi eteenpäin.
Keskikerroksen asuitiloista löytyy kaksi hyväkuntoista pönttöuunia, jotka tuovat sekä lämpöä että tunnelmaa. Uusi ilmalämpöpumppu lämmittää talvisin ja viilentää kesäisin. Reilunkokoinen kellari tarjoaa runsaasti säilytystilaa. Yläkerrassa sijaitsee kaksi tilavaa makuuhuonetta. Piharakennuksessa on autokatos, varastotilaa sekä vanha pihasauna, joka on toimintakunnossa.
Tilava 2593 m² tontti tarjoaa runsaasti mahdollisuuksia puutarhanhoitoon, leikkiin tai vaikka lisärakentamiseen.
Koti yhdistää perinteisen rintamamiestalon tunnelman ja modernin asumismukavuuden – ihanteellinen valinta sinulle, joka arvostat rauhaa, tilaa ja hyvää sijaintia. Ota yhteyttä ja varaa oma esittelysi!
Pohjakuva

Perustiedot
- Sijainti
- Kaislatie 26, 31400, Kaislaranta, Somero
- Huoneluku
- 4
- Asuinpinta-ala
- 82 m²
- Muu pinta-ala
- 30 m²
- Kokonaispinta-ala
- 112 m²
- Lisätiedot pinta-alasta
- Pinta-ala perustuu rakennusvalvonnasta saatuun tietoon. Ei tarkistusmitattu. Pinta-ala voi poiketa olennaisestikin nykymääräysten mukaan mitattavista pinta-aloista.
- Kohteen tyyppi
- Omakotitalo
- Kerros
- 2
- Rakennusvuosi
- 1953
- Lisätietoja rakennusvuodesta
- Laajennus tehty 1987. Alkuperäistä loppukatselmuspöytäkirjaa ei ole saatavilla, laajennuksen loppukatselmus on tehty. Rakennus on merkitty valmiiksi rakennus- ja huoneistorekisteriin.
- Käyttöönottovuosi
- 1953
- Kohde myydään vuokrattuna
- Ei
- Vapautuminen
- Heti
Hinta ja kustannukset
- Myyntihinta
- 109 000 €
- Sähköliittymä siirtyy
- Kyllä
- Neliöhinta
- 1 329,27 € / m²
- Lisätietoja maksusta
- Tietoja kiinteistöverosta: 157,51 €. Lisätietoja vastikkeista: Sähkönkulutus on ollut n. 5000 kwh/v sisältäen käyttö- ja lämmityssähkön. Esitetyt asumiskustannukset perustuvat nykykäyttöön ja voivat siten olla pienempiä tai suurempia, riippuen asukasmäärästä, asumistottumuksista sekä palveluntarjoajasta. Varainsiirtovero 3 % kauppahinnasta.
Tilat ja materiaalit
- Keittiön lattiat
- Laminaatti
- Keittiön seinät
- Maali
- Keittiön varusteet
- Jääkaappipakastin, liesituuletin, ja liesi
- Liesi
- sähköliesi
- Kylpyhuoneen seinät
- Kaakeli
- Kylpyhuoneen lattiat
- Laatta
- Kylpyhuoneen varusteet
- Lattialämmitys, pesukoneliitäntä, ja suihku
- WC Lukumäärä
- 1
- Erillinen WC
- Wc uusittu kokonaan 2024
- WC:n lattiat
- Laatta
- WC:n seinät
- Puu
- Makuuhuoneiden seinät
- Maali
- Makuuhuoneiden lattiat
- Laminaatti
- Olohuoneen seinät
- Maali
- Olohuoneen lattiat
- Laminaatti
- Kohteen säilytystilat
- Ulkovarasto ja vaatehuone
- Sauna
- Kyllä
- Kiuas
- Sähkökiuas
- Saunan kuvaus
- Lauteet uusittu ja seinät vahattu 2024. Lauteiden alla lämminvesivaraaja joka on uusittu 2024
- Takka
- Takka
Lisätiedot
- Asunnon kunto
- Hyvä
- Muuta kauppaan kuuluvaa
- Kalusteet kuuluu kauppaan. Lisätietoja sisältyvistä varusteista: ilmalämpöpumppu, lämminvesivaraaja, matontamppausteline, sälekaihtimet/rullaverhot.
Taloyhtiö ja kiinteistö
- Tontin pinta-ala
- 2 593 m²
- Tontin omistus
- Oma
- Tontin tyyppi
- Tasamaatontti
- Tontin myyntityyppi
- Koko tontti
- Rakennusmateriaali
- Puu
- Lämmitysjärjestelmä
- Puu Ilmalämpöpumppu Sähkö uuni/takka
- Kattotyyppi
- Harja
- Katemateriaali
- Pelti
- Rakennusoikeus e-luku
- 0.2
- Palvelut
- K-supermarket 1,5km Terveyskeskus 3,3km
- Koulut
- Joensuun koulu (ala-aste) 1,1km Kiiruun koulu (yläaste) 2,1km
- Kaavatilanne
- Asemakaava
- Kaavoitustiedot
- Maankäyttöinsinööri Jyrki Virtanen p. +358447791237 [email protected]
- Kuntotutkimus tehty
- 01.01.2025
- Asbestikartoitus
- Ei
- Lisätietoa asbestikartoituksesta
- Rakennukset ovat valmistuneet ennen vuotta 1994 eikä rakennuksiin ole tehty asbestikartoitusta.
- Muut rakennukset
- talousrakennus
- Lisätietoa muista rakennuksista
- Piharakennuksen katto uusittu ja rakennus maalattu 2024. Piharakennuksessa on pihasauna jonka lauteet vahattu 2024. Piippu vetää.
