Kaitaistentie 2 E
20320, Suikkila, Turku
2h+k
118 000 € (1 983,19 € / m²)
59,5 m²

Tätä asuntoa myy Sari Honkala, Asuntomyyjä, KiLAT
Huoneistokeskus Oy | Turku

Sijainti
Asuntoesittely
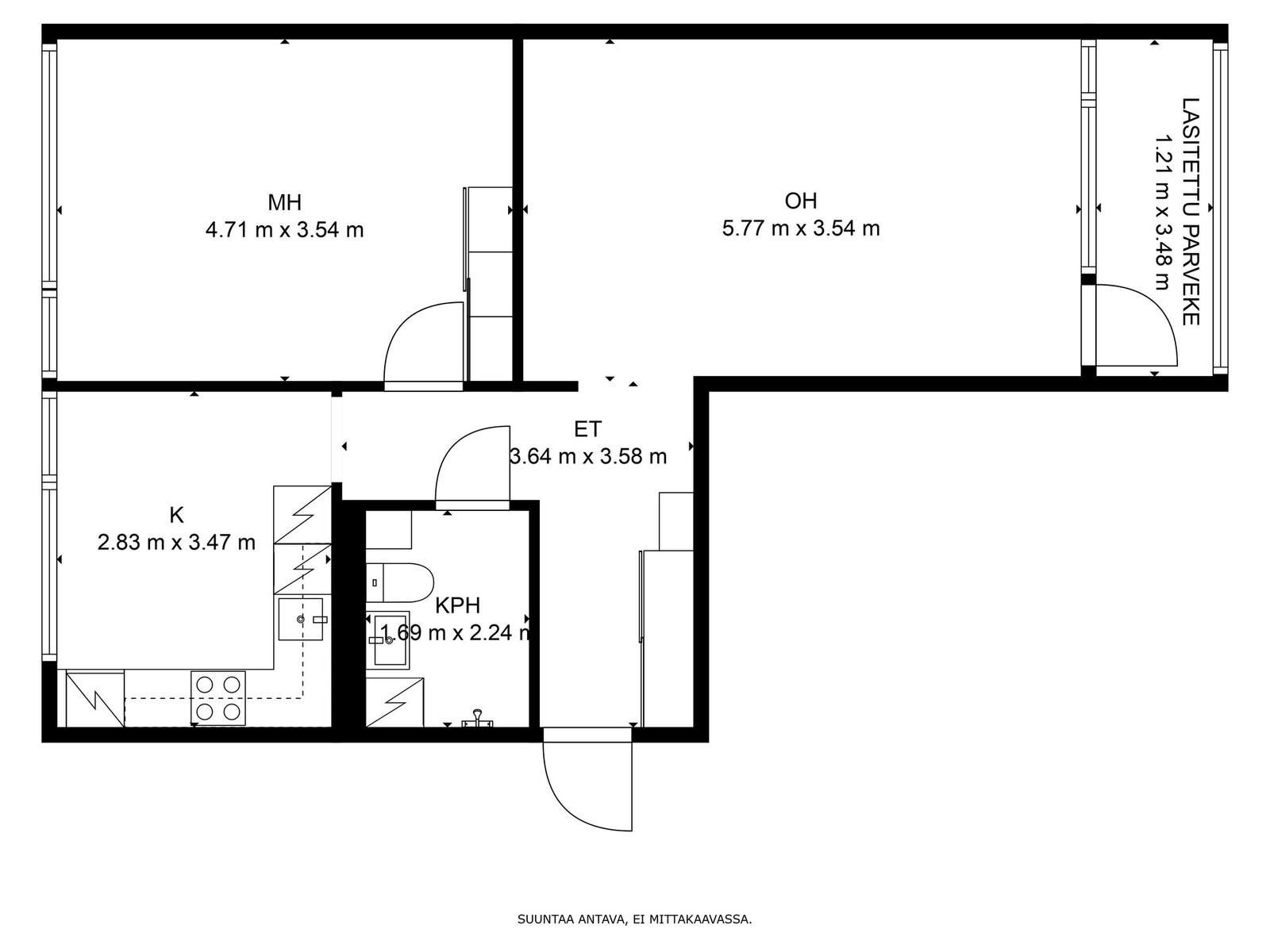
Valoisa läpitalon kaksio ylimmästä kerroksesta.
Tervetuloa viihtymään tähän ylimmän kerroksen kaksioon, jossa avara ja valoisa tunnelma toivottaa sinut heti tervetulleeksi. Asunto on läpitalon, joten valoa tulvii kahdesta suunnasta ja tilat tuntuvat mukavan ilmavilta.
Olohuone on tilava ja valoisa. Sieltä on myös käynti lasitetulle parvekkeelle, jossa voit nauttia ulkoilmasta pitkälle syksyyn. Parvekkeen näkymä on taloyhtiön viihtyisälle takapihalle.
Makuuhuone on avara ja tarjoaa rauhallisen ympäristön levolle. Tilaan mahtuu hyvin myös esimerkiksi etätyöpiste, mikä tekee siitä monikäyttöisen arjen tarpeisiin.
Keittiö on nykyaikainen, ja se tarjoaa hyvät puitteet sekä arjen kokkailuun että yhteisiin hetkiin ystävien kanssa.
Taloyhtiössä on parhaillaan käynnissä linjasaneeraus, ja remontin valmistuttua pääset nauttimaan täysin uudesta, upeasta kylpyhuoneesta – huoletonta asumista vuosiksi eteenpäin!
Linjasaneerauksen arvioitu kustannus on 551,84 €/jm2. Lopullinen lainaosuus vahvistetaan yhtiökokouksessa hakkeen valmistuttua.
Tämä koti on loistava valinta sinulle, joka arvostat valoisuutta, toimivaa pohjaratkaisua ja huoletonta asumista remontin jälkeen.
Järjestämme kohteessa toistaiseksi ainoastaan yksityisesittelyjä. Varaa oma esittelyaikasi.
Sari Honkala
040 548 6366
[email protected]
Pohjakuva

Perustiedot
- Sijainti
- Kaitaistentie 2 E, 20320, Suikkila, Turku
- Omistusmuoto
- Omistusasunto
- Huoneluku
- 2
- Asuinpinta-ala
- 59,5 m²
- Muu pinta-ala
- 0 m²
- Kokonaispinta-ala
- 59,5 m²
- Pinta-alan peruste
- Yhtiöjärjestyksen mukainen, (Pinta-ala ei ole tarkistusmitattu ja todellinen pinta-ala voi olla suurempi tai pienempi, kuin ilmoitettu)
- Lisätiedot pinta-alasta
- Pinta-alaa ei ole tarkistusmitattu. Edellä mainittu pinta-ala saattaa tämän ikäisessä kohteessa poiketa olennaisestikin huoneiston nykyisten mittaustapojen ja standardien mukaan laskettavasta pinta-alasta. Huoneiston todellinen asuinpinta-ala voi siis olla esitteessä mainittua pienempi tai suurempi.
- Kohteen tyyppi
- Kerrostalo
- Kerros
- 3 / 3
- Rakennusvuosi
- 1974
- Käyttöönottovuosi
- 1974
- Kohde myydään vuokrattuna
- Ei
- Vapautuminen
- Sopimuksen mukaan
Hinta ja kustannukset
- Velaton hinta
- 118 000 €
- Myyntihinta
- 118 000 €
- Yhtiövastike
- Hoitovastike 250,75 € / kk, Muu vastike 0,40 € / kk, Yhtiövastike yhteensä 251,15 € / kk
- Saunamaksu
- 5 € / kk
- Neliöhinta
- 1 983,19 € / m²
- Lisätietoja maksusta
- Lisätietoja vastikkeista: Vesi ja sähkö sisältyvät tällä hetkellä vastikkeeseen. Autotallivastike 4,25 €/m2, autopaikkavuokra 120,00 € Pesutupamaksu/ vuoro 4,00€ Laajakaista ja kaapeli tv maksu 0.40€/kk. Varainsiirtovero 1,5%, maksetaan kaupanteon yhteydessä. Taloyhtiön osakeluettelo on siirretty MML:n huoneistotietojärjestelmään ja omistusoikeus perustuu paperiseen osakekirjaan. Ostaja on tietoinen siitä, että hänen tulee hakea omistusoikeutensa rekisteröintiä huoneistotietojärjestelmään Maanmittauslaitokselta kahden kuukauden kuluessa kauppakirjan allekirjoituksesta. Samalla ostajan on toimitettava paperinen osakekirja Maanmittauslaitokselle mitätöitäväksi. Ostaja vastaa omistusoikeuden rekisteröintikustannuksista sekä osakekirjan mitätöinnistä aiheutuvista mahdollisista kustannuksista. Lisäksi saattaa syntyä pankkien määräämiä kuluja
Tilat ja materiaalit
- Keittiön kuvaus
- Keittiön ikkunan sisäpuolen lasi on rikki. Uusi astianpesukone on vaihdettu 26.8.2025.
- Keittiön lattiat
- Laminaatti
- Keittiön seinät
- Maali
- Keittiön varusteet
- Erillisuuni, jääkaappipakastin, liesituuletin, astianpesukone, ja kiinteät valaisimet
- Liesi
- Keraaminen liesi ja erillisuuni
- Kylpyhuone
- Linjasaneeraus alkaa 8.9.2025. Asunnon kylpyhuone uusitaan linjasaneerauksen yhteydessä.
- Kylpyhuoneen seinät
- Kaakeli
- Kylpyhuoneen lattiat
- Laatta
- Kylpyhuoneen varusteet
- Suihku, wc-istuin, pesukoneliitäntä, ja kiinteät valaisimet
- Makuuhuoneiden lukumäärä
- 1
- Makuuhuoneiden seinät
- Maali
- Makuuhuoneiden lattiat
- Laminaatti
- Olohuoneen seinät
- Maali ja tapetti
- Olohuoneen lattiat
- Laminaatti
Lisätiedot
- Asunnon kunto
- Hyvä
- Näkymät
- Parvekkeelta näkymä avaralle sisäpihalle, jossa lasten leikkipaikka sekä grillikatos. Keittiön ja makuuhuoneen näkymä on taloyhtiön etupihalle.
- Parveke
- Lasitettu parveke
- Parvekkeen ilmansuunta
- Itä
- Hissi
- Ei
- Muuta kauppaan kuuluvaa
- Keittiön hylly, eteisen hylly. Lisätietoja sisältyvistä varusteista: kiinteät valaisimet, naulakko, sälekaihtimet/rullaverhot.
Taloyhtiö ja kiinteistö
- Taloyhtiön nimi
- Asunto Oy Haaruluoto
- Isännöitsijätoimisto
- Varsinais-Suomen Isännöintitalo Oy
- Isännöitsijän nimi
- Petri Suominen
- Isännöitsijän puhelin
- 02 2772 600 (toimisto), 041 731 8335
- Taloyhtiön lisätiedot
- Tietoja lainojen pituuksista: Rah.vast, 4/julkisivukorj. -13, Euribor 6 kk 1,00 Lainan päättymispäivä 15.02.2034
- Tontin pinta-ala
- 6 903,1 m²
- Tontin omistus
- Oma
- Rakennusmateriaali
- Betonielementti
- Lämmitysjärjestelmä
- Kaukolämpö
- Ilmanvaihto
- Koneellinen poisto
- Kattotyyppi
- Tasakatto
- Katemateriaali
- Huopakate
- Lisätietoja kiinteistönhoidosta
- Huoltoyhtiö
- Kiinteistönhoidon lisätiedot
- Suikkilan Lämpö
- Taloyhtiössä on
- Kellarikomero, pesutupa, kuivaushuone, kaapeli-tv, uima-allas, jäähdytetty kellari, urheiluvälinevarasto, ja sauna
- Kohteesta on energiatodistus
- Ei lain edellyttämää energiatodistusta
- Taloyhtiöön kuuluu
- Sauna varattavissa perjantaisin ja lauantaisin. Remontin yhteydessä E-rapun 0-kerrokseen valmistuu kerhotila, jossa on pikkukeittiö ja WC. Kylmäuintiin on mahdollisuus maanantai- ja tiistai-iltaisin. Allassauna on varattavissa perjantaisin ja lauantaisin klo 16-22.
- Lisätietoja huoneiston autopaikasta
- Tolppapaikat jonotusperiaatteella.
- Lisätietoja taloyhtiön autonsäilytyspaikoista
- Autotallit ovat erillisillä osakkeilla. Autopaikat jaetaan jonotusperiaatteella.
- Autotallit
- 17
- Piha-autopaikkoja
- 59 kpl
- Taloyhtiöllä sauna
- Kyllä
- Kaavatilanne
- Asemakaava
- Lisätiedot kaavoituksesta
- Turun kaupunki p. 02 330 000
- Kuntotutkimus tehty
- 01.01.2022
- Asbestikartoitus
- Ei
- Lisätietoa asbestikartoituksesta
- Rakennus on loppukatselmuksessa hyväksytty ennen vuotta 1994, eikä asbestikartoitusta ole tehty.
- Taloyhtiön kiinnitykset
- 2 442 100 €
Tehdyt remontit
2023 Linjasaneeraus, Hankesuunnittelu 2022 Porrasvalopainikkeet, Vaihto 2022 Putkiremontti, märkätilakartoitus 2021 Ulkovalmisteiset/ulkoporrasvalot, Valaisimien uusinta 2021 Lukosto, Ovikoodijärjestelmä ulko-oviin 2020 Ilmanvaihto, Puhdistus ja säätö 2018 Autotallien ovet, uusinta 2016 Lukosto, uusinta 2016 Huoneistojen ovet, Huoneistojen ulko-ovien uusinta 2014 Ilmanvaihto, Poistoilma nuohous ja tasapainoitus 2014 Lämmityksen alajakokeskus, Lämmönvaihtimen uusinta 2013 Parvekeovet, Parvekeovien uusiminen 2013 Ikkunat, A-B pohjoispuolen ja C-F itäpuolen ikkunoiden uusiminen 2013 Julkisivu, A-B pohjoispuolen ja C-F eristys ja levytys 2007 Ilmanvaihto, Poistoilma nuohottu ja tasapainotettu 2006 Autotallin ovet, Maalattiin ja kunnostettiin 2006 Parvekelasitukset, Kaikki parvekkeet lasitettiin 2006 Parvekkeet, Parvekkeet maalattu ja kaiteet levytetty 2006 Ikkunat, A-B etelä ja C-F länsisivun ikkunat uusittu. Parvekeikkunoita ja ovia ei uusittu samalla 2006 Julkisivu, Muilta osin saumaukset korjattu ja huollettu 2006 Julkisivu, A-B eteläsivu ja päädyt eristetty ja levytetty 2001 Katto, Vesieristyskermit uusittu 1994 Lämmitysverkostot, Lämmitysverkosto tasapainoitettu 1994 Patteriventtiilit Patteriventtiilit uusittu
Tulevat remontit
Hallitus hyväksynyt 15.4.2025
Arvioitu kunnossapitotarve seuraavien viiden vuoden aikana:
2024-2025 Linjasaneeraus toteutussuunnitelma
2025-2026 Linjasaneeraus, toteutus
2028- Lämmitysratkaisut, kartoitus
2025-2026 Lämmitysverkosto, linja- ja patteriventtiilien uusiminen