Kalastajanpolku 6A
00560, Viikinranta, Helsinki
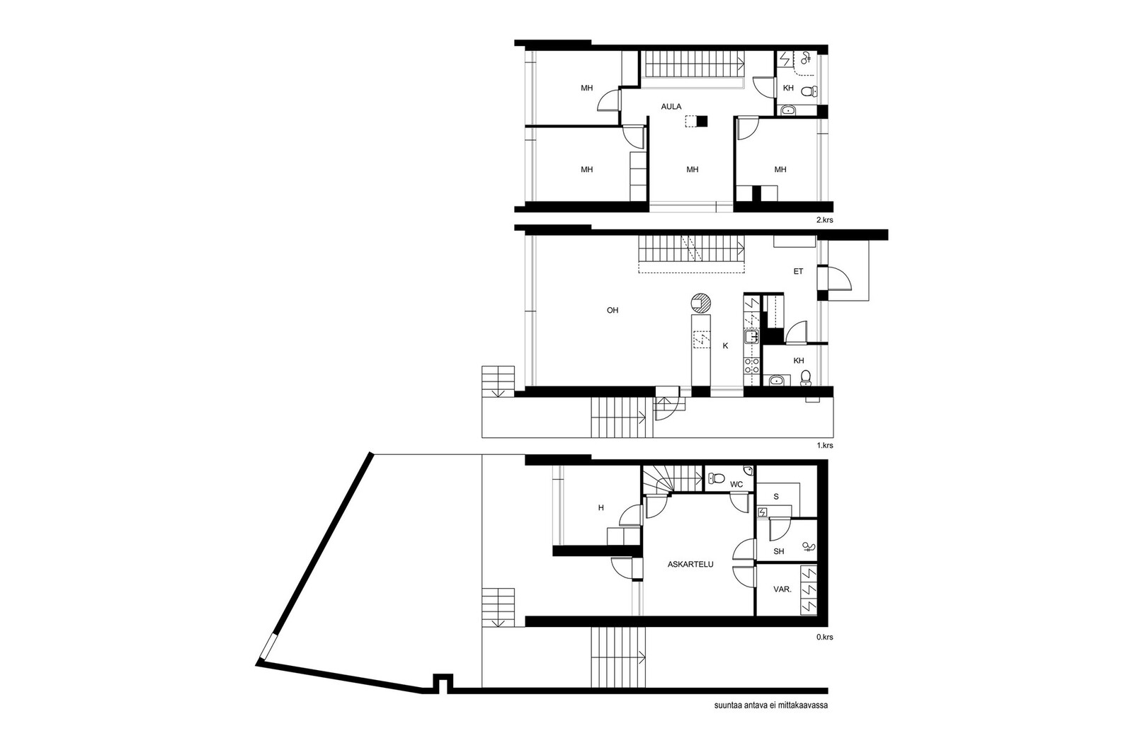
5h+avok+s+kph(3wc)+aula+kellaritila+piha+varasto
835 000 €
125 m²
Tätä asuntoa myy Sami Paulig, Asuntomyyjä
Huoneistokeskus Oy | Helsinki, Runeberginkatu

Sijainti
Asuntoesittely
Upea uniikki paritalokoti huippupaikalla meren äärellä.
Erinomainen ja toimiva pohja kolmessa tasossa, valoisat tilat.
Aidattu oma piha.
Laadukkaat materiaalit, hyvä kunto.
Paikalleen suunniteltu ja rakennettu moderni kivitalo, oma tontti.
Kauttaaltaan vesikiertoinen lattialämmitys, edullinen Vilp-lämmitys.
Kaunis ympäristö vanhankaupunginkosken maisemissa.
Talosta näkyy myös hieman merelle.
Alue on kulttuurihistoriallisesti merkittävä, Helsingin kaupunki perustettiin vuonna 1550 tähän.
Kaikki palvelut lähellä, nopea yhteys keskustaan ja kaikille pääteille.
Kodin edessä 2 autopaikkaa, vieraspysäköinti lähellä.
Tämänkin kodin myy:
Sami Paulig
040 5332289
Autan myös sinun kotisi myynnissä.
Pohjakuva

Perustiedot
- Sijainti
- Kalastajanpolku 6A, 00560, Viikinranta, Helsinki
- Huoneluku
- 5
- Asuinpinta-ala
- 125 m²
- Muu pinta-ala
- 17 m²
- Kokonaispinta-ala
- 142 m²
- Kohteen tyyppi
- Paritalo
- Kerros
- 3
- Rakennusvuosi
- 2016
- Käyttöönottovuosi
- 2016
- Kohde myydään vuokrattuna
- Ei
- Vapautuminen
- Sopimuksen mukaan
Hinta ja kustannukset
- Velaton hinta
- 835 000 €
- Myyntihinta
- 835 000 €
- Sähköliittymä siirtyy
- Kyllä
- Neliöhinta
- 6 680 € / m²
- Lisätietoja maksusta
- Lisätietoja vastikkeista: Sähkönkulutus 12 000kwh 2024. Jätehuolto n. 20€ kuussa Kiinteistövero: 929€ vuodessa Vesi kulutuksen mukaan Rasite- ja yhteisalueiden mahdolliset korjaus- tai parannuskustannukset jaetaan hallinnanjakosopimuksen mukaisesti kaikkien tontin määräosien omistajien kesken. Helsingin kaupungin katujen kunnossapitomaksu 34,44€/ vuosi (2024) Nuohous 1krt/vuosi (64€/2025) Jätevesipumpun sähkönkulutus jaetaan paritalon toisen omistajan kesken. Hulevesipumpun sähkönkulutus jaetaan molempien paritalon omistajien kesken
Tilat ja materiaalit
- Keittiön lattiat
- Lauta
- Keittiön varusteet
- Liesi, jääkaappi, erillisuuni, astianpesukone, mikroaaltouuni, erillinen pakastin, ja liesituuletin / hormi
- Liesi
- Induktioliesi ja erillisuuni
- Kylpyhuoneen seinät
- Kaakeli
- Kylpyhuoneen lattiat
- Laatta
- Kylpyhuoneen varusteet
- Lattialämmitys ja suihku
- WC:n lattiat
- Laatta
- WC:n seinät
- Kaakeli ja tapetti
- Makuuhuoneiden lukumäärä
- 4
- Makuuhuoneiden seinät
- Maali
- Makuuhuoneiden lattiat
- Vinyyli ja lauta
- Olohuoneen seinät
- Maali
- Olohuoneen lattiat
- Lauta
- Kohteen säilytystilat
- muu erillinen varasto
- Sauna
- Kyllä
- Kiuas
- Sähkökiuas
- Takka
- Takka
Lisätiedot
- Asunnon kunto
- Hyvä
- Lisätietoja kunnosta
- Ilmalämpövesipumpun huolto 2022 Uusi jätevesipumppu 2022 Jätevesikaivon pesu (2019, 2022, 2024) Ilmastointikanavien puhdistus 2022 Kiukaan vastusten ja piirilevyn vaihto 2024 Uusi suihku yläkerran kph 2025
- Muuta kauppaan kuuluvaa
- Kauppaan kuuluu myös lamelliverhot (olohuone ja kaksi makuuhuonetta), sekä pimennysrullaverhot (makuuhuone ja yläaula).
Taloyhtiö ja kiinteistö
- Tontin pinta-ala
- 232,05 m²
- Tontin omistus
- Oma
- Tontin tyyppi
- Tasamaatontti
- Tontin myyntityyppi
- Määräosa
- Tontin tiedot
- Koko tontin pinta-ala 1750 m2.
- Rakennusmateriaali
- Betoni ja kivi
- Lämmitysjärjestelmä
- Puu vesikiertoinen lattialämmitys, uuni/takka
- Kattotyyppi
- Pulpetti
- Katemateriaali
- Huopa
- Kohteesta on energiatodistus
- Kyllä
- Energialuokka
- C2013
- Lisätietoja liikenneyhteyksistä
- Erinomaiset liikenneyhteydet kaikkiin suuntiin.
- Tie perille
- Kyllä
- Palvelut
- Prisma Viikki 1,8 km Arabian kirjasto 1,1 km Arabian kauppakeskus 1,9 km Pasilan asema 3,4 km REDI kauppakeskus 3,4 km Oulunkylän terveysasema 1,5 km Malmin sairaala 4 km
- Koulut
- Arabian peruskoulu 1,6 km. Pihlajiston ala-aste 2 km. Pihlajiston ala-aste Viikinmäen piste 1,2 km.
- Kaavatilanne
- Asemakaava