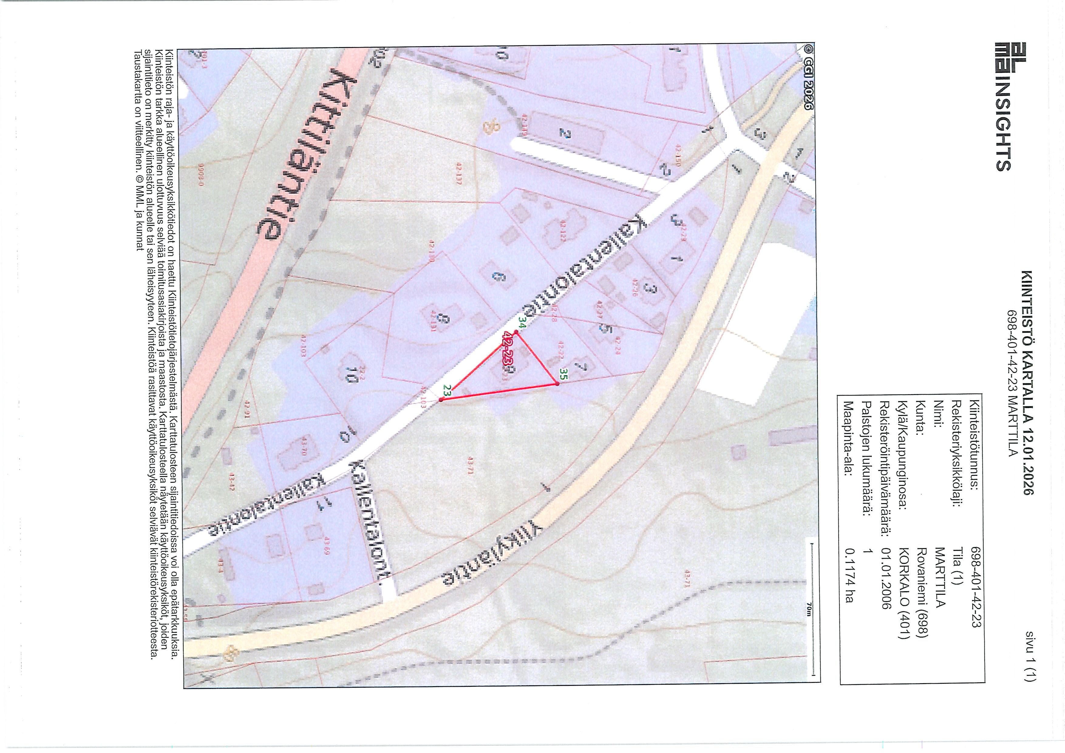
Kallentalontie 9
96800, Ylikylä, Rovaniemi
65 000 €
0,1174 ha

Tätä asuntoa myy Minna Komulainen, Kiinteistönvälittäjä LKV, KiAT, kaupanvahvistaja
Sp-Koti Rovaniemi | Kiinteistönvälitys Rovaniemen Tähelliset LKV Oy

Sijainti
Asuntoesittely
Kallentalontie 9, Ylikylässä, tarjoaa erinomaisen mahdollisuuden rakentaa unelmiesi omakotitalo. Tämä oma tontti sijaitsee rauhallisella alueella rajoittuen puistoalueeseen, mutta silti lähellä Rovaniemen keskustan palveluita.
Ylikylä tunnetaan viihtyisänä ja perheystävällisenä kaupunginosana, jossa luonto ja ulkoilumahdollisuudet ovat aina lähellä. Tontin koko on sopiva omakotitalon rakentamiseen, ja alueen infrastruktuuri tukee mukavaa arkea, päiväkoti ja koulut lähellä.
Tontin ostajalle kuuluu varainsiirtoveron maksu, ja lisätietoja tontista saa välittäjältä. Tämä on tilaisuus, jota et halua ohittaa, jos etsit paikkaa, jossa voit luoda oman rauhallisen keitaan lähellä kaupungin sykettä.
Perustiedot
- Sijainti
- Kallentalontie 9, 96800, Ylikylä, Rovaniemi
- Kohteen tyyppi
- Omakotitalotontti
- Kohde myydään vuokrattuna
- Ei
- Vapautuminen
- Sopimuksen mukaan
Hinta ja kustannukset
- Velaton hinta
- 65 000 €
- Myyntihinta
- 65 000 €
- Kiinteistövero (€/vuosi)
- 251,72 €
- Sähköliittymä siirtyy
- Kyllä
- Lisätietoja maksusta
- Ostaja maksaa varainsiirtoveron 3 % kauppahinnasta.
Tilat ja materiaalit
Lisätiedot
Taloyhtiö ja kiinteistö
- Tontin pinta-ala
- 0,1174 ha
- Tontin omistus
- Oma
- Tontin tyyppi
- Tasamaatontti
- Tontin myyntityyppi
- Koko tontti
- Tontin tiedot
- Tontilla on purkukuntoinen rakennus.
- Vesijohto
- Kunnallisvesi
- Viemäröinti
- Kunnallinen viemäriverkosto
- Rakennusoikeus
- 234.8
- Rakennusoikeus e-luku
- 0.2
- Kohteesta on energiatodistus
- Kohteella ei energiatodistuslain nojalla tarvitse olla energiatodistusta
- Tie perille
- Kyllä
- Kaavatilanne
- Asemakaava
- Kaavoitustiedot
- Rovaniemen kaupunki p. 016 3221
- Kuntotarkastus tehty
- 16.05.2013
