Karhulantie 7 C
32200, 2, LOIMAA
39 500 € (585,19 € / m²)
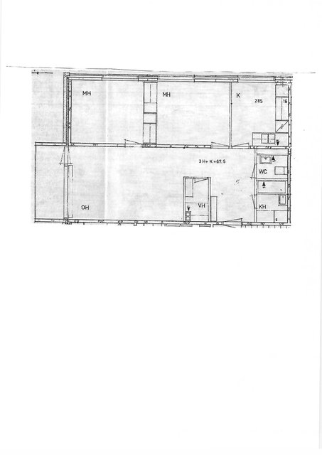
67,5 m²

Tätä asuntoa myy Olavi Uusitalo, Kiinteistönvälittäjä, LKV
Kiinteistötoimisto Uusitalo Oy - LKV

Sijainti
Asuntoesittely
Siistikuntoinen ylimmän (5.) kerroksen kolmio!
Etsitkö tilavaa ja hyväkuntoista kotia Loimaalta? Tämä 67,5 m²:n asunto sijaitsee Asunto Oy Loimaan Karhulanmäessä, vain lyhyen matkan päässä kaupungin keskustasta. Asunto on ylimmässä kerroksessa, ja sieltä avautuu kaunis lännen suuntainen näkymä parvekkeelta.
Kaksi makuuhuonetta ja avara olohuone tarjoavat runsaasti tilaa perheelle. Keittiö on käytännöllinen ja varusteltu muun muassa astianpesukoneella ja jääkaappi/pakastimella. Asunnossa on parkettilattiat, jotka tuovat lämpöä ja tyylikkyyttä sisustukseen. Kylpyhuoneessa on suihku ja pesukoneliitäntä, ja erillinen wc lisää arjen mukavuutta.
Taloyhtiössä on suoritettu useita merkittäviä remontteja, kuten ikkunoiden ja parvekeovien uusiminen sekä vesikattojen korjaus. Yhtiössä on myös sauna, jossa voi rentoutua päivän päätteeksi.
Loimaan keskustan palvelut, kuten koulut, päiväkodit ja liikuntapaikat, ovat lähellä. Hyvät liikenneyhteydet, kuten pyörätiet ja lähellä sijaitseva rautatieasema, tekevät liikkumisesta vaivatonta.
Tämä asunto tarjoaa rauhallisen ja viihtyisän kodin keskeisellä sijainnilla. Tule tutustumaan ja ihastu!Perustiedot
- Sijainti
- Karhulantie 7 C, 32200, 2, LOIMAA
- Omistusmuoto
- Omistusasunto
- Huoneluku
- 3
- Asuinpinta-ala
- 67,5 m²
- Kokonaispinta-ala
- 67,5 m²
- Pinta-alan peruste
- Yhtiöjärjestyksen mukainen, (Pinta-ala ei ole tarkistusmitattu ja todellinen pinta-ala voi olla suurempi tai pienempi, kuin ilmoitettu)
- Lisätiedot pinta-alasta
- Ei tarkistusmitattu. Pinta-alat saattavat tämän ikäisissä kohteissa (yhtiö rekisteröity ennen 01.01.1992) poiketa olennaisestikin asuinrakennusten nykyisten mittaustapojen ja standardien (SFS 5139) mukaan laskettavasta asuintilojen pinta-alasta. Pinta-ala voi siis olla edellä mainittua pienempi tai suurempi.
- Kohteen tyyppi
- Kerrostalo
- Kerros
- 5 / 5
- Rakennusvuosi
- 1971
- Käyttöönottovuosi
- 1971
- Kohde myydään vuokrattuna
- Ei
- Vapautuminen
- Sopimuksen mukaan
Tilat ja materiaalit
- Keittiön kuvaus
- -Sähköliesi, liesituulatin, astianpesukone, jääkaappi/pakastinkaappi -Työpöytä, tiskipöytä, kaapistot -Parkettilattia
- Keittiön lattiat
- Parketti
- Keittiön seinät
- Maali
- Keittiön varusteet
- Jääkaappipakastin, liesituuletin, ja astianpesukone
- Liesi
- Sähköhella
- Kylpyhuone
- -Suihku, pk-liitäntä -Seinät ja lattia laatoitettu
- Kylpyhuoneen seinät
- Kaakeli
- Kylpyhuoneen lattiat
- Laatta
- Kylpyhuoneen varusteet
- Suihku ja pesukoneliitäntä
- WC Lukumäärä
- 1
- Erillinen WC
- -Wc-istuin, käsienpesuallas -Lattia laatoitettu, seinät maalattu
- WC:n lattiat
- Laatta
- WC:n seinät
- Maali
- Makuuhuoneet
- -Parkettilattiat
- Makuuhuoneiden lukumäärä
- 2
- Makuuhuoneiden seinät
- Maali
- Makuuhuoneiden lattiat
- Parketti
- Olohuone
- -Parkettilattia
- Olohuoneen seinät
- Maali
- Olohuoneen lattiat
- Parketti
- Kohteen säilytystilat
- Jäähdytetty kellari ja kellarikomero
- Sauna
- Ei
Lisätiedot
- Asunnon kunto
- Hyvä
- Näkymät
- -Länsi-pohjoinen
- Parveke
- On parveke
- Parvekkeen ilmansuunta
- Länsi
- Terassi
- Ei
- Hissi
- Kyllä
Taloyhtiö ja kiinteistö
- Taloyhtiön nimi
- Asunto Oy Loimaan Karhulanmäki
- Isännöitsijätoimisto
- Hemman Isännöinti Oy
- Isännöitsijän nimi
- Hannele Kangashaka
- Isännöitsijän sähköposti
- [email protected]
- Isännöitsijän puhelin
- 050-4630450
- Tuotot
- 0,0
- Tontin pinta-ala
- 6 857,9 m²
- Tontin omistus
- Vuokra
- Maanvuokraaja
- Loimaan Kaupunki
- Vuokra-aika päättyy
- 30.09.2028
- Rakennusmateriaali
- Betoni ja tiili
- Lämmitysjärjestelmä
- Kaukolämpö
- Ilmanvaihto
- Koneellinen ilmanvaihto
- Vesijohto
- Kunnallisvesi
- Viemäröinti
- Kunnallinen viemäriverkosto
- Kattotyyppi
- Tasakatto
- Katemateriaali
- Huopa
- Lisätietoja kiinteistönhoidosta
- Huoltoyhtiö
- Taloyhtiössä on
- mankeli, pyörävarasto, pesutupa, ja vinttikomero
- Lunastusoikeus yhtiöllä
- Ei
- Lunastusoikeus osakkaille
- Ei
- Kohteesta on energiatodistus
- Kyllä
- Energialuokka
- E2018
- Energiatodistuksen voimassaolo
- 28.3.2035
- Liikenneyhteydet
- Hyvät pyöräilytiet, sujuvat yhteydet omalla autolla ja juna-asema lähellä
- Palvelut
- -Lähellä kaikki Loimaan kaupungin keskustan palvelut. -Rautatie- ja linja-autoasema -Lähellä kuntoportaat, jäähalli ja Padelhalli
- Koulut
- -Lähellä
- Huoneistoon kuuluu yhtiöjärjestyksen mukaan autopaikka
- Pihapaikka
- Autokatokset
- 29
- Piha-autopaikkoja
- 52 kpl
- Taloyhtiöllä sauna
- Kyllä
- Kaavatilanne
- Asemakaava
- Asbestikartoitus
- Ei
Tehdyt remontit
-Ulkoseinien lämpöeristys ja pellitys v-1987-88.
-Ikkunoiden ja parvekeovien uusiminen v-2001.
-Yhtiön saunojen pesuhuoneiden saneeraus v-2002.
-Parvekelinjojen korjaus v-2006.
-Vesikattojen ja parvekelinjojen kattojen uusiminen v-2008.
-Ilmanvaihtokanavien puhdistus v-2009.
-Kaikkien kolmen talon pohjaviemärin saneeraus vuoden 2011-2012 vaihteessa.
-V-2013 taloyhtiö on liittynyt SSP:n valokuituverkkoon.
-V-2014 B-talon yhden pystylinjan ja haarojen sujitus.
-V-2015 sukitettiin kaikkien talojen viemärit.
-V-2015 uusittiin A- ja B-talojen rappukäytävien alatasanteiden pinnat, maalattiin
kaikkien talojen rappukäytävien alakerran seinät.
-V-2016 taloyhtiöön hankittiin molokit sekäjätteelle, paperille, pahville, biojätteelle,
lasille ja metallille. -Uusittiin vialliset patteritermostaatit.