Karikukontie 14 A
90540, Kuivasjärvi, OULU, Oulu
5h+k+s
149 000 € (1 330,36 € / m²)
112 m²

Tätä asuntoa myy Emma Pöllä, Asuntomyyjä
Huoneistokeskus Oy | Oulu

Sijainti
Asuntoesittely
Asu kuin omakotitalossa!
Tässä kodissa on reilut neliöt ja 4 makuuhuonetta mahdollistaa isommankin perheen mukavan asumisen.
Päätyhuoneisto ja mahtava takapiha leikkimökkeineen metsään päin.
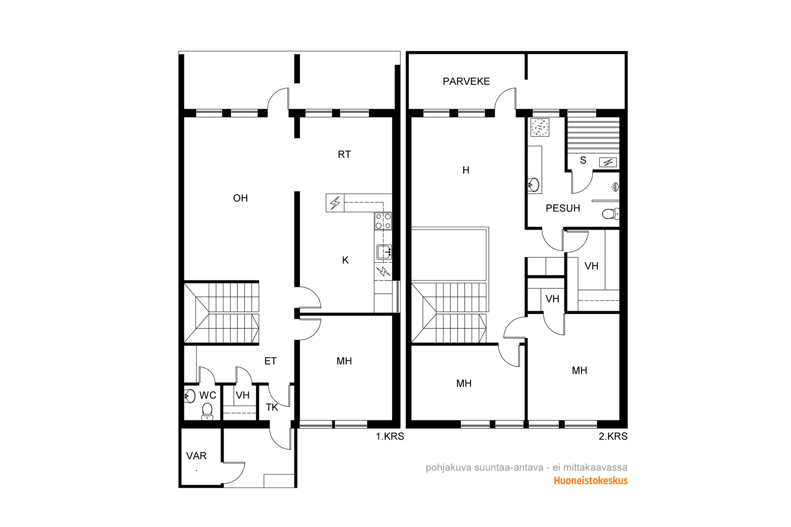
Alakerrassa on olohuone, keittiö ja ruokailutila sekä yksi makuuhuone, vaatehuone ja erillinen wc.
Leveät portaat vievät yläkertaan, jossa kolme makuuhuonetta sekä kylpyhuone ja sauna. Kylpyhuoneessa on kodinhoitotila. Kaksi vaatehuonetta eli säilytystilaa löytyy tosi hyvin. Iso parveke toimii lisähuoneena kesäisin.
Kotia on remontoitu mm. kylpyhuone ja sauna on uusittu 2008.
Lämpimästi tervetuloa tutustumaan tähän persoonalliseen kotiin!
Pohjakuva

Perustiedot
- Sijainti
- Karikukontie 14 A, 90540, Kuivasjärvi, OULU, Oulu
- Omistusmuoto
- Omistusasunto
- Huoneluku
- 5
- Asuinpinta-ala
- 112 m²
- Kokonaispinta-ala
- 112 m²
- Pinta-alan peruste
- Yhtiöjärjestyksen mukainen, Isännöitsijäntodistuksen mukainen
- Lisätiedot pinta-alasta
- Mainittu pinta-ala saattaa tämän ikäisessä kohteessa poiketa olennaisesti nykyisten standardien mukaan laskettavasta asuinpinta-alasta. Todellinen asuinpinta-ala voi olla yhtiöjärjestyksessä, isännöitsijäntodistuksessa ja esitteessä mainittua pienempi tai suurempi.
- Kohteen tyyppi
- Rivitalo
- Kerros
- 2 / 2
- Rakennusvuosi
- 1981
- Käyttöönottovuosi
- 1981
- Kohde myydään vuokrattuna
- Ei
- Vapautuminen
- Sopimuksen mukaan
Hinta ja kustannukset
- Velaton hinta
- 149 000 €
- Myyntihinta
- 143 002,50 €
- Velkaosuus
- 5 997,50 €
- Yhtiövastike
- Hoitovastike 358,40 € / kk (3,20 € / m²), Rahoitusvastike 89,94 € / kk (0,80 € / m²), Yhtiövastike yhteensä 448,34 € / kk
- Autopaikkamaksu
- 6 € / kk
- Vesimaksu
- 25 € / hlö
- Sähköliittymä siirtyy
- Kyllä
- Neliöhinta
- 1 330,36 € / m²
- Lisätietoja maksusta
- Lisätietoja vastikkeista: Vesimaksu peritään ennakkona
Tilat ja materiaalit
- Keittiön kuvaus
- Ruokailutilassa maalattu taideseinä.
- Keittiön lattiat
- Parketti
- Keittiön seinät
- Maali
- Keittiön varusteet
- Liesituuletin, jääkaappi, astianpesukone, ja liesitaso
- Liesi
- liesitaso
- Kylpyhuone
- Kylpyhuone remontoitu 2008, jolloin muutettu sähkötoiminen lattialämmitys. Kylpyhuoneessa kodinhoitotila.
- Kylpyhuoneen seinät
- Kaakeli
- Kylpyhuoneen lattiat
- Laatta
- Kylpyhuoneen varusteet
- WC-istuin, lattialämmitys, allaskaappi, pesukoneliitäntä, ja suihku
- WC Lukumäärä
- 1
- WC:n lattiat
- Laatta
- WC:n seinät
- Puu ja kaakeli
- Makuuhuoneiden lukumäärä
- 4
- Makuuhuoneiden seinät
- Maali
- Makuuhuoneiden lattiat
- Parketti
- Olohuoneen seinät
- Tapetti
- Olohuoneen lattiat
- Parketti
- Kohteen säilytystilat
- Kylmä ulkovarasto
- Sauna
- Kyllä
- Kiuas
- Sähkökiuas
- Saunan kuvaus
- Sauna remontoitu 2008. Tähtivalaistus.
Lisätiedot
- Asunnon kunto
- Hyvä
- Näkymät
- Takapihan näkymät metsään.
- Parveke
- Sisäänvedetty parveke
- Parvekkeen ilmansuunta
- Länsi
- Terassi
- Kyllä
- Hissi
- Ei
- Muut tilat
- Ruokailutilassa maalattu taideseinä, samoin alakerran makuuhuoneessa maalattu taideseinä sekä pimennysverhot. Yhdessä yläkerran makuuhuoneessa taideseinä. Molemmissa kerroksissa vaatehuoneet. Yläkerrassa 2 kpl ja toinen todella iso, muovimattolattiat. Alakerran vaatehuoneessa laattalattia.
- Muuta kauppaan kuuluvaa
- Lisätietoja sisältyvistä varusteista: kiinteät valaisimet, verhotangot
- Muut kaupan kannalta merkittävät tiedot
- Yhtiöjärjestyksen 8 §: Kukin osakas on velvollinen huolehtimaan ja kustantamaan huoneistonsa sisäkorjaukset. Yhtiön tulee korjauttaa kaikki rakenteesta johtuvat sisäpuoliset viat sekä huoneistoon kuuluvat vesi-, viemäri- ja lämpöjohdot.
Taloyhtiö ja kiinteistö
- Taloyhtiön nimi
- Asunto Oy Karikukontie
- Isännöitsijätoimisto
- Tili ja Isännöinti Agenda Oy
- Isännöitsijän nimi
- Pekka Väisänen
- Tuotot
- 0,0
- Taloyhtiön lisätiedot
- Tietoja lainojen pituuksista: Salaojaremonttilaina RL4, lainan päättymispäivä on 31.3.2031
- Tontin pinta-ala
- 4 032 m²
- Tontin omistus
- Vuokra
- Maanvuokraaja
- Oulun kaupunki
- Tontin vuosivuokra
- 3 153,31 €
- Vuokra-aika päättyy
- 31.12.2040
- Rakennusmateriaali
- Betoni
- Lämmitysjärjestelmä
- Kaukolämpö
- Ilmanvaihto
- Painovoimainen ilmanvaihto
- Kattotyyppi
- Harjakatto
- Katemateriaali
- Huopa
- Lisätietoja kiinteistönhoidosta
- Huoltoyhtiö
- Taloyhtiössä on
- Kaapeli-tv ja ulkovarasto
- Lunastusoikeus yhtiöllä
- Ei
- Lunastusoikeus osakkaille
- Ei
- Kohteesta on energiatodistus
- Kyllä
- Energialuokka
- D2018
- Energiatodistuksen voimassaolo
- 23.5.2030
- Taloyhtiöön kuuluu
- Grillikatos.
- Palvelut
- Kuivasjärven palvelut. Kaijonharjun palvelut.
- Huoneistoon kuuluu yhtiöjärjestyksen mukaan autopaikka
- Katospaikka
- Lisätietoja huoneiston autopaikasta
- 11kpl autokatospaikkoja, 1kpl sisältyy asuinhuoneistoon. Jos useamman paikan tarvetta, ne menevät jonottamalla. 2 sähköpistokepaikkaa yhtiöllä. Tällä kohteella on 2 autopaikkaa käytössä.
- Lisätietoja taloyhtiön autonsäilytyspaikoista
- Jokaiseen huoneistoon kuuluu autokatospaikka.
- Autokatokset
- 11
- Sähköpistokepaikkoja
- 2 kpl
- Taloyhtiöllä sauna
- Ei
- Kaavatilanne
- Asemakaava
- Lisätiedot kaavoituksesta
- Oulun kaupunki/kaavoitus Solistinkatu 2 90140 OULU [email protected] p. 044-7030009
- Asbestikartoitus
- Ei
- Taloyhtiön kiinnitykset
- 145 193,97 €
- Taloyhtiön kiinnitysten päivämäärä
- Isännöitsijäntodistuksen päivämäärän mukainen
Tehdyt remontit
2025 sähköjen päivitys takaterasseille ja pihapuiden poistoa.
2024 ulkoterassien ja parvekeovien huolto, A 2 kylpyhuoneremontti, latauskartoitus.
2022 salaojaremontin pihojen kallistuksen korjaus, huoneistojen A4, A6 ja B5 kosteusvauriokorjaukset.
2021 leikkipaikan purku ja piha-alueen kunnostus, takapihan väliaitojen uusiminen, salaojaremontti.
2019 huoneistojen ulko-ovien 3 kpl uusiminen.
2016 lämmityspattereiden termostaattien uusiminen ja verkoston huuhtelu.
2015 rakennusten vesikatteet uusittu.
2011-12 varastojen kattopinnoitteet uusittu.
2009 postilaatikkojen uusiminen, ulko-ovien lukitusten uusiminen.
2008 lämpökanaalin uusiminen B-taloon.
2007 lämmityspumppu uusittu vaihtimeen.
2003 sadevesijärjestelmät ja tontin kuivatus, osittain pihan asfaltin uusiminen.
2000 ulkomaalaukset, elementtisaumat, lämmönvaihtimen uusiminen..
Tulevat remontit
2025-26 piha-aitojen kunnostaminen/uusiminen.
2024-29 julkisivujen kuntotarkastus.
2025-26 IV-kanavien nuohous.
2025-27 palovaroittimien päivitys.
2025-30 ikkunoiden uusiminen.
2025-28 liikuntasaumojen uusiminen (elementtisaumat)
