Karistimentie 2 D
00920, Vartiokylä, Helsinki
3h + k + kph + p
183 000 € (2 541,67 € / m²)
72 m²

Tätä asuntoa myy Martti Jaako, Asunnonmyyjä
Roof Helsinki | ROOF Group Oy

Sijainti
Asuntoesittely
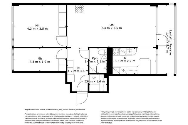
Hyväpohjainen läpitalon kolmio Myllypuron Karistimentiellä.
Tämä 4. kerroksen asunto sijaitsee Asunto Oy Säästömyllyssä, joka on Helsingin isoimpia taloyhtiöitä. Asunnon eteisessä on hyvin kaappitilaa. Eteisestä on käynti kylpyhuoneeseen, jossa on tilaa pesukoneelle. Olohuone on avara ja valoisa. Olohuoneesta pääsee isolle lasitetulle parvekkeelle. Makuuhuoneissa on kiinteitä kaappeja säilytykseen ja vaatehuoneessa on hyvin lisätilaa. Käyttövesi- ja viemäriputket on uusittu vuonna 2008-2009.
Myllypuron ostoskeskus palveluineen on lähellä. Myllypurossa on valtavasti harrastemahdollisuuksia, esimerkiksi Liikuntamyllyssä. Kulkuyhteydet ovat erinomaiset, metroasema on lyhyen kävelymatkan päässä. Kehä I:sen läheisyys mahdollistaa sujuvan liikkuvuuden myös omalla autolla sekä busseilla.
Olisko tässä tuleva kotisi? Ota minuun yhteyttä, niin mennään tutustumaan.
Asunnon myy:
Martti Jaako
p. 050 304 1440
[email protected]
Mikäli olet ostamassa tai myymässä asuntoa, niin ole rohkeasti yhteydessä. Tulen mielelläni arvioimaan asuntosi ja annan kilpailukykyisen välitystarjouksen. Arviokäynti on maksuton ja se ei velvoita itsessään mihinkään.
Perustiedot
- Sijainti
- Karistimentie 2 D, 00920, Vartiokylä, Helsinki
- Omistusmuoto
- Omistusasunto
- Huoneluku
- 3
- Asuinpinta-ala
- 72 m²
- Muu pinta-ala
- 0 m²
- Kokonaispinta-ala
- 72 m²
- Pinta-alan peruste
- Yhtiöjärjestyksen mukainen, Isännöitsijäntodistuksen mukainen, (Pinta-ala ei ole tarkistusmitattu ja todellinen pinta-ala voi olla suurempi tai pienempi, kuin ilmoitettu)
- Lisätiedot pinta-alasta
- Pinta-alaa ei ole tarkistusmitattu. Edellä mainittu pinta-ala saattaa tämän ikäisessä kohteessa poiketa olennaisestikin huoneiston nykyisen ja rakentamisaikaisen mittaustapojen ja standardien mukaan laskettavasta pinta-alasta. Huoneiston todellinen pinta-ala voi siis olla yhtiöjärjestyksessä, isännöitsijäntodistuksessa ja esitteessä mainittua pienempi tai suurempi. Kohteen markkinoinnissa käytetään mittatiedoilla varustettua pohjapiirrosta. Pohjapiirroksen tarkoitus on helpottaa ostajan ostopäätöstä ja selvittää asunnon nykyinen huonejako. Lukija on tietoinen, että pohjakuva on suuntaa antava, ei mittakaavassa, eikä perustu virallisiin piirustuksiin.
- Kohteen tyyppi
- Kerrostalo
- Kerros
- 4 / 7
- Rakennusvuosi
- 1963
- Käyttöönottovuosi
- 1963
- Kohde myydään vuokrattuna
- Ei
- Vapautuminen
- Sopimuksen mukaan
Hinta ja kustannukset
- Velaton hinta
- 183 000 €
- Myyntihinta
- 183 000 €
- Yhtiövastike
- Hoitovastike 328,19 € / kk, Yhtiövastike yhteensä 328,19 € / kk
- Autopaikkamaksu
- 22 € / kk
- Saunamaksu
- 20 € / kk
- Vesimaksu
- 20 € / hlö / kk
- Neliöhinta
- 2 541,67 € / m²
- Lisätietoja maksusta
- pesutuvan koodausmaksu 50 €, hoitovastike 4,95 €/jyvitetty m2, tämän asunnon osalta jyvityskerroin on 66,3. Hallituksella valtuutus periä 1 kuukauden ylimääräinen hoitovastike taloustilanteen niin vaatiessa. Taloyhtiön hallitukselle on annettu valtuutus periä (tai olla perimättä) ylimääräistä vastiketta yhtiön taloudellisen aseman tai maksuvalmiuden sitä vaatiessa
Tilat ja materiaalit
- Keittiön lattiat
- Parketti ja muovimatto
- Keittiön seinät
- Laatta ja maali
- Keittiön varusteet
- Jääkaappipakastin, liesituuletin, ja astianpesukone
- Liesi
- Kaasuliesi
- Kylpyhuoneen seinät
- Kaakeli
- Kylpyhuoneen lattiat
- Laatta
- Kylpyhuoneen varusteet
- WC-istuin, suihku, pesukoneliitäntä, lattialämmitys, peilikaappi, ja pesuallas
- Makuuhuoneiden lukumäärä
- 2
- Makuuhuoneiden seinät
- Tapetti ja maali
- Makuuhuoneiden lattiat
- Muovimatto
- Olohuoneen seinät
- Maali ja tapetti
- Olohuoneen lattiat
- Parketti
- Kohteen säilytystilat
- Kellarikomero
Lisätiedot
- Asunnon kunto
- Tyydyttävä
- Lisätietoja kunnosta
- tyydyttävä/välttävä
- Parveke
- Lasitettu parveke
- Parvekkeen ilmansuunta
- Itä
- Hissi
- Kyllä
Taloyhtiö ja kiinteistö
- Taloyhtiön nimi
- Asunto Oy Säästömylly
- Isännöitsijätoimisto
- Myllypuron kiinteistöhuolto Oy
- Isännöitsijän nimi
- Jyrki Haajanen
- Isännöitsijän sähköposti
- [email protected]
- Isännöitsijän puhelin
- 0934245022
- Tuotot
- 55877.65
- Tontin pinta-ala
- 38 696,2 m²
- Tontin omistus
- Vuokra
- Maanvuokraaja
- Helsingin kaupunki
- Tontin tiedot
- Uuden tontinvuokran arvioitu vaikutus asumiskustannuksiin Myllypuron kerrostalotonteilla on 0,78 € huoneistoneliömetriä kohden kuukaudessa. Jos asunnossa on 72 huoneistoneliötä, uuden tontinvuokran vaikutus asumiskustannuksiin sopimuksen ensimmäisenä vuonna on 56,16 euroa kuukaudessa (kaavalla 0,78 euroa x 72 huoneistoneliömetriä). Kymmenen vuoden siirtymäajan jälkeen, kun uusin tontinvuokra olisi voimassa kokonaisuudessaan, sen vaikutus asumiskustannuksiin olisi 78 euroa kuukaudessa.
- Tontin vuosivuokra
- 105 426,78 €
- Vuokra-aika päättyy
- 31.12.2025
- Rakennusmateriaali
- Betoni
- Lämmitysjärjestelmä
- Kaukolämpö
- Ilmanvaihto
- Koneellinen ilmanvaihto
- Kattotyyppi
- Harjakatto
- Katemateriaali
- Pelti
- Lisätietoja kiinteistönhoidosta
- Huoltoyhtiö
- Kiinteistönhoidon lisätiedot
- Myllypuron kiinteistöhuolto Oy, Sirrikuja 3 C 00940 Helsinki, p. 09 342 4500,[email protected]
- Taloyhtiössä on
- Askarteluhuone, mankeli, pesutupa, ja urheiluvälinevarasto
- Kohteesta on energiatodistus
- Kyllä
- Energialuokka
- D2018
- Energiatodistuksen voimassaolo
- 13.12.2032
- Piha-autopaikkoja
- 183 kpl
- Taloyhtiöllä sauna
- Kyllä
- Kaavatilanne
- Asemakaava
- Lisätiedot kaavoituksesta
- Helsingin kaupunki; kartta.hel.fi -> aineistot ->kaavoitus ja liikennesuunnittelu. p. 09 310 1673.
- Asbestikartoitus
- Ei
- Lisätietoa asbestikartoituksesta
- Kohde on valmistunut ennen vuotta 1994, eikä asbestikartoitusta ole tehty. Ennen vuotta 1994 valmistuneiden rakennusten korjaustöiden osalta otettava huomioon Laki eräistä asbestipurkutyötä koskevista vaatimuksista 684/2015 sekä Valtioneuvoston asetus asbestityön turvallisuudesta 798/2015. Mikäli huoneistossa aikoo tehdä tai teettää remontin, hänen tulee tietyissä tapauksissa teettää asbestikartoitus purettaviin materiaaleihin. Asbestikartoitusvelvollisuus ei koske rakennuksessa tehtäviä vähäisiä töitä, kuten reikien poraamista seiniin tai kattoon.
- Taloyhtiön kiinnitykset
- 10 646 359 €
- Taloyhtiön kiinnitysten päivämäärä
- 31.07.2025
Tehdyt remontit
2023 askarteluhuoneen kunnostus, palokatkokorjauksia kellarikerroksissa
2022 vesikattojen ja yläpohjan eristysten uusinta, Energiaselvitys
2020 autopaikkojen sähköistys, puiden ja pensaiden istutuksia ja kunnostus
2019 sähköjen uusimisia, talojen päätyjen pesu
2015 häiritsevät puut, poistettu.
2018 Iloq lukot, saunojen lauteet
2017 pihakäytävät ja parkkialueet, uusittu asfaltoinnit
2015 lipputangot, maalattu, kukka/pensas alueet, portaiden vieressä uusittu ja reunakivetetty.
2014-2015 rakennusten sisäänkäyntiovet ja lukot uusittu, ilmanvaihdon automaattinen ohjausjärjestelmä, asennettu, ikkunat ja parvekkeiden ovet, uusittu.
2013 leikkipaikkojen korjaukset, pyykinkuivatustelineet, keskitetty ja uusittu, alueet asfaltoitu, pihapolut, talojenväliset väylät peruskunnostettu ja asfaltoitu, puiset pihapenkit, talokohtaiset 6 kpl hankittu, pihapuut ja pensaat, puiden kartoitus ja pihasuunnitelma tehty, kattojen kuntotarkastus. kaikkien rakennusten peltikatot tarkastettu, samalla selvitetty miten lumentulo vinttiin estetään, lumiesteet, katoille sisäänkäyntien lappeelle asennettu esteet, talopesula Ka G-H, kuivatushuoneen lattioiden vesieristeet korjattu, kaapeli-TV, Sonera, laajakaista, Sonera Ekstra 10Mbit
2012 kattojen vesikourut, sokkelit maalattu
2011 julkisivut, elementtien elastiset saumat uusittu, seinät pesty ja maalattu, katonrajan peltiverhous uusittu, parvekkeet, katon ja lattian halkeamat korjattu, betonipalkkien päälle
vesipelti, sadeveden poistoputkien tiivisteet korjattu, katto, betoniseinät ja kaiteen betonipalkit maalattu.
2010–2011 ulkoiluvälinevarastot, maalattu, sähköistys ja valaistus uusittu, kellareiden pääkäytävät huoltomaalaus
2009 TV-antenni, puhelin ja ATK, huoneet rakennettu, keskukset, askartelutila Ka 2 E, seinät maalattu, kerhohuone Ka 1 C-D, keittiö- ja wc kalusteet uusittu, tila maalattu, porrashuoneet, pattereiden termostaatit
2008 opasteet
2008–2009 pihavalaisimet, sähköistys ja säätölaitteet, yhdyskanavat, talojen välisten putkien ja kaapeleiden uudistaminen, pohjaviemärit, osittain sukitettu tai uudistettu
2008-2009 käyttövesi - ja viemäri putket, uusittu
2008–2009 sähkönkulutus, huoneistokohtainen etälukujärjestelmä tehty, päätyseinien sokkelit, vesieristetty, lämmönjakohuoneet uusittu, ikkunoidenpuitteet, ovet, ikkunalaudat, ja puupaneelit,
saunojen ikkunat, porrashuoneiden ulko-ovet, pintakäsitelty, ilmastointijärjestelmät, uusittu, puhdistettu ja säädetty, GSM-pohjainen hälytyksen siirtojärjestelmä,talopesula Ka G-H, rakenteet, ilmastointi, vesikalusteet ja koneet,siivouskomerot, vesi- ja säilytyskaluste
2003–2005 lukitus EXEC
2002 vesikatot, paikattu ja maalattu
2000 tolppavalaisimet, kupu ja heijastimet
2000–2001 linjasäätö, sulkuventtiilit termostaatit
1999 pihakalusteet, maalattu
1996 parvekkeet, halkeamat injektoitu, raudoitus korjattu, sekä kaiteet vaihdettu
1996 julkisivun saumat ja betoniosat maalattu
1989 hissin sisäpinnat, päätyseinät
1987 parvekkeiden lämmöneristys
Tulevat remontit
2025 palovaroittimien asennus kaikkiin huoneistoihin
2025 jätehuollon uudelleen järjestely
2025 lämmöntalteenottohanke
2025-2027 hissien perusparannus/uusiminen
2025-2026 pohjakerroksen puuovet
2026 peltikattojen maalaus
2026-2027 päätyseinien pesu
Parvekkeiden kaiteiden vauriokorjaus tarvittavassa laajuudessa. Lukijan on huomattava, että kunnossapitotarveselvitys on hallituksen näkemys kunnossapitotarpeista viiden vuoden aikana. Päätökset mahdollisesti käynnistettävien kunnossapitotöiden ja muutostöiden suunnittelusta, toteutuksesta sekä rahoituksesta tehdään yhtiökokouksessa erikseen. Kunnossapitotarveselvitys mainitut toimenpiteet saattavat aikaistua tai myöhentyä. Myyjä ei vastaa taloyhtiön myöhemmin päättämistä kunnossapito toimenpiteistä ja niistä aiheutuvista huoneistolle tulevista kustannuksista.
Varsinaisessa yhtiökokouksessa 2.6.2025 päätettiin ryhtyä energiatehokkuus- ja jätekäsittelyhankkeeseen, päätettiin em. hankkeen rahoituksesta enintään 1.500.000 euron lainalla tai limiitillä. Valtuutettiin hallitus hoitamaan em. hankkeen lainajärjestelyt ja määräämään lainaosuuksien maksamisajankohdan ja rahoitusvastikkeen perimisen aloitusajankohdan.
