Karoliinientie 5
10330, Pinjainen, Billnäs, Raasepori
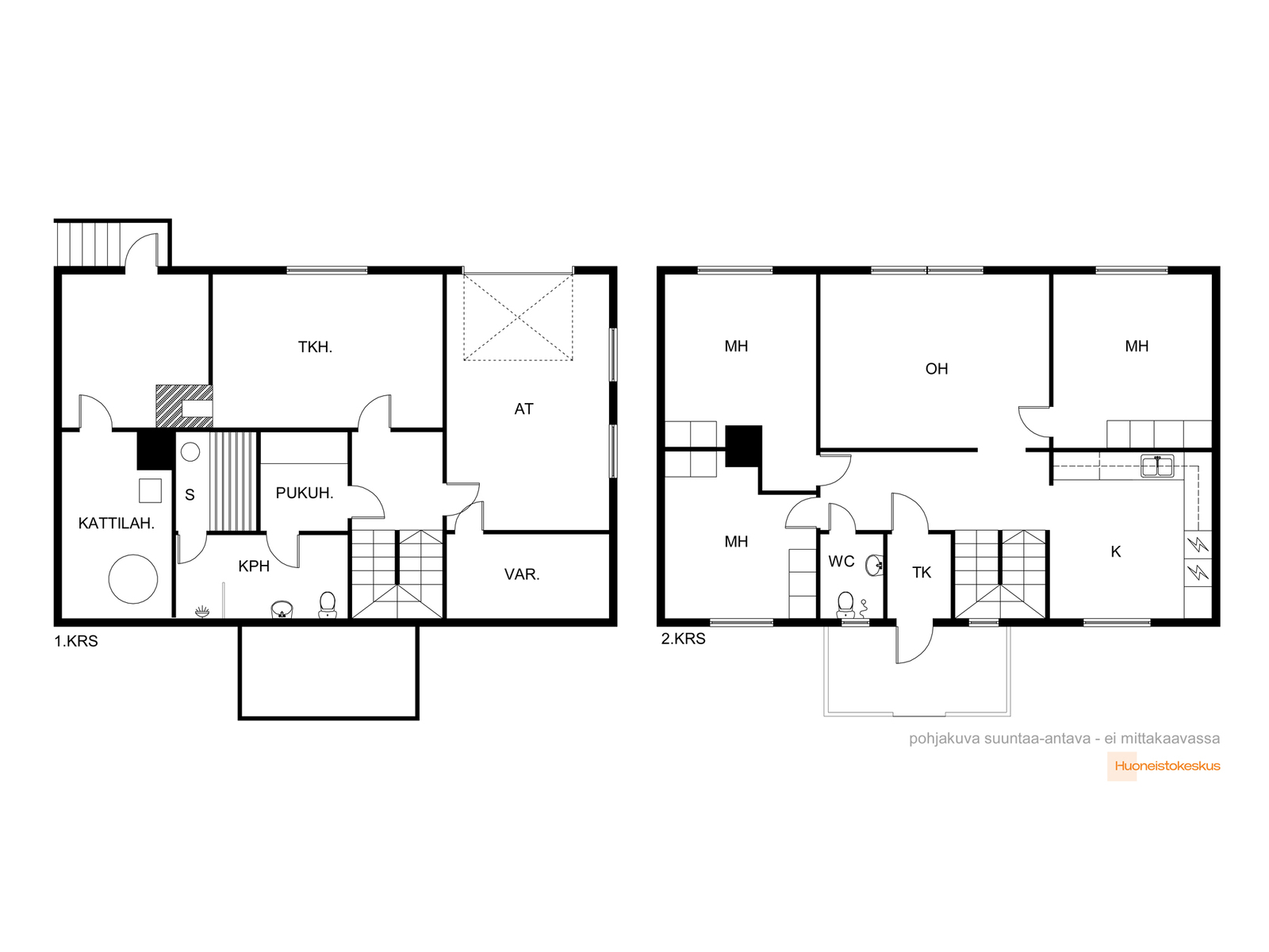
4h,k,takkah,wc,pukuh,kph,s,at
175 000 €
92 m²

Tätä asuntoa myy Anna-Maija Aarni, Kiinteistönvälittäjä, LKV, LVV, KED
Huoneistokeskus Oy | Lohja

Sijainti
Asuntoesittely
Viehättävällä sijainnilla Billnäsissä (Pinjaisissa) omakotitalo, jossa hyvät tilat perheelle.
Talo on 2-tasoinen, jossa olohuone ja keittiö sekä makuuhuoneet sijaitsevat sisääntulokerroksessa ja muut tilat (mm. kylpyhuone-sauna-takkahuone) sijaitsevat talon alakerrassa. Tässä kodissa on hyvä pohjaratkaisu hyvänkokoisine huoneineen. Alakerta on harkkorakenteinen ja yläkerta (sisääntulokerros) on puuta.
Pihalta löytyy lisäksi n. 40 m2:n suuri piharakennus, jossa hyvät tilat kahdelle autolle ja varastotilaa.
Talo sijaitsee aivan kivenheiton päässä Billnäsin ruukkialueesta, jossa nykyisin monenlaisia yrityksiä, puoteja, tapahtumia ja palkittu ravintola. Muutaman kilometrin ajomatkan päästä löytyvät 2 golf-kenttää sekä Påminnen laskettelukeskus. Karjaan palveluihin täältä ei ole kuin n.2,5 km ja Helsinkiin ajelee reilussa tunnissa ja Karjaan keskustasta lähtevällä junalla vielä nopeammin.
Billnäsin kylän alueelta, löytyvät ruotsinkielinen alakoulu ja päiväkoti ja Karjaan keskustan tuntumasta yläkoulut, lukio ja ammatillinen koulutuskeskus.
Pohjakuva

Perustiedot
- Sijainti
- Karoliinientie 5, 10330, Pinjainen, Billnäs, Raasepori
- Huoneluku
- 5
- Asuinpinta-ala
- 92 m²
- Muu pinta-ala
- 92 m²
- Kokonaispinta-ala
- 184 m²
- Lisätiedot pinta-alasta
- 184 m2 on talon kerrosala, 92 m2 on rakennuksen pohjapinta-ala rakennusluvan mukaan.
- Kohteen tyyppi
- Omakotitalo
- Kerros
- 2
- Rakennusvuosi
- 1984
- Käyttöönottovuosi
- 1984
- Kohde myydään vuokrattuna
- Ei
- Vapautuminen
- 01.09.2025
Tilat ja materiaalit
- Keittiön kuvaus
- Keittiön vaaleat kaapit, jää/pakastinkaappi, liesi, liesituuletin, astianpesukone. Työtaso laminaattia.
- Kylpyhuone
- Lattia ja seinät laatoitettu. Kaksi suihkua ja wc-istuin.
- WC Lukumäärä
- 1
- Erillinen WC
- Erillisessä wc:ssä wc-istuin, allas, allaskaapit, peilikaappi ja muuta kaappitilaa sekä suihku. Lattia ja seinät laatoitettu. Ikkuna löytyy myöskin.
- Makuuhuoneiden lukumäärä
- 3
- Kodinhoitohuone
- Kodinhoitohuoneena toimii alakerrassa pukuhuone, jossa allas, allaskaapit, peili, pesukoneliitäntä. Seinät paneelia.
- Kohteen säilytystilat
- Vaatehuone ja ulkovarasto
- Sauna
- Kyllä
- Kiuas
- Puukiuas
- Saunan kuvaus
- Saunassa paneloidut seinät, puulauteet sekä puukiuas.
- Takka
- Takka
Lisätiedot
- Asunnon kunto
- Tyydyttävä
- Lisätietoa seinien pintamateriaaleista
- Seinät maalattuja.
- Lisätietoa lattioiden pintamateriaaleista
- Lattiat laminaattia/laatoitettu.
- Muuta kauppaan kuuluvaa
- Lisätietoja sisältyvistä varusteista: ilmalämpöpumppu, kiinteät valaisimet, lämminvesivaraaja
- Muut kaupan kannalta merkittävät tiedot
- Omistajalta ja Raaseporin kaupungilta ei löydy tietoa/dokumenttia loppukatselmuksesta.
Taloyhtiö ja kiinteistö
- Tontin pinta-ala
- 974 m²
- Tontin omistus
- Oma
- Tontin myyntityyppi
- Koko tontti
- Rakennusmateriaali
- Puu ja kivi
- Lämmitysjärjestelmä
- Sähkö Ilmalämpöpumppu Puu vesikiertoinen patterilämmitys
- Kattotyyppi
- Harja
- Katon kunto
- Pinnoitettu hiljattain
- Katemateriaali
- Sementtikuituaaltokate
- Rakennusoikeus
- 195
- Lisätietoa rakennusoikeudesta
- Raaseporin kaupunki 019-2892000
- Rakennusoikeus e-luku
- 0.2
- Lisätietoja energiatodistuksesta
- Omistaja hankkii energiatodistuksen.
- Tie perille
- Kyllä
- Palvelut
- Karjaan keskusta n. 2,5 km päässä, jossa hyvät palvelut.
- Kaavatilanne
- Asemakaava
- Kaavoitustiedot
- Raaseporin kaupunki 019-2892000
- Kuntotutkimus tehty
- 01.01.2014
- Asbestikartoitus
- Ei
- Muut rakennukset
- Autotalli
- Lisätietoa muista rakennuksista
- Pihalla erillinen ns. kylmä autotallirakennus, jossa myös varastotilaa.