Kasarmikatu 1 C
15700, Hennala, Lahti
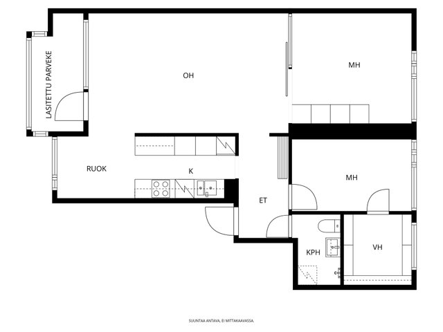
3h,k,kph/wc,vh,et,p
69 000 € (907,89 € / m²)
76 m²

Tätä asuntoa myy Antti Lavonen, Kiinteistönvälittäjä, LKV, kaupanvahvistaja
Huoneistokeskus Oy | Lahti

Sijainti
Asuntoesittely
10/2025 remontista valmistunut asunto! Kylppäri, keittiö + pintaremontit. Ei ole asuttu remontin jälkeen. Tähän huippukuntoiseen ja avaraan 76 m2 kolmioon pääset muuttamaan heti. Asunnossa tilava vaatehuone sekä parveke. Varaa oma esittelyaikasi kohteen välittäjältä.
Perustiedot
- Sijainti
- Kasarmikatu 1 C, 15700, Hennala, Lahti
- Omistusmuoto
- Omistusasunto
- Huoneluku
- 3
- Asuinpinta-ala
- 76 m²
- Kokonaispinta-ala
- 76 m²
- Pinta-alan peruste
- Yhtiöjärjestyksen mukainen, Isännöitsijäntodistuksen mukainen, (Pinta-ala ei ole tarkistusmitattu ja todellinen pinta-ala voi olla suurempi tai pienempi, kuin ilmoitettu)
- Lisätiedot pinta-alasta
- Ei tarkistusmitattu. Pinta-alat saattavat tämän ikäisissä kohteissa (yhtiö rekisteröity ennen 01.01.1992) poiketa olennaisestikin asuinrakennusten nykyisten mittaustapojen ja standardien (SFS 5139) mukaan laskettavasta asuintilojen pinta-alasta. Pinta-ala voi siis olla edellä mainittua pienempi tai suurempi.
- Kohteen tyyppi
- Kerrostalo
- Kerros
- 2 / 3
- Rakennusvuosi
- 1973
- Käyttöönottovuosi
- 1973
- Kohde myydään vuokrattuna
- Ei
- Vapautuminen
- Heti
Hinta ja kustannukset
- Velaton hinta
- 69 000 €
- Myyntihinta
- 69 000 €
- Yhtiövastike
- Hoitovastike 372,40 € / kk (4,90 € / m²), Yhtiövastike yhteensä 372,40 € / kk
- Autopaikkamaksu
- 16 € / kk
- Vesimaksu
- 20 € / hlö / kk
- Neliöhinta
- 907,89 € / m²
- Lisätietoja maksusta
- Taloyhtiön osakeluettelo on siirretty huoneistotietojärjestelmään. Ostajan tulee hakea omistusoikeuden rekisteröintiä Maanmittauslaitokselta. Ostaja vastaa tällöin omistusoikeuden rekisteröintikustannuksista, mahdollisista osakekirjan mitätöinnistä aiheutuvista kustannuksista sekä mahdollisesta hakemusmaksun korotuksesta. Ostajan pankin ostajalta mahdollisesti veloittamista kaupantekoon, omistusoikeuden rekisteröintiin tai panttausmerkinnän hakemiseen liittyvistä kustannuksista ostaja saa tiedon pankiltaan. Osakekirja toimitetaan siirtomerkinnällä varustettuna Maanmittauslaitokselle maksujen jälkeen allekirjoitusprosessissa annettujen valtuutusten mukaisesti. Siirtomerkitty osakekirja toimii myyjän suostumuksena omistuksen rekisteröinnille ostajan nimiin Maanmittauslaitoksen huoneistotietojärjestelmään. Ostaja on tietoinen siitä, että hänen tulee hakea omistusoikeutensa rekisteröintiä huoneistotietojärjestelmään Maanmittauslaitokselta kahden kuukauden kuluessa kauppakirjan allekirjoituksesta. Samalla paperinen osakekirja mitätöidään Maanmittauslaitoksen toimesta. DIAS-kaupassa ostajan asiamiehenä omistusoikeuden rekisteröinnissä toimii ostajan pankki.
Tilat ja materiaalit
- Keittiön lattiat
- Laminaatti
- Keittiön seinät
- Laatta ja tapetti
- Keittiön varusteet
- Liesituuletin ja jääkaappipakastin
- Liesi
- Keraaminen liesi
- Kylpyhuoneen seinät
- Kaakeli
- Kylpyhuoneen lattiat
- Laatta
- Kylpyhuoneen varusteet
- WC-istuin ja pesukoneliitäntä
- Makuuhuoneiden lukumäärä
- 1
- Makuuhuoneiden seinät
- Maali
- Makuuhuoneiden lattiat
- Laminaatti
- Olohuoneen seinät
- Maali
- Olohuoneen lattiat
- Laminaatti
Lisätiedot
- Asunnon kunto
- Erinomainen
- Parveke
- Ulostyönnetty parveke
- Ranta
- Ei rantaa
- Kohde on saaressa
- Ei
Taloyhtiö ja kiinteistö
- Taloyhtiön nimi
- Asunto Oy Lahden Hennala 92
- Isännöitsijätoimisto
- Suomen Kruunu Oy
- Isännöitsijän nimi
- Antton Lehto
- Isännöitsijän puhelin
- 050 441 7333
- Tontin pinta-ala
- 4 539 m²
- Tontin omistus
- Oma
- Rakennusmateriaali
- Betoni
- Lämmitysjärjestelmä
- Kaukolämpö
- Kattotyyppi
- tasakatto
- Katemateriaali
- bitumi
- Lisätietoja kiinteistönhoidosta
- Huoltoyhtiö
- Kiinteistönhoidon lisätiedot
- Manser Oy, Juha Särkkä, p. 0400 493 873
- Taloyhtiössä on
- Huoneistokohtaiset varastot
- Lunastusoikeus yhtiöllä
- Ei
- Lunastusoikeus osakkaille
- Ei
- Kohteesta on energiatodistus
- Kyllä
- Energialuokka
- E2018
- Energiatodistuksen voimassaolo
- 2.10.2035
- Liikenneyhteydet
- Bussipysäkki lähellä
- Sähköpistokepaikkoja
- 20 kpl
- Taloyhtiöllä sauna
- Kyllä
- Kaavatilanne
- Asemakaava
- Lisätiedot kaavoituksesta
- Lahden kaupunki, p. 03 814 2355
- Asbestikartoitus
- Ei
- Lisätietoa asbestikartoituksesta
- Rakennus on valmistunut ennen vuotta 1995 eikä asbestikartoitusta ole tehty.
Tehdyt remontit
Ikkuna ja parvekeovien vaihto 2011
Pohjaviemäreiden sukitus 2011
Runkoviemäreiden sukitus 2011
Kaukolämmön peruskorjaus 2012
Autopaikkalämmitys ja aluevalaistus 2013
Kuntoarvio teettäminen 2016
PTS-teettäminen 2020
Tulevat remontit
Palovaroittimien uusiminen 2026
Julkisivun kuntotutkimus 2027
Väestönsuojan tarkastus
