Katajatie 9a
01400, Asola, Vantaa
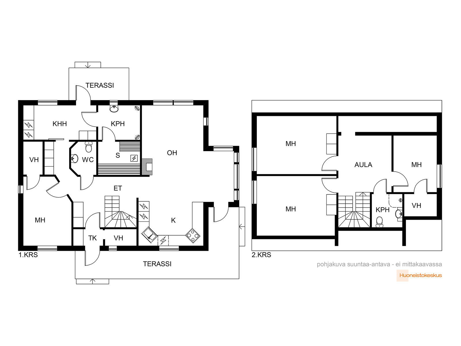
5h + k + s + khh + 2xkph, wc, varastotilaa + autotalli
445 000 €
145 m²

Tätä asuntoa myy Suvi Ylönen, Kiinteistönvälittäjä, LKV
Huoneistokeskus Oy | Vantaa

Sijainti
Asuntoesittely
Luonnonrauhaa - harrastusmahdollisuuksia - loistavat palvelut - kulkuyhteydet joka suuntaan. Olisiko tässä teemoja uudelle kodillesi?
2009 valmistunut kuntotarkastettu talo omalla rauhallisella 940 m²:n tontilla tarjoaa juuri näitä elementtejä. Käytännölliset asuintilat terasseineen, autotallirakennus varastoineen, sekä suojaisa piha-alue tekevät arjesta rentouttavaa.
Varaava takka, ilmalämpöpumput ja koneellinen ilmanvaihto lämmöntalteenotolla, sekä aurinkopaneelit auttavat säästämään energiakustannuksissa.
Kaikki tarvittava – koulut, päiväkodit, kaupat ja kattavat ulkoilureitit – löytyy kävelyetäisyydeltä. Lähistölle rakenteilla oleva Elmon urheilupuisto tuo alueelle vielä lisää aktiivisia mahdollisuuksia.
Tervetulo tutustumaan uuteen kotiisi!
Pohjakuva

Perustiedot
- Sijainti
- Katajatie 9a, 01400, Asola, Vantaa
- Huoneluku
- 5
- Asuinpinta-ala
- 145 m²
- Muu pinta-ala
- 18 m²
- Kokonaispinta-ala
- 163 m²
- Lisätiedot pinta-alasta
- Pinta-alat on saatu rakennuslupadokumenteista.
- Kohteen tyyppi
- Omakotitalo
- Kerros
- 2
- Rakennusvuosi
- 2009
- Käyttöönottovuosi
- 2009
- Kohde myydään vuokrattuna
- Ei
- Vapautuminen
- Sopimuksen mukaan
Tilat ja materiaalit
- Keittiön lattiat
- Laatta
- Keittiön seinät
- Laatta ja maali
- Keittiön varusteet
- Liesituuletin, liesi, jääkaappi, astianpesukone, ja erillinen pakastin
- Liesi
- Induktioliesi
- Kylpyhuoneen seinät
- Kaakeli
- Kylpyhuoneen lattiat
- Laatta
- WC Lukumäärä
- 2
- WC:n lattiat
- Kivi
- WC:n seinät
- Kaakeli
- Makuuhuoneiden lukumäärä
- 4
- Makuuhuoneiden seinät
- Maali
- Makuuhuoneiden lattiat
- Laminaatti ja muovimatto
- Olohuoneen seinät
- Maali
- Olohuoneen lattiat
- Parketti
- Kodinhoitohuoneen varusteet
- Lattiakaivo ja pesukoneliitäntä
- Kodinhoitohuoneen seinät
- Maali
- Kodinhoitohuoneen lattiat
- Laatta
- Sauna
- Kyllä
- Kiuas
- Sähkökiuas
- Takka
- Takka
Lisätiedot
- Asunnon kunto
- Hyvä
- Muuta kauppaan kuuluvaa
- Lisätietoja sisältyvistä varusteista: keskuspölynimuri, sälekaihtimet/rullaverhot, verhotangot
Taloyhtiö ja kiinteistö
- Tontin pinta-ala
- 940 m²
- Tontin omistus
- Oma
- Tontin tyyppi
- Tasamaatontti
- Tontin myyntityyppi
- Koko tontti
- Rakennusmateriaali
- Puu
- Lämmitysjärjestelmä
- Sähkö Tyyppi: sähköinen lattialämmitys Ilmalämpöpumppu sähköinen lattialämmitys
- Kattotyyppi
- Harjakatto
- Katemateriaali
- Tiilikate
- Rakennusoikeus
- 150
- Kohteesta on energiatodistus
- Kyllä
- Energialuokka
- C2018
- Lisätietoja energiatodistuksesta
- Rakennuksessa on jo huomioitu energiaa säästäviä ratkaisuja, kuten kohteessa on varaava tulisija ja kaksi ilmalämpöpumppua, ilmanvaihdossa on lämmön talteenottoa ja lisäksi kohteessa on 8 kWp aurinkopaneeleita. Näiden oikealla käytöllä ja huollolla saadaan aikaan energian säästöä.
- Kaavatilanne
- Asemakaava
- Kaavoitustiedot
- AO - erillistalojen korttelialue. https://kartta.vantaa.fi/link/7Hm9eu Kiinteistö rajautuu metsäalueeseen, joka asemakaavassa on YS - alue, jolle saa sijoittaa vanhusten palvelutalon, kerho-, ja kokoontumistiloja sekä lasten päiväkodin.
- Kuntotutkimus tehty
- 01.01.2024
- Muut rakennukset
- Autotalli