Kaunismäenkatu 3 C
32200, 6, LOIMAA, Loimaa
76 000 € (950 € / m²)
80 m²

Tätä asuntoa myy Olavi Uusitalo, Kiinteistönvälittäjä, LKV
Kiinteistötoimisto Uusitalo Oy - LKV

Sijainti
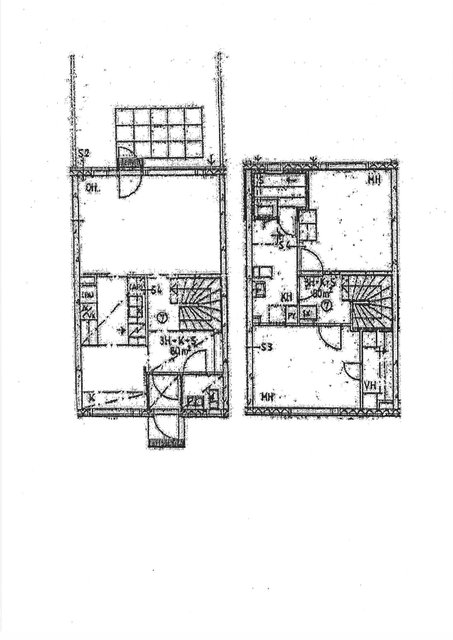
Asuntoesittely
Kauniilla Kaunismäenkadulla Loimaalla sijaitsee valoisa ja kodikas rivitaloasunto, joka tarjoaa mukavuutta ja toimivuutta kahdessa kerroksessa. Tämä 80 m² koti on rakennettu vuonna 1989 ja on hyvässä kunnossa. Asunto on ihanteellinen perheelle, joka arvostaa rauhallista ympäristöä ja hyviä kulkuyhteyksiä.
Alueella on erinomaiset liikuntamahdollisuudet, kuten jäähalli, Padel-halli ja kuntoportaat, jotka ovat kaikki lähellä. Myös koulut ja päiväkodit sijaitsevat kätevästi lähistöllä, mikä tekee arjesta sujuvaa lapsiperheille.
Asunnossa on kaksi makuuhuonetta, tilava olohuone, käytännöllinen keittiö sekä sauna, jossa rentoutua päivän päätteeksi. Terassi tarjoaa mukavan paikan nauttia ulkoilmasta ja rauhallisesta ympäristöstä. Taloyhtiössä on myös ulkovarasto ja autokatospaikka.
Tämä koti on erinomainen valinta perheelle, joka etsii toimivaa ja viihtyisää asuntoa rauhalliselta alueelta. Tartu tilaisuuteen ja tee tästä asunnosta uusi kotisi!
Perustiedot
- Sijainti
- Kaunismäenkatu 3 C, 32200, 6, LOIMAA, Loimaa
- Omistusmuoto
- Omistusasunto
- Huoneluku
- 3
- Asuinpinta-ala
- 80 m²
- Kokonaispinta-ala
- 80 m²
- Pinta-alan peruste
- Yhtiöjärjestyksen mukainen, (Pinta-ala ei ole tarkistusmitattu ja todellinen pinta-ala voi olla suurempi tai pienempi, kuin ilmoitettu)
- Lisätiedot pinta-alasta
- Ei tarkistusmitattu. Pinta-alat saattavat tämän ikäisissä kohteissa (yhtiö rekisteröity ennen 01.01.1992) poiketa olennaisestikin asuinrakennusten nykyisten mittaustapojen ja standardien (SFS 5139) mukaan laskettavasta asuintilojen pinta-alasta. Pinta-ala voi siis olla edellä mainittua pienempi tai suurempi.
- Kohteen tyyppi
- Rivitalo
- Kerros
- 2 / 2
- Rakennusvuosi
- 1989
- Kohde myydään vuokrattuna
- Ei
- Vapautuminen
- Sopimuksen mukaan
Tilat ja materiaalit
- Keittiön kuvaus
- -Keraaminen liesi, liesituuletin, jääkaappi/pakastinkaappi, astianpesukone -Työpöytä, tiskipöytä, kaapistot -laminaattilattia
- Keittiön lattiat
- Laminaatti
- Keittiön seinät
- Maali
- Keittiön varusteet
- Liesi, uuni, jääkaappipakastin, ja astianpesukone
- Liesi
- Keraaminen liesi
- Kylpyhuone
- -Suihku, wc-istuin, käsienpesuallas, pk-liitäntä -Seinät laatoitettu, lattiassa muovimatto
- Kylpyhuoneen seinät
- Kaakeli
- Kylpyhuoneen lattiat
- Muovimatto
- Kylpyhuoneen varusteet
- WC-istuin, suihku, pesuallas, ja pesukoneliitäntä
- WC Lukumäärä
- 1
- Erillinen WC
- -Wc-istuin, käsienpesuallas, peilikaappi ja allaskaappi -Muovimatto lattiassa, seinät maalattu
- WC:n lattiat
- Muovimatto
- WC:n seinät
- Maali
- Makuuhuoneet
- -Laminaattilattiat
- Makuuhuoneiden lukumäärä
- 2
- Makuuhuoneiden seinät
- Maali
- Makuuhuoneiden lattiat
- Laminaatti
- Olohuone
- -Laminaattilattia
- Olohuoneen seinät
- Maali
- Olohuoneen lattiat
- Laminaatti
- Kohteen säilytystilat
- Kylmä ulkovarasto
- Sauna
- Kyllä
- Kiuas
- Sähkökiuas
- Takka
- Ei takkaa
Lisätiedot
- Asunnon kunto
- Hyvä
- Näkymät
- -Läpi talon, Pohjoinen-etelä
- Parveke
- Ei parveketta
- Terassi
- Kyllä
- Hissi
- Ei
- Kohde on saaressa
- Ei
Taloyhtiö ja kiinteistö
- Taloyhtiön nimi
- As. Oy Kaunismäenkatu 3C
- Isännöitsijätoimisto
- Hemman Isännöinti Oy
- Isännöitsijän nimi
- Samuli Rautu
- Isännöitsijän sähköposti
- [email protected]
- Isännöitsijän puhelin
- 050-4688150
- Tuotot
- 0
- Tontin pinta-ala
- 2 245 m²
- Tontin omistus
- Vuokra
- Maanvuokraaja
- Loimaan kaupunki
- Vuokra-aika päättyy
- 11.01.2034
- Rakennusmateriaali
- Puu ja tiili
- Lämmitysjärjestelmä
- Kaukolämpö
- Ilmanvaihto
- Koneellinen ilmanvaihto
- Vesijohto
- Kunnallisvesi
- Viemäröinti
- Kunnallinen viemäriverkosto
- Kattotyyppi
- Harjakatto
- Katemateriaali
- Pelti
- Lisätietoja kiinteistönhoidosta
- Asukkaat
- Kiinteistönhoidon lisätiedot
- Talkoot/osin ulkopuolinen urakoitsija
- Taloyhtiössä on
- ulkovarasto
- Lunastusoikeus yhtiöllä
- Ei
- Lunastusoikeus osakkaille
- Ei
- Kohteesta on energiatodistus
- Kyllä
- Energialuokka
- D2018
- Energiatodistuksen voimassaolo
- 26.2.2035
- Liikenneyhteydet
- Juna-asema lähellä, hyvät pyöräilytiet ja sujuvat yhteydet omalla autolla
- Palvelut
- -Lähellä harrastuspaikat, jäähalli, Padel-halli, kuntoportaat, kuntoreitti
- Koulut
- -Lähellä
- Huoneistoon kuuluu yhtiöjärjestyksen mukaan autopaikka
- Katospaikka
- Autokatokset
- 8
- Taloyhtiöllä sauna
- Ei
- Kaavatilanne
- Asemakaava
- Asbestikartoitus
- Ei
Tehdyt remontit
-Kiinteistön ulkomaalaus v-97
-Autokatos rakennettu v-01
-Liittyminen kaukolämpöön v-02 -
-Ulko-ovien ja lukitusten uusiminen -09 (Abloy Exec)
-Ilmanvaihtokanavien puhdistus ja säätö v-2010.
-Lämpökanaalin uusiminen (käyttövesi + lämmitys) v-2010.
-Patteritermostaattien uusiminen v-2010.
-Kaukolämmön lämminvesivirran tarkastus v-2010.
-Terassiovien uusiminen (7 kpl) v-2013.
-Autokatokseen johtavan maakaapelin korjaus v-2015.
-Matalan rakennuksen tiilijulkisivun pesu v-2015.
-Takapihan huoneistokohtaiset puiset väliaidat uusittu v-2016.
-Sisäänkäynnin betoniraput korjattu as. 5-8 v-2016.
-Salaojat tarkastettu v-2016.
-Asuinhuoneistojen raitisilmaventtiilin suodattimet uusittu v-2017.
-Sisäänkäynnin betoniraput korjattu as. 1-4 v-2017.
-Kattojen ja rännien puhdistus sammaleesta v-2017.
-Ikkunoiden ja B-talon julkisivujen puuosien uusiminen v-2018.
-IV-kanavien puhdistus ja säätö v-2018.
-Huoneistokohtaiset valokuituliittymät v-2018.
-Katto-, julkisivu-, sadevesi- ja pihan toteutussuunnittelu v-2021.
