Kauppakatu 28 B
60100, Marttila, Seinäjoki
4h, k, ph, s, wc, khh
370 000 € (3 032,79 € / m²)
122 m²

Tätä asuntoa myy Justus Kareno, Myyntipäällikkö, LKV, YKV, kaupanvahvistaja
Huoneistokeskus Oy | Seinäjoki

Sijainti
Asuntoesittely
Tule ihastumaan tähän tilavaan ja valoisaan kerrostalokotiin erinomaiselta paikalta Marttilasta, Seinäjoen ydinkeskustan palveluiden ääreltä. Ruokakauppa, koulut ja päiväkoti sijaitsevat muutaman sadan metrin säteellä. Jokivarren ulkoilureitit ja urheilutalon liikuntamahdollisuudet ovat lähellä. Keskustori, Aalto-keskus, kansalaisopisto ja rautatieasema löytyvät lyhyen kävelymatkan etäisyydeltä.
Kaunis ja huolellisesti ylläpidetty asunto, joka hurmaa jo ensiaskelten aikana. Tilavassa eteisessä hyvin säilytystilaa niin kengille kuin ulkovaatteillekin. Kolme makuuhuonetta, jotka varustettu vaatekaapein. Olohuone, keittiö ja ruokailutila muodostavat avoimen ja yhtenäisen tilan. Erillinen kodinhoitotila on kätevä sujuvan arjen helpotus, kuten myös erillinen wc. Saunassa nautit tornikiukaan löylyistä, pesuhuoneesta pääset halutessasi vilvoittelemaan lasitetulle, jokirantaan suuntautuvalle parvekkeelle. Toinen lasitetuista parvekkeista sijoittuu olohuoneen puolelle, täällä nautit rauhallisista puiston ja sisäpihan näkymistä.
Keittiön kodinkoneet, ovet, työtasot ja välitila on uusittu vuonna 2014. Samalla uusittu pesuhuoneen katto, saunan lauteet, kiuas ja katto sekä väliovet. Kaikki seinät on maalattu ja makuuhuoneiden tehosteseinä tapetoitu vuonna 2018. Pesuhuoneen ja wc:n kalusteet on uusittu vuonna 2019, olohuoneen tehosteseinän näyttävä tiililaatoitus on tehty vuonna 2021.
Hissillinen, omalla tontilla sijaitseva kaukolämmitteinen taloyhtiö. Sisäpihalla on lapsille leikkialue. Televisio- ja tietoliikenneyhteyksinä kaapelitelevisio sekä 100M taloyhtiölaajakaista. Helppoa ja huoletonta asumista nykyaikaisessa kerrostalossa. Autoa varten on mahdollista ostaa autohallipaikka omana osakkeenaan hintaan vh. 19 000 euroa.
Tämä kaunis koti vapautuu sopimuksen mukaan. Ota yhteyttä ja tule tutustumaan!
Kiinteistönvälittäjä YKV, LKV Justus Kareno
p. 050 309 7500, [email protected].
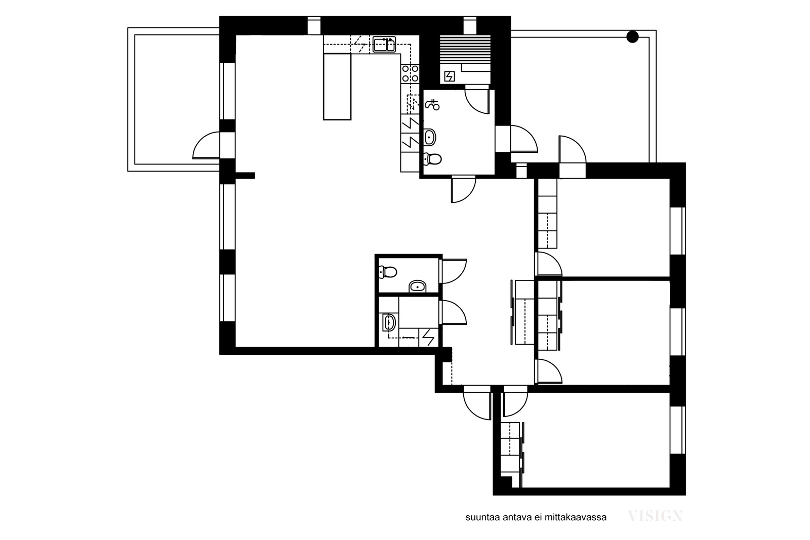
Pohjakuva

Perustiedot
- Sijainti
- Kauppakatu 28 B, 60100, Marttila, Seinäjoki
- Omistusmuoto
- Omistusasunto
- Huoneluku
- 4
- Asuinpinta-ala
- 122 m²
- Kokonaispinta-ala
- 122 m²
- Pinta-alan peruste
- Yhtiöjärjestyksen mukainen, Isännöitsijäntodistuksen mukainen
- Kohteen tyyppi
- Kerrostalo
- Kerros
- 2 / 5
- Rakennusvuosi
- 2012
- Käyttöönottovuosi
- 2012
- Kohde myydään vuokrattuna
- Ei
- Vapautuminen
- Sopimuksen mukaan
Hinta ja kustannukset
- Velaton hinta
- 370 000 €
- Myyntihinta
- 209 504,16 €
- Velkaosuus
- 160 495,84 €
- Yhtiövastike
- Hoitovastike 483,45 € / kk, Rahoitusvastike 1 004,99 € / kk, Yhtiövastike yhteensä 1 488,44 € / kk
- Sähköliittymä siirtyy
- Kyllä
- Neliöhinta
- 3 032,79 € / m²
- Lisätietoja maksusta
- Lisätietoja vastikkeista: Vesi lämmin 10,10 € / m³, kylmä 5 € / m³. Autohallipaikan hoitovastike 26,40 € / kk, rahoitusvastike 54,88 € / kk. Lainaosuutta 8764,28 €. Normaalit asunto-osakkeen kustannukset mm. varainsiirtovero, vakuutukset, sähkö oman sopimuksen mukaan. Hallituksella on valtuudet tarvittaessa kerätä enintään kahden kuukauden ylimääräisen vastike
Tilat ja materiaalit
- Keittiön lattiat
- Parketti
- Keittiön seinät
- Maali
- Keittiön varusteet
- Liesi, jääkaappi, erillinen pakastin, liesituuletin, astianpesukone, ja erillisuuni
- Liesi
- Induktioliesi ja erillisuuni
- Kylpyhuoneen seinät
- Kaakeli
- Kylpyhuoneen lattiat
- Laatta
- Kylpyhuoneen varusteet
- Peili, wc-istuin, lattialämmitys, ja suihku
- WC Lukumäärä
- 1
- WC:n lattiat
- Laatta
- WC:n seinät
- Kaakeli
- Makuuhuoneiden lukumäärä
- 3
- Makuuhuoneiden seinät
- Maali ja tapetti
- Makuuhuoneiden lattiat
- Parketti
- Olohuoneen seinät
- Osalaatoitus ja maali
- Olohuoneen lattiat
- Parketti
- Kodinhoitohuoneen varusteet
- Pesukoneliitäntä
- Kodinhoitohuoneen seinät
- Maali
- Kodinhoitohuoneen lattiat
- Laatta
- Kohteen säilytystilat
- Kellarikomero
- Sauna
- Kyllä
- Kiuas
- Sähkökiuas
Lisätiedot
- Asunnon kunto
- Hyvä
- Näkymät
- Kaksi lasitettua parveketta, toinen eteläsuuntaisesti sisäpihalle puistoon ja toinen länsisuuntaisesti jokea päin.
- Parveke
- Lasitettu parveke
- Parvekkeen ilmansuunta
- Etelä ja länsi
- Hissi
- Kyllä
- Muuta kauppaan kuuluvaa
- Lisätietoja sisältyvistä varusteista: huoneistokohtainen ilmanvaihtokone, sälekaihtimet/rullaverhot
- Muut kaupan kannalta merkittävät tiedot
- Taloyhtiön osakeluettelo on siirretty Maanmittauslaitoksen Huoneistotietojärjestelmään. Ostaja tulee hakea omistuksen rekisteröimistä ja paperisen osakekirjan mitätöintiä kahden kuukauden kuluessa kauppakirjan allekirjoittamisesta. Tämän kustannuksista vastaa ostaja. Taloyhtiössä on voimassa parveketupakoinnin kieltävä tupakointikielto.
Taloyhtiö ja kiinteistö
- Taloyhtiön nimi
- Asunto Oy Seinäjoen Sonaatti
- Isännöitsijätoimisto
- Seinäjoen Isännöintikulma Oy
- Isännöitsijän nimi
- Mika Pouttu
- Isännöitsijän sähköposti
- [email protected]
- Isännöitsijän puhelin
- 010 739 3391
- Tontin pinta-ala
- 2 050 m²
- Tontin omistus
- Oma
- Rakennusmateriaali
- Puu, tiili ja betoni
- Lämmitysjärjestelmä
- Kaukolämpö
- Kattotyyppi
- pulpettikatto
- Katemateriaali
- huopa
- Lisätietoja kiinteistönhoidosta
- Huoltoyhtiö
- Kiinteistönhoidon lisätiedot
- Seinäjoen Talonmiespalvelu Oy
- Taloyhtiössä on
- Kuivaushuone, kaapeli-tv, urheiluvälinevarasto, väestönsuoja, ja huoneistokohtaiset varastot
- Kohteesta on energiatodistus
- Kyllä
- Energialuokka
- C2013
- Palvelut
- K-Market 500 m.
- Koulut
- Marttila 200 m.
- Lisätietoja huoneiston autopaikasta
- Autohallipaikka 19 myydään omalla osakekirjalla hintaan vh. 19 000 euroa.
- Lisätietoja taloyhtiön autonsäilytyspaikoista
- Autopaikat ovat omia osakkeitaan.
- Sähköpistokepaikkoja
- 8 kpl
- Autohallipaikat
- 50 kpl
- Kaavatilanne
- Asemakaava
- Lisätiedot kaavoituksesta
- Seinäjoen kaupunki, kaavoitus.
- Kuntotutkimus tehty
- 01.01.2022
- Taloyhtiön kiinnitykset
- 10 700 000 €
Tehdyt remontit
2024: sähköautojen latausinfran rakentaminen jokaiselle autopaikalle
2023: sähköverkkoon kytkettyjen palovaroittimien vaihto, Bauer-vedenkäsittelylaitteet
2022: perustajaurakoitsijan suorittama pihakannen eristyksen korjaus
2021: parvekkeiden lasitusten huolto ja kunnostukset
2020: iv-kanavien puhdistus ja ilmamäärien säätö
2018-2020: perustajaurakoitsijan tekemät korjaustyöt koskien autokannen vuotojen korjausta
2017: perustajaurakoitsijan tekmät korjaustoimet autohallin vuotokohtiin injektoimalla sekä asentamalla peltilistoitus julkisivun seinälevyjen vaakalistoihin
2016: perustajaurakoitsijan tekemät korjaukset huoneiston B46/4 lattian epätasaisuuteen, porrasovien paloeristyksen korjaaminen, huoneistojen suihkusekoittajien hanakulmarasioiden muttereiden kiristys
Tulevat remontit
Selvitys korjaustarpeesta vuosille 2024 - 2028:
- autohallin delta-palkkien maalaus
- betonimuurin puhdistus
- rakennuksen puuosien huoltomaalaus
- porraskäytävätilojen seinien maalaus ja lattiapinnoitteiden uusiminen
- yhteisten tilojen lattiapintojen maalaus
- autohallin lattian pinnoittaminen
- leikki- ja piha-alueen kunnostus
Taloyhtiö selvittää mahdollisuutta rakennuksen alapuolen salaojien väärästä asennuskorkeudesta ja rakennuksen perustuksista puuttuvan, kapillaarikatkoista johtuvan kosteuden ajoittaisen nousun (parkkihallin pylväisiin ja seiniin ja kellarikerroksen muihin tiloihin) kuivattattamiseen. Virheestä on reklamoitu perustajaurakoitsijalle heti sen ilmettyä ja mikäli kuivattaminen on mahdollista, tullee yhtiö vaatimaan kuivattamisjärjestelmän asennus- ja käyttökuluja perustajaurakoitsijalta. Taloyhtiö odottaa tarjousta kuivausjärjestelmän asentamisesta ja käyttökustannuksista.
