Kauppalantie 30 A
00320, Etelä-Haaga, Haaga, Helsinki
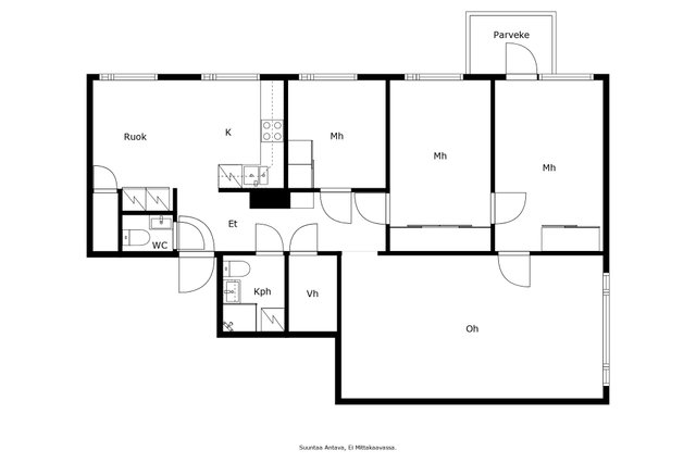
4h+k+erillinen wc+kph+vh+oh+parveke
399 000 € (4 586,21 € / m²)
87 m²

Tätä asuntoa myy Sari Välimaa, Myyntineuvottelija
Roof Espoo | ROOF LKV Espoo Oy

Sijainti
Asuntoesittely
Valoisa kulmahuoneisto Etelä-Haagan sydämessä
Tervetuloa ihastumaan tähän kodikkaaseen ja viihtyisään ensimmäisen kerroksen kulmahuoneistoon, joka tarjoaa jopa 4–5 huonetta arvostetulla Etelä-Haagan alueella!
Asunto sijaitsee kätevästi ensimmäisessä asuinkerroksessa, mutta ei katutasossa, mikä lisää asumisen viihtyisyyttä ja yksityisyyttä. Alimmasta kerroksesta löytyy lisäksi vuokrattavia autotalleja.
Pohjaratkaisu on joustava ja monikäyttöinen. Keittiötä on laajennettu poistamalla yhden huoneen väliseinä, mikä on tuonut siihen lisätilaa. Olohuoneessa on tyylikkäät kivitasoiset ikkunalaudat, ja tilaan on helppo yhdistää ruokailuhuone, joka tarjoaa paikan suuremmallekin ruokailuryhmälle. Asunnon kolme makuuhuonetta tarjoavat hyvin tilaa perheen tarpeisiin tai etätyöpisteille. Käytännöllisyyttä lisää oma erillinen wc sekä selkeä pohjaratkaisu.
Asunto Oy Kauppalantie 30 sijaitsee omalla tontilla vehreällä puistomaisella alueella.
Etelä-Haaga hurmaa rauhallisella ja luonnonläheisellä ympäristöllään, puistojen ja palveluiden välittömässä läheisyydessä. Alueelta on nopeat yhteydet keskustaan, ja myös luonto on helposti saavutettavissa arjen keskellä.
Yhtiöjärjestyksen mukaan 5h+k.
TIEDUSTELUT JA YKSITYISESITTELYVARAUKSET:
Sari Välimaa / 044 333 0524 tai [email protected]
ASUNNOSSA PIDETÄÄN VAIN YKSITYISNÄYTTÖJÄ.
OTATHAN YHTEYTTÄ JA VARAAT OMAN ESITTELYAJAN!
Get a roof.
www.roof.fi
Harkitsetko asuntosi myyntiä? Varaa minulta maksuton arviokäynti, kerron samalla markkinatilanteesta, palveluistani ja tehokkaasta Roof-välityskonseptista. Suunnitellaan yhdessä seuraavat askeleet!Perustiedot
- Sijainti
- Kauppalantie 30 A, 00320, Etelä-Haaga, Haaga, Helsinki
- Omistusmuoto
- Omistusasunto
- Huoneluku
- 4
- Asuinpinta-ala
- 87 m²
- Kokonaispinta-ala
- 87 m²
- Lisätiedot pinta-alasta
- Pinta-alaa ei ole tarkistusmitattu. Huoneiston pinta-ala on yhtiöjärjestyksen, isännöitsijäntodistuksen ja myyjän ilmoituksen mukaan 87 m2. Pinta-alaa ei ole tarkistusmitattu. Edellä mainittu pinta-ala saattaa tämän ikäisessä kohteessa poiketa olennaisestikin huoneiston nykyisen ja rakentamisaikaisen mittaustapojen ja standardien mukaan laskettavasta pinta-alasta. Huoneiston todellinen pinta-ala voi siis olla yhtiöjärjestyksessä, isännöitsijäntodistuksessa ja esitteessä mainittua pienempi tai suurempi.
- Kohteen tyyppi
- Kerrostalo
- Kerros
- 1 / 4
- Rakennusvuosi
- 1957
- Käyttöönottovuosi
- 1957
- Kohde myydään vuokrattuna
- Ei
- Vapautuminen
- Sopimuksen mukaan
Hinta ja kustannukset
- Velaton hinta
- 399 000 €
- Myyntihinta
- 397 848,67 €
- Velkaosuus
- 1 151,33 €
- Yhtiövastike
- Hoitovastike 652,50 € / kk (7,50 € / m²), Rahoitusvastike 60,90 € / kk (0,70 € / m²), Yhtiövastike yhteensä 713,40 € / kk
- Lisätietoja vastikkeista
- Pääomavastike 7, 2019-korj. 0,70 €/m2/kk.
- Neliöhinta
- 4 586,21 € / m²
- Lisätietoja maksusta
- Vesimaksut 25,00 €/hlö/kk. Autotalli 55,00 €/kk. Autopaikka 19,00 €/kk. Autotalli iso 60,00 €/kk. Sähköauton latausmaksut 12,00 €/kk. VARSINAISEN YHTIÖKOKOUKSEN 18.6.2025 PÄÄTÖKSET - Yhtiökokous päätti yksimielisesti valtuuttaa hallituksen keräämään tai olla keräämättä korkeintaan kahden kuukauden hoitovastiketta vastaava summa ylimääräisiä hoitovastikkeita tilanteen niin vaatiessa. - Päätettiin, että tilikauden aikana kertyneistä pääomavastikkeista ja hankeosuuksista tai lainaosuussuorituksista rahastoidaan tarvittaessa enintään lainanlyhennyksiä vastaava määrä. YLIMÄÄRÄINEN YHTIÖKOKOUS 17.1.2024 Yhtiökokous valtutti hallituksen avaamaan taloyhtiölle luotollisen tilin 20.000 € tililimiitillä taloudellisen tilanteen parantamiseksi.
Tilat ja materiaalit
- Keittiön kuvaus
- Lattia: parketti. Seinät: maalattu, osalaatoitus. Työtasot: puu. Varustus: jääkaappi, pakastin, keraaminen liesi, astianpesukone.
- Kylpyhuone
- Lattia: laatta. Seinät: kaakeli. Varustus: Allaskaappi, Avohyllyköt, wc-istuin, suihku, suihkukaappi, pesukoneliitäntä, peilikaappi.
- Erillinen WC
- Lattia: laatta. Seinät: kaakeli. Varustus: bidee-suihku, Käsienpesuallas, Peili.
- Makuuhuoneet
- Lattia parkettia, seinät maalattu
- Makuuhuoneiden lukumäärä
- 3
- Olohuone
- Lattia: parketti. Seinät: maalattu.
- Kohteen säilytystilat
- Vaatehuone
- Sauna
- Ei
- Saunan kuvaus
- Sauna ei tällä hetkellä ole käyttökunnossa.
Lisätiedot
- Asunnon kunto
- Tyydyttävä
- Parveke
- Ulostyönnetty parveke
- Hissi
- Ei
- Muut kaupan kannalta merkittävät tiedot
- Hyvin kaappi/ säilytystilaa, rauhallinen yhtiö. Keittökomero.
Taloyhtiö ja kiinteistö
- Taloyhtiön nimi
- Asunto Oy Kauppalantie 30
- Isännöitsijätoimisto
- Granlund Isännöinti Oy
- Isännöitsijän nimi
- Sanna Andelin
- Isännöitsijän sähköposti
- [email protected]
- Isännöitsijän puhelin
- 0207189860
- Tontin pinta-ala
- 1 443 m²
- Tontin omistus
- Oma
- Rakennusmateriaali
- Kivi ja betoni
- Lämmitysjärjestelmä
- Kaukolämpö
- Kattotyyppi
- Harjakatto
- Katemateriaali
- Pelti
- Lisätietoja kiinteistönhoidosta
- Huoltoyhtiö
- Kiinteistönhoidon lisätiedot
- Kotikatu Oy
- Lunastusoikeus yhtiöllä
- Ei
- Lunastusoikeus osakkaille
- Ei
- Kohteesta on energiatodistus
- Kyllä
- Energialuokka
- E2018
- Energiatodistuksen voimassaolo
- 29.7.2033
- Taloyhtiöön kuuluu
- Yhtiön hallinnassa ovat lisäksi pesutupa, kuusi autotallia, väestönsuoja, ulkoiluvälinevarasto ja talouskellarit.
- Lisätietoja liikenneyhteyksistä
- Linja-autopysäkki n. 150m. (linjat: 40, 40N) Linja-autopysäkki n. 220m. 31, 40, 40N Linja-autopysäkki n. 300m. (linjat: 31, 32, 40, 40N, 41) Linja-autopysäkki n. 500m. (linjat: 42, 415N, 431, 421B, 431N, 436N, 455, 455A, 456, 457, 457A, 464, 465, 465B) Raitiovaunupysäkki n. 800m. linja 15 Raitiovaunupysäkki n 900m. (linjat: 10, H) Raitiovaunupysäkki n. 1,0km. linja 15 Huopalahden asema n. 700m. Pasilan asema n. 3,2km.
- Palvelut
- Munkkivuoren ostoskeskus n. 1,8 km.
- Koulut
- Haagan peruskoulu n. 500 m. Helsingin Suomalainen Yhteiskoulu n. 700m. Gymnasiet Lärkan n. 850m.
- Taloyhtiön autopaikat
- Autotalli / hallipaikat: 6 kpl. Toteutetut autopaikat: 2 kpl.
- Taloyhtiöllä sauna
- Ei
- Kaavatilanne
- Asemakaava
- Lisätiedot kaavoituksesta
- Helsinki Helsingin kaupunki asemakaavoitus Kansakoulukatu 3, 00100 Helsinki p. (09) 310 1691 https://kartta.hel.fi/
- Asbestikartoitus
- Kyllä
- Lisätietoa asbestikartoituksesta
- Tehty kartoitus ei poista kartoitusvelvollisuutta muiden vanhojen pintojen purkutöihin ryhdyttäessä. Lain mukaan purettavien materiaalien asbesti pitää kartoittaa ennen purkutyötä, jos rakennus on rakennettu ennen vuotta 1994. Jos osakas aikoo remontoida tällaisessa talossa olevaa huoneistoaan, hänen tulee tietyissä tapauksissa teettää asbestikartoitus purettaviin materiaaleihin. Asbestikartoitusvelvollisuus ei koske huoneistossa tehtäviä vähäisiä töitä, kuten reikien poraamista seiniin tai kattoon.
- Taloyhtiön kiinnitykset
- 513 450 €
- Taloyhtiön kiinnitysten päivämäärä
- Isännöitsijäntodistuksen päivämäärän mukainen
Tehdyt remontit
2023: Vesikaton korjaus, Yleisten tilojen valaistuksen korjaus.
2019: Kaukolämpökeskuksen uusiminen.
2018: Ilmanvaihtohormien nuohous- ja venttiilien tarkastus.
2017: Julkisivuremontti.
2016: Uusitiin taloyhtiön lukitus.
2015: Salaojien uusiminen, tukimuurin rakentaminen, asfaltointi.
2014: Vesikaton tarkistus ja korjaus.
2013: Autotallien ovien maalaaminen.
2012: Kuntokartoituksen tekeminen.
2011: Vesikaton pinnoitus. Viemäreiden pinnoitus. Kattovesikourujen uusinta.
2010: Käyttövesijohtojen pinnoitus. Parvekkeiden uusinta.
2009: Parvekkeiden uusinta.
1998: Lämmönjakohuoneen kaukolämpölaitteiston uusiminen.
1995: Tonttivesijohto ja tonttiviemäri uusittu.
Tulevat remontit
2025 Palovaroittimet huoneistoihin
2026 Autotallien ovien huoltomaalaus
2026 Pyöräkellarin oven uusiminen
2027 Ikkunaventtiilien suodattimien vaihto
2028 Ilmanvaihtohormien nuohous- ja venttiilien tarkastus
2029 Saunan remontin suunnittelu
2029 Pesutuvan ja kuivaushuoneen rakentamisen suunnittelu
2029 Sähkö- ja antennijärjestelmän suunnittelu
2030 Saunan remontin toteutus
2030 Sähkö- ja antennijärjestelmän remontin toteutus
2030 Hissin tarpeellisuuden kartoitus
Mainitut toimenpiteet saattavat aikaistua tai myöhentyä. Myyjä ei vastaa taloyhtiön myöhemmin päättämistä kunnossapito toimenpiteistä ja niistä aiheutuvista huoneistolle tulevista kustannuksista.
