Kauristie 14
21110, Immanen, Naantali
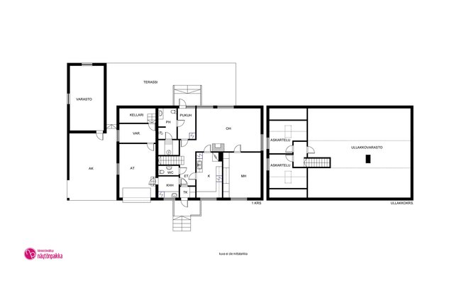
MH,2xASKARTELU, OH, K, PKH, PH/WC/S, ERILLWC, KHH, TK, ET, VAR, AT, AK ULLAKKOVAR
278 000 €
95 m²

Tätä asuntoa myy Jasmin Rainoma, Myyntiedustaja
Kiinteistönvälitys Näytönpaikka Oy

Sijainti
Asuntoesittely
Perusteellisesti remontoitu koti upealla tontilla suositulta Naantalin Immasten alueelta odottaa nyt uusia asukkaita!
Tämä alunperin vuonna 1964 rakennettu talo on kokenut perusteellisen remontin vuosina 2015–2020. Asuinrakennuksen kerrosala on 160m², ja kokonaisala 290m², joten tilaa riittää monenlaiseen tarpeeseen. Talon pohjaratkaisu on toimiva ja käytännöllinen. Sisääntulokerroksen asuinpinta-ala on noin 90m², ja ullakkotilan asumisen aputiloiksi käyttöönotetut askartelutilat tarjoavat lisätilaa ja toimivat esimerkiksi nykyisellä perheellä lastenhuoneina. Autotalli, autokatos ja varastotilat täyttävät monet tarpeet.
Lämmitysjärjestelmä koostuu poistoilmalämpöpumpusta, ilmalämpöpumpusta ja lattialämmityksestä, mikä takaa miellyttävän sisäilman ympäri vuoden. Lisäksi olohuoneesta löytyy varaava takka ja keittiön puolelta puuliesi.
Talon ympärillä avautuu laaja, 2879m² oma suojaisa tontti, joka tarjoaa rauhallisen ja luonnonläheisen ympäristön. Asuinalue on rauhallinen ja todella haluttu. Hyvät liikenneyhteydet, uudet koulut ja päiväkodit ovat kaikki näppärästi saatavilla.
Tartu tilaisuuteen ja tule tutustumaan tähän ihastuttavaan kotiin Naantalissa, joka yhdistää perinteisen omakotitaloasumisen ja modernit mukavuudet!
Esittelyt ja lisätiedot:
Jasmin Rainoma
SKVL Laatukoulutettu asuntomyyjä, KiLAT
044 989 2848
[email protected]
Haluatko maksuttoman hinta-arvion ja samalla kattavan tarjouksen välityspalkkiosta? Soita suoraan 044 989 2848 ja kerron lisää!
Perustiedot
- Sijainti
- Kauristie 14, 21110, Immanen, Naantali
- Huoneluku
- 4
- Asuinpinta-ala
- 95 m²
- Kokonaispinta-ala
- 160 m²
- Pinta-alan peruste
- Pinta-ala ei ole tarkistusmitattu ja todellinen pinta-ala voi olla suurempi tai pienempi, kuin ilmoitettu
- Lisätiedot pinta-alasta
- Asuinrakennuksen kerrosala 160m2, kokonaisala 290m2. Sisääntulokerroksen asuinpinta-ala n. 90m2, yläkerran askartelutilojen lattiapinta-ala n. 20m2, autotallin ja pyörävaraston pinta-ala n. 20m2, varastorakennuksen pinta-ala n. 27m2.
- Kohteen tyyppi
- Omakotitalo
- Kerros
- 2
- Rakennusvuosi
- 1964
- Käyttöönottovuosi
- 1964
- Kohde myydään vuokrattuna
- Ei
- Vapautuminen
- Sopimuksen mukaan
Tilat ja materiaalit
Lisätiedot
- Asunnon kunto
- Hyvä
Taloyhtiö ja kiinteistö
- Tontin pinta-ala
- 2 879 m²
- Tontin omistus
- Oma
- Tontin myyntityyppi
- Koko tontti
- Lämmitysjärjestelmä
- Poistoilmalämpöpumppu Ilmalämpöpumppu Lattialämmitys Puuhella, takka
- Ilmanvaihto
- Koneellinen ilmanvaihto
- Vesijohto
- Kunnallisvesi
- Viemäröinti
- Kunnallinen viemäriverkosto
- Kattotyyppi
- Harjakatto
- Lisätietoa rakennusoikeudesta
- Sallittu rakennusoikeus 450+50m2. Rakennusoikeutta käytetty yhteensä 145+15=160m2
- Rakennusoikeus e-luku
- 0.2
- Kaavatilanne
- Asemakaava
- Asbestikartoitus
- Kyllä
Tehdyt remontit
Käytännössä koko talo on perusteellisesti korjattu vuosien 2015-2020 aikana. Kaikki vanha ja huonokuntoinen on poistettu ja korvattu uusilla materiaaleilla.
2015: Kattoremontti, bitumihuopakatto (palahuopakate) sekä savuhormien kunnostus/pinnoitus
2015: Salaojaremontti
2016: Autotallin eristys (Finnfoam 100 mm), kaivon asennus, betonivalu, levytys, uuden oven asennus
2016: Kunnallistekniikan asennus (vesi ja viemäri)
2016: Vesi ja viemäriremontti (roth hanakulmat + multipex vesiputket ja uudet viemäriputket)
2016: Sahanpurujen imu vintiltä ja katon eristys (150 mm ff pir levy)
2016: Sisätilojen purkutyöt, vanhat sahanpurut pois, uusi eristys ulkoseiniin (ff pir 100 mm+50 mm ristiin asennettuna)
2016: Ulkoseinän puurungon sisäpuolen nosto harkoilla 20 cm ylemmäs, jolloin estetään kosteuden nousu puurunkoon
2016: Pihan maisemointi remontti
2016: Lattian eristys (100mm Finnfoam)+lattialämmitys kaapeleiden asennus+kipsivalu
2017: Seinien runkotyö+levytys (ek kipsilevy)
2017: Uudet portaat yläkertaan
2017: Ilmastointiputkien asennus / poistoilmalämpöpumpun asennus
2017: Kylpyhuone, keittiö, khh remontit
2018: Pikku wc remontti
2018: Talon julkisivuremontti (vanhan rappauksen korjaus/silko pinnoitus), varaston julkisivu on villarapattu jäljittelemällä talon julkisivua
2019: Vinttivaraston kunnostus
2019: Ulkoterassin rakentaminen
2020: Lasiterassin asennus, grillikatoksen rakentaminen
